Das im Jahr 1975 errichtete Reihenmittelhaus überzeugt durch eine durchdachte Raumaufteilung und eine ruhige Wohnlage. Es verfügt über eine Wohnfläche von ca. 115m² und steht auf einem insgesamt 251m² großen Grundstück. Aktuell ist die Immobilie noch bis November 2026 durch einen Zeitmietvertrag vermietet und eignet sich somit ideal als Kapitalanlage oder zur späteren Eigennutzung. Zum Haus gehört zudem eine Garage, die sich auf einem nahegelegenen Garagenhof befindet.
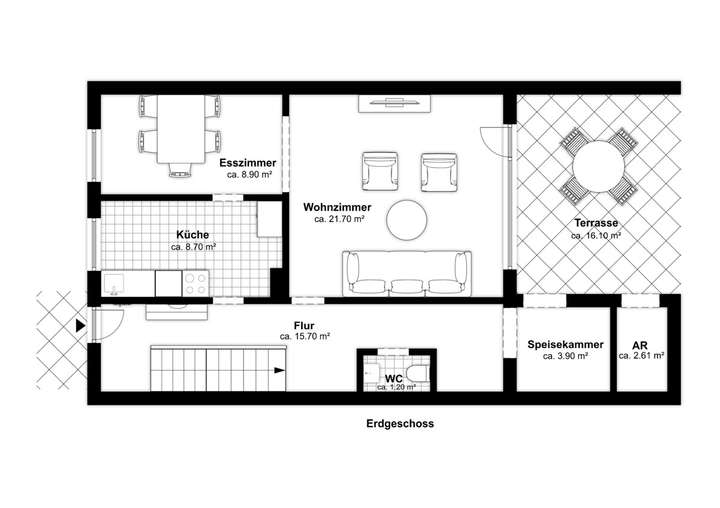
Im Erdgeschoss gelangt man über den Windfang in den zentralen Flur des Hauses. Zur linken Seite befindet sich die Küche mit angrenzendem Esszimmer, welches harmonisch in das großzügige Wohnzimmer übergeht. Von hier aus besteht Zugang zur Terrasse, die durch einen praktischen Abstellraum ergänzt wird. Entlang des Flures befinden sich außerdem ein Gäste-WC sowie ein Hauswirtschaftsraum, der ebenfalls einen Zugang zur Terrasse bietet. Der Garten ist durch einen Zaun von der Terrasse abgetrennt und bietet zusätzliche Fläche zur individuellen Nutzung.
Im Obergeschoss stehen drei gut geschnittene Schlafräume zur Verfügung, die sich vielseitig nutzen lassen – etwa als Kinder-, Arbeits- oder Gästezimmer. Ein Einbauschrank am Ende des Flures sorgt für zusätzlichen Stauraum. Das Tageslichtbad ist mit einer Badewanne ausgestattet und vervollständigt den komfortablen Grundriss dieser Etage.
Der Dachboden bietet weitere Nutzfläche und ist dank vorhandener Fenster hell und gut belüftet – ideal als Lager- oder Hobbyraum nutzbar.
Insgesamt präsentiert sich das Reihenmittelhaus als gepflegte Immobilie mit solider Bausubstanz, praktischer Raumaufteilung und attraktiver Lage – sowohl für Kapitalanleger als auch für Familien, die langfristig ein Zuhause mit Potential suchen.
Delmenhorst-Deichhorst | Geräumiges 4 Zi.-Reihenmittelhaus mit Garage und Garten
27753 Delmenhorst
Die vollständige Adresse der Immobilie erhalten Sie vom Anbieter.
Auf Karte anzeigen
Die vollständige Adresse der Immobilie erhalten Sie vom Anbieter.
Finanzierungszertifikat
In nur zwei Minuten zu Ihrem persönlichen Finanzierungszertifkat.
Infos
| Haustyp | Reihenmittelhaus |
|---|---|
| Etagenzahl | 2 |
| Wohnfläche ca. | 115 m2 |
| Grundstücksfläche | 251 m2 |
| Bezugsfrei ab | sofort |
| Zimmer | 4 |
| Schlafzimmer | 3 |
| Badezimmer | 1 |
| Garage/Stellplatz | Garage |
| Anzahl Garage/Stellplatz | 1 |
Kosten
| Kaufpreis |
209.000 € |
|---|---|
| Provision |
3,57% inkl. gesetzl. MwSt. (Käuferprovision) (nach §656c BGB n.F) vom beurkundeten Kaufpreis. |
Finanzierungsrechner:
Kaufpreis:
600.000 €
Eigenkapital:
600.000 €
Monatliche Rate
0 €
Effektiver Jahreszins
0 %
Sollzinsbindung
10 Jahre
Bausubstanz & Energieausweis
| Baujahr | 1975 |
|---|---|
| Heizungsart | Etagenheizung |
| Wesentliche Energieträger | Gas |
| Energieausweis | liegt vor |
| Energieausweistyp | Bedarfsausweis |
| Energieverbrauchskennwert | 219,0 kWh/(m²*a) |
| Energieeffizienzklasse | G |
219,0
kWh/(m²*a)
Energieeffizienzklasse G
- A+
- A
- B
- C
- D
- E
- F
- G
- H
- 0
- 25
- 50
- 75
- 100
- 125
- 150
- 175
- 200
- 225
- >250
Beschreibung des Objekts
Ausstattung
+ Aktuell vermietet bis zum 11/2026 für 954,00€/Monat
+ Vaillant Gas-Heizung mit Warmwasseraufbereitung (2015)
+ 2-fach verglaste Kunststofffenster
+ isolierter Dachboden
+ 3-adrige Elektrik mit Schaltsicherungen
+ Badezimmer mit Badewanne, Dusche und Fenster
+ Gäste-Toilette
+ HWR mit Zugang zur Terrasse
+ offenes Wohn- und Esszimmer
+ 1 Garage
+ Breite des Hauses 7,07m
Lage
Das Reihenhaus befindet sich in einer ruhigen und begehrten Wohnlage in Delmenhorst-Deichhorst am Ende einer Sackgasse. Diese idyllische Lage bietet nicht nur ein angenehmes Wohnumfeld, sondern auch zahlreiche Spaziermöglichkeiten in unmittelbarer Nähe, ideal für Naturfreunde und Erholungssuchende.
Dennoch profitieren Sie von einer hervorragenden Infrastruktur: Einkaufsmöglichkeiten und Geschäfte des täglichen Bedarfs sind bequem fußläufig erreichbar, sodass kurze Wege den Alltag erleichtern. Auch das nahegelegene Krankenhaus sorgt für zusätzliche Sicherheit im Notfall. Eine gute Anbindung an den öffentlichen Nahverkehr ist durch eine vorhandene Buslinie gewährleistet. Für Pendler und Vielfahrer bietet die nur 2–3 Minuten entfernte Autobahn A28 eine schnelle Verbindung in die umliegenden Städte und Regionen.
Sonstige Angaben
Wir weisen darauf hin, dass die von uns weitergegebenen Objektinformationen, Unterlagen, Pläne etc. vom Auftraggeber stammen. Eine Haftung für die Richtigkeit oder Vollständigkeit der Angaben übernehmen wir nicht. Es obliegt daher unseren Kunden, die darin enthaltenen Objektinformationen und Angaben auf ihre Richtigkeit hin zu überprüfen. Alle Immobilienangebote sind freibleibend und vorbehaltlich Irrtümer, Zwischenverkauf- und Vermietung oder sonstiger Zwischenverwertung.
Geldwäsche: Die Rutz Immobilien GmbH ist als Immobilienmaklerunternehmen gemäß § 2 Abs. 1 Nr. 14 und § 11 Abs. 1, 2 des Geldwäschegesetzes (GwG) verpflichtet, die Identität ihrer Vertragspartner zu überprüfen, sobald eine Geschäftsbeziehung entsteht oder ernsthaftes Interesse an einem Immobilienkaufvertrag besteht.
Dafür erfassen wir nach § 11 Abs. 4 GwG die relevanten Daten Ihres Personalausweises (bei natürlichen Personen), beispielsweise durch eine Kopie. Handelt es sich um eine juristische Person, ist ein Handelsregisterauszug erforderlich, aus dem der wirtschaftlich Berechtigte hervorgeht.
Das Geldwäschegesetz verpflichtet uns, diese Unterlagen für einen Zeitraum von fünf Jahren aufzubewahren. Zudem sind Sie als unser Vertragspartner gemäß § 11 Abs. 6 GwG zur Mitwirkung verpflichtet.
Grundriss
Erdgeschoss
>
>
Obergeschoss
>
>
Adresse
27753 Delmenhorst
Interessante Orte
Preis- und Lageinformationen
Preistrend für Bestandsimmobilien in Deichhorst