Objekt: Restaurant La Perla und Mieteinheiten im Hauptgebäude (4) sowie im Hinterhaus (1), Frankfurter Straße 32, 61231 Bad Nauheim
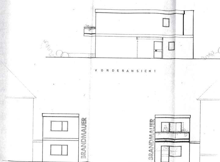
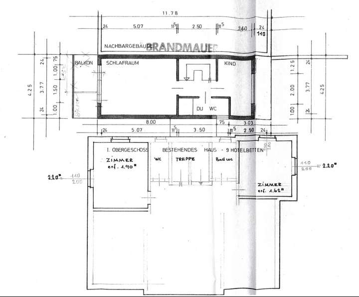
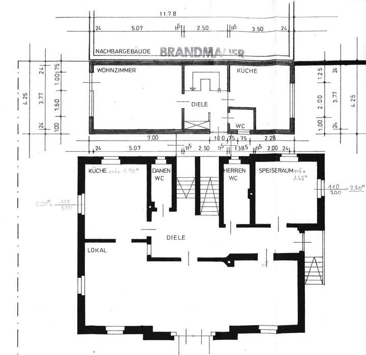
Der Bauantrag für das Hauptgebäude stammt aus dem Jahr 1892, die Bauanträge für das Hinterhaus stammen von 1974 und 1985 (Erweiterung). Das Hautgebäude besteht aus drei Vollgeschossen mit im EG dem Restaurant und Außenbereich und im OG sowie dem DG jeweils zwei Wohn-Mieteinheiten. Das OG besitzt einen Balkon. Der Keller wird, bis auf einen kleinen Heizungsraum, komplett als Lagerfläche des Restaurants genutzt. Die Grundstücksgröße ist 515 qm.
Das Hinterhaus besteht aus zwei Vollgeschossen mit einem Flachdach und wird als eine Wohneinheit genutzt. Im EG schließt sich eine kleine Terrasse an, im OG ein Balkon. Im Außenbereich stehen zwei PKW-Stellplätze zur Verfügung.
Heizungsart Gas. Im Hinterhaus mit einer Gastherme im EG, ca. 2 Jahre alt. Im Hauptgebäude wird das Alter der Gasheizung mit älter als 30 Jahre angegeben. Die Fenster im Hauptgebäude wurden vor ca. 5 Jahren fast alle mit Kunststofffenstern erneuert.
Im gleichen Zeitraum wurden zwei Überdachungen für den Gastronomie-Außenbereich genehmigt und erstellt. Das mit Schiefer gedeckte Dach hat eine Zwischensparren-Dämmung.
Ein Energieausweis liegt noch nicht vor, ist jedoch beauftragt.
Die Maklercourtage beträgt inkl. MwSt. von 19% = 5,95% des Kaufpreises, die vom Käufer zu tragen sind.
Die Angaben in dieser Anzeige haben wir von unserem Auftraggeber erhalten. Wir übernehmen keine Gewähr für die Richtigkeit dieser Angaben. Gleiches gilt für abgefragte Behördenauskünfte. Eine Haftung für diese Angaben ist somit ausgeschlossen.
Mehrfamilienhaus La Perla, Hauptgebäude und Hinterhaus mit Gastronomie und 5 Wohneinheiten
Frankfurter Straße 32,
61231 Bad Nauheim
Auf Karte anzeigen
Finanzierungszertifikat
In nur zwei Minuten zu Ihrem persönlichen Finanzierungszertifkat.
Infos
| Haustyp | Mehrfamilienhaus |
|---|---|
| Etagenzahl | 4 |
| Wohnfläche ca. | 428 m2 |
| Nutzfläche | 166,37 m2 |
| Grundstücksfläche | 515 m2 |
| Bezugsfrei ab | 8.10.2025 |
| Zimmer | 13 |
| Schlafzimmer | 6 |
| Badezimmer | 5 |
| Garage/Stellplatz | Außenstellplatz |
| Anzahl Garage/Stellplatz | 2 |
Kosten
| Kaufpreis |
1.789.000 € |
|---|---|
| Provision | Nein |
Finanzierungsrechner:
Kaufpreis:
600.000 €
Eigenkapital:
600.000 €
Monatliche Rate
0 €
Effektiver Jahreszins
0 %
Sollzinsbindung
10 Jahre
Bausubstanz & Energieausweis
| Baujahr | 1892 |
|---|---|
| Letzte Sanierung | 2020 |
| Bauphase | Haus fertig gestellt |
| Objektzustand | Gepflegt |
| Qualität der Austattung | Normal |
| Heizungsart | Gas-Heizung |
| Wesentliche Energieträger | Gas |
| Energieausweis | liegt zur Besichtigung vor |
Beschreibung des Objekts
Lage
Bad Nauheim ist eine charmante Stadt mit einer guten Infrastruktur. Die Frankfurter Straße liegt zentral und bietet eine gute Anbindung an öffentliche Verkehrsmittel sowie Einkaufsmöglichkeiten für den täglichen Bedarf. Die Umgebung lädt zu Spaziergängen und Freizeitaktivitäten ein, während die Nähe zu größeren Städten wie Frankfurt eine gute Erreichbarkeit gewährleistet.
Weitere Dokumente
QM-AufstellungGrundriss
Hauptgebäude Grundriss
>
>
Hauptgebäude Grundriss
>
>
Grundriss
>
>
Grundriss
>
>
Bildschirmfoto 20250825 um 162
>
>
Adresse
Frankfurter Straße 32, 61231 Bad Nauheim
Interessante Orte
Preis- und Lageinformationen
Preistrend für Bestandsimmobilien in Bad Nauheim