Dieses stilvolle Einfamilienhaus aus dem Jahr 1977, im Jahr 2012 aufwendig saniert, vereint stilvolles Wohnen, moderne Technik und einen außergewöhnlich gestalteten Garten. Auf einem ca. 731 m² großen Grundstück erwartet Sie ein Zuhause mit besonderem Charakter und viel Liebe zum Detail. Die Wohnfläche von ca. 116 m² (inkl. zu 1/4 Terrassen) ist geprägt von einer hellen, einladenden Atmosphäre. Das Dachgeschoss ist sehr hochwertig ausgebaut und bietet zusätzlich ca. 53 m² Nutzfläche. Dreifach verglaste Fenster durchfluten die Räume mit Tageslicht. Der Garten im japanischen Stil rund um das Haus ist ein echtes Highlight, durchdacht angelegt und mit liebevollen Gestaltungselementen versehen. Beheizt wird das Haus durch eine effiziente Gas-Zentralheizung von Viessmann aus 2019. In beiden modern ausgestatteten Badezimmern sorgt eine Fußbodenheizung für zusätzlichen Komfort. Die großzügige Garage mit Abstellraum bietet mit ca. 50 m² reichlich Platz. Ein Haus ideal für alle, die ein gepflegtes Zuhause mit besonderem Gartencharakter und moderner Ausstattung suchen.
Einen 360°-Rundgang haben wir Ihnen erstellt unter: https://tour.ogulo.com/3p5z
Perfektion in seiner reinsten Form
22393 Hamburg
Die vollständige Adresse der Immobilie erhalten Sie vom Anbieter.
Auf Karte anzeigen
Die vollständige Adresse der Immobilie erhalten Sie vom Anbieter.
Finanzierungszertifikat
In nur zwei Minuten zu Ihrem persönlichen Finanzierungszertifkat.
Infos
| Haustyp | Einfamilienhaus |
|---|---|
| Wohnfläche ca. | 169 m2 |
| Nutzfläche | 50 m2 |
| Grundstücksfläche | 731 m2 |
| Bezugsfrei ab | Nach Vereinbarung |
| Zimmer | 4 |
| Schlafzimmer | 3 |
| Badezimmer | 2 |
| Garage/Stellplatz | Garage |
| Anzahl Garage/Stellplatz | 1 |
Kosten
| Kaufpreis |
995.000 € |
|---|---|
| Provision |
3,57 % inkl. MwSt. |
Finanzierungsrechner:
Kaufpreis:
600.000 €
Eigenkapital:
600.000 €
Monatliche Rate
0 €
Effektiver Jahreszins
0 %
Sollzinsbindung
10 Jahre
Bausubstanz & Energieausweis
| Baujahr | 1977 |
|---|---|
| Objektzustand | Neuwertig |
| Heizungsart | Fußbodenheizung |
| Wesentliche Energieträger | Gas |
| Energieausweis | liegt vor |
| Energieausweistyp | Bedarfsausweis |
| Energieverbrauchskennwert | 126,4 kWh/(m²*a) |
| Energieeffizienzklasse | D |
126,4
kWh/(m²*a)
Energieeffizienzklasse D
- A+
- A
- B
- C
- D
- E
- F
- G
- H
- 0
- 25
- 50
- 75
- 100
- 125
- 150
- 175
- 200
- 225
- >250
Beschreibung des Objekts
Ausstattung
Dieses stilvolle Einfamilienhaus überzeugt durch eine hochwertige Ausstattung in allen Bereichen. Im gesamten Wohn- und Schlafbereich des Hauses ist edler Eichendielenboden verlegt. Das Wohnzimmer verfügt über einen modernen Heizkamin sowie eine integrierte Lautsprecheranlage und direkten Zugängen zum Garten. Die maßgefertigte Küche ist mit einem Induktionsfeld, Weinkühlschrank und einem Wok-Herd ausgestattet – ideal für Genießer. Die Bäder sind hochwertig gestaltet und im Erdgeschoss verfügt es sogar über zwei getrennte Heizkreisläufe. Das Schlafzimmer besitzt Einbauschränke und eine stilvolle Ankleide. Ein weiteres Highlight ist das lichtdurchflutete Obergeschoss, offen gestaltet und mit einer voll ausgestatteten Sauna und Duschbad. Der Garten besticht durch einen umlaufenden Steinweg, ein Drainagesystem, einen 1500-Liter-Wassertank und zwei großzügige Terrassen. Eine Alarmanlage sichert das Haus außen wie innen. Türrahmen und Treppen wurden mit hochwertigen Materialien wie Metall und Autolack gestaltet. Ein Rückzugsort, der Ruhe schenkt, Raum gibt und mit jeder Linie zeigt: Hier wurde an alles gedacht – nur nicht an Kompromisse.
Lage
Die angebotene Immobilie befindet sich im Hamburger Stadtteil Sasel, welcher zum beliebten Hamburger Alstertal zählt. Der Stadtteil verfügt über zahlreiche Grünflächen und ein vielfältiges Angebot an Freizeit- und Sportmöglichkeiten. Eine direkte Anbindung an die Hamburger Innenstadt mit dem öffentlichen Nahverkehr ist durch die S-Bahnen S1 und S11 sowie die U-Bahn U1 gegeben, die über verschiedene Buslinien gut zu erreichen sind. Am nahegelegenen Saseler Markt lassen sich sämtliche Dinge des täglichen Lebens erwerben; für exklusive Einkäufe bietet sich das beliebte Alstertal Einkaufszentrum mit seinen über 240 Geschäften jeglicher Art an. Gleichfalls verfügt Sasel über ein vielseitiges Angebot an Schulen und Kindergärten in unmittelbarer Nähe dieses Hauses.
Sonstige Angaben
Einen 360°-Rundgang haben wir Ihnen erstellt unter: https://tour.ogulo.com/3p5z
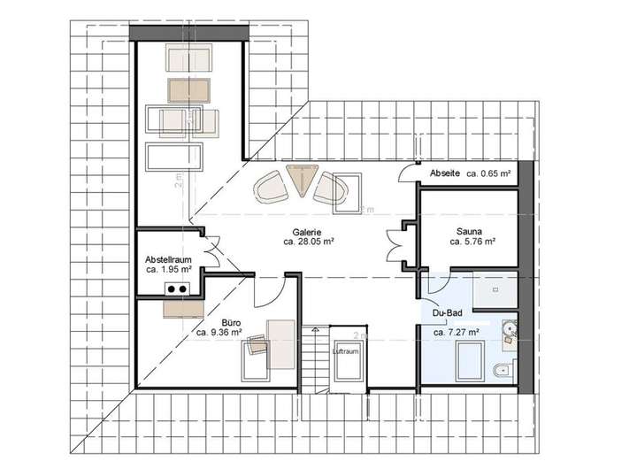
Grundriss
Erdgeschoss
>
>
Dachgeschoss
>
>
Adresse
22393 Hamburg
Interessante Orte
Preis- und Lageinformationen
Preistrend für Bestandsimmobilien in Sasel