Gepflegtes Ein-bzw.-Zweifamilienhaus in ruhiger Lage von Barwedel unweit von Wolfsburg. Die Immobilie wurde im Jahre 1975 als Zweifamilienhaus massiv erbaut und verfügt über zwei separat nutzbare Wohneinheiten im Erdgeschoss ( ca. 121 qm) und im Dachgeschoss ( ca. 105 qm) und ist voll unterkellert. Über den sep. Flur und das Treppenhaus sind beide Wohnungen klar voneinander getrennt aber auch eine Nutzung als Einfamilienhaus ist ohne Weiteres möglich. Aufgrund seiner vielseitigen Nutzungsmöglichkeiten die ideale Immobilie für die Großfamilie, Kapitalanleger oder einen Mehrgenerationenhaushalt. Im laufe der letzten Jahre sind diverse Dinge im Haus erneuert bzw. modernisiert worden.
Großzügiges, gepflegtes Ein-bzw. Zweifamilienhaus für die Großfamilie oder Mehrgenerationenhaushalt
Hagenring 9,
38476 Barwedel
Auf Karte anzeigen
Finanzierungszertifikat
In nur zwei Minuten zu Ihrem persönlichen Finanzierungszertifkat.
Infos
| Wohnfläche ca. | 227 m2 |
|---|---|
| Nutzfläche | 121 m2 |
| Grundstücksfläche | 961 m2 |
| Bezugsfrei ab | nach Absprache |
| Zimmer | 6 |
| Schlafzimmer | 4 |
| Badezimmer | 2 |
| Anzahl Garage/Stellplatz | 4 |
Kosten
| Kaufpreis |
339.000 € |
|---|---|
| Provision |
2,975 % inkl. MwSt vom erzielten Kaufpreis Verdient und fällig mit Beurkundung des notariellen Kaufvertrages. AM Immobilien hat einen provisionspflichtigen Maklervertrag mit dem Verkäufer in gleicher Höhe abgeschlossen. |
Finanzierungsrechner:
Kaufpreis:
600.000 €
Eigenkapital:
600.000 €
Monatliche Rate
0 €
Effektiver Jahreszins
0 %
Sollzinsbindung
10 Jahre
Bausubstanz & Energieausweis
| Baujahr | 1975 |
|---|---|
| Letzte Sanierung | 2019 |
| Objektzustand | Gepflegt |
| Heizungsart | Gas-Heizung |
| Wesentliche Energieträger | Gas |
| Energieausweis | liegt vor |
| Energieausweistyp | Bedarfsausweis |
| Energieverbrauchskennwert | 255,9 kWh/(m²*a) |
| Energieeffizienzklasse | H |
255,9
kWh/(m²*a)
Energieeffizienzklasse H
- A+
- A
- B
- C
- D
- E
- F
- G
- H
- 0
- 25
- 50
- 75
- 100
- 125
- 150
- 175
- 200
- 225
- >250
Beschreibung des Objekts
Ausstattung
- 2 separat nutzbare Wohneinheiten jeweils mit Einbauküchen ausgestattet
- Kaminofen in der Erdgeschosswohnung
- komplett neues Bad mit Badewanne, ebenerdiger Dusche und Bidet im Erdgeschoss
- großzügiger Vollkeller mit Hobbyraum, Waschkeller und WC
- Kellergarage mit elektrischem Rolltor
- ein Einfach- und ein Doppelcarport am Haus
- neue Gasbrennwertheizung in Verbindung mit Solarelementen und neuen Speicher
- Wallbox am Carport
- Glasfaseranschluss
- teilweise elektrische Rollläden
- Haussteuerungssystem für Licht und Rollläden
- 2 Mähroboter
- Verglasung wurde sukzessive ausgetauscht gegen 2 -Schicht Wärmeschutzverglasung
...etc.
Lage
Das Haus liegt in einer ruhigen Seitenstraße von Barwedel im Landkreis Gifhorn.
Über die B248 erreicht man Wolfsburg und Gifhorn in wenigen Autominuten.
Im Ort gibt es einen Kindergarten, Grundschule und weiterführenden Schulen befinden sich in den umliegenden Ortschaften bzw. in Gifhorn und Wolfsburg.
Busverbindungen nach Ehra, Weyhausen, Fallersleben und Rühen sind ebenfalls gegeben.
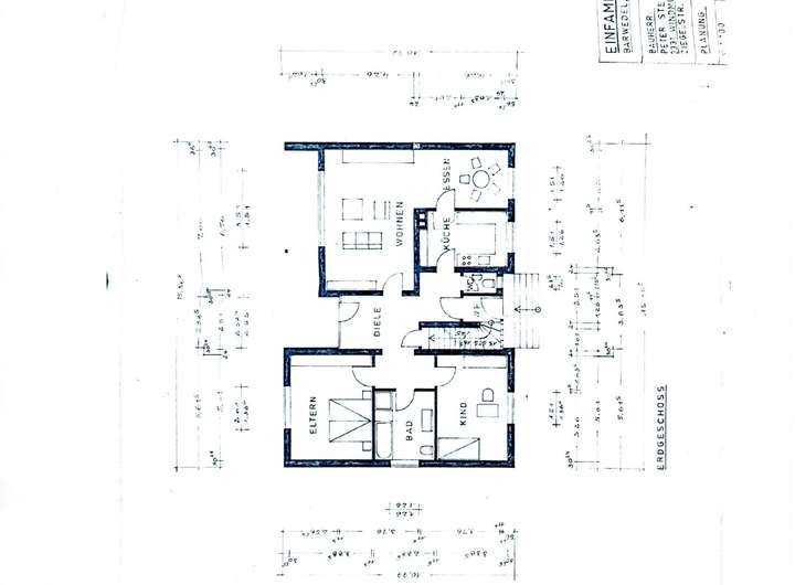
Grundriss
Grundriss Erdgeschoss
>
>
Grundriss Dachgeschoss
>
>
Grundriss Kellergeschoss
>
>
Adresse
Hagenring 9, 38476 Barwedel
Interessante Orte
Preis- und Lageinformationen
Preistrend für Bestandsimmobilien in Barwedel