Lassen Sie sich von diesem Wohntraum überzeugen. Diese Neubau Bungalow wird Ende 2026 von einem renommierten Bauunternehmen aus der Region auf einem zentral gelegenen Grundstück in Ostrhauderfehn schlüsselfertig errichtet. Die äußerst ansprechende Raumaufteilung sowie die bodentiefen Fenster, lassen die ca. 76qm große Wohnfläche lichtdurchflutet und weitläufig erscheinen. Das pflegeleicht angelegte Grundstück bemisst ca. 320qm. Jede Bungalowhaushälfte verfügt über einen eigenen Carport und eine nach Westen ausgerichtete Terrasse. Die Küche ist als offene Wohnküche geplant und lädt zum gemeinschaftlichen Kochen und Verweilen ein. Der über die Bodentreppe erreichbare Dachboden ist ebenfalls sehr großflächig und bietet Ihnen ausreichend Abstellmöglichkeiten. Die Immobilie wird nach den aktuellen Richtlinien energetischen Richtlinien (ehemals KFW55 Haus) erstellt. Standardmäßig verfügt der Bungalow über folgende Ausstattung: Elektrische Jalousien, Dreifachverglaste Fenster, Fußbodenheizung, Raufaser tapeziert, hochwertige Fliesen etc. Eine ausführliche Baubeschreibung erhalten Sie gerne auf Nachfrage. Sonderwünsche können gern gegen Aufpreis und sofern dies aufgrund des Baufortschrittes noch möglich ist, umgesetzt werden. Aufgrund der barrierefreien Anordnung der Räumlichkeiten eignet sich dieser Bungalow ideal als Altersruhesitz. Beheizt wird das Objekt durch eine Luft-Wärme-Pumpe. Ein Objekt für Menschen die das "ebenerdige Wohnen" bevorzugen. Zögern Sie nicht uns zu kontaktieren und vereinbaren Sie gerne einen Besichtigungstermin für ein baugleiches Musterhaus.
Ostrhauderfehn! Schlüsselfertige Neubau-Bungalow mit Terrasse und Gartenanlage in ruhiger Wohnlage!
26842 Ostrhauderfehn
Die vollständige Adresse der Immobilie erhalten Sie vom Anbieter.
Auf Karte anzeigen
Die vollständige Adresse der Immobilie erhalten Sie vom Anbieter.
Finanzierungszertifikat
In nur zwei Minuten zu Ihrem persönlichen Finanzierungszertifkat.
Infos
| Haustyp | Einfamilienhaus |
|---|---|
| Wohnfläche ca. | 76 m2 |
| Grundstücksfläche | 350 m2 |
| Bezugsfrei ab | Nach Absprache |
| Zimmer | 3 |
| Schlafzimmer | 2 |
| Badezimmer | 1 |
Kosten
| Kaufpreis |
240.000 € |
|---|---|
| Provision |
Die Maklerprovision beträgt für den Käufer 3,57 % vom Kaufpreis inkl. ges. MwSt.. |
Finanzierungsrechner:
Kaufpreis:
600.000 €
Eigenkapital:
600.000 €
Monatliche Rate
0 €
Effektiver Jahreszins
0 %
Sollzinsbindung
10 Jahre
Bausubstanz & Energieausweis
| Baujahr | 2026 |
|---|---|
| Objektzustand | Erstbezug |
| Heizungsart | Zentralheizung |
| Energieausweis | liegt vor |
| Energieausweistyp | Bedarfsausweis |
| Energieverbrauchskennwert | 45,2 kWh/(m²*a) |
| Energieeffizienzklasse | A |
45,2
kWh/(m²*a)
Energieeffizienzklasse A
- A+
- A
- B
- C
- D
- E
- F
- G
- H
- 0
- 25
- 50
- 75
- 100
- 125
- 150
- 175
- 200
- 225
- >250
Beschreibung des Objekts
Ausstattung
Aufstellung der Besonderheiten:
-Schlüsselfertige Herstellung 2026
-Dreifachverglaste Fenster mit elektrischen Jalousien
-Fußbodenheizung komplett
-Hochwertige Fliesen
-Malerarbeiten (Raufaser)
-Terrasse und Einfahrt gepflastert
-KFW-Effizienzhaus 55 (ehemals)
-Luft/ Wasser Wärmepumpe - keine Gaskosten
-Carport-Einstellplatz
Lage
26842 Ostrhauderfehn (Ruhige, zentrale Wohnlage, gute Verkehrsanbindung zur B70, Nähe zur Stadt Leer, zahlreiche Einkaufsmöglichkeiten, Edeka, Aldi, Bäcker, Banken, Apotheken etc. in der Nähe)
Sonstige Angaben
Grundstück: ca. 350qm (Gepflasterte Auffahrt und Terrasse, Carport)
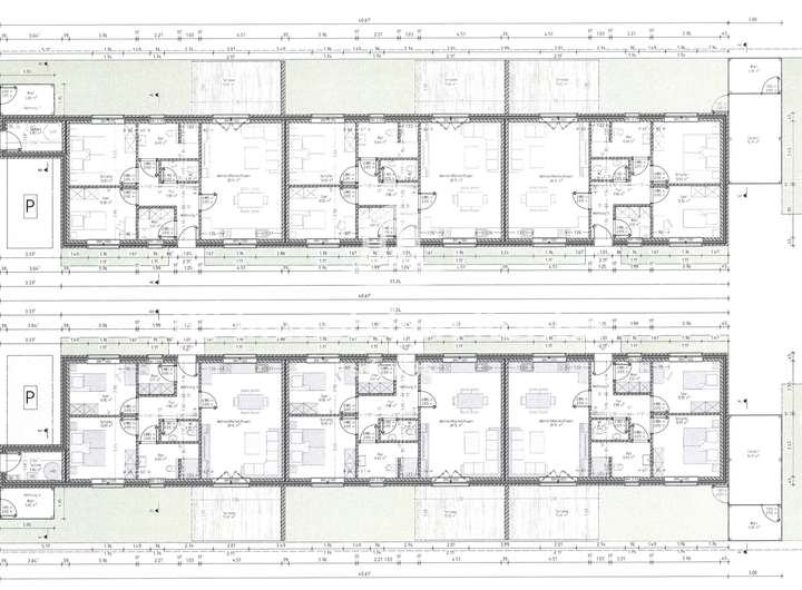
EG: Flur/Diele, Gäste WC, Duschbad mit WC, Gästezimmer, HWR, offener Wohn-/Essbereich mit Küchenanschlüssen und Zugang zur Terrasse, Abstellraum, Schlafzimmer
DG: Stauraum
Gesamt: Wohnfläche ca. 76qm
Grundriss
vorne
>
>
EG
>
>
Adresse
26842 Ostrhauderfehn
Interessante Orte
Preis- und Lageinformationen
Preistrend für Bestandsimmobilien in Ostrhauderfehn