Bei diesem Immobilienangebot handelt es sich um einen stilvollen Bungalow in bevorzugter Lage von Weddel. Das Haus wurde ca. 1972 auf einem ca. 376 m² großen Eigentumsgrundstück erbaut und verfügt über 4 Zimmer, eine Küche, ein Gäste-WC, ein innenliegendes Vollbad und einen Hauswirtschaftsraum verteilt auf einer Wohnfläche von ca. 143,63 m².
Das Haus überzeugt mit seiner stilvollen Ausstattung und seinem sehr gepflegten Zustand. Bei den Fenstern handelt es sich um doppelverglaste Kunststofffenster. Diese wurden bereits erneuert und sorgen aufgrund der Größe und Anzahl für die Helligkeit des Hauses. Zudem sind diese mit elektrische Rollläden versehen, welche zentral gesteuert werden können.
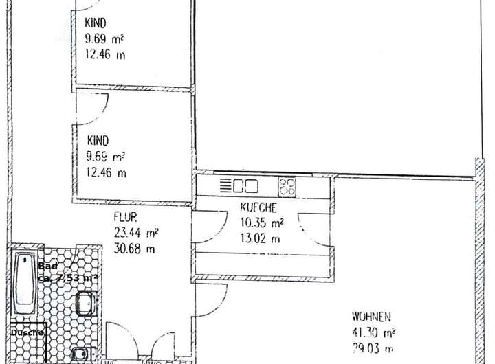
Der großzügige Wohn- und Essbereich bietet Zugang zum herrlichen Atrium, welches einen tollen Rückzugsort im Freien bietet, und den Terrassenbereich. Zudem ist die Küche angrenzend gelegen, sodass kurze Wege zum Essbereich gegeben sind. Ein Kaminofen sorgt für eine angenehme Wohlfühlatmosphäre an kalten Wintertagen. Das herrlich große Entrée bietet ausreichend Platz für eine Garderobe. Ein modernisiertes Gäste-WC mit Fenster rundet den Gästebereich ab.
Durch eine L-Form des Grundrisses wird der private Bereich getrennt. In diesem Bereich befinden sich ein großes Elternschlafzimmer mit ebenfalls Zugang zum Atrium sowie zwei gleichgroße Kinderzimmer. Das innenliegende Vollbad wurde bereits modernisiert.
Die Beheizung des Hauses erfolgt über eine Wärmepumpe. Das gesamte Haus ist mit einer geregeltes Be- und Entlüftungsanlage versehen, welche für ein angenehmes Raumklima sorgt. Ein Hauswirtschaftsraum bietet Platz für die Waschmaschine, einen Trockner sowie Stauraummöglichkeiten. Ein großer Carport sorgt für die trockene Unterstellung Ihres Autos.
Hier können Sie direkt einziehen. Verleihen Sie dem Bungalow lediglich Ihre persönliche Note und Los gehts!
Haben wir Ihr Interesse geweckt? Dann vereinbaren Sie heute noch einen Besichtigungstermin mit uns.
Bungalow mit besonderem Wohnkomfort und vielen Highlights in toller Lage von Weddel
38162 Cremlingen
Die vollständige Adresse der Immobilie erhalten Sie vom Anbieter.
Auf Karte anzeigen
Die vollständige Adresse der Immobilie erhalten Sie vom Anbieter.
Finanzierungszertifikat
In nur zwei Minuten zu Ihrem persönlichen Finanzierungszertifkat.
Infos
| Haustyp | Einfamilienhaus |
|---|---|
| Wohnfläche ca. | 143 m2 |
| Nutzfläche | 22 m2 |
| Grundstücksfläche | 376 m2 |
| Zimmer | 4 |
| Schlafzimmer | 3 |
| Badezimmer | 1 |
| Garage/Stellplatz | Carport |
| Anzahl Garage/Stellplatz | 2 |
Kosten
| Kaufpreis |
349.000 € |
|---|---|
| Provision |
3,57% inkl. gesetz. MwSt. für den Käufer |
Finanzierungsrechner:
Kaufpreis:
600.000 €
Eigenkapital:
600.000 €
Monatliche Rate
0 €
Effektiver Jahreszins
0 %
Sollzinsbindung
10 Jahre
Bausubstanz & Energieausweis
| Baujahr | 1972 |
|---|---|
| Objektzustand | Gepflegt |
| Heizungsart | Wärmepumpe |
| Wesentliche Energieträger | expose.parameter.energySourcesEnev2014.HEAT_SUPPLY |
Beschreibung des Objekts
Ausstattung
- moderne Einbauküche
- Westterrasse
- Ostterrasse
- herrliches Atrium
- Elektrik ca. 2002 erneuert
- Heizungsanlage Wärmepumpe (ca. 2002 erneuert)
- Dach neu eingedeckt ca. 2004
- doppelverglaste Kunststofffenster, teilweise abschließbare Griffoliven mit elektrischen Rollläden (ca. 2002, 2021)
- Kaminofen
- modernes, innenliegendes Vollbad
- modernisiertes Gäste-WC
- Fliesen, Parkett, Laminat
- geregelte Be- und Entlüftungsanlage
- Hauswirtschaftsraum mit Waschmaschinen- und Trockneranschluss
- Carport
- Gartenhaus
Lage
Idyllisch und trotzdem stadtnah! Dieser zum Verkauf stehende Bungalow befindet sich im beliebten Weddel (Cremlingen) umgeben von weiteren Einfamilienhäusern. Weddel ist ein Ortsteil der Gemeinde Cremlingen. In Weddel selbst finden Sie einen Nettomarkt, einen Dorfbäcker und eine Apotheke vor. Weitere Einkaufsmöglichkeiten befinden sich in Cremlingen und Volkmarode. In Volkmarode hat gerade erst ein großes Rewe Center eröffnet.
Kindertagesstätten sowie eine Grundschule befinden sich direkt im Ort. Weiterführende Schulen finden Sie in Braunschweig und Wolfenbüttel vor. Ein Allgemeinmediziner als auch Zahnarzt sind im Ort ansässig. Weitere Fachärzte sind mit ihren Praxen in Braunschweig und Wolfenbüttel vertreten.
Ein tolles Sportangebot beim VfR Weddel 1910 e.V. ist gegeben. Hier finden Sie zahlreiche Sportsparten, welche vom Kinderturnen über Aerobic bis zum Volleyball, Fußball jedem Familienglied seinen sportlichen Ausgleich bieten. Spaziergänge mit Familie, Freunden und Hund können Sie in dieser idyllischen Lage ausgiebig genießen.
Wem der Sinn nach Kultur steht findet ein breites Angebot in Braunschweig vor. Das aufwendig modernisierte Anton-Ulrich-Museum lädt u. a. zum Erkunden ein. Ein spaßiges Unterhaltungsprogramm bietet z.B. die Braunschweiger Komödie, das Braunschweiger Theater oder der ASTOR Filmpalast.
Über die K141 ist die Helmstedter Straße schnell erreicht, welche eine kurze Anbindung an die A39 liefert. Von hieraus erreichen Sie Wolfsburg und Salzgitter in Kürze. Auch eine schnelle Anbindung an die A36 Richtung Harz ist gegeben sowie an die A391, welche weitere Verbindungspunkte zur A2 Richtung Berlin/ Hannover schafft.
Sonstige Angaben
Alle Angaben in den Exposés sind ohne Gewähr und basieren ausschließlich auf Informationen, die uns von unserem jeweiligen Auftraggeber übermittelt wurden.
Die Besichtigungen können ausschließlich nach vorheriger Terminabsprache über unser Büro vereinbart werden. Alle Angaben nach bestem Wissen und laut Auskunft des Verkäufers. Das Exposé ist eine Vorabinformation. Für die Richtigkeit und Vollständigkeit der Angaben wird keine Gewähr bzw. Haftung übernommen. Als Rechtsgrundlage gilt allgemein der notariell abgeschlossene Kaufvertrag. Ein Zwischenverkauf und Irrtümer sind vorbehalten.
Außen - und Innenprovision jeweils 3,57% inkl. der gesetzl. MwSt. bezogen auf den Kaufpreis.
Grundriss
Grundriss
>
>
Adresse
38162 Cremlingen
Interessante Orte
Preis- und Lageinformationen
Preistrend für Bestandsimmobilien in Cremlingen