Willkommen in Ihrem zukünftigen Zuhause! Wir stellen Ihnen hier eine moderne und besondere Doppelhaushälfte aus dem Jahr 2025 vor. Das Haus befindet sich in einer ruhigen Wohngegend und bietet eine ideale Kombination aus Komfort und Moderne. 126m² Wohnfläche und circa 400m² Grundstück erwarten Sie! Beim Betreten des Hauses wird man von einem offenen Grundriss begrüßt, der ein helles und luftiges Ambiente schafft. Das Haus verfügt über insgesamt ein schönes Wohnzimmer mit offener Küche sowie einem WC und separaten Abstellraum im Erdgeschoss. Im Obergeschoss begegnen Sie 3 Schlafzimmern, die Rückzugsorte der Ruhe und Entspannung sind - sowie einem möglichen Büro bzw. Gästezimmer. Das Badezimmer auf der Etage ist mit einer Badewanne, WC und Dusche modern ausgestattet. Der Dachboden ist für das Lagern verschiedenster Alltagsgegenstände vorbereitet und über eine Bodentreppe im Flur zu erreichen. Der Garten ist pflegeleicht mit einer automatisch überdachten Terrasse angelegt und bietet genügend Platz für kleinere Aktivitäten, Ihre eigenen Gemüsegarten oder Blumenbeete. Beheizt wird das moderne Haus über eine Luft-Wärmepumpe - so sind Sie auch für die Zukunft sorgenfrei aufgestellt.
Moderne Doppelhaushälfte (Bj. 2025) mit Garten & Wärmepumpe!
38542 Leiferde
Die vollständige Adresse der Immobilie erhalten Sie vom Anbieter.
Auf Karte anzeigen
Die vollständige Adresse der Immobilie erhalten Sie vom Anbieter.

Finanzierungszertifikat
In nur zwei Minuten zu Ihrem persönlichen Finanzierungszertifkat.
Infos
Haustyp | Doppelhaushaelfte |
---|---|
Wohnfläche ca. | 126 m2 |
Grundstücksfläche | 400 m2 |
Bezugsfrei ab | sofort |
Zimmer | 5 |
Schlafzimmer | 4 |
Badezimmer | 2 |
Garage/Stellplatz | Garage |
Kosten
Kaufpreis |
439.000 € |
---|---|
Provision |
2,975% inkl. MwSt. Der Käufer zahlt an die Spies Immobilien 2 GmbH eine mit Abschluss des Kaufvertrages fällige Provision in Höhe von 2,975% des Kaufpreises inkl. der gesetzlichen Mehrwertsteuer (zurzeit 19 %). |
Finanzierungsrechner:
Kaufpreis:
600.000 €
Eigenkapital:
600.000 €
Monatliche Rate
0 €
Effektiver Jahreszins
0 %
Sollzinsbindung
10 Jahre
Bausubstanz & Energieausweis
Baujahr | 2025 |
---|---|
Objektzustand | Erstbezug |
Qualität der Austattung | Gehoben |
Heizungsart | Fußbodenheizung |
Energieausweis | liegt vor |
Energieausweistyp | Bedarfsausweis |
Energieverbrauchskennwert | 21,4 kWh/(m²*a) |
Energieeffizienzklasse | A+ |
21,4
kWh/(m²*a)
Energieeffizienzklasse A+
- A+
- A
- B
- C
- D
- E
- F
- G
- H
- 0
- 25
- 50
- 75
- 100
- 125
- 150
- 175
- 200
- 225
- >250
Beschreibung des Objekts
Lage
Die Doppelhaushälfte befindet sich in Leiferde und liegt in einer ruhigen und familienfreundlichen Umgebung, die sich ideal für ein angenehmes Wohnen eignet. Leiferde ist eine charmante Ortschaft im Landkreis Gifhorn in Niedersachsen, die eine perfekte Mischung aus ländlicher Idylle und guter Anbindung an städtische Zentren bietet. Die Umgebung ist besonders bei Familien und Ruhesuchenden beliebt. Hier genießen Sie die Nähe zur Natur, mit zahlreichen Spazier- und Radwegen, die zu Ausflügen ins Grüne einladen. Trotz der ländlichen Lage ist Leiferde hervorragend an die umliegenden Städte angebunden. Die Stadt Gifhorn ist in kurzer Zeit erreichbar und auch die Städte Wolfsburg und Braunschweig sind weniger als 35 Fahrtminuten entfernt. In Leiferde selbst finden Sie alle wichtigen Einrichtungen des täglichen Bedarfs. Einkaufsmöglichkeiten, Schulen, Kindergärten und medizinische Versorgung sind bequem erreichbar. Zudem bietet die Region ein reges Vereinsleben und vielfältige Freizeitmöglichkeiten.
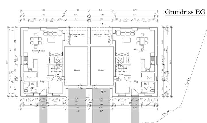
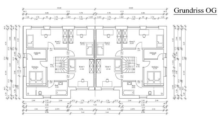
Grundriss
Grundriss EG
>

Grundriss OG
>

Adresse
38542 Leiferde
Interessante Orte
Preis- und Lageinformationen
Preistrend für Bestandsimmobilien in Leiferde