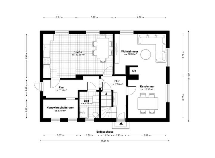
Das im Jahr 1964 errichtete Einfamilienhaus bietet eine Wohnfläche von ca. 120m² und steht auf einem Grundstück von insgesamt 552m² . Über den Eingangsbereich gelangt man in den geräumigen Flur des Hauses, von dem aus alle Räume des Erdgeschosses erreichbar sind. Auf der rechten Seite befindet sich das großzügige Wohn- und Esszimmer, das durch seine Größe vielfältige Gestaltungsmöglichkeiten bietet und über einen offenen Kamin verfügt, der eine gemütliche Atmosphäre schafft. Entlang des Flures gelangt man zur geräumigen Küche mit ausreichend Platz für einen Esstisch. Zusätzlich befinden sich im Erdgeschoss ein Duschbad sowie ein Hauswirtschaftsraum. Ein Zugang im hinteren Teil des Hauses führt direkt in den Garten.
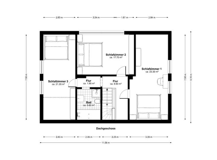
Im Obergeschoss stehen drei Schlafräume sowie ein Vollbad mit Fenster zur Verfügung. Der Dachboden bietet zusätzlichen Stauraum und rundet das Platzangebot ideal ab.
Das Haus ist teilunterkellert; hier befindet sich unter anderem auch die Heizungsanlage.
Im Außenbereich verfügt die Immobilie über eine Garage mit angrenzender Werkstatt sowie einen überdachten Freisitz mit Außenkamin – ideal für gemütliche Stunden im Freien.
Lemwerder | Charmantes Einfamilienhaus mit Garage auf attraktivem Eckgrundstück
27809 Lemwerder
Die vollständige Adresse der Immobilie erhalten Sie vom Anbieter.
Auf Karte anzeigen
Die vollständige Adresse der Immobilie erhalten Sie vom Anbieter.
Finanzierungszertifikat
In nur zwei Minuten zu Ihrem persönlichen Finanzierungszertifkat.
Infos
| Haustyp | Einfamilienhaus |
|---|---|
| Etagenzahl | 2 |
| Wohnfläche ca. | 120 m2 |
| Nutzfläche | 30,46 m2 |
| Grundstücksfläche | 552 m2 |
| Bezugsfrei ab | ab sofort |
| Zimmer | 4 |
| Schlafzimmer | 3 |
| Badezimmer | 2 |
| Garage/Stellplatz | Garage |
| Anzahl Garage/Stellplatz | 1 |
Kosten
| Kaufpreis |
235.000 € |
|---|---|
| Provision |
3,57% (inkl. 19% MwSt.) vom beurkundeten Kaufpreis (Käuferprovision) |
Finanzierungsrechner:
Kaufpreis:
600.000 €
Eigenkapital:
600.000 €
Monatliche Rate
0 €
Effektiver Jahreszins
0 %
Sollzinsbindung
10 Jahre
Bausubstanz & Energieausweis
| Baujahr | 1964 |
|---|---|
| Heizungsart | Zentralheizung |
| Wesentliche Energieträger | Gas |
| Energieausweis | liegt vor |
| Energieausweistyp | Bedarfsausweis |
| Energieverbrauchskennwert | 324,0 kWh/(m²*a) |
| Energieeffizienzklasse | H |
324,0
kWh/(m²*a)
Energieeffizienzklasse H
- A+
- A
- B
- C
- D
- E
- F
- G
- H
- 0
- 25
- 50
- 75
- 100
- 125
- 150
- 175
- 200
- 225
- >250
Beschreibung des Objekts
Ausstattung
+ Viessmann Gas-Heizung mit Warmwasseraufbereitung (1995)
+ 2-fach verglaste Holzrahmenfenster (1982/1991/1996)
+ Außenrollläden
+ Teilkeller mit weiterem Kreichkeller
+ Sicherungskasten mit Schaltautomaten
+ Elektrik voraussichtlich überwiegend 3-adrig
+ Einbauküche mit Miele-Einbaugeräten
+ Duschbad im Erdgeschoss
+ Vollbad im Obergeschoss
+ Offener Kamin im Erdgeschoss
+ Dachboden als Abstellraum nutzbar
+ 1 Garage mit Abstellraum/Werkstatt
+ Überdachter Freisitz im Garten
Lage
Die Immobilie befindet sich in einer ruhigen und gewachsenen Wohngegend von Lemwerder, einer beliebten Gemeinde im Landkreis Wesermarsch. Das Umfeld ist geprägt von gepflegten Einfamilienhäusern und viel Grün, was eine angenehme und familienfreundliche Atmosphäre schafft.
Einkaufsmöglichkeiten für den täglichen Bedarf, wie Supermärkte, Bäckereien und Apotheken, sind in wenigen Minuten erreichbar. Auch Kindergärten, Grund- und weiterführende Schulen befinden sich in der näheren Umgebung, was die Lage besonders attraktiv für Familien macht.
Die Anbindung an den öffentlichen Nahverkehr ist sehr gut: Busverbindungen führen regelmäßig in die Ortsmitte sowie in die umliegenden Gemeinden. Über die nahegelegene Fähre gelangen Sie zudem schnell nach Bremen-Vegesack, wodurch sich auch Berufspendler über kurze Wege freuen dürfen. Mit dem Auto erreichen Sie die Bremer Innenstadt in rund 30 Minuten, ebenso wie die Städte Delmenhorst und Oldenburg über das gut ausgebaute Straßennetz.
Freizeit- und Sportmöglichkeiten bietet Lemwerder in vielfältiger Form – von Spaziergängen entlang der Weser über Radwege bis hin zu Sportvereinen und kulturellen Angeboten. Insgesamt verbindet die Lage ruhiges Wohnen im Grünen mit einer sehr guten Infrastruktur und einer hervorragenden regionalen Anbindung.
Sonstige Angaben
Wir weisen darauf hin, dass die von uns weitergegebenen Objektinformationen, Unterlagen, Pläne etc. vom Auftraggeber stammen. Eine Haftung für die Richtigkeit oder Vollständigkeit der Angaben übernehmen wir nicht. Es obliegt daher unseren Kunden, die darin enthaltenen Objektinformationen und Angaben auf ihre Richtigkeit hin zu überprüfen. Alle Immobilienangebote sind freibleibend und vorbehaltlich Irrtümer, Zwischenverkauf- und Vermietung oder sonstiger Zwischenverwertung.
Geldwäsche: Die Rutz Immobilien GmbH ist als Immobilienmaklerunternehmen gemäß § 2 Abs. 1 Nr. 14 und § 11 Abs. 1, 2 des Geldwäschegesetzes (GwG) verpflichtet, die Identität ihrer Vertragspartner zu überprüfen, sobald eine Geschäftsbeziehung entsteht oder ernsthaftes Interesse an einem Immobilienkaufvertrag besteht.
Dafür erfassen wir nach § 11 Abs. 4 GwG die relevanten Daten Ihres Personalausweises (bei natürlichen Personen), beispielsweise durch eine Kopie. Handelt es sich um eine juristische Person, ist ein Handelsregisterauszug erforderlich, aus dem der wirtschaftlich Berechtigte hervorgeht.
Das Geldwäschegesetz verpflichtet uns, diese Unterlagen für einen Zeitraum von fünf Jahren aufzubewahren. Zudem sind Sie als unser Vertragspartner gemäß § 11 Abs. 6 GwG zur Mitwirkung verpflichtet.
Grundriss
Erdgeschoss
>
>
Obergeschoss
>
>
Adresse
27809 Lemwerder
Interessante Orte
Preis- und Lageinformationen
Preistrend für Bestandsimmobilien in Lemwerder