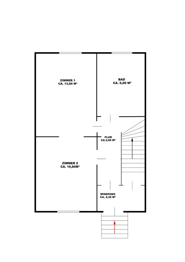
Dieses in 2011 sanierte Zweifamilienhaus befindet sich in der Bremer Neustadt und bietet zwei schöne Wohnungen, welche sich über vier Etagen verteilen. Im Erdgeschoss und Untergeschoss befindet sich eine gepflegte 2-Zimmer-Wohnung. Diese bietet auf ca. 51,40 m² Wohnfläche viel Platz. Neben einem großen Wohnzimmer und einem geräumigen Schlafzimmer verfügt die Wohnung über eine gepflegte Einbauküche im Untergeschoss. Von hier aus bietet sich der Zutritt auf einer nach Süden ausgerichteten 40 m² Terrasse zur Alleinnutzung. Ein neuwertiges Badezimmer aus dem Jahr 2011 verfügt über moderne Armaturen sowie eine Badewanne. Vermietet ist diese Wohnung für eine Miete von € 7.080, -- p.a. zzgl. NK. Die große in 2018 sanierte 5-Zimmer-Wohnung erstreckt sich bis ins Dachgeschoss und verteilt sich über 2 Etagen. Das 1. Obergeschoss ist mit drei Zimmern, sowie einer Küche aufgeteilt. Im 2 Obergeschoss befinden sich weitere 2 Zimmer sowie das neuwertige Badezimmer mit ebenerdiger Dusche. Diese Wohnung ist für € 9.120,-- p.a. vermietet. Das Objekt bietet für beide Wohnungen einen separaten Kellerraum im Untergeschoss. Ebenfalls ist ein Gemeinschaftsraum für die Heizungsanlagen sowie für die Zähler für Strom und Gas vorhanden. 2012 wurden diverse Renovierungs- und Sanierungsarbeiten durchgeführt. - neue Leitungen Wasser, Gas und Strom - 2 neue Gasbrennwertthermen (pro Einheit eine) - neue Böden - neue Bäder - neue Küche - Maler und Tapezierarbeiten BITTE BEACHTEN SIE, DASS WIR NUR EXPOSÉS ONLINE VERSENDEN BEI VOLLSTÄNDIGER ANGABE DER ADRESSE UND TELEFONNUMMER!
Bremen-Neustadt: Renoviertes Zweifamilienhaus mit 5,15 Rendite
28199 Bremen
Die vollständige Adresse der Immobilie erhalten Sie vom Anbieter.
Auf Karte anzeigen
Die vollständige Adresse der Immobilie erhalten Sie vom Anbieter.

Finanzierungszertifikat
In nur zwei Minuten zu Ihrem persönlichen Finanzierungszertifkat.
Infos
Haustyp | Mehrfamilienhaus |
---|---|
Etagenzahl | 2 |
Wohnfläche ca. | 130 m2 |
Grundstücksfläche | 120 m2 |
Bezugsfrei ab | sofort |
Zimmer | 8 |
Kosten
Kaufpreis |
315.000 € |
---|---|
Provision |
7,14 inkl. MwSt. ja |
Mieteinnahmen | 1.350 € |
Finanzierungsrechner:
Kaufpreis:
600.000 €
Eigenkapital:
600.000 €
Monatliche Rate
0 €
Effektiver Jahreszins
0 %
Sollzinsbindung
10 Jahre
Bausubstanz & Energieausweis
Baujahr | 1973 |
---|---|
Objektzustand | Modernisiert |
Heizungsart | Gas-Heizung |
Wesentliche Energieträger | Gas |
Energieausweis | liegt vor |
Energieausweistyp | Bedarfsausweis |
Energieverbrauchskennwert | 112,6 kWh/(m²*a) |
Energieeffizienzklasse | D |
112,6
kWh/(m²*a)
Energieeffizienzklasse D
- A+
- A
- B
- C
- D
- E
- F
- G
- H
- 0
- 25
- 50
- 75
- 100
- 125
- 150
- 175
- 200
- 225
- >250
Beschreibung des Objekts
Ausstattung
- 2 Wohnungen - 7 Zimmer - 1 Balkon, 1 Terrasse - 2 Brennwerttherme aus 2012 - neue Leitungen in 2012 Gas, Wasser, Strom - neue Bäder
Lage
Dieses schöne Zweifamilienhaus befindet sich in einer ruhigen Seitenstraße im Bremens Stadtteil Neustadt-Neuenland. In unmittelbarer Nähe zur Immobilie findet sich für den Bedarf des täglichen Lebens alles, was das Herz begehrt: eine abwechslungsreiche Gastronomie, Einkaufsläden, Sport- und Freizeiteinrichtungen, Banken, Apotheken. Auch für den Nachwuchs ist mit einer Kindertagesstätte und Schulen gesorgt. Fußläufig gelegen sind Haltestellen für Bus und Bahn, sodass eine schnelle Erreichbarkeit von Innenstadt und Bremer Hbf gewährleistet ist. Auch mit dem Auto haben Sie eine hervorragende Anbindung. So sind Sie nicht nur in ca. 10 Minuten am Hauptbahnhof, sondern auch schnell über die A1 in Richtung Hamburg, Oldenburg oder Osnabrück unterwegs.
Sonstige Angaben
GELDWÄSCHE: Als Immobilienmaklerunternehmen die SGB-Immobilien GmbH nach § 2 Abs. 1 Nr. 14 und § 11 Abs. 1, 2 Geldwäschegesetz (GwG) dazu verpflichtet, bei der Begründung einer Geschäftsbeziehung die Identität des Vertragspartners festzustellen und zu überprüfen, bzw. sobald ein ernsthaftes Interesse an der Durchführung des Immobilienkaufvertrages besteht. Hierzu ist es erforderlich, dass wir nach § 11 Abs. 4 GwG die relevanten Daten Ihres Personalausweises festhalten (wenn Sie als natürliche Person handeln) – beispielsweise mittels einer Kopie. Bei einer juristischen Person benötigen wir eine Kopie des Handelsregisterauszugs, aus welchem der wirtschaftlich Berechtigte hervorgeht. Das Geldwäschegesetz sieht vor, dass der Makler die Kopien bzw. Unterlagen fünf Jahre aufbewahren muss. Als unser Vertragspartner haben Sie auch ein Mitwirkungspflicht nach § 11 Abs. 6 GwG. PROVISIONSHINWEIS: Mit der Anfrage bei und durch Inanspruchnahme der Dienstleistung der Firma SGB-Immobilien GmbH, wird ein Maklervertrag geschlossen. Sofern es durch die Tätigkeit der Firma SGB-Immobilien GmbH zu einem wirksamen Hauptvertrag mit der Eigentümerseite kommt, hat der Interessent bei Abschluss eines KAUFVERTRAGES die im Exposé angegebene Provision/Maklercourtage an die SGB-Immobilien GmbH gegen Rechnung zu zahlen.
Grundriss
Souterrain
>

Erdgeschoss
>

1. Obergeschoss
>

Dachgeschoss
>

Adresse
28199 Bremen
Interessante Orte
Preis- und Lageinformationen
Preistrend für Bestandsimmobilien in Neuenland