In attraktiver Lage zentral in Mörfelden liegt dieses ca. 1903 erbaute Einfamilienhaus mit kleinem Nebenhaus von ca. 1925 sowie einem ca. 1950 erstellten Hinterhaus (auf eigenem Grundstück) – insgesamt drei eigenständige Wohneinheiten. Nur eine Einheit ist derzeit noch vermietet.
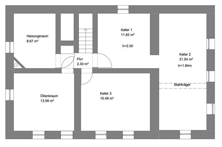
Vorder- und Nebenhaus sind voll unterkellert.
Zwischen den Häusern befindet sich ein großer, schön bepflanzter Innenhof - dieser dient den einzelnen Wohneinheiten als Terrasse in schöner, privater Umgebung.
Eine Garage mit elektrischem Rolltor und einem davor befindlichem Stellplatz sowie optional einem weiteren Stellplatz im hinteren Bereich des Grundstücks gehören mit zum Angebot.
Attraktives Ensemble mit 3 Wohneinheiten in Mörfelden
64546 Mörfelden-Walldorf
Die vollständige Adresse der Immobilie erhalten Sie vom Anbieter.
Auf Karte anzeigen
Die vollständige Adresse der Immobilie erhalten Sie vom Anbieter.
Finanzierungszertifikat
In nur zwei Minuten zu Ihrem persönlichen Finanzierungszertifkat.
Infos
| Haustyp | Mehrfamilienhaus |
|---|---|
| Wohnfläche ca. | 181 m2 |
| Nutzfläche | 130,72 m2 |
| Grundstücksfläche | 474 m2 |
| Bezugsfrei ab | kurzfristig |
| Zimmer | 11 |
| Schlafzimmer | 7 |
| Badezimmer | 3 |
| Garage/Stellplatz | Garage |
| Anzahl Garage/Stellplatz | 3 |
Kosten
| Kaufpreis |
650.000 € |
|---|---|
| Provision |
5,95% des Kaufpreises inkl. 19% MwSt |
Finanzierungsrechner:
Kaufpreis:
600.000 €
Eigenkapital:
600.000 €
Monatliche Rate
0 €
Effektiver Jahreszins
0 %
Sollzinsbindung
10 Jahre
Bausubstanz & Energieausweis
| Baujahr | 1903 |
|---|---|
| Letzte Sanierung | 2016 |
| Objektzustand | Gepflegt |
| Qualität der Austattung | Normal |
| Heizungsart | Zentralheizung |
| Wesentliche Energieträger | Öl |
| Energieausweis | liegt vor |
| Energieausweistyp | Bedarfsausweis |
| Energieverbrauchskennwert | 259,6 kWh/(m²*a) |
Beschreibung des Objekts
Ausstattung
Das Wichtigste in Kürze:
- 3 separate Wohneinheiten
- zwei Grundstücke
- gemeinsamer Innenhof
- Garten
- Überdachter Freisitz
- gemeinsame Heizung (Öl - ca. 2015)
- Garage mit elektr. Tor + davorliegendem Stellplatz
- weiterer PKW-Stellplatz (im hinteren Bereich des Grundstücks)
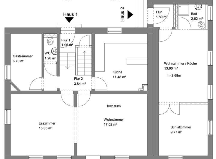
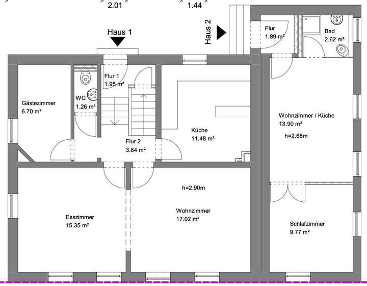
Aufteilung Haupthaus:
Hochparterre: 3 Zimmer, Küche, Gäste-WC
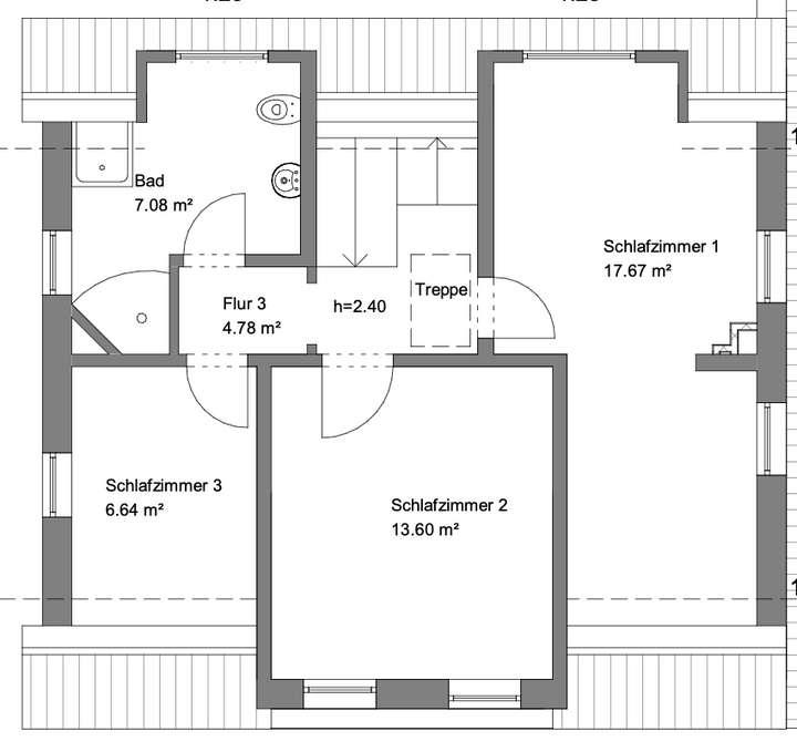
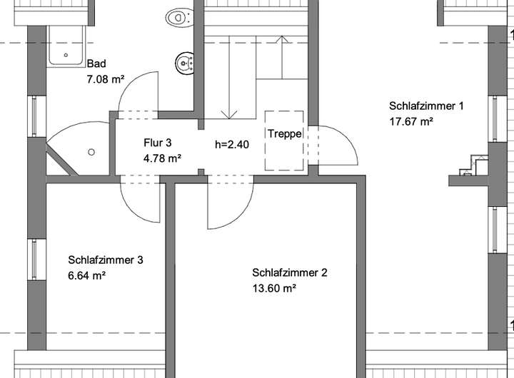
1. OG: 3 Zimmer, Tageslichtbad mit Dusche und Wanne
Wohnfläche: Ca. 108 m²
Aufteilung Nebenhaus:
2 Zimmer, Küchenbereich, Tageslichtbad mit Dusche, Windfang
Wohnfläche: Ca. 28 m²
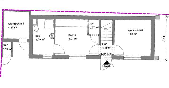
Aufteilung Hinterhaus:
Parterre: Eingangsbereich, Küche, Tageslichtbad mit Dusche, 1 Zimmer
1. OG: 2 Zimmer
Wohnfläche: Ca. 46 m²
Größere Sanierungsarbeiten der letzten Jahre:
ca. 2015: Erneuerung Heizanlage (Zentralheizung für alle Wohneinheiten)
ca. 2006: Neue Heizungsleitungen inkl. Dämmung
ca. 2010: Neuer Öltank (Haase)
ca. 2016: Erneuerung Dach Hinterhaus
2008: Neue Haustüren
1997 - 2005: Neue Fenster (außer Hinterhaus) - im Haupthaus EG mit elektr. Rollläden
1997: 2 neue Dachgauben Haupthaus Westseite
ca. 1997: Kompletterneuerung Bad + Gäste-WC Haupthaus
ca. 1997-2000: Teilerneuerung der Elektrik im Keller (Haupthaus)
Lage
Mörfelden-Walldorf ist eine beliebte und gesuchte Wohnlage für Kaufinteressenten, die die Nähe zu den Großstädten der Umgebung suchen, aber trotzdem „im Grünen“ wohnen möchten. In nahezu gleicher Entfernung von Frankfurt und Darmstadt sowie in der Nähe zum Flughafen Frankfurt gelegen, zeichnet sich Mörfelden-Walldorf dennoch durch eine vergleichsweise ruhige Lage aus. Eine hervorragende Anbindung an den öffentlichen Nahverkehr mit je einer S-Bahnstation in den Ortsteilen Mörfelden und Walldorf (S7 nach Frankfurt bzw. Groß-Gerau/Mannheim), eine in engem Takt verkehrende Buslinie zum Frankfurter Flughafen, ferner nach Darmstadt und Rüsselsheim sowie die Nähe zu den Autobahnen A5/A3/A67 ist gegeben. Ein vielfältiges und qualitativ hochwertiges Angebot an Gastronomie und Handel ist vorhanden, ebenso mehrere Kindergärten und Schulen. Der umgebende Wald - u.a. mit dem Naturschutzgebiet Mönchbruch - bietet eine hervorragende Basis für Erholung und Freizeitgestaltung, das Mörfelder Waldschwimmbad sowie der Walldorfer Badesee runden das vielfältige Freizeit- und Sportangebot ab.
Sonstige Angaben
Bitte beachten Sie: Unser Angebot erfolgt aufgrund der uns vom Verkäufer bzw. Dritten gegebenen Auskünfte. Eine Haftung für die Richtigkeit und Vollständigkeit können wir bei aller Sorgfalt nicht übernehmen.
Grundriss
Keller Haupthaus
>
>
1. OG Haupthaus
>
>
EG Haupt- + Nebenhaus
>
>
EG Hinterhaus
>
>
1. OG Hinterhaus
>
>
Flächenplan Grundstück
>
>
Adresse
64546 Mörfelden-Walldorf
Interessante Orte
Preis- und Lageinformationen
Preistrend für Bestandsimmobilien in Mörfelden-Walldorf