Das freistehende Einfamilienhaus wurde 1969 erbaut und über die Jahre mit viel Liebe zum Detail modernisiert und erweitert. Auf einer Wohnfläche von rund 140m² bietet das Haus großzügigen Raum für Familien, die Wert auf Komfort und Individualität legen.
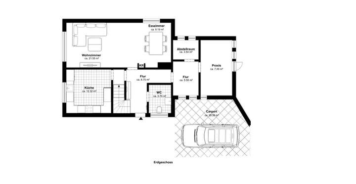
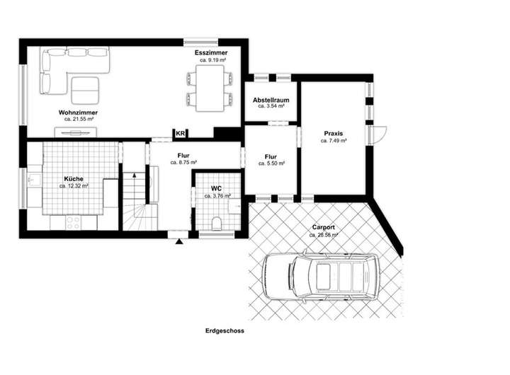
Bereits beim Betreten des Hauses wird deutlich, das viel Wert auf eine moderne und wohnliche Atmosphäre gelegt wird. Im Erdgeschoss erwartet Sie ein heller Eingangsbereich, der in das lichtdurchflutete Wohn- und Esszimmer mit Kaminofen übergeht. Die moderne Küche ist mit hochwertigen Geräten ausgestattet und bietet Ihnen einen Tresen mit Blick in das Wohnzimmer. Ebenfalls im Erdgeschoss befinden sich ein stilvoll modernisiertes Gäste-WC, ein kleiner Vorratsraum sowie ein derzeit gewerblich genutzter Praxisraum mit separatem Zugang.
Im Obergeschoss setzt sich das großzügige Raumkonzept fort. Hier stehen zwei Schlafzimmer sowie ein helles, modern ausgestattetes Badezimmer mit Doppelwaschtisch, bodentiefer Dusche und viel Platz zur Verfügung. Das Ankleidezimmer vor dem Schlafzimmer bietet zusätzlichen Stauraum und führt in das ausgebaute Dachgeschoss, das derzeit als Büro genutzt wird.
Der Teilkeller beherbergt die Haustechnik: eine moderne Hybridheizung in Kombination mit einer Wärmepumpe, einen Warmwasserspeicher (200 l), die Photovoltaikanlage (6 kW) mit Speicher sowie Anschlüsse für Waschmaschine und Trockner.
Das Grundstück mit 499m² ist liebevoll angelegt und überzeugt mit einem harmonischen Außenbereich. Der Garten bietet einen Swimming-Pool mit Terrasse, einen überdachten Terrassenbereich und einen Sommer-/Wintergarten mit Outdoor-Küchenbereich. Im hinteren Teil des Carports befindet sich ein geschlossener Abstellraum für Fahrräder, Gartenmöbel und Pooltechnik.
Dieses Haus vereint Wohnkomfort, Energieeffizienz und individuelle Gestaltung in einer ruhigen, familienfreundlichen Lage – ideal für alle, die die ein liebevoll gepflegtes Zuhause mit besonderem Charme suchen.
Delmenhorst-Bungerhof | Modernisiertes Einfamilienhaus mit viel Platz und schöner Außenanlage
27753 Delmenhorst
Die vollständige Adresse der Immobilie erhalten Sie vom Anbieter.
Auf Karte anzeigen
Die vollständige Adresse der Immobilie erhalten Sie vom Anbieter.
Finanzierungszertifikat
In nur zwei Minuten zu Ihrem persönlichen Finanzierungszertifkat.
Infos
| Haustyp | Einfamilienhaus |
|---|---|
| Etagenzahl | 3 |
| Wohnfläche ca. | 137 m2 |
| Nutzfläche | 28,56 m2 |
| Grundstücksfläche | 499 m2 |
| Bezugsfrei ab | 01/2026 |
| Zimmer | 5 |
| Schlafzimmer | 2 |
| Badezimmer | 1 |
| Garage/Stellplatz | Garage |
| Anzahl Garage/Stellplatz | 1 |
Kosten
| Kaufpreis |
399.000 € |
|---|---|
| Provision |
3,57% (inkl. 19% MwSt.) vom beurkundeten Kaufpreis (Käuferprovision) |
Finanzierungsrechner:
Kaufpreis:
600.000 €
Eigenkapital:
600.000 €
Monatliche Rate
0 €
Effektiver Jahreszins
0 %
Sollzinsbindung
10 Jahre
Bausubstanz & Energieausweis
| Baujahr | 1969 |
|---|---|
| Objektzustand | Modernisiert |
| Qualität der Austattung | Gehoben |
| Heizungsart | Wärmepumpe |
| Energieausweis | liegt vor |
| Energieausweistyp | Bedarfsausweis |
| Energieverbrauchskennwert | 79,1 kWh/(m²*a) |
| Energieeffizienzklasse | C |
79,1
kWh/(m²*a)
Energieeffizienzklasse C
- A+
- A
- B
- C
- D
- E
- F
- G
- H
- 0
- 25
- 50
- 75
- 100
- 125
- 150
- 175
- 200
- 225
- >250
Beschreibung des Objekts
Ausstattung
+ 2-fach verglaste Holzrahmenfenster
+ manuelle Rollläden, vereinzelt elektrisch
+ Hybridheizung in Kombination von Gas-Heizung (2008) u. Wärmepumpe (2024)
+ 200l Warmwasserspeicher
+ Photovoltaikanlage mit 6kW-Speicher
+ Fußbodenheizung in Küche, Gäste-WC u. Badezimmer (OG)
+ Kaminofen mit 8KW
+ Dacheindeckung aus dem Baujahr 1969
+ Anbau 2007
+ Saniertes Duschbad mit Fußbodenheizung, Fenster und ebenerdiger Dusche
+ Gäste-WC
+ Swimming-Pool mit Heizsystem
+ Sommer-/Wintergarten
+ Teilüberdachte Terrasse
+ Fahrradraum
+ Garage mit elektrischem Tor
+ Carport mit Dachboden
+ Teilkeller
+ vollständig eingezäuntes Grundstück
+ Glasfaseranschluss ist beantragt
Lage
Die Immobilie befindet sich im Delmenhorster Stadtteil Bungerhof, unweit der Schönemoorer Straße. Die beliebte Wohnlage überzeugt durch eine klassische und gewachsene Struktur mit Einfamilienhäusern und Doppelhaushälften sowie einer sehr guten Anbindung an alle Einrichtungen des täglichen Bedarfs.
Entlang der Schönemoorer Straße und der Stedinger Straße finden sich diverse Einkaufsmöglichkeiten – von Discountern und Supermärkten über Bäckereien und Einzelhändler bis hin zu Ärzten, Friseuren und weiteren Dienstleistern.
Für Familien bietet Delmenhorst ein breites Freizeitangebot mit Jugendtreffs, Spielplätzen und Sportvereinen. Kindergärten, Grundschulen und weiterführende Schulen sind in der Umgebung vorhanden und lassen sich in wenigen Minuten bequem mit dem Auto, dem Fahrrad oder dem Schulbus erreichen. Eine Bushaltestelle befindet sich in der Scheffelstraße, nur wenige Gehminuten entfernt.
Darüber hinaus profitieren Sie von der guten Verkehrsanbindung: Über die A28 erreichen Sie schnell Bremen und Oldenburg, während die A1 in Richtung Hamburg und Osnabrück führt. Der Bahnhof Delmenhorst bietet regelmäßige Verbindungen mit der Deutschen Bahn und der NordWestBahn. Auch eine Busverbindung in Richtung Bremen-Huchting steht am ZOB zur Verfügung.
Sonstige Angaben
Wir weisen darauf hin, dass die von uns weitergegebenen Objektinformationen, Unterlagen, Pläne etc. vom Auftraggeber stammen. Eine Haftung für die Richtigkeit oder Vollständigkeit der Angaben übernehmen wir nicht. Es obliegt daher unseren Kunden, die darin enthaltenen Objektinformationen und Angaben auf ihre Richtigkeit hin zu überprüfen. Alle Immobilienangebote sind freibleibend und vorbehaltlich Irrtümer, Zwischenverkauf- und Vermietung oder sonstiger Zwischenverwertung.
Geldwäsche: Die Rutz Immobilien GmbH ist als Immobilienmaklerunternehmen gemäß § 2 Abs. 1 Nr. 14 und § 11 Abs. 1, 2 des Geldwäschegesetzes (GwG) verpflichtet, die Identität ihrer Vertragspartner zu überprüfen, sobald eine Geschäftsbeziehung entsteht oder ernsthaftes Interesse an einem Immobilienkaufvertrag besteht.
Dafür erfassen wir nach § 11 Abs. 4 GwG die relevanten Daten Ihres Personalausweises (bei natürlichen Personen), beispielsweise durch eine Kopie. Handelt es sich um eine juristische Person, ist ein Handelsregisterauszug erforderlich, aus dem der wirtschaftlich Berechtigte hervorgeht.
Das Geldwäschegesetz verpflichtet uns, diese Unterlagen für einen Zeitraum von fünf Jahren aufzubewahren. Zudem sind Sie als unser Vertragspartner gemäß § 11 Abs. 6 GwG zur Mitwirkung verpflichtet.
Grundriss
Erdgeschoss
>
>
Obergeschoss
>
>
Adresse
27753 Delmenhorst
Interessante Orte
Preis- und Lageinformationen
Preistrend für Bestandsimmobilien in Bungerhof