Das geplante Fertighaus von LivingHaus in Sehnde ist ein modernes Meisterwerk, das nach deinen individuellen Wünschen und Vorstellungen gestaltet wird. Mit einer großzügigen Wohnfläche von 110,44 m² und einem durchdachten Grundriss ist dieser Bungalow mit Flachdach nicht nur ein architektonisches Highlight, sondern auch ein Ort, an dem du und deine Familie sich rundum wohlfühlen können. Der an den Bauhausstil erinnernde Entwurf überzeugt durch klare Linien und eine offene Raumgestaltung. Der Übereck-Panoramaerker sorgt für einen lichtdurchfluteten Wohn- und Essbereich, der zu gemeinsamen Stunden einlädt. Die großzügige Eingangsüberdachung führt direkt über in den Carport, sodass du und deine Gäste jederzeit wettergeschützt ins Haus gelangen. Zusätzlich profitierst du von einer Reihe von exklusiven Leistungen, die LivingHaus bietet. Die hochwertige Traumküche wird passgenau für dein neues Zuhause konzipiert. Mit modernster Technik, cleveren Stauraumlösungen und einem ansprechenden Design wird sie rechtzeitig zum Einzug geliefert, sodass du sofort mit dem Kochen beginnen kannst. Das LivingHaus Bau-Cockpit hält dich während des gesamten Bauprojekts auf dem Laufenden. Die digitale App ermöglicht dir den Zugriff auf Zeitpläne, Dokumente und vieles mehr - alles einfach und übersichtlich. Mit I-KON - Intelligentes Bauen wird dein Zuhause nicht nur energieeffizient, sondern auch umweltfreundlich. Als I-KON Effizienzhaus 55 benötigt es nur 55 % der Energie eines Standardhauses. Du kannst zudem von dem Zuhause-Darlehen profitieren, das dir bis zu 250.000 EUR zu einem attraktiven Zinssatz bietet. Das Zuhause-Paket sorgt dafür, dass dein Haus bereits mit einer hochwertigen Grundausstattung kommt. Dazu zählen moderne Böden, edle Türen und stilvolle Sanitäranlagen. Wenn du handwerklich begabt bist, kannst du durch das DIY-Ausbau-Coaching lernen, wie du den Innenausbau selbst meisterst, unterstützt von Experten, die dir wertvolle Tipps geben. LivingHaus bietet dir ein durchdachtes Gesamtkonzept, das von der Finanzierung über die Planung bis zur individuellen Ausgestaltung reicht, damit dein Traumhaus so sicher und passend wie möglich verwirklicht wird.
Dein individuelles LivingHaus: Ein Zuhause nach deinen Wünschen
31319 Sehnde
Die vollständige Adresse der Immobilie erhalten Sie vom Anbieter.
Auf Karte anzeigen
Die vollständige Adresse der Immobilie erhalten Sie vom Anbieter.

Finanzierungszertifikat
In nur zwei Minuten zu Ihrem persönlichen Finanzierungszertifkat.
Infos
Haustyp | Bungalow |
---|---|
Etagenzahl | 1 |
Wohnfläche ca. | 110 m2 |
Nutzfläche | 145,38 m2 |
Grundstücksfläche | 549 m2 |
Zimmer | 3 |
Schlafzimmer | 2 |
Badezimmer | 1 |
Kosten
Kaufpreis |
607.297 € |
---|
Finanzierungsrechner:
Kaufpreis:
600.000 €
Eigenkapital:
600.000 €
Monatliche Rate
0 €
Effektiver Jahreszins
0 %
Sollzinsbindung
10 Jahre
Bausubstanz & Energieausweis
Baujahr | 2026 |
---|---|
Bauphase | Haus in Planung (projektiert) |
Qualität der Austattung | Gehoben |
Energieausweis | liegt vor |
Energieausweistyp | Bedarfsausweis |
Energieverbrauchskennwert | 18,0 kWh/(m²*a) |
Energieeffizienzklasse | A+ |
18,0
kWh/(m²*a)
Energieeffizienzklasse A+
- A+
- A
- B
- C
- D
- E
- F
- G
- H
- 0
- 25
- 50
- 75
- 100
- 125
- 150
- 175
- 200
- 225
- >250
Beschreibung des Objekts
Ausstattung
Die Ausstattung deines zukünftigen LivingHaus ist auf höchstem Niveau und umfasst zahlreiche hochwertige Details. Du erhältst eine individuell geplante Traumküche, die optimal auf deinen Grundriss abgestimmt ist und modernste Technik sowie durchdachte Stauraumlösungen bietet. Das Zuhause-Paket beinhaltet edle Türen, moderne Böden und stilvolle Sanitäranlagen, alles perfekt aufeinander abgestimmt. Zudem kannst du dich auf eine umfassende Ausstattung freuen, die unter anderem hochwertige Fliesen für das gesamte Erdgeschoss und bodengleiche Duschen mit Echtglasabtrennung umfasst. Dank innovativer Wärmepumpentechnik und Komfortlüftung sorgst du für ein angenehmes Raumklima und effizientes Heizen. Dies alles ermöglicht es dir, dein zukünftiges Zuhause ganz nach deinen Vorstellungen zu gestalten: Dein "Wie ich es will Fertighaus".
Lage
Sehnde ist ein lebendiger Ort mit einer Vielzahl von Angeboten für Bildung, Gesundheit, Einkauf und Freizeit, die dir und deiner Familie das Leben erleichtern. In unmittelbarer Nähe befinden sich mehrere Schulen, darunter die Grundschule Sehnde und die IGS Sehnde, die beide sehr gut bewertet werden. Für die kleinsten Bewohner gibt es verschiedene Kindergärten, die sich durch liebevolle Betreuung und pädagogische Konzepte auszeichnen. Supermärkte wie Aldi, Rewe und Edeka sind schnell erreichbar und bieten dir alles, was du für den täglichen Bedarf benötigst. Die Gesundheitsversorgung ist ebenfalls hervorragend, mit mehreren Arztpraxen und Apotheken in der Umgebung. Für Freizeitaktivitäten gibt es zahlreiche Möglichkeiten: Ob Sportvereine, Schwimmbäder oder die nahegelegenen Naherholungsgebiete - hier ist für jeden etwas dabei. Die Anbindung an den öffentlichen Nahverkehr ist optimal, sodass du mit der Bahn oder dem Bus schnell in die umliegenden Städte gelangst. Die Autobahn A7 ist ebenfalls in kurzer Zeit erreichbar, was Pendlern eine bequeme Anreise ins Umland ermöglicht. Sehnde bietet also nicht nur ein angenehmes Wohnumfeld, sondern auch ideale Voraussetzungen für Familien, Naturliebhaber und Berufspendler.
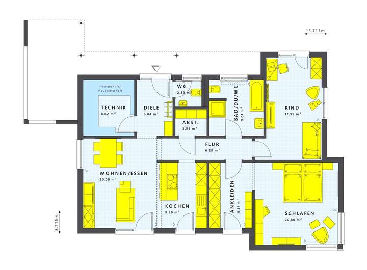
Grundriss
Gestaltungsbeispiel EG
>

Adresse
31319 Sehnde
Interessante Orte
Preis- und Lageinformationen
Preistrend für Bestandsimmobilien in Sehnde