Moderner Bungalow mit Charme – Wohnen auf einer Ebene in Weener
Willkommen in Ihrem neuen Zuhause!
In ruhiger und zugleich zentraler Lage von Weener entstehen zwei stilvolle Bungalows in klarer, moderner Architektur. Die Häuser überzeugen durch eine zeitlose Klinkerfassade, helle Räume und ein durchdachtes Raumkonzept, das Wohnen auf einer Ebene komfortabel möglich macht.
Schon beim Ankommen spüren Sie die Harmonie: Die eingangsseitigen Carports mit Abstellraum bieten nicht nur praktischen Stauraum, sondern runden das Gesamtbild der Häuser elegant ab.
Im Inneren erwartet Sie ein lichtdurchfluteter Wohn-, Ess- und Kochbereich mit bodentiefen Fenstern, die den Blick ins Grüne freigeben und direkten Zugang zur sonnigen Terrasse schaffen. Hier genießen Sie entspannte Stunden mit der Familie oder laden Freunde zu geselligen Abenden ein.
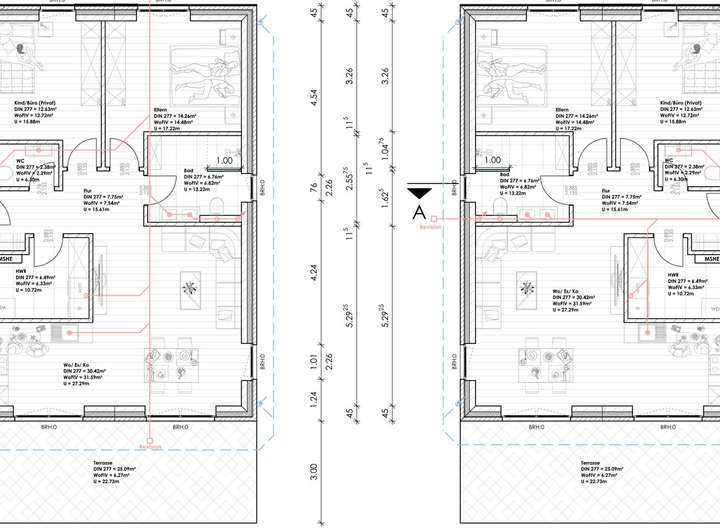
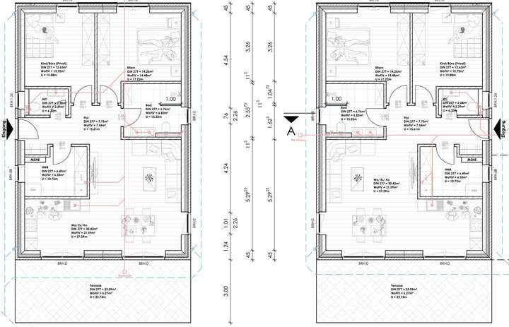
Das Raumkonzept ist klar strukturiert:
Elternschlafzimmer mit ausreichend Platz für Ruhe und Erholung
Kinderzimmer / Büro – flexibel nutzbar für Familie, Gäste oder Homeoffice
Modernes Bad mit stilvoller Ausstattung
Separates Gäste-WC für zusätzlichen Komfort
Hauswirtschaftsraum mit Platz für Technik und Organisation des Alltags
Die Grundrisse sind mit viel Liebe zum Detail geplant und bieten rund 85 m² Wohnfläche, die praktisch und zugleich großzügig wirken. Große Fensterfronten, eine angenehme Raumhöhe und die offene Gestaltung schaffen ein Gefühl von Weite und moderner Behaglichkeit.
Die Terrassen in Süd- und Westausrichtung laden zum Entspannen ein und verschmelzen den Wohnbereich mit der Natur. Die Gärten sind überschaubar angelegt – perfekt für alle, die wenig Pflegeaufwand, aber viel Lebensqualität wünschen.
Die Häuser sind nicht nur ein Zuhause, sondern auch eine Investition in die Zukunft: energieeffizient, barrierearm und ideal für Jung und Alt.
Kurz gesagt: Diese Bungalows vereinen moderne Architektur, funktionale Grundrisse und wohnliches Ambiente – ein Zuhause, das Sie sofort ins Herz schließen werden.
Gerne senden wir Ihnen weitere Informationen oder vereinbaren einen persönlichen Beratungstermin. Lassen Sie sich dieses besondere Angebot nicht entgehen!
NEUBAU: Erstbezug Bungalow- Doppelhaushälfte zu verkaufen
26826 Weener
Die vollständige Adresse der Immobilie erhalten Sie vom Anbieter.
Auf Karte anzeigen
Die vollständige Adresse der Immobilie erhalten Sie vom Anbieter.
Finanzierungszertifikat
In nur zwei Minuten zu Ihrem persönlichen Finanzierungszertifkat.
Infos
| Haustyp | Bungalow |
|---|---|
| Etagenzahl | 1 |
| Wohnfläche ca. | 92 m2 |
| Grundstücksfläche | 400 m2 |
| Zimmer | 3 |
| Schlafzimmer | 2 |
| Badezimmer | 1 |
| Garage/Stellplatz | Carport |
| Anzahl Garage/Stellplatz | 1 |
Kosten
| Kaufpreis |
289.000 € |
|---|---|
| Provision |
Käuferprovision 3,57 % inkl. MwSt. fällig mit Beurkundung des notariellen Kaufvertrages |
Finanzierungsrechner:
Kaufpreis:
600.000 €
Eigenkapital:
600.000 €
Monatliche Rate
0 €
Effektiver Jahreszins
0 %
Sollzinsbindung
10 Jahre
Bausubstanz & Energieausweis
| Baujahr | 2026 |
|---|---|
| Heizungsart | Fußbodenheizung |
Beschreibung des Objekts
Ausstattung
- Neubau Energieeffizienzklasse KfW 55
- Bodenplatte mit Frostschürze
- barrierefrei
- auf rückseitig unterbauten Grundstück
- moderne Wärmepumpe
- dezentrale Lüftungsanlage
- Gäste- WC
- Fenster in Anthrazit mit 3-fach-Verglasung
- elektrisch betriebene Rollläden
- Putzbelag besteht aus Gipsputz der Qualitätsstufe Q2
- Bodenbelag: Vinyl (Wunschfarbe noch offen)
- großzügig gepflasterte Terrasse
- Carport
Lage
Die charmante Stadt Weener liegt mitten im malerischen Rheiderland, einer Landschaft, die geprägt ist von grünen Wiesen, weiten Marschen und idyllischen Kanälen.
Hier spürt man sofort die Ruhe und Gelassenheit Ostfrieslands – und doch profitiert man von einer hervorragenden Anbindung: Die Autobahn A31 liegt nur wenige Minuten entfernt und verbindet Weener mit Emden und der Nordseeküste im Norden sowie dem Ruhrgebiet im Süden. Auch die Niederlande sind in greifbarer Nähe: Groningen erreicht man in weniger als einer Stunde.
Das Leben in Weener verbindet ländliche Idylle mit urbanem Komfort. In der Innenstadt finden sich zahlreiche Einkaufsmöglichkeiten – von gemütlichen Fachgeschäften über moderne Supermärkte bis hin zu einladenden Wochenmärkten mit regionalen Produkten.
Familien schätzen das breite Bildungsangebot: mehrere Grundschulen im Stadtgebiet sowie eine Oberschule stehen direkt vor Ort zur Verfügung, Gymnasien und weiterführende Einrichtungen sind im nahegelegenen Leer leicht erreichbar. Auch die medizinische Versorgung ist mit Ärzten, Apotheken und dem Krankenhaus Rheiderland bestens gewährleistet.
Für Genießer hält Weener kulinarische Vielfalt bereit: urige ostfriesische Teestuben, gemütliche Restaurants mit regionaler Küche sowie internationale Gastronomie laden zum Verweilen ein.
Wer die Freizeit aktiv gestalten möchte, findet in Weener ein buntes Vereinsleben, Sportanlagen und das beliebte Friesenbad. Wassersportfreunde nutzen die Ems und die vielen Kanäle zum Bootfahren oder Paddeln, Radfahrer erkunden die Region über den berühmten Nordseeküstenradweg.
Auch die Nähe zur Nordsee verleiht Weener seinen besonderen Reiz: In kurzer Fahrzeit erreicht man die Küstenorte Ostfrieslands mit ihren Deichen, Stränden und Häfen. Für Wochenendausflüge, Spaziergänge im Watt oder frische Nordseeluft ist es also nur ein Katzensprung.
Weener ist damit ein Wohnort, der die Herzen von Naturliebhabern, Familien und Ruhesuchenden gleichermaßen höherschlagen lässt – ein Ort, an dem man sich wohlfühlt, entschleunigt lebt und dennoch hervorragend vernetzt ist.
Sonstige Angaben
Haftungsausschluss:
Alle Angaben in diesem Exposé wurden in Absprache mit dem Verkäufer zusammengestellt, sowie mit Unterstützung von KI erstellt und von uns nicht persönlich überprüft. Wir übernehmen keine Gewähr für die Vollständigkeit und Aktualität dieser Angaben im Exposé.
Grundriss
Grundriss
>
>
Adresse
26826 Weener
Interessante Orte
Preis- und Lageinformationen
Preistrend für Bestandsimmobilien in Weener