Wir freuen uns, Ihnen dieses freistehende, unterkellerte Massivhaus auf einem traumhaften Eigentumsgrundstück präsentieren zu dürfen!
Um Ihnen einen ersten Eindruck zu vermitteln, haben wir folgende Medien für Sie vorbereitet:
• Detailliertes Exposé: Fordern Sie die vollständige Objektbeschreibung mit allen relevanten Informationen an.
• 360°-Rundgang: Erkunden Sie die Immobilie bequem von Zuhause aus und erhalten Sie einen Raum-für-Raum-Eindruck.
• Objektunterlagen: Auf Anfrage stellen wir Ihnen alle bankrelevanten Dokumente wie Baubeschreibung, Grundrisse, Ansichten, Energieausweis und mehr zur Verfügung.
Nach Ihrer schriftlichen Kontaktanfrage erhalten Sie von uns eine automatische Rückmeldung mit dem ausführlichen Exposé, dem Link zum 360°-Rundgang und der genauen Adresse der Immobilie.
---------------------------------------------------------------
Dieses im Jahr 1962 mit einem 30cm Aussenmauerwerk errichtete Einfamilienhaus überzeugt durch seine solide Substanz, die ruhige Wohnlage sowie das großzügige Eigentumsgrundstück von rund 1.180 m². Mit einer Wohnfläche von 148 m², einer durchdachten Raumaufteilung und gepflegtem Erscheinungsbild bietet die Immobilie ideale Voraussetzungen für Familien, die Wert auf Platz, Komfort und eine naturnahe Umgebung legen.
Eckdaten im Überblick:
Baujahr 1962
Massivbau mit 30 cm Außenmauerwerk aus Hochlochziegeln
1.180 m² Eigentumsgrundstück
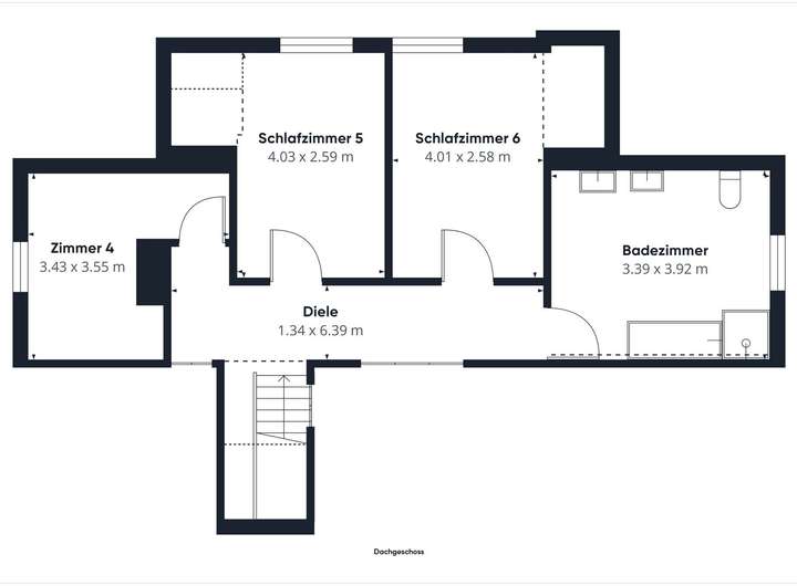
ca. 148 m² Wohnfläche verteilt auf 6 Zimmer
Erdgeschoss mit Gäste-WC und Hauptbad
Weiteres Badezimmer im ausgebauten Dachgeschoss
Vielseitig nutzbarer Keller mit 3 Räumen
Moderne Gasbrennwertheizung von Viessmann, Baujahr 2020
Sonnenterrasse mit Süd-/West-Ausrichtung
Großer Garten mit viel Gestaltungsspielraum
Garage und Gartenhaus vorhanden
Ruhige Wohnlage, rückseitig angrenzend an den Friedhof
Wenn Sie dieses gepflegte, massiv gebaute Einfamilienhaus in ruhiger Lage kennenlernen möchten, zögern Sie nicht, uns zu kontaktieren.
Wir stehen Ihnen zeitnah für Besichtigungen vor Ort zur Verfügung und unterstützen Sie auf Wunsch auch bei der Finanzierung, damit Sie sich Ihren Traum vom Eigenheim erfüllen können.
6-Zimmer Massivhaus mit 1180m² Eigentumsgrundstück in sehr ruhiger Lage von Danndorf
38461 Danndorf
Die vollständige Adresse der Immobilie erhalten Sie vom Anbieter.
Auf Karte anzeigen
Die vollständige Adresse der Immobilie erhalten Sie vom Anbieter.
Finanzierungszertifikat
In nur zwei Minuten zu Ihrem persönlichen Finanzierungszertifkat.
Infos
| Haustyp | Einfamilienhaus |
|---|---|
| Wohnfläche ca. | 148 m2 |
| Grundstücksfläche | 1.180 m2 |
| Bezugsfrei ab | sofort |
| Zimmer | 6 |
| Schlafzimmer | 5 |
| Badezimmer | 3 |
| Garage/Stellplatz | Garage |
| Anzahl Garage/Stellplatz | 2 |
Kosten
| Kaufpreis |
279.000 € |
|---|---|
| Provision |
3,57 % Käufer-Provision inkl. MwSt. 3,57% Käuferprovision inkl. MwSt., verdient und fällig mit Beurkundung des notariellen Kaufvertrages. Der Immobilienmakler hat einen provisionspflichtigen Maklervertrag mit dem Verkäufer in gleicher Höhe abgeschlossen. |
Finanzierungsrechner:
Kaufpreis:
600.000 €
Eigenkapital:
600.000 €
Monatliche Rate
0 €
Effektiver Jahreszins
0 %
Sollzinsbindung
10 Jahre
Bausubstanz & Energieausweis
| Baujahr | 1962 |
|---|---|
| Bauphase | Haus fertig gestellt |
| Qualität der Austattung | Normal |
| Heizungsart | Gas-Heizung |
| Wesentliche Energieträger | Gas |
| Energieausweis | liegt zur Besichtigung vor |
Beschreibung des Objekts
Ausstattung
Baujahr 1962
Massivbau mit 30 cm Außenmauerwerk aus Hochlochziegeln
1.180 m² Eigentumsgrundstück
ca. 148 m² Wohnfläche verteilt auf 6 Zimmer
Erdgeschoss mit Gäste-WC und Hauptbad
Weiteres Badezimmer im ausgebauten Dachgeschoss
vielseitig nutzbarer Keller
Moderne Gasbrennwertheizung von Viessmann, Baujahr 2020
Sonnenterrasse mit Süd-/West-Ausrichtung
Großer Garten mit viel Gestaltungsspielraum
Garage und Gartenhaus vorhanden
Ruhige Wohnlage, rückseitig angrenzend an den Friedhof
Lage
Willkommen in Danndorf – einer charmanten Gemeinde im Landkreis Helmstedt. Diese ruhige und familienfreundliche Gemeinde liegt in unmittelbarer Nähe zur dynamischen Stadt Wolfsburg, die für ihre vielfältigen Freizeitmöglichkeiten, moderne Infrastruktur und wirtschaftliche Stärke bekannt ist.
Die ruhige Lage des großen Eigentumsgrundstücks garantiert Privatsphäre und Ruhe, bei Gleichzeit guter Infrastruktur in Danndorf. Die Dinge des täglichen Bedarfs kann man direkt im Ort erledigen. Durch die gute Anbindung an die Autobahn A39, sind aber auch die Städte Wolfsburg, Braunschweig und Helmstedt schnell und bequem zu erreichen. Außerdem profitieren die Bewohner von einer guten Anbindung an den öffentlichen Nahverkehr, sodass die umliegenden Orte und Städte problemlos auch ohne Auto erreicht werden können.
In Danndorf finden Sie eine angenehme, ländliche Atmosphäre mit einer Vielzahl an Freizeitmöglichkeiten. Die Umgebung bietet zahlreiche Rad- und Wanderwege, die zum Erkunden der Natur einladen. Ein Supermarkt, Grundschule und Kindergärten befinden sich direkt im Ort. Außerdem gibt es ein lebendiges Vereinsleben, welches u. a. mit einem Sportverein, der freiwilligen Feuerwehr und einem Schützenverein punktet.
Genießen Sie die Vorteile einer ruhigen Wohnlage mit der Nähe zu urbanen Freizeit- und Einkaufsmöglichkeiten. Danndorf ist der perfekte Ort für alle, die ein harmonisches Leben im Grünen schätzen, ohne auf die Annehmlichkeiten der Stadt verzichten zu müssen.
Sonstige Angaben
Auch Sie möchten eine Immobilie verkaufen? Wir bieten unseren Kunden folgende Wege zur Vermarktung an:
Szenario 1: Wir besichtigen zusammen Ihre Immobilie um eine individuelle Strategie für den Vertrieb und den realisierbaren Preis zu besprechen. Dabei nehmen wir Ihnen für gewöhnlich alle anfallenden Arbeiten aus der Hand und organisieren alle objektbezogenen Dokumente inkl. Behördengänge selbst. Während wir Ihre Immobilie anschließend zielorientiert, zum bestmöglichen Preis vermarkten, können Sie sich entspannt zurücklegen und sich auf die Zeit nach dem erfolgreichen Verkauf Ihrer Immobilie vorbereiten.
Szenario 2: Sie haben bereits versucht Ihre Immobilie zu verkaufen oder möchten nicht warten bzw. die Immobilie sofort und wie sie ist verkaufen. In diesem Fall treten wir als Käufer auf und vereinbaren innerhalb 3 Tagen einen Notartermin. Das Objekt wird ggf. möbliert, mit Schäden, lückenhaften Dokumenten, diskret und ohne Umwege angekauft. Sie erhalten dabei umgehend Ihr Geld.
Besichtigungen führen wir täglich durch. Zögern Sie also nicht, mit uns in Kontakt zu treten und uns Ihren Wunschtermin per E-Mail unter Angabe Ihrer Rufnummer mitzuteilen.
Das Kleingedruckte: Wir weisen freundlich darauf hin, dass die von uns genannten Informationen und Angaben zum Objekt ausdrücklich unverbindlich und nur zur Vorabinformation bestimmt sind. Für die in unserem Exposé genannten Objekt-Angaben/Informationen ist Firma Kittelmann und Fischer Immobilien auf die Auskünfte von Verkäufern, Vermietern, Verpächtern, Bauherren, Bauträgern, Behörden, Institutionen, Unternehmen, etc. angewiesen. Diese mündlich oder schriftlich an Firma Kittelmann & Fischer Immobilien übermittelten Objektangaben/Informationen sind nicht zwangsläufig durch uns auf ihre Richtigkeit hin überprüft worden. Eine Haftung für die Richtigkeit oder Vollständigkeit dieser Objektangaben/Informationen übernehmen wir nicht. Es obliegt daher unseren Kunden, vor Kauf, die Objektangaben/Informationen auf ihre Richtigkeit hin zu überprüfen.
Grundriss
Keller
>
>
Erdgeschoss
>
>
Dachgeschoss
>
>
Adresse
38461 Danndorf
Interessante Orte
Preis- und Lageinformationen
Preistrend für Bestandsimmobilien in Danndorf