Moderne Hinterhofbebauung mit großer Dachterrasse – stilvolles Wohnen in ruhiger Lage Willkommen in einem Zuhause, das moderne Architektur, Privatsphäre und Wohlfühlatmosphäre perfekt vereint. Diese stilvolle Hinterhofbebauung im beliebten östlichen Ringgebiet überzeugt durch ihre klare Formsprache, hochwertige Bauweise und eine große, sonnige Dachterrasse, die das Herzstück des Hauses bildet. Das moderne Dreizimmerhaus wurde massiv errichtet und bietet auf durchdachten Grundrissen ein helles, ruhiges und angenehmes Wohngefühl – ideal für Paare oder kleine Familien, die das Besondere suchen. Der offene Wohn- und Essbereich schafft eine einladende Atmosphäre, während die Dachterrasse ein außergewöhnliches Highlight für entspannte Stunden im Freien ist. Die Immobilie befindet sich aktuell im letzten Bauabschnitt – ein Erstbezug steht kurz bevor. Hausanschlüsse für Wasser, Abwasser und Elektro sind bereits im Kaufpreis enthalten. Maler- und Oberbelagsarbeiten sowie die Außenanlage inklusive Pflasterung können auf Wunsch gegen Mehrpreis ausgeführt werden. Ein besonderes Plus ist der eigene Stellplatz in ca. 300 m Entfernung, der durch eine Baulast für Sie gesichert ist– eine echte Seltenheit in dieser begehrten Lage.
Modernes Wohnen mit Dachterrasse im ruhigen Hinterhof des östlichen Ringgebiets
38102 Braunschweig
Die vollständige Adresse der Immobilie erhalten Sie vom Anbieter.
Auf Karte anzeigen
Die vollständige Adresse der Immobilie erhalten Sie vom Anbieter.

Finanzierungszertifikat
In nur zwei Minuten zu Ihrem persönlichen Finanzierungszertifkat.
Infos
Haustyp | Einfamilienhaus |
---|---|
Etagenzahl | 3 |
Wohnfläche ca. | 123 m2 |
Nutzfläche | 3,29 m2 |
Grundstücksfläche | 209 m2 |
Zimmer | 3 |
Schlafzimmer | 2 |
Badezimmer | 2 |
Garage/Stellplatz | Außenstellplatz |
Anzahl Garage/Stellplatz | 1 |
Kosten
Kaufpreis |
570.000 € |
---|---|
Provision |
3,57 % inkl. MwSt. Käufer-Provision inkl. gültiger MwSt., verdient und fällig mit Beurkundung des notariellen Kaufvertrages. Der Immobilienmakler hat einen provisionspflichtigen Maklervertrag mit dem Verkäufer in gleicher Höhe abgeschlossen. |
Finanzierungsrechner:
Kaufpreis:
600.000 €
Eigenkapital:
600.000 €
Monatliche Rate
0 €
Effektiver Jahreszins
0 %
Sollzinsbindung
10 Jahre
Bausubstanz & Energieausweis
Baujahr | 2025 |
---|---|
Letzte Sanierung | 2025 |
Objektzustand | Erstbezug |
Qualität der Austattung | Gehoben |
Heizungsart | Wärmepumpe |
Energieausweis | liegt vor |
Energieausweistyp | Bedarfsausweis |
Energieverbrauchskennwert
Energieverbrauch für Warmwasser enthalten |
27,3 kWh/(m²*a) |
Beschreibung des Objekts
Ausstattung
Moderne, massive Bauweise in ruhiger Hinterhoflage Großzügige Dachterrasse mit idealer Ausrichtung Durchdachte Raumaufteilung – 3 Zimmer Erstbezug, hochwertige Bauqualität Hausanschlüsse (Wasser, Elektro und Abwasser) inklusive Maler-, Boden- und Außenarbeiten optional gegen Mehrpreis Stellplatz in ca. 300 m Entfernung (im Preis enthalten) Ruhige, geschützte Wohnsituation mit hohem Wohlfühlfaktor
Lage
Das östliche Ringgebiet zählt zu den beliebtesten und gefragtesten Wohnlagen Braunschweigs – urban, charmant und mit einem ganz besonderen Flair. Die zentrale Lage bietet eine hervorragende Anbindung an die Innenstadt, den Hauptbahnhof und die umliegenden Stadtteile, während die Wohnlage selbst angenehm ruhig und geschützt wirkt. Vielfältige Einkaufsmöglichkeiten, charmante Cafés, Restaurants, Schulen und Kindergärten befinden sich in unmittelbarer Nähe. Auch der beliebte Prinz-Albrecht-Park und die Oker mit ihren grünen Uferbereichen sind nur wenige Minuten entfernt und laden zum Spazieren, Radfahren oder Entspannen ein. Das Viertel verbindet urbanes Leben mit ruhigem Wohnen auf ideale Weise. Dank der ausgezeichneten Infrastruktur, kurzen Wege und des besonderen Ambientes zählt das östliche Ringgebiet zu den begehrtesten Adressen Braunschweigs – perfekt für alle, die zentrumsnah wohnen und dennoch ein ruhiges, niveauvolles Umfeld schätzen
Sonstige Angaben
Hinweis Dieses Angebot ist ausschließlich für Sie persönlich bestimmt und darf nur mit unserer ausdrücklichen Zustimmung an Dritte weitergegeben werden. Wir sind stets bemüht, alle Angaben sorgfältig, vollständig und korrekt wiederzugeben, übernehmen jedoch keine Haftung für Irrtümer, Auslassungen oder Zwischenverkauf. Die Annahme, Verwertung oder Weitergabe dieses Exposés begründet den Abschluss eines Maklervertrags mit TK IMMOBILIEN · Thorsten Kühne, Kasernenstraße 2, 38102 Braunschweig, und verpflichtet zur Zahlung der vereinbarten Provision im Falle des Erwerbs. Alle Objektangaben beruhen auf den Informationen des Eigentümers – eine Gewähr für deren Vollständigkeit und Richtigkeit kann daher nicht übernommen werden. Gemäß § 11 MaBV (Makler- und Bauträgerverordnung) weisen wir ausdrücklich darauf hin, dass keinerlei Kaufpreis- oder Nebenkostenzahlungen an uns zu leisten sind. Diese erfolgen ausschließlich an den Verkäufer oder dessen Beauftragten. Objektbesichtigungen sind ausschließlich nach vorheriger Abstimmung mit unserem Büro und nur in Begleitung eines Mitarbeiters möglich. Für Finanzierungsfragen stehen wir Ihnen gern beratend zur Seite – in Kooperation mit unseren erfahrenen Partnerbanken. Flächenhinweis Die in den Grundrissen dargestellten Flächen entsprechen den Netto-Grundflächen. Die im Exposé angegebene Wohn- bzw. Nutzfläche ist eine circa-Angabe, ermittelt auf Grundlage der Zweiten Berechnungsverordnung (II. BV). Abweichungen zu den tatsächlichen Gegebenheiten vor Ort sind möglich. Bildhinweis Einige der im Exposé gezeigten Außen- und Innenansichten wurden mithilfe künstlicher Intelligenz (KI) erstellt und dienen ausschließlich der beispielhaften Illustration. Maßgeblich sind die tatsächlichen Gegebenheiten vor Ort.
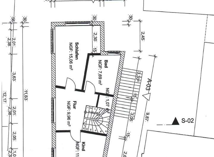
Grundriss
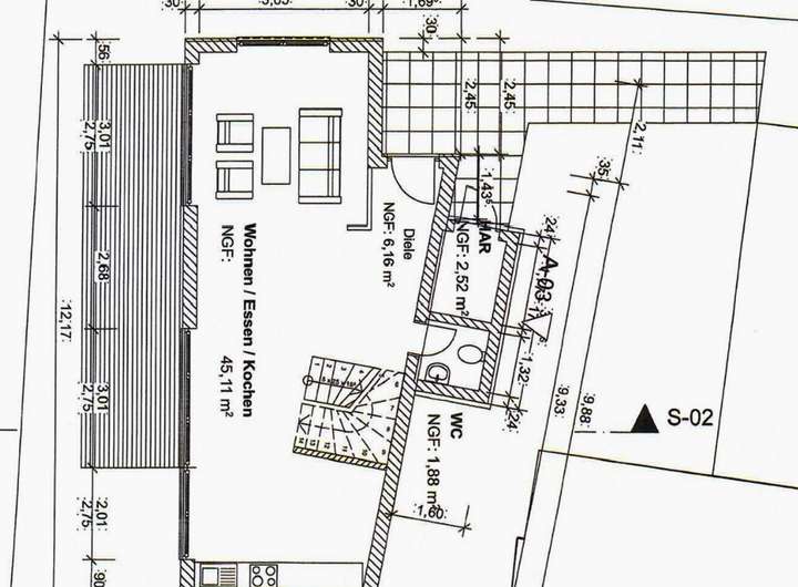
Erdgeschoß
>

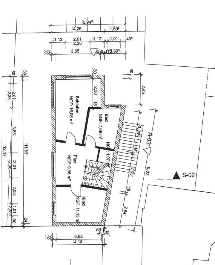
Obergeschoß
>

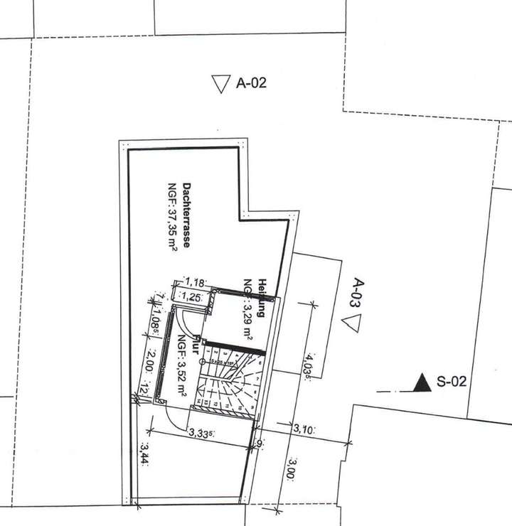
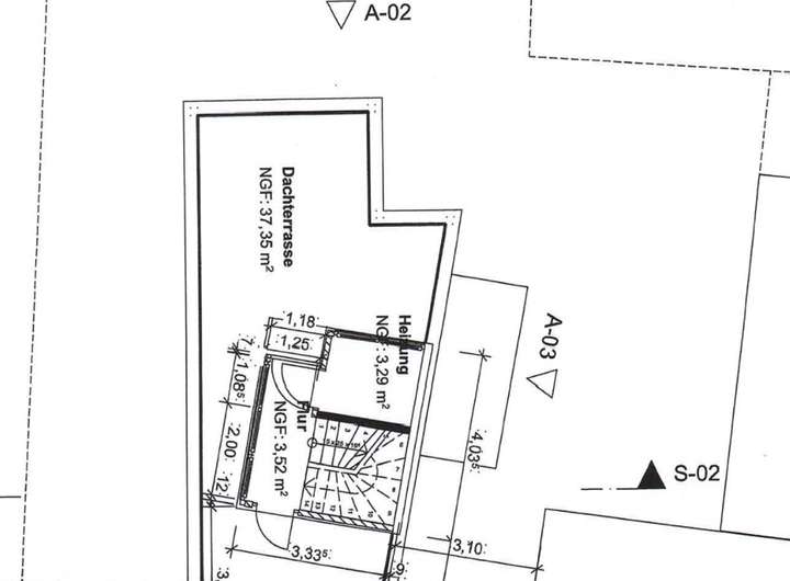
Staffelgeschoss
>

Adresse
38102 Braunschweig
Interessante Orte
Preis- und Lageinformationen
Preistrend für Bestandsimmobilien in Östliches Ringgebiet