Bei dem angebotenen Objekt handelt es sich um eine charmante Doppelhaushälfte aus dem Jahr 1922, errichtet im beliebten Hamburger „Kaffeemühlenstil“. Das Haus besticht durch seine charakteristische Architektur mit klarer Fassadengliederung, Sprossenfenstern und einem Garten, der von dichtem Grün umrahmt wird. Schon der erste Eindruck vermittelt ein Gefühl von Geborgenheit und klassischer hanseatischer Wohnkultur.
Mit einer Wohn- und Nutzfläche von rund 170 m² bietet das Haus auf mehreren Ebenen insgesamt sechs Zimmer und damit großzügigen Raum für eine Familie. Die Aufteilung erlaubt vielfältige Nutzungsmöglichkeiten – von Wohn- und Essbereichen über Arbeitszimmer bis hin zu gemütlichen Rückzugsorten im Dachgeschoss.
Beheizt wird das Gebäude über eine Gaszentralheizung aus dem Jahr 2007. Die Warmwasserversorgung erfolgt über Strom. Zum Objekt gehören zwei Garagen auf dem Grundstück.
Das Haus befindet sich in einem modernisierungsbedürftigen Zustand und bietet daher ideale Voraussetzungen, um durch individuelle und zeitgemäße Gestaltung ein Zuhause mit besonderem Charakter im Herzen von Fuhlsbüttel zu schaffen.
Charmante DHH im Hamburger Kaffeemühlenstil und gefragter Lage von Fuhlsbüttel
22335 Hamburg
Die vollständige Adresse der Immobilie erhalten Sie vom Anbieter.
Auf Karte anzeigen
Die vollständige Adresse der Immobilie erhalten Sie vom Anbieter.
Finanzierungszertifikat
In nur zwei Minuten zu Ihrem persönlichen Finanzierungszertifkat.
Infos
| Haustyp | Doppelhaushaelfte |
|---|---|
| Wohnfläche ca. | 128 m2 |
| Nutzfläche | 42 m2 |
| Grundstücksfläche | 561 m2 |
| Zimmer | 6 |
| Schlafzimmer | 4 |
| Badezimmer | 1 |
| Garage/Stellplatz | Garage |
| Anzahl Garage/Stellplatz | 2 |
Kosten
| Kaufpreis |
1.195.000 € |
|---|---|
| Provision | Nein |
Finanzierungsrechner:
Kaufpreis:
600.000 €
Eigenkapital:
600.000 €
Monatliche Rate
0 €
Effektiver Jahreszins
0 %
Sollzinsbindung
10 Jahre
Bausubstanz & Energieausweis
| Baujahr | 1922 |
|---|---|
| Heizungsart | Zentralheizung |
| Wesentliche Energieträger | Gas |
| Energieausweis | liegt vor |
| Energieausweistyp | Bedarfsausweis |
| Energieverbrauchskennwert | 188,1 kWh/(m²*a) |
| Energieeffizienzklasse | F |
188,1
kWh/(m²*a)
Energieeffizienzklasse F
- A+
- A
- B
- C
- D
- E
- F
- G
- H
- 0
- 25
- 50
- 75
- 100
- 125
- 150
- 175
- 200
- 225
- >250
Beschreibung des Objekts
Ausstattung
Das Gebäude überzeugt durch einen klassischen, familienfreundlichen Grundriss mit klarer Raumaufteilung. Im Erdgeschoss befinden sich ein Gäste-WC, die Küche sowie ein Esszimmer, das sich ideal für gemeinsame Mahlzeiten eignet. Herzstück des Hauses ist aber das großzügige, lichtdurchflutete Wohnzimmer mit Zugang zur gen Süd-Westen ausgerichteten Veranda – ein einladender Ort für gesellige Abende oder entspannte Stunden im Grünen.
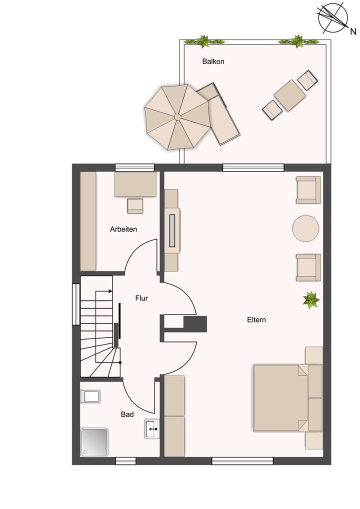
Im Obergeschoss liegen ein Duschbad, ein halbes Zimmer, das sich ideal als Homeoffice oder Ankleide eignet, sowie das großzügige Elternschlafzimmer mit direktem Zugang zum Balkon. Das Schlafzimmer bietet ausreichend Platz für individuelle Gestaltung und kann bei Bedarf problemlos in zwei vollwertige Zimmer unterteilt werden, wodurch zusätzlicher Raum für Kinder oder Gäste entsteht.
Das gemütliche Dachgeschoss ist vollständig zu Wohnzwecken ausgebaut und beherbergt zwei Kinderzimmer mit behaglicher Atmosphäre. Im Kellergeschoss stehen neben dem Heizungs- und Abstellraum auch eine Waschküche sowie ein Hobbyraum zur Verfügung, die zusätzlichen Stauraum und praktische Nutzungsmöglichkeiten bieten.
Lage
Die Immobilie befindet sich in einem ruhigen Wohngebiet des beliebten Hamburger Stadtteils Fuhlsbüttel. Das Umfeld ist geprägt von gepflegten Einfamilien- und Doppelhäusern, alten Baumbeständen und einer familienfreundlichen Nachbarschaft. Familien profitieren hier von kurzen Wegen zu Schulen, Kindergärten, Wochenmarkt sowie weiteren Einkaufsmöglichkeiten des täglichen Bedarfs. Fuhlsbüttel bietet zudem eine hervorragende Verkehrsanbindung: Über die U-Bahn-Linie U1 (Haltestellen Fuhlsbüttel oder Fuhlsbüttel Nord) gelangen Bewohner in etwa 20 bis 25 Minuten direkt in die Hamburger Innenstadt. Mehrere Buslinien ergänzen das Angebot und sorgen für eine bequeme Mobilität innerhalb des Stadtteils. Auch die Anbindung an die A7 und der Hamburg Airport ist schnell erreichbar. Für Erholung und Freizeit bieten sich die nahen Alsterläufe, der Wacholderpark und verschiedene Grünanlagen an. So verbindet Fuhlsbüttel eine ruhige, grüne Wohnlage mit idealer Infrastruktur – perfekt für Familien, die stadt- und zugleich naturnah leben möchten.
Sonstige Angaben
Das Grundstück mit einer Fläche von rund 561 m² präsentiert sich als grüne Oase in einer ruhigen Wohnstraße und unterstreicht den besonderen Charme dieser Doppelhaushälfte. Der liebevoll angelegte Garten ist vollständig von üppigen Hecken und dichtem Buschwerk umgeben, wodurch ein hoher Grad an Privatsphäre entsteht. Alte Sträucher, immergrüne Pflanzen und eine harmonische Wegeführung verleihen dem Außenbereich einen einladenden, aber auch geschützten Charakter.
Die Gartenfläche, die Veranda sowie der Balkon sind nach Süden bis Südwesten ausgerichtet und bieten damit ideale Lichtverhältnisse für sonnige Stunden vom Vormittag bis in den Abend. Der weitläufige Garten bietet ausreichend Platz für Erholung, Spiel und Gartenarbeit und lässt sich nach individuellen Vorstellungen gestalten – sei es als Familiengarten, grüne Rückzugsoase oder repräsentativer Außenbereich. Eine praktische Auffahrt führt zudem zu zwei Garagen. Das Grundstück vermittelt Ruhe, Geborgenheit und zugleich urbanen Komfort – ein idealer Ort für Familien, die gerne zentral und dennoch mitten im Grünen leben möchten.
Grundriss
Erdgeschoss
>
>
Obergeschoss
>
>
Dachgeschoss
>
>
Untergeschoss
>
>
Adresse
22335 Hamburg
Interessante Orte
Preis- und Lageinformationen
Preistrend für Bestandsimmobilien in Fuhlsbüttel