Wer auf der Suche nach einem Zuhause ist, das mehr als nur Raum bietet - sondern auch Atmosphäre, Geschichte und Platz für echtes Familienleben - wird in diesem einzigartigen Stadthaus fündig.
Erbaut im Jahre 1912, strahlt dieses Haus eine unverwechselbare Aura aus: Warm, großzügig, lebendig, ein Ort, der sich dem modernen Familienleben widmet, ohne seine historische Seele zu verlieren.
Viel Platz für noch mehr Ideen - wohnen und arbeiten auf vier Ebenen.
Das Haus erstreckt sich über vier durchdacht gestaltete Ebenen, die sowohl großzügiges Wohnung als auch konzentriertes Arbeiten, durch die Trennung der einzelnen Geschosse, an einem Ort sehr gut ermöglichen.
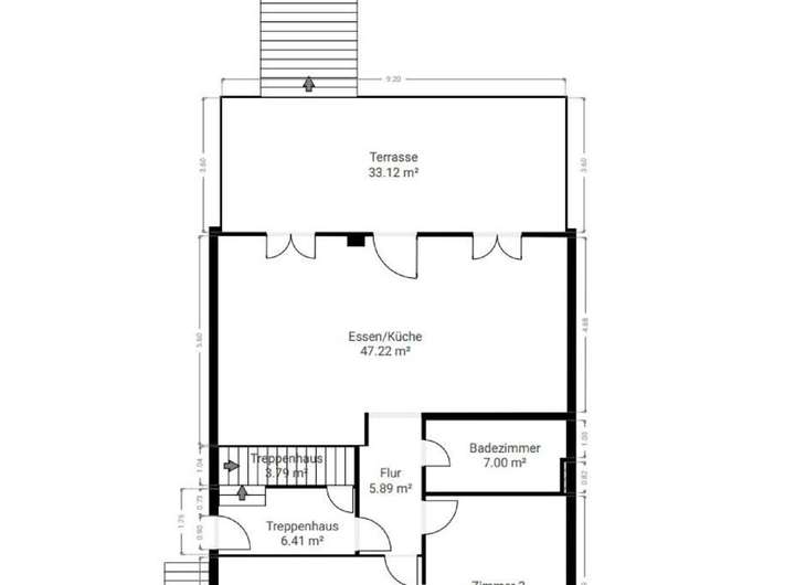
Mittelpunkt des Hauses ist unverkennbar eine einzigartige, ca. 50 qm große, Wohnküche. Mit hellen Einbauten, dem Gasherd direkt in der Mitte, mit dem Blick in den Garten, der direkt angrenzenden Südterrasse und den bodentiefen Fenstern sind nur ein paar Highlights genannt.
Ein Vollbad befindet sich ebenfalls auf dieser Ebene. Zwei weitere Räume zur Straße könnten ideal als Leseecke oder Wohn- und Fernsehzimmer genutzt werden.
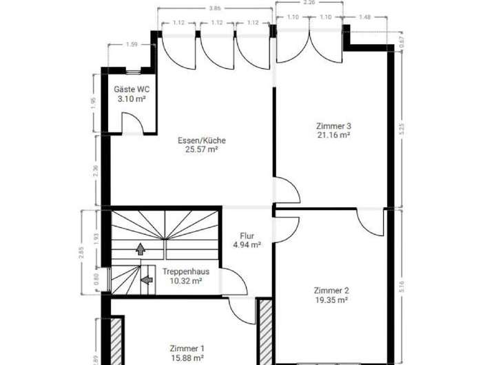
Im 1. OG erwartet Sie der ursprüngliche Grundriss aus dem Baujahr: Bestehend aus derzeit vier Zimmern, mit zusätzlichem begehbarem Kleiderschrank, Vollbad und Gäste-WC.
Im 2. OG befindet sich eine völlig neu gestaltete Büroeinheit aus dem Jahr 2012. Die gesamte Ebene gestaltet sich offen und hell, auch durch die angesetzte Gaube mit 5 bodentiefen Fenstern und einem großartigen Blick in den Garten und einem weiteren Ausblick ins Grüne. Drei weitere Räume, eine offene Pantry und ein Kunden-WC schließen sich an.
Das Dachgeschoss, im Jahr 2004 ausgebaut, ist derzeit an eine Praxis vermietet.
Eine ausführlichere Beschreibung geben wir Ihnen gern mit einem weiteren Exposé und mehr Bildern an die Hand.
Dieses Haus mit reinem Südgrundstück wird Ihnen Courtagefrei angeboten.
Auch ohne interne Einpreisung. Nähere Infos gern direkt.
Wir freuen uns auf Sie und Ihr Interesse!
Ein echtes Zuhause voller Charakter - Leben und Arbeiten in einem Familienjuwel
22335 Hamburg
Die vollständige Adresse der Immobilie erhalten Sie vom Anbieter.
Auf Karte anzeigen
Die vollständige Adresse der Immobilie erhalten Sie vom Anbieter.
Finanzierungszertifikat
In nur zwei Minuten zu Ihrem persönlichen Finanzierungszertifkat.
Infos
| Haustyp | Doppelhaushaelfte |
|---|---|
| Etagenzahl | 4 |
| Wohnfläche ca. | 311 m2 |
| Nutzfläche | 480 m2 |
| Grundstücksfläche | 953 m2 |
| Zimmer | 10,5 |
| Schlafzimmer | 4 |
| Badezimmer | 3 |
| Garage/Stellplatz | Außenstellplatz |
| Anzahl Garage/Stellplatz | 1 |
Kosten
| Kaufpreis |
1.670.000 € |
|---|---|
| Provision | Nein |
Finanzierungsrechner:
Kaufpreis:
600.000 €
Eigenkapital:
600.000 €
Monatliche Rate
0 €
Effektiver Jahreszins
0 %
Sollzinsbindung
10 Jahre
Bausubstanz & Energieausweis
| Baujahr | 1912 |
|---|---|
| Objektzustand | Modernisiert |
| Heizungsart | Zentralheizung |
| Wesentliche Energieträger | Gas |
| Energieausweis | liegt vor |
| Energieausweistyp | Verbrauchsausweis |
| Energieverbrauchskennwert | 216,5 kWh/(m²*a) |
| Energieeffizienzklasse | G |
216,5
kWh/(m²*a)
Energieeffizienzklasse G
- A+
- A
- B
- C
- D
- E
- F
- G
- H
- 0
- 25
- 50
- 75
- 100
- 125
- 150
- 175
- 200
- 225
- >250
Beschreibung des Objekts
Ausstattung
Das Haus wurde stetig renoviert und saniert.
Der Garten wurde stets regelmäßig professionell gepflegt.
Das Haus wird mit einer Gaszentralheizung aus dem Jahre 2011 versorgt.
Alle Heizkörper innerhalb des Hauses wurden erneuert. Ebenso die Elektrik.
Das Haus ist voll unterkellert.
Im Erdgeschoss des Hauses wurde Altbau neu gedacht:
Wo einst vier separate Räume lagen, entstand im Jahr 2013 eine ca. 50 qm große Wohnküche, die das Herzstück und Zentrum dieses Hauses bildet. Der Mittelpunkt ist ein Gasherd. Eine Abzugshaube sowie eine weißmatte Einbauküche mit Ober- und Unterschränken gehören zur Ausstattung dazu. Alle Holzfenster wurden gartenseitig in den letzten Jahren ausgetauscht und sind selbstverständlich doppeltverglast. Der typischen Redpine-Dielenboden aus dem Baujahr ist erst einmal abgezogen worden. Alle Zimmer haben die typische Raumhöhe. Das Bad im Erdgeschoss und 1. OG ist vor ca. 20 Jahren grundsaniert worden und hat jeweils eine Wanne mit Extra Dusche.
Im 1. OG findet sich der ursprüngliche Grundriss dieser beiden Geschosse wieder: Derzeit sind hier vier Zimmer, ein begehbarer Kleiderschrank, ein Vollbad und ein extra Gäste-WC.
Die Büroebene im 2. OG wurde im Jahr 2012 mit einer Fertiggaube und einer Kernsanierung komplett verändert, erweitert und geöffnet.
Das Dachgeschoss wurde im Jahr 2004 ausgebaut und hat ein kleines WC mit einer extra Dusche. Es ist zur Zeit vermietet.
Lage
Die Lage dieser Immobilie befindet sich eingebettet in einer ruhigen, gewachsenen Wohngegend im beliebten Stadtteil Fuhlsbüttel, im Bezirk Hamburg-Nord. Einem Stadtteil, der sich durch seine hervorragende Infrastruktur, seine grüne, vielfältige Umgebung und einer besonders hohen Lebensqualität auszeichnet. Hier verbindet sich die Nähe zur Großstadt mit dem Gefühl von Heimat - ideal für Familien, die Beruf und Privatleben unter einem Dach vereinen möchten.
Die Straße selbst ist angenehm ruhig (Zone 30) und geprägt von gepflegten Einfamilienhäusern mit viel Grün und oft noch großen Gärten. In unmittelbarer Nähe befinden sich zahlreiche Einkaufsmöglichkeiten, Supermärkte, Bäcker, Apotheken, div. Ärzte und kleine Geschäfte, Bars, Cafés mit Mittagstisch und Restaurants. Alles ist fußläufig erreichbar.
Verschiedene Kitas und div. Schulen, sowohl Grund- als auch weiterführende Schulen sind entweder für die Kinder ebenfalls fußläufig oder sehr gut mit dem Fahrrad erreichbar.
Auch das Freizeitangebot, das ganz klar als vielseitig bezeichnet werden kann, ist besonders für Familien wohltuend und alltagsbereichernd: Zahlreiche Spielplätze, div. Sportvereine (wie z.B. SCALA oder der UHC), verschiedene Parks, das Alsterufer und die Wanderwege sind fußläufig oder per Fahrrad sehr gut erreichbar.
Dank der unmittelbaren Nähe zur U-Bahnstation Fuhlsbüttel (U1) und mehreren Buslinien ist der Standort optimal an das öffentliche Verkehrsnetz angebunden. Winterhude oder Eppendorf sind mit dem Auto in ca. 15 Minuten erreichbar, die Innenstadt in 20 Minuten. Auch der Flughafen kann zu Fuß oder in ein paar Minuten mit dem Auto erreicht werden - ohne das Fluglärm den Wohnkomfort beeinträchtigt.
Da sich das Grundstück in der winkelhalbierenden Lage zu den Start- und Landebahnen des Flughafens befindet, bedeutet dies, dass praktisch kein Fluglärm zu bemerken ist. Gern geben wir Ihnen hierzu nähere Informationen.
Grundriss
Erdgeschoss Grundriss mit Logo
>
>
1. Obergeschoss Grundriss mit
>
>
2. Obergeschoss Grundriss mit
>
>
Dachgeschoss Grundriss mit Log
>
>
Kellergeschoss Grundriss mit L
>
>
Adresse
22335 Hamburg
Interessante Orte
Preis- und Lageinformationen
Preistrend für Bestandsimmobilien in Fuhlsbüttel