Kurzbeschreibung
-------------------------
Bei diesem Bauprojekt handelt es sich um den Neubau von 3 modernen, exklusiven Schwedenhäusern. 
Das Grundstück ist zum sofortigen Baubeginn vorbereitet. Bauzeit ca. 4 Monate.
Zur Hausausstattung gehören u.a. eine hervorragend gedämmte Schwedensohlplatte, 
Luft-Wasser-Wärmepumpe, dezentrale Be-/Entlüftungsanlage, 2,5 KWp PV-Anlage, Fußbodenheizung im Erd- und ggf. Obergeschoss, 3fach verglaste Holz-/Aluminiumfenster, Kapitänsgaube, Eingangsveranda, Balkon, hochwertige Sanitärausstattung  und viele weitere Annehmlichkeiten.
Die Lage ist sehr familienfreundlich, in einer ruhigen Sackgasse / Tempo 30-Zone direkt 
am Waldrand, mit Naturschutzgebieten, Wiesen und Felder in unmittelbarer Nachbarschaft. 
Erstellt werden auf einem fast 1.500m² großen, nach Süden orientierten Grundstück im vorderen Bereich zwei freistehende Einfamilienhäuser á 126m² Wohnfläche mit einem Grundstücksteil von 432m², und rückwärtig ein Einfamilienhaus mit 142m² Wohnfläche und einem Grundstücksteil von 594m² 
Grundrisse, Farbgestaltung und Ausstattung werden nach Ihren Wünschen angepasst.
            
        LEMSAHL-MELLINGSTEDT / Schwedenhaus 142m² Wohnfl.: ruhige, sonnige Feld-/Waldrandlage (Sackgasse)
                     22397 Hamburg                            
Die vollständige Adresse der Immobilie erhalten Sie vom Anbieter.
        
            
            Auf Karte anzeigen
        
        
    Die vollständige Adresse der Immobilie erhalten Sie vom Anbieter.
 
    Finanzierungszertifikat
In nur zwei Minuten zu Ihrem persönlichen Finanzierungszertifkat.
Infos
| Haustyp | Einfamilienhaus | 
|---|---|
| Wohnfläche ca. | 142 m2 | 
| Grundstücksfläche | 594 m2 | 
| Zimmer | 4 | 
Kosten
| Kaufpreis | 847.800 € | 
|---|---|
| Provision | Nein | 
Finanzierungsrechner:
                    
                     Kaufpreis:
                        
                            600.000 €
                        
                    
                    
                    
                
            
                        
                            Eigenkapital:
                            
                                 600.000 €
                            
                        
                    
                
            
                        Monatliche Rate
                        0 €
                    
                    
                        
                            Effektiver Jahreszins
                        
                        0 %
                    
                    
                        Sollzinsbindung
                        10 Jahre
                    
                Bausubstanz & Energieausweis
| Baujahr | 2025 | 
|---|---|
| Bauphase | Haus in Planung (projektiert) | 
| Qualität der Austattung | Gehoben | 
Beschreibung des Objekts
Ausstattung
                KOSTENÜBERSICHT
---------------------------
Schwedenhaus-EKSJÖHUS "EKENÄS", ca. 126m² Wohnfläche	€ 285.900,-
Grundstück ca. 432m² inkl. Privatstraßen-/Zufahrtsanteil		€ 357.507,-
Schwedensohlenplatte, Untersohlendämmung, Fußbodenheizung	€   30.506,-
Fußbodenheizung im OG						€     3.657,-
Mehrpreis: Tecalor Luft-Wasser-Wärmepumpe mit Kühlfunktion	€   19.750,-
				Gebäude + Grundstückskosten:	€ 697.320,-
				zzgl. Baunebenkosten/geschätzt:	€   23.800,-
	
Schwedenhaus-EKSJÖHUS "KNUTSTORP, ca. 142m² Wohnfl.	€ 299.000,-
Grundstück ca. 594m² inkl. Privatstraßen-/Zufahrtsanteil		€ 357.507,-
Schwedensohlenplatte, Untersohlendämmung, Fußbodenheizung	€   33.148,-
Fußbodenheizung im OG						€     4.278,-
Mehrpreis: Tecalor Luft-Wasser-Wärmepumpe mit Kühlfunktion	€   19.750,-
				Gebäude + Grundstückskosten:	€ 847.800,-
				zzgl. Baunebenkosten/geschätzt:	€   23.800,-
Sonstiges
-------------
Sanitärausstattung, Vollbad, Gästebad, Eingangsveranda 
mit Walmdach, große Kapitänsgaube, Gasbrennwerttherme, 
Dachfenster,Holz-/Alu-Sprossenfenster mit 3f-Verglasung uvm.:   bereits im Preis enthalten
zusätzlich Sonderausstattung/Extras:			          nach sep. Liste/Absprache
5,5% Grunderwerbsteuer + 2% Notar-/Gerichtskosten:	           nur auf den Grundstückswert
Käufercourtage:						          entfälltt
						
Eine detaillierte Baubeschreibung, Aufschlüsselung der Einzelpositionen, im Angebotspreis enthaltene Grundausstattung, mögliche Zusatzleistungen und Sonderzubehör übergeben wir Ihnen gern im Anschluss an eine gemeinsame Grundstücksbesichtigung.
               
        Lage
                Lage
-------
Das Grundstück liegt im sehr beliebten Hamburger Stadtteil Lemsahl-Mellingstedt, das zu den Hamburger Walddörfern gehört. Es befindet sich in einer ruhigen Anliegerstraße (Sackgasse / Tempo 30-Zone) mit attraktiven und gepflegten Einfamilienhäusern und liebevoll angelegten Grundstücken, in Waldrandlage und direkter Nachbarschaft zu Wiesen und Feldern.
Nur einen Steinwurf entfernt liegt das Naturschutzgebiet Kupferteich, das mit dem
Wittmoor, dem Duvenstedter Brook, dem Wohldorfer Wald, dem Naturschutzgebiet
Rodenbeker Quellental und dem Alsterwanderweg verbunden ist.
Ein Edeka-Supermarkt befindet sich im nahegelegenen Tannenhof (ca. 1km). Weitere sehr gute Einkaufsmöglichkeiten finden sich im benachbarten Duvenstedt und am Poppenbütteler Markt. An der Lemsahler Landstraße (ca. 0,7km) befindet sich eine Bushaltestelle mit Anbindungen zum Alstertal-Einkaufszentrum und der S-Bahn-Station Poppenbüttel (ca. 10 Min.), oder über Duvenstedt zur U-Bahn-Station Ohlstedt (ca. 15 Min.).
Eine Kita sowie ein Jugendzentrum befinden sich in ca. 1 km Entfernung; Grundschulen befinden sich in ca. 3km Entfernung in Lemsahl-Mellingstedt und Duvenstedt, mehrere Gymnasien und eine Stadtteilschule in Poppenbüttel sind in ca. 10 Minuten mit dem Bus erreichbar. In die Hamburger Innenstadt beträgt die Fahrtzeit mit dem PKW etwa 30 Minuten.
Entfernungsangaben
----------------------------
ca. 0,7km - EDEKA-Markt
ca. 0,7km - HVV-Bushaltestellen	
ca. 3,0km - Duvenstedt /Mitte	 
ca. 4,5km - Poppenbüttler Markt	  		
ca. 5,5km - AEZ-Einkaufszentrum
ca. 6,0km - S-Bahnhof Poppenbüttel		
ca. 20 km - HH-Zentrum/Hbf.
                
        Sonstige Angaben
                GfG Schwedenhäuser GmbH & Co. KG - 
-----------------------------------------------------Hamburg
-------------
GfG ist für die detaillierte Bauplanung, Projektleitung, Verkauf und Errichtung der Häuser verantwortlich. Das Unternehmen seit 30 Jahren Partner und Deutschland-Repräsentant des 
1941 in Schweden gegründeten Familienunternehmens EKSJÖHUS, dass in 4. Generation 
mit 280 geschulten Mitarbeitern und modernster Technologie für jährlich ca. 150 nachhaltige, ökologische Holzhäuser/Wohnungen bester Qualität herstellt. Das verwendete Holz stammt vorwiegend aus den eigenen PEFC und FSC zertifizierten Forstwirtschaften der Region.
           
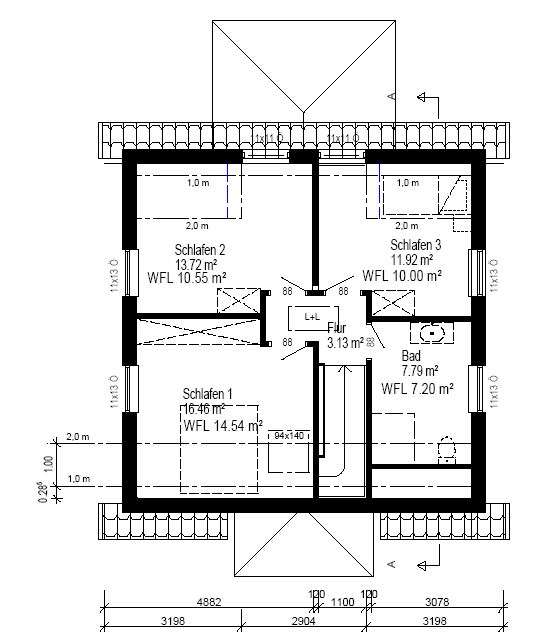
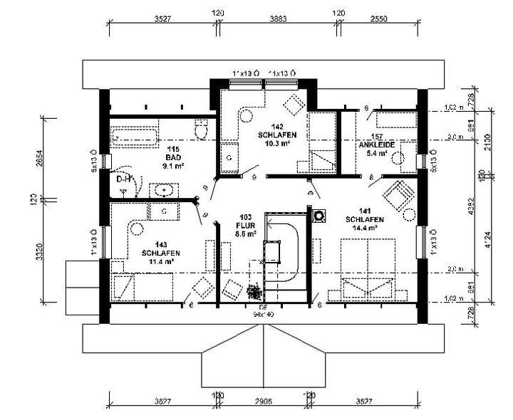
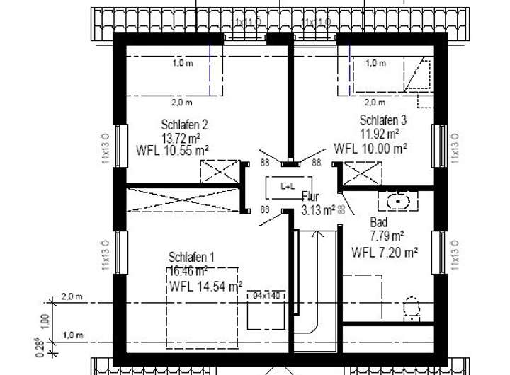
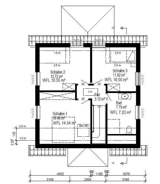
        Grundriss
                                    Grundriss EG Ekenäs
                                                                             >
                                        >
                                                                    
                                                                                                                 >
                                        >
                                                                    
                                    Grundriss OG Ekenäs
                                                                             >
                                        >
                                                                    
                                                                                                                 >
                                        >
                                                                    
                                    Grundriss EG Knutstorp
                                                                             >
                                        >
                                                                    
                                                                                                                 >
                                        >
                                                                    
                                    Grundriss OG Knutstorp
                                                                             >
                                        >
                                                                    
                                                                         >
                                        >
                                                                    Adresse
22397 Hamburg
Interessante Orte
Preis- und Lageinformationen
                Preistrend für Bestandsimmobilien in Lemsahl-Mellingstedt
    
        
                    
            
        
     
                                     
                                     
                                     
                                     
                                     
                                     
                                     
                                     
                                     
                                     
                                    