Der Preis bezieht sich auf das Haus inkl. Grundstück und einschließlich Baunebenkosten -Die Grunderwerbsteuer fällt nur auf die Grundstückskosten an- Herzlich willkommen bei STREIF, Ihrem zuverlässigen Partner für den Bau Ihres Traumhauses. Wir freuen uns, Ihnen unser projektiertes Einfamilienhaus vorstellen zu dürfen, das nach Ihren individuellen Wünschen und Vorstellungen gebaut wird. Mit einer Wohnfläche von 145,00 m² und 5 Zimmern bietet dieses Haus ausreichend Platz für Ihre gesamte Familie. Änderungen erwünscht! Wir planen 1:1 nach Ihren Vorstellungen Garantiert: 6 Monate Bauzeit 20 Monate Festpreis-Garantie 30 Jahre Garantie auf die Konstruktion Alles Inklusive: -Fundament, Bodenplatte und Erdarbeiten -Arbeitsgerüst -Bauleitung -Krankosten -Baustellentoilette -Entsorgung Bauabfälle -Statik -Wärmeschutznachweis mit Blower-Door Test -freie Grundrissänderung ohne Mehrpreis -Mehrfach ausgezeichnete Qualität Lassen Sie sich von der Qualität und Zuverlässigkeit von STREIF überzeugen und verwirklichen Sie Ihren Traum vom eigenen Zuhause - gemeinsam mit uns!
-Inkl. Grundstück-Ihr neues STREIF Haus in Braunschweig Volkmarode
38104 Braunschweig
Die vollständige Adresse der Immobilie erhalten Sie vom Anbieter.
Auf Karte anzeigen
Die vollständige Adresse der Immobilie erhalten Sie vom Anbieter.

Finanzierungszertifikat
In nur zwei Minuten zu Ihrem persönlichen Finanzierungszertifkat.
Infos
Haustyp | Einfamilienhaus |
---|---|
Etagenzahl | 2 |
Wohnfläche ca. | 145 m2 |
Grundstücksfläche | 650 m2 |
Zimmer | 5 |
Schlafzimmer | 3 |
Badezimmer | 1 |
Kosten
Kaufpreis |
790.000 € |
---|
Finanzierungsrechner:
Kaufpreis:
600.000 €
Eigenkapital:
600.000 €
Monatliche Rate
0 €
Effektiver Jahreszins
0 %
Sollzinsbindung
10 Jahre
Bausubstanz & Energieausweis
Baujahr | 2026 |
---|---|
Bauphase | Haus in Planung (projektiert) |
Objektzustand | Erstbezug |
Qualität der Austattung | Gehoben |
Heizungsart | Wärmepumpe |
Beschreibung des Objekts
Ausstattung
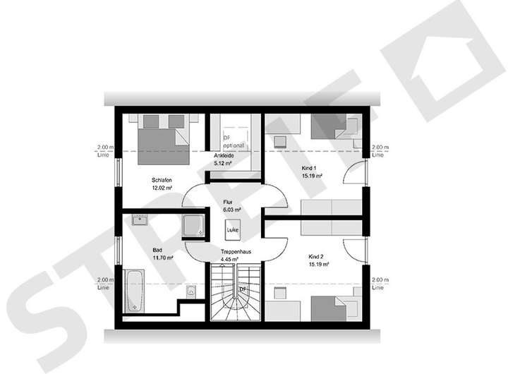
Ausstattung STREIF-Häuser sind Energiesparhäuser. Die STREIF-Passiv-Außenwände und eine sparsame Heiztechnik mit integrierter Wohnraumlüftung und Wärmerückgewinnung, garantieren einen geringen Energieverbrauch und ein fantastisches Raumklima, das insbesondere Allergiker aufatmen lässt. In unserer Premium-Linie sind folgende STREIF-Leistungen im Aktionspreis enthalten - bei der Ausbaustufe fast fertig plus. - 20 Monate Festpreisgarantie - Inklusive gedämmter Fundamentplatte - Inkl. STREIF-Luft-Luft-Wärmepumpen-Technologie mit integrierter Lüftungsanlage mit Wärmerückgewinnung - Inkl. Haustür von KERA und Fenster von Porta/Kömmerling. Fenster farbig, zum Beispiel innen in Weiß und außen in Anthrazit, mit elektrischen IO-Funkrollläden - Inkl. Massivholz-Geschosstreppe aus eigener Produktion - Inkl. Sanitärobjekte von Markenherstellern - Inkl. Elektroinstallation - Inkl. individuelle Grundrissgestaltung und Raumaufteilung Die hohe Wertigkeit und Langlebigkeit eines STREIF-Energiespar-Hauses werden durch zahlreiche Auszeichnungen, Qualitäts- und Gütesiegel unabhängiger Institute und Verbände dokumentiert. Der Angebotspreis ist inklusive Grundstück und Baunebenkosten und bezieht sich auf die Ausbaustufe -einzugsfertig-. Bilder können evtl. Anbauteile, Carports, Balkone, Gauben usw. zeigen, die nicht im Angebotspreis enthalten sind. Änderungen und Irrtümer vorbehalten.
Lage
Ein wunderschönes ca 650 m² großes Grundstück, in Braunschweig Volkmarode sucht neue Eigentümer. Die Braunschweiger Innenstadt liegt etwa 5 Kilometer entfernt und ist mit Auto oder ÖPNV schnell erreichbar. Braunschweig selbst gehört zur Metropolregion Hannover-Braunschweig-Göttingen-Wolfsburg und ist wirtschaftlich stark geprägt durch Forschung, Wissenschaft und Industrie - unter anderem durch Unternehmen wie Volkswagen und zahlreiche Forschungsinstitute. Insgesamt bietet die Lage eine ideale Kombination aus naturnahem, ruhigem Wohnen und städtischer Infrastruktur mit kurzen Wegen.
Adresse
38104 Braunschweig
Interessante Orte
Preis- und Lageinformationen
Preistrend für Bestandsimmobilien in Volkmarode