Kubushaus (REH) in moderner Architektur mit höchstem Wohnkomfort- Dieses moderne Kubushaus in Reihenendlage vereint zeitgemäße Architektur mit einem Höchstmaß an Wohnkomfort. Die klaren Linien, die großzügige Raumgestaltung sowie die hochwertige Ausstattung machen dieses Objekt zu einem besonderen Zuhause für anspruchsvolle Käufer. Mit einer Wohnfläche von ca. 140 m² auf zwei Etagen bietet das Haus viel Raum zur persönlichen Entfaltung. Die Deckenhöhe von ca. 2,60 Metern sowie bodentiefe Fenster mit dreifacher Isolierverglasung (innen weiß, außen grau) sorgen für ein helles, lichtdurchflutetes Wohnambiente. Elektrisch betriebene Rollläden in allen Räumen ergänzen die moderne Ausstattung und bieten zusätzlichen Komfort.
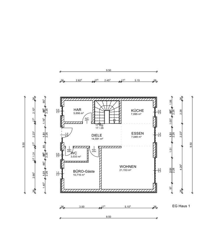
Erdgeschoss: Beim Betreten des Hauses empfängt Sie ein besonders großzügig geschnittener Eingangsbereich, der einen repräsentativen ersten Eindruck vermittelt. Von hier aus gelangen Sie in ein praktisches Büro, respektive Gästezimmer, das Gäste-WC sowie den Hauswirtschaftsraum, der mit dem Innengerät der Wärmepumpe, einem Wasserspeicher sowie Anschlüssen für Waschmaschine und Trockner ausgestattet ist. Über eine raumhohe Glasschiebetür betreten Sie den ca. 36 m² großen Wohnbereich mit offener Küche. Der lichtdurchflutete Raum überzeugt durch seine moderne Gestaltung und stilvolle Großformatfliesen. Die hochwertige weiße Einbauküche mit Markengeräten der Firma NEFF ist bereits im Kaufpreis enthalten und erfüllt höchste Ansprüche an Funktionalität und Design. Vom Wohnbereich aus gelangen Sie direkt auf die großzügige Terrasse, die mit einer neuwertigen, hochwertigen Terrassenüberdachung ausgestattet ist. Diese verfügt über eine elektrische Beschattung – auch an den Seiten – und lädt zum Verweilen ein. Der angrenzende, pflegeleicht angelegte Garten präsentiert sich als grüne Oase mit liebevoller Bepflanzung.
Obergeschoss: Im Obergeschoss erwarten Sie drei geräumige Schlafzimmer mit Flächen zwischen ca. 15 m² und 18,5 m². Alle Zimmer sind mit bodentiefen
Provisionsfrei! Kubushaus (REH) in moderner Architektur mit höchstem Wohnkomfort
38518 Gifhorn
Die vollständige Adresse der Immobilie erhalten Sie vom Anbieter.
Auf Karte anzeigen
Die vollständige Adresse der Immobilie erhalten Sie vom Anbieter.
Finanzierungszertifikat
In nur zwei Minuten zu Ihrem persönlichen Finanzierungszertifkat.
Infos
| Haustyp | Reiheneckhaus |
|---|---|
| Etagenzahl | 2 |
| Wohnfläche ca. | 140 m2 |
| Nutzfläche | 6 m2 |
| Grundstücksfläche | 305 m2 |
| Bezugsfrei ab | 1.12.2025 |
| Zimmer | 5 |
| Schlafzimmer | 4 |
| Badezimmer | 2 |
| Garage/Stellplatz | Außenstellplatz |
| Anzahl Garage/Stellplatz | 2 |
Kosten
| Kaufpreis |
0 € |
|---|---|
| Provision | Nein |
Finanzierungsrechner:
Kaufpreis:
600.000 €
Eigenkapital:
600.000 €
Monatliche Rate
0 €
Effektiver Jahreszins
0 %
Sollzinsbindung
10 Jahre
Bausubstanz & Energieausweis
| Baujahr | 2020 |
|---|---|
| Letzte Sanierung | 2020 |
| Bauphase | Haus fertig gestellt |
| Objektzustand | Neuwertig |
| Qualität der Austattung | Gehoben |
| Heizungsart | Wärmepumpe |
| Wesentliche Energieträger | Strom |
| Energieausweis | liegt zur Besichtigung vor |
Beschreibung des Objekts
Lage
Die Immobilie befindet sich in einer ruhigen Wohnlage in Leiferde, einer familienfreundlichen Gemeinde im Landkreis Gifhorn. Leiferde zeichnet sich durch seine naturnahe Umgebung, eine gute Infrastruktur und die verkehrsgünstige Lage zwischen den Städten Braunschweig, Gifhorn und Wolfsburg aus.
Die Anbindung an den öffentlichen Nahverkehr ist hervorragend: Ein Bahnhof mit regelmäßigen Regionalverbindungen Richtung Hannover und Wolfsburg ist schnell erreichbar. Auch mit dem Auto sind umliegende Städte über die nahegelegene Bundesstraße und die Autobahn A39 zügig erreichbar.
Im Ort selbst finden sich alle Einrichtungen des täglichen Bedarfs – darunter Supermärkte, Bäcker, Apotheke, Ärzte, eine Grundschule sowie Kindertagesstätten. Darüber hinaus bietet Leiferde ein aktives Vereinsleben, vielfältige Freizeitmöglichkeiten und eine schöne naturnahe Umgebung mit Feldern, Waldgebieten und dem nahegelegenen Naturschutzgebiet Viehmoor.
Die Kombination aus ländlicher Ruhe, guter Infrastruktur und der Nähe zu urbanen Zentren macht Leiferde zu einem idealen Wohnort für Familien, Berufspendler und Naturliebhaber.
Sonstige Angaben
Fordern sie gern ein umfangreiches Exposé an.
Grundriss
Grundriss OG
>
>
Grundriss EG
>
>
Adresse
38518 Gifhorn
Interessante Orte
Preis- und Lageinformationen
Preistrend für Bestandsimmobilien in Gifhorn