Dieses wunderschöne Doppelhaus in Lampertheim vereint klassisches Design mit modernem Komfort. Mit einem großzügigen Satteldach, das sich bis zum Wintergartenerker im Erdgeschoss erstreckt, bietet es nicht nur eine ansprechende Fassade, sondern maximiert auch den verfügbaren Raum. Der zweigeschossige Giebelerker sorgt dafür, dass sowohl die Küche als auch die Kinderzimmer lichtdurchflutet und geräumig sind. Besonders hervorzuheben ist die elegante Glasüberdachung am Hauseingang, die einladend wirkt und einen ersten Eindruck von deinem zukünftigen Zuhause hinterlässt. LivingHaus bietet dir eine Vielzahl an zusätzlichen Leistungen, die dein Bauprojekt zu einem besonderen Erlebnis machen. Mit der Traumküche von LivingHaus erhältst du eine hochwertige Küche, die genau auf deinen Grundriss abgestimmt ist. Sie ist ausgestattet mit modernster Technik und cleveren Stauraumlösungen, sodass du direkt nach dem Einzug loskochen kannst. Das Living Haus Bau-Cockpit ermöglicht es dir, den Überblick über dein Bauprojekt zu behalten. Mit dieser praktischen App hast du Zugriff auf Zeitpläne und Dokumente, alles digital und leicht zugänglich - ideal für stressfreies Bauen! Mit I-KON - Intelligentes Bauen profitierst du von einem energieeffizienten Zuhause, das nachhaltig und umweltfreundlich ist. Dein Haus wird als I-KON Effizienzhaus 55 realisiert, was bedeutet, dass es nur 55 % der Energie eines Standardhauses benötigt. Zusätzlich erhältst du beim Zuhause-Darlehen exklusive Finanzierungsvorteile. Du kannst bis zu 250.000 EUR zu einem besonders günstigen Zinssatz erhalten und von staatlichen Förderprogrammen profitieren. Das Zuhause-Paket stellt sicher, dass dein Haus mit einer hochwertigen Grundausstattung geliefert wird - moderne Böden, edle Türen und stilvolle Sanitäranlagen sind nur einige der enthaltenen Elemente. Und falls du gerne selbst Hand anlegen möchtest, steht dir das DIY-Ausbau-Coaching zur Verfügung, bei dem dir Experten in nur drei Tagen zeigen, wie du den Innenausbau deines Hauses meisterst. All diese Leistungen helfen dir, dein persönliches Traumhaus zu gestalten, das genau deinen Vorstellungen entspricht.
Dein individuelles Traumhaus in Lampertheim - Perfekt für die ganze Familie
68623 Lampertheim
Die vollständige Adresse der Immobilie erhalten Sie vom Anbieter.
Auf Karte anzeigen
Die vollständige Adresse der Immobilie erhalten Sie vom Anbieter.

Finanzierungszertifikat
In nur zwei Minuten zu Ihrem persönlichen Finanzierungszertifkat.
Infos
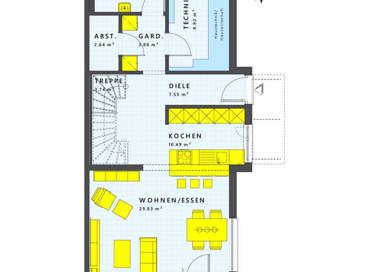
Haustyp | Doppelhaushaelfte |
---|---|
Etagenzahl | 2 |
Wohnfläche ca. | 125 m2 |
Grundstücksfläche | 280 m2 |
Zimmer | 5 |
Schlafzimmer | 3 |
Badezimmer | 1 |
Kosten
Kaufpreis |
665.900 € |
---|
Finanzierungsrechner:
Kaufpreis:
600.000 €
Eigenkapital:
600.000 €
Monatliche Rate
0 €
Effektiver Jahreszins
0 %
Sollzinsbindung
10 Jahre
Bausubstanz & Energieausweis
Baujahr | 2026 |
---|---|
Bauphase | Haus in Planung (projektiert) |
Qualität der Austattung | Gehoben |
Heizungsart | Wärmepumpe |
Energieausweis | liegt zur Besichtigung vor |
Beschreibung des Objekts
Ausstattung
Dein zukünftiges Zuhause wird mit einer Vielzahl von hochwertigen Ausstattungsmerkmalen versehen, darunter moderne Böden, edle Türen und stilvolle Sanitäranlagen. Die hochwertige Traumküche von Living Haus wird individuell auf deinen Grundriss abgestimmt und bringt modernste Technik sowie clevere Stauraumlösungen mit. Das Zuhause-Paket sorgt dafür, dass alles optimal aufeinander abgestimmt und fix & fertig geliefert wird. Zudem profitierst du von einer 18-monatigen Festpreisgarantie. Die I-KON-Lösung ermöglicht dir ein energieeffizientes Wohnen mit einer integrierten PV-Anlage. Dein Haus wird mit modernen Wärmepumpen ausgestattet, die für ein angenehmes Raumklima sorgen. Du hast die Möglichkeit, den Innenausbau selbst zu gestalten, unterstützt durch das DIY-Ausbau-Coaching, das dir in drei Tagen praxisnahe Tipps und Unterstützung bietet. Das Living Haus Bau-Cockpit hält dich stets informiert und organisiert dein Bauprojekt effizient. Mit einer 30-jährigen Garantie auf die Grundkonstruktion und fünf Jahren Gewährleistung auf alle anderen Bauleistungen bist du bestens abgesichert. Dein individuelles Haus wird so sicher und passend wie möglich verwirklicht.
Lage
Lampertheim bietet eine hervorragende Lebensqualität und ist ideal für Familien, Naturliebhaber und Pendler. In der Umgebung findest du eine Vielzahl an Schulen, wie die Grundschule Lampertheim, die für ihre familiäre Atmosphäre und engagierten Lehrer bekannt ist. Kindergärten und Spielplätze sind ebenfalls gut erreichbar und sorgen dafür, dass deine Kinder in einer sicheren Umgebung aufwachsen können. Für den täglichen Einkauf stehen dir zahlreiche Supermärkte wie REWE und EDEKA zur Verfügung, die in wenigen Minuten erreichbar sind. Auch Ärzte und Gesundheitszentren sind in der Nähe und bieten eine umfassende medizinische Versorgung. Freizeitangebote, wie der nahegelegene Tiergarten und der Naturpark, laden zu Ausflügen in die Natur ein und bieten zahlreiche Möglichkeiten zur Erholung. Die Verkehrsanbindung ist ausgezeichnet. Lampertheim liegt in unmittelbarer Nähe zur Autobahn A67, die schnelle Verbindungen nach Mannheim und Frankfurt ermöglicht. Auch der öffentliche Nahverkehr ist gut ausgebaut, sodass du problemlos die umliegenden Städte erreichen kannst. Diese Kombination aus naturnaher Lage und guter Erreichbarkeit macht Lampertheim zum perfekten Ort für dein neues Zuhause.
Sonstige Angaben
Beginne deine eigene Immobilie zu finanzieren und nicht mehr die deines Vermieters. Ein Auszug unserer Leistungen: - 18 Monate Festpreisgarantie - Grundstücksservice (Hilfe bei der Suche und Begleitung bis zum Notartermin) - Bauversicherungen - Zuhause-Darlehn 250.000 EUR bis zu 0,5 % unter Marktpreis bei 10-jähriger Zinsbindung - Bauherren-Cockpit (LivingHaus App für Kontakte zu Ansprechpartner, Überblick Projektfortschritt, Budgetrechner, Zugriff auf Bauunterlagen und, und, und.... - DGNB-Serienzertifizierung in Gold - QDF-zertifiziert inkl. digitaler Hausbauakte - 30 Jahre Garantie auf tragende Konstruktion - 5 Jahre Gewährleistung auf alles - 2 Tage Ausstattungsberatung in der Haus-Statterei - Architektenleistungen - Technikberatung - Bodengutachten - Baustelleneinrichtung - KfW-Förderung - QNG-förderfähig - Inkl. I-Kon vorkonfiguriert - Modernste Wärmepumpentechnik - Zuhause-Paket - Fliesen im kompletten Erdgeschoss im Zuhause-Paket - Bodengleiche Duschen im Kompletten Haus im Zuhause-Paket - Netzwerkverkabelung - Baustrom u. Bauwasser auf Kundenwunsch - Individuelle Küchenplanung - DIY Ausbau-Coaching u. v. m. Bei dem hier beworbenen Angebot handelt es sich um eine Beispiel-Bebauung auf einem realen Grundstück. Verschiedene Varianten können hier möglich sein. Frag danach! Die projektierten Grundstücke sind von Erschließungsträgern, Maklern oder Privatpersonen. LivingHaus tritt ausschließlich asl das bauausführende Unternehmen auf. Gerne plane ich euer Traumhaus auch auf ein bereits vorhandenes oder reserviertes oder noch zu suchendes Grundstück. Nicht im Angebot enthalten sind die individuellen Kosten wie z. B. Baunebenkosten. Im Beratungsgespräch gehen wir auf sämtlich anfallende Kosten ein. Jederzeit transparent und nachvollziehbar, damit keine Überraschungen auftreten.
Adresse
68623 Lampertheim
Interessante Orte
Preis- und Lageinformationen
Preistrend für Bestandsimmobilien in Lampertheim