Kompromisse waren gestern, denn dieses Einfamilienhaus von LivingHaus wird ganz nach deinen Vorstellungen projektiert. Mit einer großzügigen Wohnfläche von 145,38 m² und einem Grundstück von 810 m² bietet dieses Haus ausreichend Platz für deine Familie. Die klassische Architektur mit einem Satteldach und einer Neigung von 38 Grad verleiht dem Haus ein zeitloses Aussehen, während große Erker und bodentiefe Fenster für eine helle und einladende Atmosphäre sorgen. Hier kannst du deine Wohnträume verwirklichen und in einem stilvollen Ambiente leben. Zusätzlich zu dem durchdachten Design profitierst du von einer Vielzahl an maßgeschneiderten Leistungen von LivingHaus. Deine Traumküche wird exakt auf deinen Grundriss abgestimmt und enthält modernste Technik sowie clevere Stauraumlösungen, die dir den Alltag erleichtern. Das LivingHaus Bau-Cockpit ermöglicht es dir, den Überblick über dein Bauprojekt zu behalten, während das I-KON-System nachhaltiges Bauen mit innovativer Technik kombiniert und dein Zuhause zu einem energieeffizienten Ort macht. Das Zuhause-Darlehen bietet dir attraktive Finanzierungsmöglichkeiten, während das Zuhause-Paket alle notwendigen Materialien für eine hochwertige Grundausstattung umfasst. Wenn du selbst Hand anlegen möchtest, unterstützt dich das DIY-Ausbau-Coaching, sodass du deine Fähigkeiten im Innenausbau weiterentwickeln kannst. So wird dein neues Zuhause nicht nur ein Ort zum Leben, sondern auch ein Raum, in dem du deine Persönlichkeit entfalten kannst.
Dein individuelles Traumhaus in Sehnde - Fertighaus nach deinen Wünschen
31319 Sehnde
Die vollständige Adresse der Immobilie erhalten Sie vom Anbieter.
Auf Karte anzeigen
Die vollständige Adresse der Immobilie erhalten Sie vom Anbieter.

Finanzierungszertifikat
In nur zwei Minuten zu Ihrem persönlichen Finanzierungszertifkat.
Infos
Haustyp | Einfamilienhaus |
---|---|
Etagenzahl | 2 |
Wohnfläche ca. | 145 m2 |
Nutzfläche | 145,38 m2 |
Grundstücksfläche | 810 m2 |
Zimmer | 4 |
Schlafzimmer | 3 |
Badezimmer | 1 |
Kosten
Kaufpreis |
543.846 € |
---|
Finanzierungsrechner:
Kaufpreis:
600.000 €
Eigenkapital:
600.000 €
Monatliche Rate
0 €
Effektiver Jahreszins
0 %
Sollzinsbindung
10 Jahre
Bausubstanz & Energieausweis
Baujahr | 2026 |
---|---|
Bauphase | Haus in Planung (projektiert) |
Qualität der Austattung | Gehoben |
Energieausweis | liegt vor |
Energieausweistyp | Bedarfsausweis |
Energieverbrauchskennwert | 18,0 kWh/(m²*a) |
Energieeffizienzklasse | A+ |
18,0
kWh/(m²*a)
Energieeffizienzklasse A+
- A+
- A
- B
- C
- D
- E
- F
- G
- H
- 0
- 25
- 50
- 75
- 100
- 125
- 150
- 175
- 200
- 225
- >250
Beschreibung des Objekts
Ausstattung
Das Einfamilienhaus kommt mit einer hochwertigen Grundausstattung, die keine Wünsche offenlässt. Du erhältst moderne Böden, edle Türen und stilvolle Sanitäranlagen, alles perfekt aufeinander abgestimmt und fix und fertig geliefert. Mit dem Zuhause-Paket hast du alles, was du benötigst, um sofort in dein neues Zuhause einzuziehen. Die Innenausbaumaterialien sind im Preis enthalten, ebenso wie Fliesen für das gesamte Erdgeschoss und bodengleiche Duschen mit Echtglasabtrennung. Durch den hohen Vorfertigungsgrad wird der Bauprozess effizient gestaltet, und du kannst dich auf die Qualität deines neuen Zuhauses verlassen. Dein individuelles Fertighaus wird so gestaltet, dass es genau deinen Wünschen entspricht und ein Ort wird, an dem du dich rundum wohlfühlst.
Lage
Sehnde ist ein idealer Wohnort für Familien, Naturliebhaber und Pendler. Die Stadt bietet eine hervorragende Anbindung sowohl an den öffentlichen Nahverkehr als auch an die Autobahn, was es einfach macht, die nahegelegene Landeshauptstadt Hannover in kurzer Zeit zu erreichen. In Sehnde findest du zahlreiche Schulen, darunter die Grundschule Sehnde und die IGS Sehnde, die für Familien mit Kindern eine hervorragende Bildung bieten. Kindergärten sind ebenfalls in der Umgebung zu finden, sodass du für den frühen Bildungsweg deiner Kleinen bestens versorgt bist. Für den täglichen Bedarf stehen dir zahlreiche Supermärkte zur Verfügung, darunter REWE und EDEKA, die fußläufig oder mit dem Auto schnell zu erreichen sind. Ärzte und Apotheken sind ebenfalls in der Nähe, sodass du jederzeit medizinische Versorgung in Anspruch nehmen kannst. In deiner Freizeit hast du die Möglichkeit, die grüne Natur rund um Sehnde zu genießen. Der nahegelegene Naturpark ist ideal für Spaziergänge und Ausflüge in die Natur. Auch Sport- und Freizeitmöglichkeiten wie Sportvereine und Spielplätze sind in der Umgebung vorhanden, was Sehnde zu einem lebenswerten Ort für Familien macht. Mit dem Auto erreichst du die Autobahn A7, die dir schnelle Verbindungen in alle Richtungen bietet.
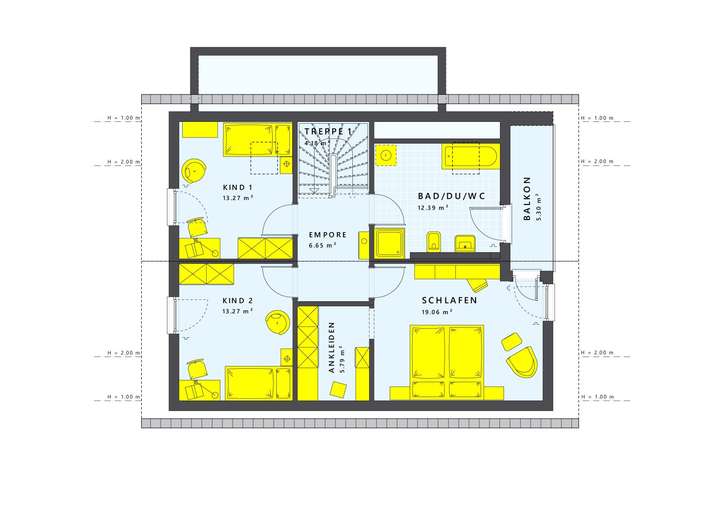
Grundriss
Gestaltungsbeispiel OG
>

Gestaltungsbeispiel EG
>

Adresse
31319 Sehnde
Interessante Orte
Preis- und Lageinformationen
Preistrend für Bestandsimmobilien in Sehnde