Dieser sensationelle Bungalow in Hildesheim ist mehr als nur ein Zuhause; er ist der Ausdruck deiner persönlichen Wünsche und Vorstellungen. Mit einer Wohnfläche von 110,44 m² und einem großzügigen Grundstück von 730 m² bietet er dir reichlich Platz für dein Leben. Die Architektur besticht durch eine coole Fassade und eine durchdachte Raumaufteilung. Die beiden Querhäuser rechts und links schaffen eine charmante Einbuchtung unter dem Walmdach, die als Freisitz oder Terrasse nach deinen Vorstellungen gestaltet werden kann. Dies bedeutet nicht nur eine harmonische Verbindung zur Natur, sondern auch doppelten Wohnraum für eine große Essgruppe im Wohnzimmer oder eine gemütliche Leseecke im Schlafzimmer. Zusätzlich zu diesem einzigartigen Design bietet LivingHaus eine Vielzahl von Leistungen, die dein Zuhause zu einem echten Traumhaus verwandeln. Die hochwertige Traumküche von LivingHaus wird exakt auf deinen Grundriss angepasst und überzeugt mit modernster Technik, cleveren Stauraumlösungen und ästhetischem Design. Und das Beste: Sie wird pünktlich zum Einzug geliefert, sodass du sofort mit dem Kochen loslegen kannst. Mit dem LivingHaus Bau-Cockpit hast du immer den Überblick über dein Bauprojekt. Die digitale App ermöglicht dir den Zugriff auf Zeitpläne und Dokumente und sorgt für ein stressfreies Bau-Erlebnis. Die I-KON-Technologie kombiniert nachhaltiges Bauen mit modernster Technik, sodass dein Zuhause energieeffizient und umweltfreundlich ist. Mit dem I-KON Effizienzhaus 55 benötigst du nur 55 % der Energie eines Standardhauses, dank innovativer Dämmung und intelligenter Heiztechnik. Finanzielle Unterstützung erhältst du durch das Zuhause-Darlehen, das dir bis zu 250.000 EUR zu besonders günstigen Zinsen bietet. Das Zuhause-Paket beinhaltet eine hochwertige Grundausstattung mit modernen Böden, eleganten Türen und stilvollen Sanitäranlagen, alles optimal aufeinander abgestimmt und fix und fertig geliefert. Wenn du gerne selbst Hand anlegen möchtest, steht dir das DIY-Ausbau-Coaching zur Verfügung, bei dem dir Experten in nur drei Tagen zeigen, wie du den Innenausbau selbst meistern kannst. Mit LivingHaus erhältst du ein durchdachtes Gesamtkonzept, das dir vom ersten Schritt an Sicherheit und Unterstützung bietet, damit dein Traumhaus Realität wird.
Gestalte dein individuelles Zuhause - Der LivingHaus Bungalow in Hildesheim
31177 Harsum
Die vollständige Adresse der Immobilie erhalten Sie vom Anbieter.
Auf Karte anzeigen
Die vollständige Adresse der Immobilie erhalten Sie vom Anbieter.

Finanzierungszertifikat
In nur zwei Minuten zu Ihrem persönlichen Finanzierungszertifkat.
Infos
Haustyp | Bungalow |
---|---|
Etagenzahl | 1 |
Wohnfläche ca. | 110 m2 |
Nutzfläche | 110,44 m2 |
Grundstücksfläche | 730 m2 |
Zimmer | 3 |
Schlafzimmer | 2 |
Badezimmer | 1 |
Kosten
Kaufpreis |
538.650 € |
---|
Finanzierungsrechner:
Kaufpreis:
600.000 €
Eigenkapital:
600.000 €
Monatliche Rate
0 €
Effektiver Jahreszins
0 %
Sollzinsbindung
10 Jahre
Bausubstanz & Energieausweis
Baujahr | 2026 |
---|---|
Bauphase | Haus in Planung (projektiert) |
Qualität der Austattung | Gehoben |
Energieausweis | liegt vor |
Energieausweistyp | Bedarfsausweis |
Energieverbrauchskennwert | 18,0 kWh/(m²*a) |
Energieeffizienzklasse | A+ |
18,0
kWh/(m²*a)
Energieeffizienzklasse A+
- A+
- A
- B
- C
- D
- E
- F
- G
- H
- 0
- 25
- 50
- 75
- 100
- 125
- 150
- 175
- 200
- 225
- >250
Beschreibung des Objekts
Ausstattung
In deinem individuellen LivingHaus erwartet dich eine umfangreiche Ausstattung, die keine Wünsche offenlässt. Dazu gehören moderne Böden, edle Türen und stilvolle Sanitäranlagen, die perfekt aufeinander abgestimmt sind. Das Zuhause-Paket sorgt dafür, dass alles fix und fertig geliefert wird, sodass du schnell einziehen kannst. Von der hochwertigen Traumküche, die genau auf deinen Grundriss abgestimmt ist, bis hin zur modernen Wärmepumpentechnik mit Komfortlüftung und Wärmerückgewinnung - alles ist durchdacht, um dir ein angenehmes Raumklima zu bieten. Zudem profitierst du von einem hohen Vorfertigungsgrad, der den Bauprozess effizient gestaltet. Das DIY-Ausbau-Coaching ermöglicht es dir, deinen Innenausbau selbst zu gestalten, und gibt dir wertvolle Tipps von Experten. Lass dein Zuhause ganz nach deinen Vorstellungen entstehen - dein "Wie ich es will Fertighaus"!
Lage
Hildesheim ist ein wahres Juwel für Familien, Naturliebhaber und Pendler gleichermaßen. Die Stadt bietet eine exzellente Infrastruktur mit zahlreichen Schulen und Kindergärten, die allesamt gut bewertet sind und dir und deinen Kindern eine hohe Lebensqualität garantieren. Die Grundschule "KGS Moritzberg" und das Gymnasium "Wilhelm-Gymnasium" haben einen hervorragenden Ruf und bieten eine fundierte Ausbildung. Für die Kleinsten stehen zahlreiche Kindergärten zur Auswahl, wie der "Städtische Kindergarten Moritzberg", der für seine freundliche Atmosphäre und engagierten Erzieher bekannt ist. Auch die gesundheitliche Versorgung ist in Hildesheim top. Mehrere Ärzte und Fachkliniken sind schnell erreichbar, sodass du immer gut versorgt bist. Supermärkte und Einkaufsmöglichkeiten sind in unmittelbarer Nähe, darunter der beliebte "REWE" und der "Aldi", die dir einen kurzen Weg für deinen täglichen Einkauf bieten. In der Freizeit kannst du die wunderschöne Natur rund um Hildesheim erkunden. Die Umgebung lädt zu Spaziergängen und Radtouren ein, während die historische Altstadt mit ihren charmanten Cafés und Geschäften zum Verweilen einlädt. Außerdem ist die Anbindung an den öffentlichen Nahverkehr und die Autobahn hervorragend, sodass du schnell in die umliegenden Städte gelangst. Ob du zur Arbeit pendelst oder einfach nur die Annehmlichkeiten der Stadt genießen möchtest, Hildesheim bietet dir alles, was du für ein erfülltes Leben benötigst.
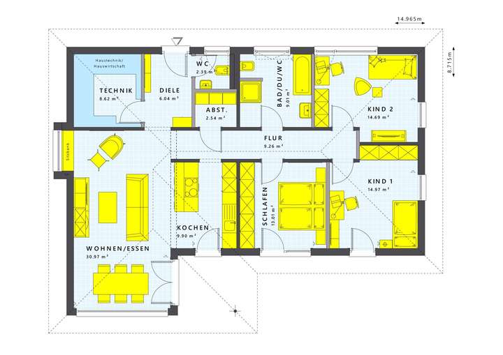
Grundriss
Gestaltungsbeispiel EG
>

Adresse
31177 Harsum
Interessante Orte
Preis- und Lageinformationen
Preistrend für Bestandsimmobilien in Harsum