Das 1959 errichtete Endreihenhaus erstreckt sich über drei Etagen und verbindet solide Bauqualität mit umgesetzten Modernisierungen und attraktiven Renditechancen. Mit 4 Zimmern auf einem ca. 233 m² großen Grundstück bietet es ein wohnfreundliches Ambiente für Eigennutzer und Kapitalanleger.
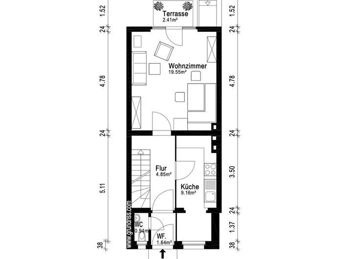
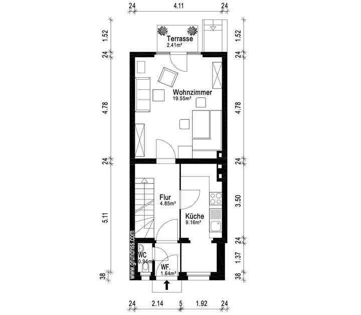
Im Erdgeschoss empfängt Sie ein heller Wohnbereich, der mit der angrenzenden Küche den Mittelpunkt des Hauses bildet. Große Fensterflächen sorgen für viel Tageslicht und schaffen eine offene Atmosphäre – ideal für Familienleben, Spieleabende oder entspannte Stunden.
Das 1. Obergeschoss verfügt über zwei gut geschnittene Zimmer, die flexibel als Schlaf-, Kinder- oder Arbeitszimmer genutzt werden können. Das Dachgeschoss beherbergt ein weiteres großzügiges Zimmer, aktuell als Büro und Kinderzimmer genutzt, das sich ebenso als Gäste- oder Hobbyraum eignet.
Ein Highlight ist der gepflegte Garten mit sonniger Terrasse. Hier genießen Sie den Morgenkaffee, gesellige Grillabende oder einfach Ruhe im Grünen. Ein kleines Gartenhaus bietet zusätzlichen Stauraum.
Das Haus verfügt über eine Gaszentralheizung, die für gleichmäßige Wärme sorgt. Wichtige Modernisierungen wurden bereits umgesetzt: 2024 neue Fenster, 2022 Austausch der Heizungsanlage inkl. Rohre und Heizkörper, Erneuerung des Duschbads und der Böden. Das Haus präsentiert sich gepflegt und zeitgemäß, lässt aber Raum für eigene Gestaltungsideen.
Die Immobilie ist seit dem 01.02.2023 an eine Familie vermietet. Die aktuelle Kaltmiete beträgt 1.428 €; ab 01.02.2026 steigt sie auf 1.498 €, ab 01.02.2027 auf 1.572 €.
Dieses Endreihenhaus vereint Bestandscharme, moderne Ausstattung, sonnige Außenbereiche und stabile Vermietung. Es spricht Kapitalanleger an, die eine langfristig sichere Investition suchen, ebenso wie Eigennutzer, die ein Zuhause mit Potenzial und Wohlfühlambiente wünschen.
Charmantes vermietetes Reihenendhaus mit Terrasse und Entwicklungspotenzial in zentraler Lage!
21149 Hamburg
Die vollständige Adresse der Immobilie erhalten Sie vom Anbieter.
Auf Karte anzeigen
Die vollständige Adresse der Immobilie erhalten Sie vom Anbieter.
Finanzierungszertifikat
In nur zwei Minuten zu Ihrem persönlichen Finanzierungszertifkat.
Infos
| Haustyp | Reiheneckhaus |
|---|---|
| Etagenzahl | 2 |
| Wohnfläche ca. | 68 m2 |
| Nutzfläche | 31 m2 |
| Grundstücksfläche | 233 m2 |
| Zimmer | 4 |
| Schlafzimmer | 3 |
| Badezimmer | 1 |
Kosten
| Kaufpreis |
369.000 € |
|---|---|
| Provision |
3,57% |
Finanzierungsrechner:
Kaufpreis:
600.000 €
Eigenkapital:
600.000 €
Monatliche Rate
0 €
Effektiver Jahreszins
0 %
Sollzinsbindung
10 Jahre
Bausubstanz & Energieausweis
| Baujahr | 1959 |
|---|---|
| Objektzustand | Gepflegt |
| Heizungsart | Zentralheizung |
| Wesentliche Energieträger | Erdgas leicht |
| Energieausweis | liegt vor |
| Energieausweistyp | Bedarfsausweis |
| Energieverbrauchskennwert | 119,0 kWh/(m²*a) |
| Energieeffizienzklasse | D |
119,0
kWh/(m²*a)
Energieeffizienzklasse D
- A+
- A
- B
- C
- D
- E
- F
- G
- H
- 0
- 25
- 50
- 75
- 100
- 125
- 150
- 175
- 200
- 225
- >250
Beschreibung des Objekts
Lage
Hamburg zählt als Freie und Hansestadt zu den bedeutendsten Metropolen Norddeutschlands und verbindet als Hafen-, Wirtschafts- und Kulturstandort urbanes Leben mit hoher Lebensqualität. Gerade die Randlagen wie Neugraben-Fischbek im Bezirk Harburg bieten das Beste aus zwei Welten: viel Natur, Ruhe und Platz, ohne auf die Vorteile der Großstadt zu verzichten. Die Immobilie liegt im Südwesten Hamburgs in einem ruhigen Wohngebiet mit Einfamilien- und Reihenhäusern. Als Anliegerstraße mit Tempo 30 vermittelt sie eine familienfreundliche Atmosphäre. Besonders attraktiv ist die Nähe zur Fischbeker Heide, einem der größten Natur- und Heidegebiete Hamburgs. Weitläufige Flächen laden zu Spaziergängen, Radtouren oder sportlichen Aktivitäten ein und verleihen der Lage eine hohe Freizeit- und Erholungsqualität.
Auch für Familien ist der Standort ideal: Mehrere Grundschulen wie Neugraben oder Ohrnsweg liegen in der Nähe und bieten Ganztagsbetreuung sowie vielfältige Förderangebote. Mit der Stadtteilschule Fischbek-Falkenberg steht zudem eine weiterführende Schule mit Oberstufe zur Verfügung. Kurze Wege zu Kitas, Schulen und Spielplätzen sind gewährleistet, Hamburg investiert hier kontinuierlich in Bildung und Betreuung.
Das Freizeitangebot ist breit gefächert. Neben der Natur locken Sportvereine und Hallen in Neugraben-Fischbek, die Fußball, Schwimmen, Fitness und mehr anbieten. Tennisspieler finden in Süderelbe und Umgebung verschiedene Clubs und Anlagen. Ein Highlight ist die CU-Arena, eine Mehrzweckhalle für Sport- und Kulturveranstaltungen sowie Treffpunkt für die Nachbarschaft.
Die Nahversorgung ist sehr gut: Supermärkte, Fachgeschäfte, Cafés, Ärzte und Apotheken liegen im Zentrum Neugrabens rund um die Marktpassage. Mit Busverbindungen und den S-Bahn-Stationen Neugraben und Fischbek erreichen Pendler die Hamburger Innenstadt in 30 bis 45 Minuten. Zudem ermöglichen Bundesstraßen und Autobahnen eine schnelle Anbindung Richtung Nordseeküste und niedersächsisches Umland.
Grundriss
EG
>
>
OG
>
>
DG
>
>
Adresse
21149 Hamburg
Interessante Orte
Preis- und Lageinformationen
Preistrend für Bestandsimmobilien in Neugraben-Fischbek