Objektnr: 1065453 Ihre Suche nach dem optimalen Zuhause findet hier ein Ende. Das ursprünglich 1651 erbaute und denkmalgeschützte Haus wurde in den 80 er Jahren komplett überarbeitet und neu hergerichtet. Das charmante Landhaus charakterisiert sich durch einen gepflegten Zustand und dem parkähnlichen Garten. 1951 erfolgte bereits der Anbau, in dem Büro- und Wohnräume vorhanden sind. Auf dem Grundstück befinden sich noch 5 weitere Gebäude mit verschiedenen Nutzungsmöglichkeiten. Ein Gebäude dient z. B. als Doppelgarage und 2 andere Gebäude können noch zu Wohnraum umgebaut werden. Die ca. 462,46 m² Wohnfläche sind mit 16 Zimmern und 7 Schlafzimmern auf das Haupthaus und dem Anbau verteilt. 4 Badezimmer mit Dusche und Badewanne sowie ein Gäste-WC gehören ebenfalls zum Grundriss der Immobilie. Viele Köpfe, viele Hobbys, viele Ideen: Dank der großen Raumvielfalt können Sie das Zuhause nutzen, wie es Ihnen gefällt. Zu verzeichnen hat das attraktive Angebot zahlreiche Highlights: So wartet es bspw. mit einem Kaminzimmer und der angrenzenden Küche auf, die den Lebensmittelpunkt des Anwesens bilden. Dank des ca. 4.535 m² großen Grundstücks gehört zu Ihrem Alltag künftig viel Zeit unter freiem Himmel. Ein besonderes Highlight ist der Garten mit Terrasse: Ein wahres Paradies, das sich durch seine außerordentlich großzügige Fläche auszeichnet. Das Grundstück ist größtenteils sichtgeschützt, wozu die bis zu 100 Jahre alten Eichen ihren Teil beitragen. Aufgrund von Denkmalschutz ist kein Energieausweis erforderlich.
Charmantes Landhaus mit Nebengebäuden in Cappeln
49692 Cappeln (Oldenburg)
Die vollständige Adresse der Immobilie erhalten Sie vom Anbieter.
Auf Karte anzeigen
Die vollständige Adresse der Immobilie erhalten Sie vom Anbieter.

Finanzierungszertifikat
In nur zwei Minuten zu Ihrem persönlichen Finanzierungszertifkat.
Infos
Haustyp | Sonstige |
---|---|
Etagenzahl | 1 |
Wohnfläche ca. | 462 m2 |
Grundstücksfläche | 4.535,27 m2 |
Bezugsfrei ab | nach Absprache |
Zimmer | 16 |
Schlafzimmer | 7 |
Badezimmer | 4 |
Garage/Stellplatz | Garage |
Anzahl Garage/Stellplatz | 6 |
Kosten
Kaufpreis |
749.000 € |
---|---|
Provision |
2,98 % Die Provision i.H.v. 2,98 % inkl. MwSt. ist mit Kaufvertragsbeurkundung fällig, sofern der Verkaufspreis über 83.000,00 € liegt. Liegt der Verkaufspreis dagegen bei/unter 83.000,00 €, ist die fest vereinbarte Mindestprovision i.H.v. mind. 5.950,00 € inkl. MwSt. mit Kaufvertragsbeurkundung fällig. Die Mindestprovision fällt insg. nur einmal an, wodurch Verkäufer und Käufer die Mindestprovision dann jeweils mit 2.975,00 € inkl. MwSt. tragen. |
Finanzierungsrechner:
Kaufpreis:
600.000 €
Eigenkapital:
600.000 €
Monatliche Rate
0 €
Effektiver Jahreszins
0 %
Sollzinsbindung
10 Jahre
Bausubstanz & Energieausweis
Baujahr | 1651 |
---|---|
Bauphase | Haus fertig gestellt |
Denkmalschutzobjekt | Ja |
Objektzustand | Gepflegt |
Qualität der Austattung | Gehoben |
Beschreibung des Objekts
Ausstattung
+ In ruhiger Umgebung von Cappeln, beschaulich und sicher in einer Nebenstraße, hervorragend als Ihr neues Heim + Erholung pur: Der größtenteils sichtgeschützte Garten auf ca. 4.535 m² Grund lädt zum Verweilen ein + Genießen Sie den gepflegten Zustand des Objektes + Hochwertige Ausstattung des Hauses mit Raumvielfalt inkl. einer Einbauküche sowie einem Natursteinboden + Eine Doppelgarage bietet Platz für 2 Autos, sowie 2 freie Stellplätze davor.
Lage
Lage: Attraktive Lage in Cappeln mit besten Möglichkeiten für Eigennutzer Bildung und Betreuung: Mehrere Kindergärten und einigen Schulen in ca. 6 km bis ca. 9 km Entfernung Nahversorgung: Einkäufe schnell abhaken: Supermarkt, Apotheke und Bankfiliale in max. 5 Gehminuten Anbindung: Gut erreichbar: nächste Bushaltestelle, nächster Bahnhof sowie nächste Autobahn
Sonstige Angaben
Vereinbaren Sie noch heute einen Besichtigungstermin! _____________________________________________________ Alle Angaben sind ohne Gewähr und basieren ausschließlich auf Informationen, die uns von unserem Auftraggeber zur Verfügung gestellt wurden. Wir übernehmen keine Gewähr für die Vollständigkeit, Richtigkeit und Aktualität der Angaben.
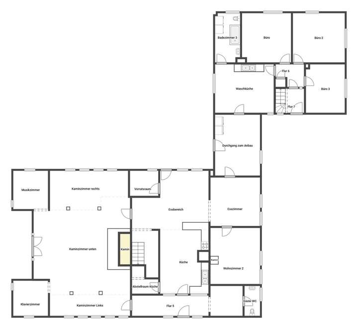
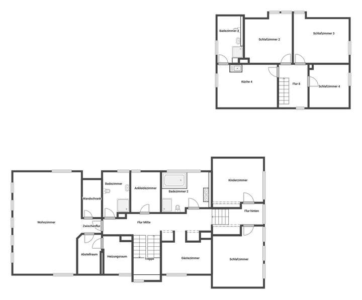
Grundriss
Grundriss Skizze EG
>

Grundriss Skizze 1.OG
>

Adresse
49692 Cappeln (Oldenburg)
Interessante Orte
Preis- und Lageinformationen
Preistrend für Bestandsimmobilien in Cappeln (Oldenburg)