Das optimale Zuhause für all jene, die viel Wert auf ein ausreichendes Platzangebot legen, bieten wir Ihnen mit dieser Immobilie. Besonderer Komfort ohne Instandsetzungsbedarf zählt zu den Vorzügen der Immobilie. Sie präsentiert sich modernisiert und ermöglicht so hervorragende Bedingungen für einen schnellen Einzug.
Das 1964 errichtete Gebäude wurde in den letzten 10 Jaren laufend und umfassend modernisiert und präsentiert sich heute in einem technisch wie optisch hervorragenden Zustand.
Es wurden u.a. alle Leitungen und Böden sowie die Gas- Zentralheizung erneuert. Weiterhin sind alle Fensterelemente mit Rollläden sowie die Eingangstür erneuert worden.
Die Dachgeschossdecke ist auch bereits gedämmt sowie die Dachfenster erneuert.
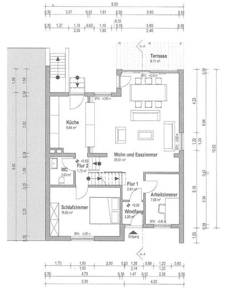
Rund 103 m² großzügiger Wohnfläche mit 4 Zimmern, darunter 3 Schlafzimmer, werden in diesem Objekt geboten, wobei die Raumaufteilung neben den gemeinsamen Räumen auch genügend Rückzugsmöglichkeiten eröffnet. Als familienfreundlich erweisen sich ein Badezimmer mit Dusche sowie ein Gäste-WC. Viel Komfort im Alltag verspricht die hochwertige Ausstattung, die u.a. einer hochwertigen Einbauküche, die Fußbodenheizung in Erdgeschoss sowie elektrische Rollläden umfasst.
Gemütliches Beisammensein genießen Sie dank der großen Panoramafenster im Wohnzimmer sowie die teilüberdachte Terrasse. Der pflegeleicht angelegte Garten bietet weiteren Raum zur Erholung.
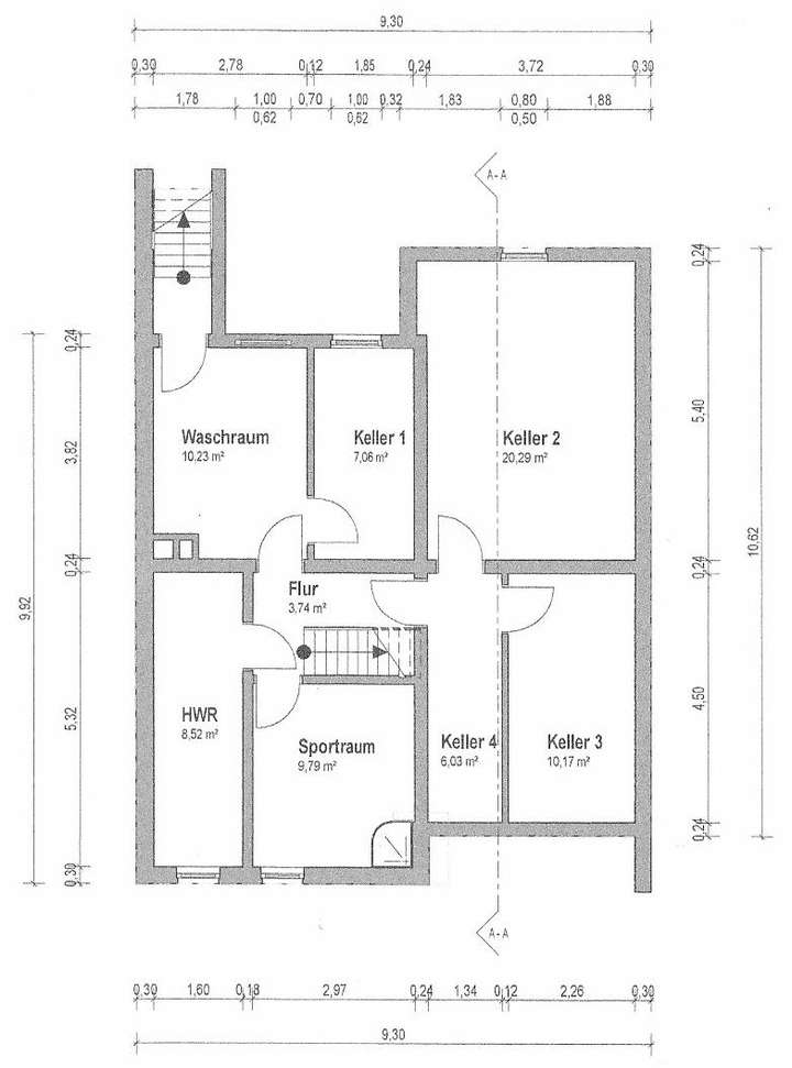
Im Kellergeschoss beherbergt das Reihenendhaus weitere Nutzfläche sowie ein Hobbyraum.
Der Energieausweis ist in Arbeit und wird zeitnah bzw. bei einer Objektbesichtigung vorliegen.
Wir freuen uns, Ihnen das Objekt bei einer persönlichen Besichtigung vorzustellen.
GROLLAND│Für Ihr Familienglück: Modernisiertes Einfamilienhaus in guter Lage
28259 Bremen
Die vollständige Adresse der Immobilie erhalten Sie vom Anbieter.
Auf Karte anzeigen
Die vollständige Adresse der Immobilie erhalten Sie vom Anbieter.
Finanzierungszertifikat
In nur zwei Minuten zu Ihrem persönlichen Finanzierungszertifkat.
Infos
| Haustyp | Reiheneckhaus |
|---|---|
| Etagenzahl | 2 |
| Wohnfläche ca. | 103 m2 |
| Nutzfläche | 58 m2 |
| Grundstücksfläche | 341 m2 |
| Bezugsfrei ab | nach Vereinbarung |
| Zimmer | 4 |
| Schlafzimmer | 3 |
| Badezimmer | 1 |
Kosten
| Kaufpreis |
375.500 € |
|---|---|
| Provision |
2,38 % des Kaufpreises inkl. MwSt., jeweils für Käufer und Verkäufer Das vom Käufer der Immobilie zu zahlende Maklerhonorar beträgt 2,38 % des beurkundeten Kaufpreises inkl. der gesetzl. MwSt. und ist mit Unterzeichnung des Kaufvertrages verdient und fällig. |
Finanzierungsrechner:
Kaufpreis:
600.000 €
Eigenkapital:
600.000 €
Monatliche Rate
0 €
Effektiver Jahreszins
0 %
Sollzinsbindung
10 Jahre
Bausubstanz & Energieausweis
| Baujahr | 1964 |
|---|---|
| Objektzustand | Modernisiert |
| Qualität der Austattung | Gehoben |
| Heizungsart | Gas-Heizung |
| Wesentliche Energieträger | Gas |
| Energieausweis | liegt zur Besichtigung vor |
Beschreibung des Objekts
Lage
Die Immobilie befindet sich in einem ruhigen Wohngebiet im Bremer Ortsteil Grolland, Stadtteil Huchting.
Es verbindet Bremen mit Delmenhorst. Geprägt ist der Stadtteil durch vorwiegend Einfamilienhäusern mit Vorgarten und zum Teil auch reichlich Land hinter dem Haus. Gutbürgerliche, solide Menschen leben hier. Die Infrastruktur ist sehr gut ausgebaut, was man so nicht erwartet hätte. Aber in den letzten Jahren, auch bedingt durch den vermehrten Zuzug von Familien, hat sich hier sehr viel getan. Kindergärten, Schulen der verschiedenen Jahrgänge, Sportvereine sind vorhanden. Aber auch die ältere Generation hat hier aufgerüstet. Seniorenheime und Pflegeeinrichtungen sind hier nicht mehr wegzudenken. Grünanlagen laden zum ausgedehnten Wandern oder auch anderen Freizeitaktivitäten ein. Auch auf ein Hallenbad hat man hier Wert gelegt. Einkaufsmöglichkeiten „ohne Ende“ bietet hier das Roland-Center. Der bunte Mix aus Shoppingmall und Marktplatz macht hier gute Laune. Außerdem kann man hier, oder auch im näheren oder weiteren Umkreis, nach einer anstrengenden Einkaufstour, bei kulinarischen Köstlichkeiten, entspannen. Das Öffentliche Verkehrsnetz ist bestens ausgebaut und man kommt von hier fast überall hin. Die B75 ist den Autofahrern unter uns, auch über den Stadtgrenzen von Bremen hinaus, bekannt.
Sonstige Angaben
Wir bitten um Verständnis dafür, dass wir detaillierte Informationen zu unserem Verkaufsobjekt nur erteilen, wenn Sie in Ihrer Mail-Anfrage Ihre vollständige Adresse und Ihre Telefonnummer, unter der wir Sie tagsüber erreichen können, angeben. Um unnötige Rückfragen zu vermeiden, füllen Sie das Kontaktformular bitte vollständig aus. Nur so können wir auf Ihre Anfrage schnell reagieren.
Alle in diesem Angebot enthalten Angaben, Abmessungen und Preisangaben beruhen auf Angaben des Eigentümers (oder eines Dritten). Irrtum sowie Zwischenverkauf vorbehalten.
FAIR IMMOBILIEN übernimmt hierfür keine Haftung. Dieses Objekt ist für den Käufer provisionspflichtig.
Bitte beachten Sie unseren Provisionshinweis.
Benötigen Sie ergänzende Informationen oder wünschen Sie einen unverbindlichen Besichtigungstermin, dann steht Ihnen Herr Evzi Jahja telefonisch unter den Rufnummern Büro: 0421 / 577 97 432 oder
Mobil: 0179 32 74 924 auch außerhalb der üblichen Geschäftszeiten gerne zur Verfügung.
----------------------------------------------------------------------------------
Weitere faire Kaufangebote finden Sie auf unserer Homepage
www.fair-immobilien24.de !
-----------------------------------------------------------------------------------
Grundriss
Raumaufteilung (EG)
>
>
Raumaufteilund (OG)
>
>
Raumaufteilung (KG)
>
>
Querschnitt
>
>
Adresse
28259 Bremen
Interessante Orte
Preis- und Lageinformationen
Preistrend für Bestandsimmobilien in Grolland