Video (Haus außen, Garten, Lage): https://vimeo.com/1109068898/8f549578ae
Besichtigung ohne Wartezeit und Fahrtaufwand? Mit dem 360°-Rundgang können Sie alle Innenräume und den Außenbereich vorab online in 3D besichtigen. Die Zugangsdaten und ein detailliertes Exposé mit Objektanschrift erhalten Sie am schnellsten, indem Sie in das Anfrageformular Ihre vollständigen Kontaktdaten eintragen (bitte mit Rufnummer). Wenn Sie nach dem 360°-Rundgang eine Vor-Ort-Besichtigung oder weitere Informationen wünschen, freuen wir uns auf Ihre erneute Kontaktaufnahme.
DAS WESENTLICHE KURZ GEFASST
- ruhige, gehobene Wohnlage direkt am Feldrand in Waldnähe
- gepflegtes Wohnhaus mit 419 m² Wohnfläche (gemäß Wohnflächenverordnung)
- zusätzlich 178 m² wohnwirtschaftlich ausgebaute Flächen im Untergeschoss und Spitzboden (zu je 50 % in Nfl.- und Wfl.-Angabe enthalten)
- als Einfamilienhaus mit Einliegerwohnung oder als drei separate Wohneinheiten nutzbar
- Aufteilungsfähigkeit nach WEG (Abgeschlossenheit und Pkw-Stellplätze vorhanden)
- Fassadendämmung, überwiegend dreifach verglaste Fenster, Solaranlage auf der Südostseite
- helle Wohnräume, teils mit bodentiefen Fenstern und Aussicht ins Grüne
- drei Bäder, fünf Gäste-WC sowie je ein Küchenanschluss pro Etage
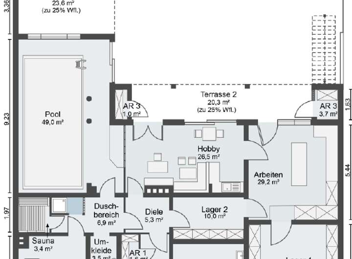
- beheizbarer Wellnessbereich im UG mit Pool (mit Gegenschwimmanlage), Sauna und Gartenzugang
- drei Balkone und vier Terrassen mit Südausrichtung, teils überdacht und sichtgeschützt
- Doppelgarage mit Strom- und Wasseranschluss sowie E-Ladestation
- 1.955 m² großes Grundstück, gepflegter Garten mit altem Baumbestand und Privatsphäre
Das Haus wurde 1972 errichtet und in den Folgejahren erweitert: 1978/80 erfolgten Anbauten im Erd- und Obergeschoss. Die Immobilie befindet sich in einem gepflegten Zustand und wurde über die Jahre hinweg regelmäßig modernisiert. Einzelne Bereiche der Innenausstattung – insbesondere EBK, Bäder und Bodenbeläge im Erd- und Obergeschoss – sind modernisierungsbedürftig.
In sehr guter Lage: Gepflegtes Haus mit drei Wohnungen (WEG-aufteilbar) auf weitläufigem Grundstück
60599 Frankfurt am Main
Die vollständige Adresse der Immobilie erhalten Sie vom Anbieter.
Auf Karte anzeigen
Die vollständige Adresse der Immobilie erhalten Sie vom Anbieter.
Finanzierungszertifikat
In nur zwei Minuten zu Ihrem persönlichen Finanzierungszertifkat.
Infos
| Haustyp | Mehrfamilienhaus |
|---|---|
| Wohnfläche ca. | 508 m2 |
| Grundstücksfläche | 1.955 m2 |
| Bezugsfrei ab | bezugsfrei nach Absprache |
| Zimmer | 11 |
| Anzahl Garage/Stellplatz | 3 |
Kosten
| Kaufpreis |
2.475.000 € |
|---|---|
| Provision |
3,57% des Kaufpreises |
Finanzierungsrechner:
Kaufpreis:
600.000 €
Eigenkapital:
600.000 €
Monatliche Rate
0 €
Effektiver Jahreszins
0 %
Sollzinsbindung
10 Jahre
Bausubstanz & Energieausweis
| Baujahr | 1972 |
|---|---|
| Bauphase | Haus fertig gestellt |
| Objektzustand | Gepflegt |
| Heizungsart | Zentralheizung |
| Wesentliche Energieträger | Gas |
| Energieausweistyp | Bedarfsausweis |
| Energieverbrauchskennwert | 80,5 kWh/(m²*a) |
| Energieeffizienzklasse | C |
80,5
kWh/(m²*a)
Energieeffizienzklasse C
- A+
- A
- B
- C
- D
- E
- F
- G
- H
- 0
- 25
- 50
- 75
- 100
- 125
- 150
- 175
- 200
- 225
- >250
Beschreibung des Objekts
Ausstattung
EBENFALLS WISSENSWERT
Im Jahr 2011 wurde das Dach um 1,17 m angehoben, eine Dachterrasse ergänzt und der Spitzboden ausgebaut.
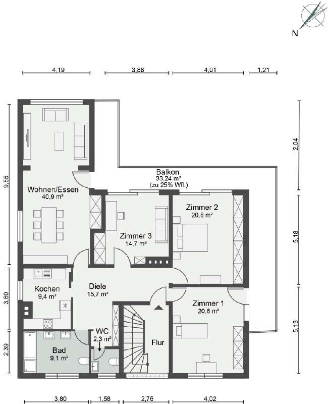
Mit drei separat zugänglichen Wohneinheiten bietet das Haus vielseitige Nutzungsmöglichkeiten: als großzügiges Einfamilienhaus mit Einliegerwohnung oder zur Aufteilung in drei abgeschlossene Wohneinheiten. Jede Wohnung verfügt über eine eigene Küche, ein Bad und ein Gäste-WC.
Die Immobilie eignet sich besonders für Familien, Selbstständige oder als generationenübergreifendes Wohnhaus. Im Untergeschoss befindet sich ein großzügiges, tagesbelichtetes Büro mit separatem Zugang und großzügigen Lagerflächen. Hier war zuletzt ein Malerbetrieb ansässig – eine teilgewerbliche Nutzung ist grundsätzlich möglich.
AUSSTATTUNG
- Haustür aus Massivholz (Mahagoni) mit Lichtausschnitten, Mehrfachverriegelung, mechatronischem Zylinder und Gegensprechanlage
- Eingangstreppe mit Überdachung
- Treppenhaus: Beton mit Natursteinbelag, Metallgeländer, Glasbausteine und Dachfenster für Tageslicht
- Wohnungstüren aus Holz (Mahagoni) mit mechatronischem Zylinder; DG mit Lichtausschnitt aus Strukturglas
- Fenster: überwiegend Kunststoffrahmen dreifach verglast (2022/24), teils Holzrahmen zweifach verglast
- Dachfenster: Velux, weiße Kunststoffrahmen, Doppelverglasung (2005)
- Fußbodenbeläge: Laminat (DG), Korkfliesen (OG), Naturstein (UG), Teppich (EG), PVC, Fliesen
- ältere Einbauküche im EG mit gelb/orangenen Laminatfronten, heller Laminatarbeitsplatte, Markengeräte
- Terrassen: SO-Ausrichtung, UG 24 m², EG 41 m², DG 50 m²; teilweise überdacht und sichtgeschützt
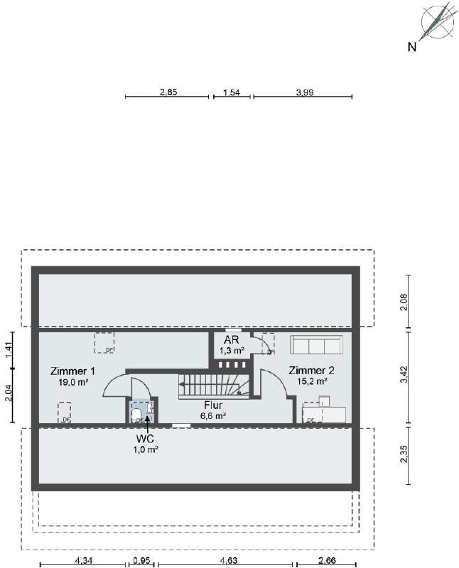
- Balkone: EG: 7 m²; OG: 33 m²; DG: 7 m²; SW-Ausrichtung; größtenteils überdacht und uneinsehbar
- sonstige Ausstattung: Sauna, Pool (3,56 x 7,46 m), Einbauschränke
- Schallschutz: Trittschalldämmung (2,5 cm Styropor)
- Sicherheitstechnik: Alarmanlage, abschließbare Fenster (UG/EG), Bewegungsmelder, Rauchmelder
Sonstige Angaben
AUßENANLAGE
- gepflegter Garten in Südostausrichtung mit großer Rasenfläche, zahlreichen Sträuchern und Bäumen sowie Beleuchtung, Außenwasser
- Vorgarten in Nordwestausrichtung; Mülltonnenschränke
- Bepflanzung: Rasen, diverse Bäume, Zeder, Bambus, Beerensträucher, Hortensien, Rosen
- Zuwegung: Kiesweg, Kopfstein- und Natursteinpflasterweg
- Einfriedung: Maschendrahtzaun, Hecken, Bäume und Sträucher; weitgehend uneinsehbarSONSTIGES
SONSTIGES
- Gaszentralheizung: Viessmann Viticrosall 300 45 KW (2014) mit Wamwasserspeicher 500 l (2016)
- Doppelgarage mit Strom/Wasser/E-Ladestation
- Stellplatz
- Aufsparrendämmung Dach: 12 cm Hartschaum; Flachdach Terrasse: 20 cm Mineral-/Naturfaserdämmung
- Solarkollektoren zur Warmwasserbereitung und zur Unterstützung der Poolwassererwärmung
- Dämmung Außenwände: 10 cm Polystyrol im DG
- Bauweise: Massiv
- Bezug: nach Absprache
- Raumhöhe: UG: 2,25 m; EG/OG/DG: 2,5 m; SB: 1,99 m
- Nutzfläche gesamt: 369 m²
- Nutzfläche Keller: 210 m²
- Nutzfläche Dachgeschoss: 43 m²
- Nutzfläche Nebengebäude: 70 m²
- Nutzfläche Garage: 27,5 m²
- Nebengebäude: vier Gartenhäuschen (ca. 7-11 m²), Schuppen (ca. 36 m²)
- Gesamtbetriebskosten: ca. 1.302 €/mtl.
MODERNISIERUNGEN
- 2011: Aufstockung Dachgeschoss mit Erneuerung von Dacheindeckung und -dämmung, Montage Solaranlage, Herstellung große Dachterrasse
- 2014: neuer Heizkessel, Gasleitungsprüfung
- 2022: Erneuerung Eingangstreppe, Türumrahmung, Trinkwasseranschluss
- 2025: Erneuerung Abwasserrohre (Untergeschoss)
- erforderliche Maßnahmen mittelfristig: im EG und OG Bäder, Bodenbeläge, Einbauküchen
Sie sind Immobilienvermittler und stehen in Kontakt mit einem Interessenten, für den diese Immobilie passend sein könnte? Wir sind im Alleinauftrag tätig, kooperieren jedoch gerne mit Ihnen. Bitte senden Sie uns hierfür zunächst das Kontaktformular mit dem Hinweis – Kooperationsanfrage – zu, wir nehmen innerhalb eines Werktages Kontakt mit Ihnen auf.
Weitere Dokumente
AGBGrundriss
Grundriss UG-Souterrain
>
>
Grundriss EG
>
>
Grundriss OG
>
>
Grundriss DG
>
>
Grundriss Spitzboden
>
>
Adresse
60599 Frankfurt am Main
Interessante Orte
Preis- und Lageinformationen
Preistrend für Bestandsimmobilien in Sachsenhausen-Süd