Das Mehrfamilienhaus aus dem Jahr 1970 befindet sich in einem gepflegten Zustand und erstreckt sich über insgesamt 2 Etagen. Auf einer Grundstücksfläche von 1101 m² bietet die Immobilie ausreichend Platz für Bewohner und Fahrzeuge. Neben 5 Parkplätzen verfügt die Immobilie noch über 1 Garage. Eine letzte Modernisierung fand im Jahr 2024 statt hier wurde die Wohnung im 1.Obergeschoss komplett renoviert inkl. Bad.
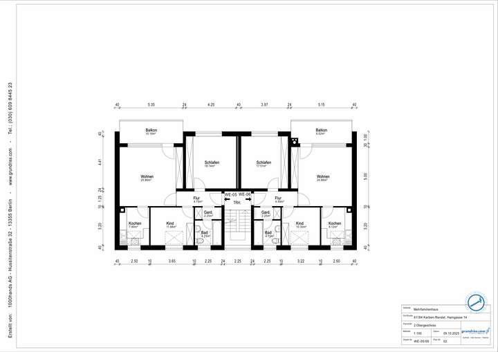
Pro Etage befinden sich jeweils 2 Wohnungen mit 74,09m² und 77,63m²mit einer Gesammtwohnfläche von 455 m². Jede Wohnung verfügt über einen Balkon die den Bewohnern Platz zum Entspannen im Freien bieten ebenso wie der große Garten. Ein Keller mit einer Fläche von 100 m² bietet zusätzlichen Stauraum für Bewohner.
Ebenso zum Verkauf steht ein gepflegtes Einfamilienhaus, dieses hat ca.100m² Wohnfläche und ist zu 80% unterkellert. Die Immobilie ist bereits im Angebotspreis enthalten, ist aber völlig eigenständig.
6 Familienhaus und ein 1 Familienhaus auf einem 1101qm großem Grundstück
Haingasse 0,
61184 Karben
Auf Karte anzeigen
Finanzierungszertifikat
In nur zwei Minuten zu Ihrem persönlichen Finanzierungszertifkat.
Infos
| Haustyp | Mehrfamilienhaus |
|---|---|
| Etagenzahl | 2 |
| Wohnfläche ca. | 455 m2 |
| Nutzfläche | 100 m2 |
| Grundstücksfläche | 1.101 m2 |
| Zimmer | 18 |
| Anzahl Garage/Stellplatz | 6 |
Kosten
| Kaufpreis |
1.290.000 € |
|---|---|
| Provision |
5,95 inkl. MwSt. |
| Mieteinnahmen | 4.645 € |
Finanzierungsrechner:
Kaufpreis:
600.000 €
Eigenkapital:
600.000 €
Monatliche Rate
0 €
Effektiver Jahreszins
0 %
Sollzinsbindung
10 Jahre
Bausubstanz & Energieausweis
| Baujahr | 1970 |
|---|---|
| Letzte Sanierung | 2024 |
| Objektzustand | Gepflegt |
| Heizungsart | Gas-Heizung |
| Wesentliche Energieträger | Gas |
| Energieausweis | liegt vor |
| Energieausweistyp | Verbrauchsausweis |
| Energieverbrauchskennwert | 129,5 kWh/(m²*a) |
| Energieeffizienzklasse | D |
129,5
kWh/(m²*a)
Energieeffizienzklasse D
- A+
- A
- B
- C
- D
- E
- F
- G
- H
- 0
- 25
- 50
- 75
- 100
- 125
- 150
- 175
- 200
- 225
- >250
Beschreibung des Objekts
Ausstattung
6 Familienhaus mit großem Garten und ein Einfamilienhaus
Gedämmte Außenfassade
5 Stellplätze
1 Garage
Großer Garten
Alle Wohnungen haben einen Balkon
1 Wohnung im Erdgeschoss und im1.OG sind frei und eine Wohnung im DG wird zum 01.03.2026 frei, ebenso wurde das freistehende Haus zum 01.05.2026 gekündigt somit können die Einnahmen erhöht werden.
Lage
Das Objekt befindet sich in Karben-Rendel
Karben ist eine Stadt im Wetteraukreis. Sie liegt ca. 20 km nordöstlich von Frankfurt am Main. Der Fluss Nidda verläuft durch die Ortsteile Okarben, Klein-Karben und Groß-Karben.
Karben besteht aus den Stadtteilen Burg-Gräfenrode, Groß-Karben, Klein-Karben, Kloppenheim, Okarben, Petterweil und Rendel.
Die Einwohnerzahl der Stadt Karben beträgt ca. 22.000.
Karben liegt an der B3. Die nächstgelegenen Autobahnanschlüsse sind Friedberg (A5, AS16) im Norden und Preungesheimer Dreieck (A661, AS8) im Süden.
Mit öffentlichen Verkehrsmitteln, Bus und S-Bahn (S6) erreicht man die Frankfurter City in 30 Minuten oder Friedberg in 12 Minuten.
Die Stadt Karben hat den Bahnhof Groß Karben und einen Haltepunkt Okarben.
Karben bietet zahlreiche Einkaufs- und Freizeitmöglichkeiten, Vereine sowie ein Hallenfreizeitbad.
Es gibt mehrere Reitanlagen in den Stadtteilen und eine Skate- und Rollsportanlage in Klein-Karben.
Schulen:
In Karben gibt es 7 Kindertagesstätten, 5 Grundschulen (z.T. mit Betreuung) und die Kurt-Schumacher Schule, eine Kooperativen Gesamtschule mit einem Haupt- Real- und einem Gymnasialzweig.
Sonstige Angaben
SIK-Immobilien-Service
Ihr Partner rund um Immobilien in Frankfurt und Rhein-Main
SIK-Immobilien-Service ist seit Juli 1993 in Frankfurt/Bergen-Enkheim erfolgreich am Markt und deckt mit derzeit insgesamt 4 Mitarbeitern alles rund um die Vermittlung von Wohn- und Gewerbeimmobilien, Grundstücken und Hausverwaltung in der Region ab. Unser Wirkungskreis liegt etwa 50 Kilometer rund um Frankfurt Bergen – Enkheim.
Erfahrung und Service pur:
Frau Schmidt-Rehbein - seit 1979 in der Immobilienbranche aktiv - und Herr Schmidt (ebenfalls 30 Jahre Erfahrung in der Immobilienbranche) sind Ihre kompetenten Ansprechpartner und leiten SIK-Immobilien-Service seit Jahren erfolgreich.
Die Bezeichnung Immobilien-Service stellt für uns nicht nur Firmenname sondern auch Anspruch an uns und unsere Arbeit dar, die sich vor allem durch eine individuelle Betreuung unserer Kunden sowie Interessenten ausgezeichnet.
Sollten Sie aktuell keine passenden Objekte in unserem umfangreichen Angebot finden, so akquirieren wir gerne gezielt nach Ihren Wünschen.
Unsere Arbeit umfasst nicht nur Besichtigungen der Objekte, sondern wir kümmern uns auf Wunsch auch um öffentlichkeitswirksame Werbemaßnahmen und alle nötigen Formalitäten für die Abwicklung des Kaufs oder des Mietvertrages.
Selbstverständlich sind für uns auch die Bonitätsprüfung der Interessenten sowie die Vorbereitung des Vertrages nach den Vorgaben der Eigentümer oder die Ummeldungen an die Versorgungsunternehmen. Weitere Dienstleistungen übernehmen wir gerne fachgerecht und kompetent für Sie.
Auch nach geschlossenem Miet- oder Kaufvertrag stehen wir Interessenten sowie Eigentümern bei Problemen oder für etwaige offene Fragen jederzeit gerne zur Verfügung.
Wir hoffen, auch für Sie erfolgreich tätig sein zu dürfen und freuen uns auf eine gute und angenehme Zusammenarbeit.
Ihr aktiver Partner in allen Fragen rund um die Immobilie!
Nehmen Sie doch einfach Kontakt mit uns auf. Wir beraten Sie in allen Fragen rund um die Immobilie.
Grundriss
Erdgeschoss
>
>
1.Obergeschoss
>
>
2.Obergeschoss
>
>
Keller
>
>
Adresse
Haingasse 0, 61184 Karben
Interessante Orte
Preis- und Lageinformationen
Preistrend für Bestandsimmobilien in Karben