Dieser gepflegte Bungalow aus dem Jahr 1975 liegt im beliebten Schortenser Ortsteil Sillenstede und bietet komfortables Wohnen auf einer Ebene. Das großzügige Grundstück mit sonniger Süd-West-Terrasse und Garten schafft einen Ort, an dem man sofort ankommen und sich wohlfühlen kann.
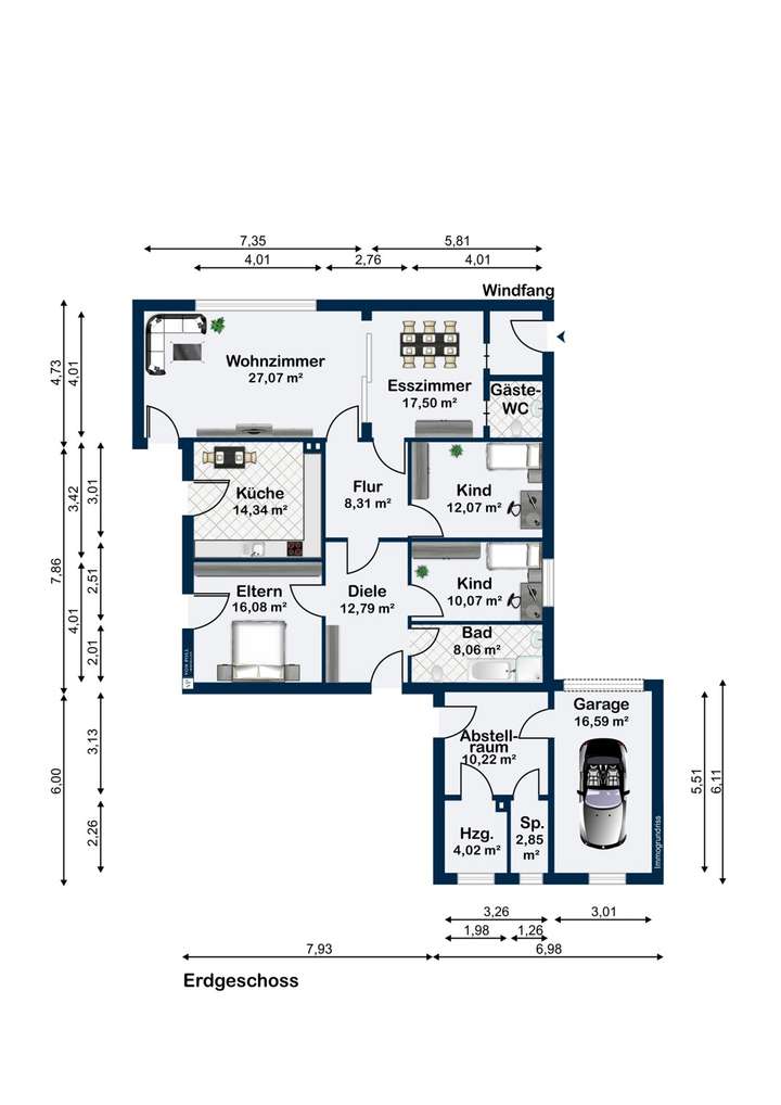
Der Eingangsbereich empfängt Sie mit einem praktischen Windfang und einem Gäste-WC. Im Zentrum des Hauses liegt die helle Wohn- und Essdiele, die als Mittelpunkt alle Räume erschließt. Besonders hervorzuheben ist die große Schiebetür, die von hier aus direkt ins Wohnzimmer führt. So entsteht entweder ein offenes, großzügiges Raumgefühl oder bei geschlossener Tür ein separater Rückzugsort mit viel Gemütlichkeit. Wohnzimmer, Küche und Elternschlafzimmer haben zudem direkten Zugang zur Terrasse und schaffen einen harmonischen Übergang ins Grüne. Zwei weitere Zimmer eignen sich flexibel als Kinder-, Gäste- oder Arbeitszimmer. Ein helles Tageslichtbad mit Dusche und Wanne ergänzt den Grundriss.
Die praktischen Nebenräume Abstellkammer, Vorratsraum und Heizungsraum befinden sich direkt angrenzend an die Garage und sorgen für kurze Wege und zusätzlichen Stauraum. Eine Garage sowie Stellplätze direkt am Haus bieten ausreichend Platz für Fahrzeuge.
Die Ausstattung des Hauses ist solide. Die Gasheizung stammt aus dem Jahr 2010, in Küche und Badezimmer sorgt eine Fußbodenheizung für angenehme Wärme. Die Fenster sind mit Rollläden ausgestattet, und das ursprüngliche Flachdach wurde 1986 zu einem Satteldach aufgestockt. Besonders interessant ist zudem das ausbaufähige Dachgeschoss, das Raum für individuelle Gestaltungsideen eröffnet.
Sillenstede ist ein gewachsener, ruhiger Ortsteil von Schortens mit guter Anbindung. Einkaufsmöglichkeiten für den täglichen Bedarf, Kindergarten und Grundschule sind schnell erreichbar. Zudem bietet der Ort eine gute Verkehrsanbindung nach Wilhelmshaven und in die umliegenden Städte.
Dieser Bungalow vereint Gemütlichkeit, praktische Details und Zukunftspotenzial – ein ideales Zuhause für alle, die Wohnen auf einer Ebene mit Garten und Terrasse schätzen.
Überzeugen Sie sich selbst von dem besonderen Wohngefühl dieses Bungalows – wir freuen uns, Ihnen die Immobilie bei einer persönlichen Besichtigung vorstellen zu dürfen.
Übergabe der Immobilie ist im März/April 2026 möglich!
Sillenstede: Gepflegter Bungalow mit ausbaufähigem Dachgeschoss
26419 Schortens
Die vollständige Adresse der Immobilie erhalten Sie vom Anbieter.
Auf Karte anzeigen
Die vollständige Adresse der Immobilie erhalten Sie vom Anbieter.
Finanzierungszertifikat
In nur zwei Minuten zu Ihrem persönlichen Finanzierungszertifkat.
Infos
| Haustyp | Einfamilienhaus |
|---|---|
| Wohnfläche ca. | 132 m2 |
| Nutzfläche | 45,41 m2 |
| Grundstücksfläche | 985 m2 |
| Zimmer | 5 |
| Schlafzimmer | 3 |
| Badezimmer | 1 |
| Garage/Stellplatz | Garage |
| Anzahl Garage/Stellplatz | 1 |
Kosten
| Kaufpreis |
239.000 € |
|---|---|
| Provision |
Käuferprovision beträgt 3,57 % (inkl. MwSt.) des beurkundeten Kaufpreises |
Finanzierungsrechner:
Kaufpreis:
600.000 €
Eigenkapital:
600.000 €
Monatliche Rate
0 €
Effektiver Jahreszins
0 %
Sollzinsbindung
10 Jahre
Bausubstanz & Energieausweis
| Baujahr | 1975 |
|---|---|
| Letzte Sanierung | 2010 |
| Bauphase | Haus fertig gestellt |
| Objektzustand | Gepflegt |
| Qualität der Austattung | Normal |
| Heizungsart | Zentralheizung |
| Wesentliche Energieträger | Erdgas leicht |
| Energieausweis | liegt vor |
| Energieausweistyp | Bedarfsausweis |
| Energieverbrauchskennwert | 266,1 kWh/(m²*a) |
| Energieeffizienzklasse | H |
266,1
kWh/(m²*a)
Energieeffizienzklasse H
- A+
- A
- B
- C
- D
- E
- F
- G
- H
- 0
- 25
- 50
- 75
- 100
- 125
- 150
- 175
- 200
- 225
- >250
Beschreibung des Objekts
Ausstattung
•Ruhige Wohnlage in Schortens/Sillenstede
•Wohnen auf einer Ebene
•Großzügige Terrasse mit Zugang vom Wohnzimmer, der Küche und dem Elternschlafzimmer
•Garten mit viel Gestaltungsspielraum
•Windfang mit Gäste-WC im Eingangsbereich
•Schiebetür zwischen Wohndiele und Wohnzimmer für flexible Raumgestaltung
•Helles Tageslichtbad mit Dusche und Wanne
•Zwei weitere Zimmer, flexibel nutzbar (z. B. Kinder-, Gäste- oder Arbeitszimmer)
•Abstellkammer, Vorratsraum und Heizungsraum für zusätzlichen Stauraum
•Garage und Stellplätze am Haus
•Gasheizung von 2010
•Fussbodenheizung in der Küche und Badezimmer
•Holzfenster mit Rollläden
•Solide Bauweise, Dach wurde 1986 zum Satteldach aufgestockt
•Ausbaufähiges Dachgeschoss für zusätzliche Wohnideen
Lage
Sillenstede ist einer der besonders familienfreundlichen Ortsteile der Stadt Schortens. Die Regenbogenschule und der Kindergarten Spatzennest liegen nur wenige Meter vom Haus entfernt, was den Alltag mit Kindern spürbar erleichtert. Spielplätze, die Sporthalle und der TuS Sillenstede bieten viele Möglichkeiten für Bewegung und Gemeinschaft. Die Anbindung ist bequem, die Haltestelle für weiterführende Schulen ist in etwa fünf Gehminuten erreichbar. Einkaufsmöglichkeiten für den täglichen Bedarf sind in kurzer Fahrzeit erreichbar oder über den Lieferdienst Picnic von zuhause möglich. Die hausärztliche Versorgung ist im nahen Umfeld gegeben, die nächste Praxis liegt etwa drei Kilometer entfernt.
Schortens mit rund 20.800 Einwohnern verbindet urbanen Komfort mit naturnaher Wohnqualität. Familien profitieren von einer stabilen Infrastruktur, einem breiten Bildungsangebot und einer insgesamt sehr guten Lebensqualität. In den vergangenen Jahren entstanden mehrere Wohngebiete, die Einwohnerzahl stieg von etwa 1.800 auf rund 2.100. Die Lage ist ideal für Ausflüge. Nach Wilhelmshaven mit dem Jade-Weser-Port sind es etwa 11 Kilometer, zu den Küstenorten Schillig, Horumersiel und Hooksiel rund 15 Kilometer, nach Jever etwa 7,5 Kilometer. Über die A 29 bestehen schnelle Verbindungen nach Oldenburg und weiter nach Bremen bis zum Flughafen.
Wer Natur liebt und mit Kindern, Hund oder Pferd unterwegs ist, findet in Sillenstede ein behütetes Umfeld mit viel Lebensqualität.
Sonstige Angaben
GELDWÄSCHE: Als Immobilienmaklerunternehmen ist die von Poll Immobilien GmbH nach § 2 Abs. 1 Nr. 14 und § 11 Abs. 1, 2 Geldwäschegesetz (GwG) dazu verpflichtet, bei der Begründung einer Geschäftsbeziehung die Identität des Vertragspartners festzustellen und zu überprüfen, bzw. sobald ein ernsthaftes Interesse an der Durchführung des Immobilienkaufvertrages besteht. Hierzu ist es erforderlich, dass wir nach § 11 Abs. 4 GwG die relevanten Daten Ihres Personalausweises festhalten (wenn Sie als natürliche Person handeln) – beispielsweise mittels einer Kopie. Bei einer juristischen Person benötigen wir eine Kopie des Handelsregisterauszugs, aus welchem der wirtschaftlich Berechtigte hervorgeht. Das Geldwäschegesetz sieht vor, dass der Makler die Kopien bzw. Unterlagen fünf Jahre aufbewahren muss. Als unser Vertragspartner haben Sie auch ein Mitwirkungspflicht nach § 11 Abs. 6 GwG.
PROVISIONSHINWEIS: Mit der Anfrage bei und durch Inanspruchnahme der Dienstleistung der Firma von Poll Immobilien GmbH, wird ein Maklervertrag geschlossen. Sofern es durch die Tätigkeit der Firma VON POLL IMMOBILIEN GmbH zu einem wirksamen Hauptvertrag mit der Eigentümerseite kommt, hat der Interessent bei Abschluss
- eines MIETVERTRAGS keine Provision/Maklercourtage an die von Poll Immobilien GmbH zu zahlen.
- eines KAUFVERTRAGS die ortsübliche Provision/Maklercourtage an die von Poll Immobilien GmbH gegen Rechnung zu zahlen.
HAFTUNG: Wir weisen darauf hin, dass die von uns weitergegebenen Objektinformationen, Unterlagen, Pläne etc. vom Verkäufer bzw. Vermieter stammen. Eine Haftung für die Richtigkeit oder Vollständigkeit der Angaben übernehmen wir daher nicht. Es obliegt daher unseren Kunden, die darin enthaltenen Objektinformationen und Angaben auf ihre Richtigkeit hin zu überprüfen. Alle Immobilienangebote sind freibleibend und vorbehaltlich Irrtümer, Zwischenverkauf- und Vermietung oder sonstiger Zwischenverwertung.
UNSER SERVICE FÜR SIE ALS EIGENTÜMER:
Planen Sie den Verkauf oder die Vermietung Ihrer Immobilie, so ist es für Sie wichtig, deren Marktwert zu kennen. Lassen Sie kostenfrei und unverbindlich den aktuellen Wert Ihrer Immobilie professionell durch einen unserer Immobilienspezialisten einschätzen. Unser bundesweites und internationales Netzwerk ermöglicht es uns, Verkäufer bzw. Vermieter und Interessenten bestmöglich zusammenzuführen.PROVISIONSHINWEIS: Mit der Anfrage bei und durch Inanspruchnahme der Dienstleistung der Firma von Poll Immobilien GmbH, wird ein Maklervertrag geschlossen. Sofern es durch die Tätigkeit der Firma VON POLL IMMOBILIEN GmbH zu einem wirksamen Hauptvertrag mit der Eigentümerseite kommt, hat der INTERESSENT bei Abschluss
- eines MIETVERTRAGS keine Provision/Maklercourtage an die von Poll Immobilien GmbH zu zahlen.
- eines KAUFVERTRAGS die ortsübliche Provision/Maklercourtage an die von Poll Immobilien GmbH gegen Rechnung zu zahlen.
HAFTUNG: Wir weisen darauf hin, dass die von uns weitergegebenen Objektinformationen, Unterlagen, Pläne etc. vom Verkäufer bzw. Vermieter stammen. Eine Haftung für die Richtigkeit oder Vollständigkeit der Angaben übernehmen wir daher nicht. Es obliegt daher unseren Kunden, die darin enthaltenen Objektinformationen und Angaben auf ihre Richtigkeit hin zu überprüfen. Alle Immobilienangebote sind freibleibend und vorbehaltlich Irrtümer, Zwischenverkauf- und Vermietung oder sonstiger Zwischenverwertung.
Grundriss
Grundriss
>
>
Adresse
26419 Schortens
Interessante Orte
Preis- und Lageinformationen
Preistrend für Bestandsimmobilien in Schortens