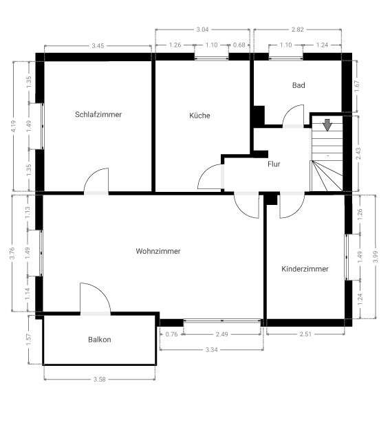
In gepflegter und ruhiger Wohnlage von Wiesbaden-Bierstadt präsentiert sich dieses großzügige Einfamilienhaus mit ca. 155 m² Wohnfläche. Das im Jahr 1963 erbaute und 1967 erweiterte Anwesen bietet viel Platz für die ganze Familie. Zudem besteht die Möglichkeit in zwei separate Wohneinheiten aufzuteilen. Bereits die Hofeinfahrt mit zwei Garagen und elektrischen Toren vermittelt einen einladenden ersten Eindruck. Der schöne, eingewachsene Nutzgarten mit Obstbäumen sowie der überdachte Freisitz laden zum Verweilen im Freien ein und bieten ideale Bedingungen für Hobbygärtner und Genießer. Im Erdgeschoss empfängt Sie ein großzügiges Wohnzimmer mit Essbereich, das durch seine helle und freundliche Atmosphäre besticht. Die angrenzende, separate Küche ermöglicht praktisches Arbeiten. Zudem befinden sich auf dieser Ebene ein Schlafzimmer sowie ein weiteres Zimmer mit angrenzendem Duschbad – ideal auch als Gäste- oder Arbeitsbereich nutzbar. Ein Gäste-WC im Eingangsbereich rundet das Erdgeschoss ab. Das Obergeschoss bedarf etwas mehr Renovierung. Es besteht aus zwei Schlafzimmern, einem großzügigen Wohnzimmer mit Zugang zum bereits modernisierten Balkon, einer Küche sowie einem Badezimmer mit Badewanne. Das Dachgeschoss ist bereits gedämmt und weist zusätzliche Nutzfläche auf. Mit einem Treppenzugang kann es in weitere Wohnfläche umgewandelt werden. Der Keller des Hauses verfügt über mehrere Hobby-, Lager- und Kellerräume sowie eine separate Dusche und bietet damit viel Stauraum und Gestaltungsspielraum für individuelle Bedürfnisse. Für eine persönliche Beratung oder einen Besichtigungstermin nehmen Sie bitte Kontakt mit uns auf.
Freistehendes EFH mit 2 Garagen in guter Lage von WI-Bierstadt
65191 Wiesbaden
Die vollständige Adresse der Immobilie erhalten Sie vom Anbieter.
Auf Karte anzeigen
Die vollständige Adresse der Immobilie erhalten Sie vom Anbieter.

Finanzierungszertifikat
In nur zwei Minuten zu Ihrem persönlichen Finanzierungszertifkat.
Infos
Haustyp | Einfamilienhaus |
---|---|
Wohnfläche ca. | 155 m2 |
Grundstücksfläche | 460 m2 |
Zimmer | 6 |
Badezimmer | 2 |
Garage/Stellplatz | Garage |
Anzahl Garage/Stellplatz | 2 |
Kosten
Kaufpreis |
719.000 € |
---|---|
Provision |
3,57 % inkl. MwSt. |
Finanzierungsrechner:
Kaufpreis:
600.000 €
Eigenkapital:
600.000 €
Monatliche Rate
0 €
Effektiver Jahreszins
0 %
Sollzinsbindung
10 Jahre
Bausubstanz & Energieausweis
Baujahr | 1963 |
---|---|
Heizungsart | Zentralheizung |
Wesentliche Energieträger | Gas |
Energieausweis | liegt vor |
Energieausweistyp | Verbrauchsausweis |
Energieverbrauchskennwert | 109,5 kWh/(m²*a) |
Energieeffizienzklasse | D |
109,5
kWh/(m²*a)
Energieeffizienzklasse D
- A+
- A
- B
- C
- D
- E
- F
- G
- H
- 0
- 25
- 50
- 75
- 100
- 125
- 150
- 175
- 200
- 225
- >250
Beschreibung des Objekts
Ausstattung
- schöner Nutzgarten mit Obstbäumen - Balkon - 2 Garagen - komplett unterkellert - Dachboden gedämmt und ausbaufähig
Lage
Der Wiesbadener Stadtteil Bierstadt zählt zu den gefragten Wohnlagen im Osten der Landeshauptstadt. Er verbindet eine ruhige, naturnahe Umgebung mit einer sehr guten Anbindung an die Wiesbadener Innenstadt sowie an das Rhein-Main-Gebiet. Verkehrsanbindung: Die Anbindung ist hervorragend: Mit dem Auto erreichen Sie die Innenstadt von Wiesbaden in ca. 10 Minuten, der Hauptbahnhof ist ebenfalls schnell erreichbar. Mehrere Buslinien verkehren regelmäßig und binden Bierstadt optimal an das öffentliche Nahverkehrsnetz an. Über die nahegelegene B455 bestehen schnelle Verbindungen zur A66 und A3 in Richtung Frankfurt, Mainz und Rhein-Main-Flughafen (ca. 30 Minuten Fahrzeit). Infrastruktur & Nahversorgung: Im direkten Umfeld stehen zahlreiche Einkaufsmöglichkeiten für den täglichen Bedarf zur Verfügung (Supermärkte, Bäckereien, Apotheken). Schulen und Kindertagesstätten befinden sich direkt im Stadtteil, ebenso wie Ärzte und andere Dienstleister. Wohnumfeld: Bierstadt bietet eine hohe Wohnqualität durch seine ruhige, familienfreundliche Struktur und die Nähe zu Natur- und Erholungsflächen. Spazier- und Radwege, Sportvereine sowie das angrenzende Naherholungsgebiet im Taunus schaffen einen attraktiven Ausgleich zum urbanen Leben.
Grundriss
Erdgeschoss
>

Obergeschoss
>

Keller
>

Adresse
65191 Wiesbaden
Interessante Orte
Preis- und Lageinformationen
Preistrend für Bestandsimmobilien in Bierstadt