Im traditionsreichen Bremer Stadtteil „Klein Mexiko“ liegt dieses charmante Reihenhaus, das den besonderen Charakter des Viertels auf ganz authentische Weise widerspiegelt. Das Haus selbst bietet auf rund 60 m² Wohnfläche sowie einem Grundstück von ca. 94 m² ein solides Fundament für ein behagliches Zuhause, ideal für Singles, Paare oder kleine Familien, die ein besonderes Stadthaus mit Geschichte und Charakter suchen. Im Erdgeschoss bildet die Küche das Herzstück des Hauses, hier wird gekocht, gelebt und gelacht. Sie öffnet sich zum Wohnzimmer hin und schafft so einen einladenden, offenen Bereich, der den Blick in den Garten freigibt. Das Obergeschoss beherbergt ein großzügiges Schlafzimmer sowie ein separates WC. Das Schlafzimmer kann bei Bedarf mit einer Leichtbauwand in zwei Räume geteilt werden, perfekt für ein Kinderzimmer, ein Homeoffice oder ein Gästezimmer. Ein Highlight ist das modern gestaltete Badezimmer im Keller, das vor etwa vier Jahren vollständig saniert wurde. Es ist hochwertig ausgestattet, verfügt über eine Dusche und bietet durchdachten Komfort auf kleinem Raum. Der Keller ist zudem über einen separaten Eingang an der Vorderseite zugänglich, was praktische Vorteile mit sich bringt, ob für Hobby, Lagerung oder einen flexiblen Arbeitsbereich. Von hier aus gelangt man direkt in den Garten. Dieser kleine, grüne Rückzugsort ist pflegeleicht angelegt und bietet Platz zum Entspannen, Gärtnern oder gemütlichen Zusammensitzen an warmen Tagen.
Seltene Gelegenheit! Einzigartiges Reihenmittelhaus in "Klein Mexico"
28205 Bremen
Die vollständige Adresse der Immobilie erhalten Sie vom Anbieter.
Auf Karte anzeigen
Die vollständige Adresse der Immobilie erhalten Sie vom Anbieter.

Finanzierungszertifikat
In nur zwei Minuten zu Ihrem persönlichen Finanzierungszertifkat.
Infos
Haustyp | Reihenmittelhaus |
---|---|
Etagenzahl | 3 |
Wohnfläche ca. | 57 m2 |
Nutzfläche | 25 m2 |
Grundstücksfläche | 94 m2 |
Bezugsfrei ab | 01.11.2025 |
Zimmer | 2 |
Schlafzimmer | 1 |
Badezimmer | 1 |
Kosten
Kaufpreis |
189.000 € |
---|---|
Provision |
3,57% (inkl. 19 % MwSt.) vom beurkundeten Kaufpreis, jeweils vom Käufer und Verkäufer |
Finanzierungsrechner:
Kaufpreis:
600.000 €
Eigenkapital:
600.000 €
Monatliche Rate
0 €
Effektiver Jahreszins
0 %
Sollzinsbindung
10 Jahre
Bausubstanz & Energieausweis
Baujahr | 1927 |
---|---|
Heizungsart | Gas-Heizung |
Wesentliche Energieträger | Gas |
Energieausweis | liegt vor |
Energieausweistyp | Bedarfsausweis |
Energieverbrauchskennwert | 231,0 kWh/(m²*a) |
Energieeffizienzklasse | G |
231,0
kWh/(m²*a)
Energieeffizienzklasse G
- A+
- A
- B
- C
- D
- E
- F
- G
- H
- 0
- 25
- 50
- 75
- 100
- 125
- 150
- 175
- 200
- 225
- >250
Beschreibung des Objekts
Ausstattung
Auf folgende Ausstattungsmerkmale möchten wir Sie nochmals hinweisen: - separate Toilette - Saniertes Bad mit ebenerdiger Dusche - Hauswirtschaftsraum - Terrasse mit direktem Gartenanschluss - Garten - voll unterkellert - Dachboden - Gaszentralheizung mit Warmwasseraufbereitung von 2014 - Ideal für Katzenhalter-Katzensicher eingezäunter Garten
Lage
Das Reihenhaus befindet sich im traditionsreichen Bremer Stadtteil „Klein Mexiko“, einem einzigartigen Viertel im Westen der Stadt, das durch seine besondere Geschichte, seinen individuellen Charakter und seine lebendige Nachbarschaft bekannt ist. „Klein Mexiko“ entstand in den 1920er-Jahren als Siedlung für Arbeiter. Die kleinen, zweigeschossigen Reihenhäuser wurden mit großem Gemeinschaftssinn gebaut, schlicht, funktional und dennoch mit liebevollen architektonischen Details, die dem Viertel bis heute seinen unverwechselbaren Charme verleihen. Der Spitzname „Klein Mexiko“ entstand übrigens aus der volkstümlichen Wahrnehmung der bunt gemischten Siedlung und hat sich über die Jahrzehnte als liebevolle Bezeichnung erhalten. Heute gilt Klein Mexiko als heimeliges und gewachsenes Wohnquartier, das urbanes Leben mit dörflicher Atmosphäre verbindet. In den kleinen Straßen grüßen sich die Nachbarn, Kinder spielen zwischen den Häusern, und viele Bewohner pflegen seit Generationen ein enges Miteinander. Trotz dieser ruhigen, familiären Struktur ist die Lage ausgesprochen stadtnah und verkehrsgünstig. Die Bremer Innenstadt ist mit dem Fahrrad oder öffentlichen Verkehrsmitteln in wenigen Minuten erreichbar. Auch die Weser, der Werdersee und mehrere Grünanlagen liegen in unmittelbarer Nähe und bieten zahlreiche Möglichkeiten für Spaziergänge, Freizeit und Erholung im Freien. Einkaufsmöglichkeiten für den täglichen Bedarf, Bäckereien, kleine Cafés und lokale Dienstleister finden sich im direkten Umfeld. Schulen, Kindergärten und ärztliche Versorgung sind ebenfalls gut erreichbar. Klein Mexiko steht für eine ganz eigene Wohnqualität, ein Viertel mit Geschichte, Charakter und Seele. Wer hier lebt, entscheidet sich bewusst für ein Stück Bremer Identität: für Nachbarschaft, Authentizität und das Gefühl, angekommen zu sein.
Sonstige Angaben
Die Grundsteuer beträgt € 283,40 p.a. Unsere Objektangaben basieren auf den uns erteilten Informationen. Eine Haftung für die Richtigkeit und Vollständigkeit können wir deshalb nicht übernehmen.
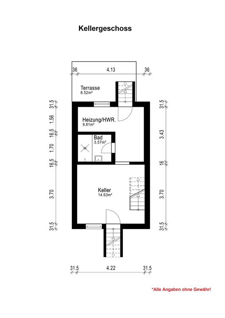
Grundriss
Grundriss Erdgeschoss
>

Grundriss_Dachgeschoss
>

Grundriss_Kellergeschoss
>

Adresse
28205 Bremen
Interessante Orte
Preis- und Lageinformationen
Preistrend für Bestandsimmobilien in Hulsberg