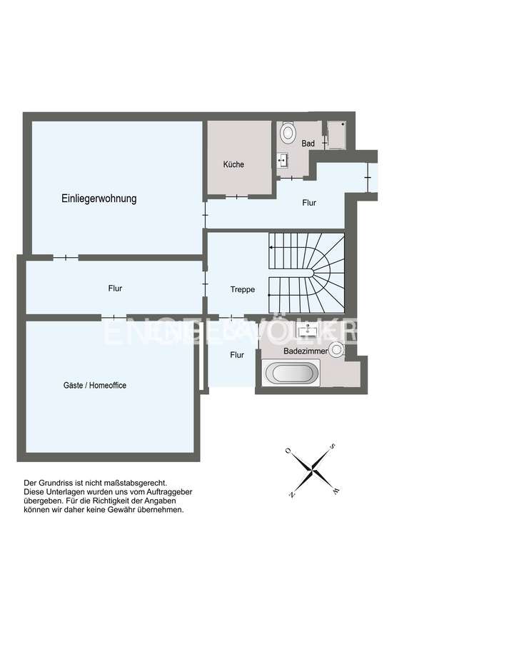
Dieses gepflegte Stadthaus in Niederheimbach bietet eine einmalige Gelegenheit, Wohnen direkt am Rhein mit vielfältigen Nutzungsmöglichkeiten zu verbinden. Das Haus befindet sich in einem gepflegtem, dem alter entsprechenden Zustand und wartet darauf, mit neuen Ideen modernisiert und belebt zu werden. Die Eckdaten im Überblick: Wohnfläche: ca. 106 m² Nutzfläche - Dachboden, Nebenräume, Scheune: ca. 100 m² Weinkeller Grundstück: ca. 573 m² (hinter dem Haus ist Hanglage) Zimmer: 5 Bäder: 2 (Duschbad ca. 1997 und Wannenbad ca. 1990) Bodenbeläge: Parkett, Teppich Ausstattung & Besonderheiten: Wohn- / Esszimmer mit Rheinblick: Genießen Sie den Blick auf den majestätischen Fluss direkt aus dem Wohnbereich. Innenhof mit Stellplatz: Praktisch und pflegeleicht – hier parken Sie bequem Ihren PKW. Separates Apartment möglich: Ein Raum im Erdgeschoss verfügt über ein eigenes Duschbad und eine kleine Einbauküche, ideal für Gäste, Familienmitglieder oder zur Vermietung. Scheune & Garage: Großzügige Nebengebäude bieten reichlich Platz für Hobby, Werkstatt oder Lagerung. Wasserquelle: Eigener Brunnen und eine Zisterne sind ebenfalls vorhanden. Fenster: überwiegend erneuert Heizung: Öl-Heizung von 1997
Charmantes Stadthaus mit Rheinblick in Niederheimbach – vielseitig nutzbar mit Scheune, Hof und G...
55413 Oberdiebach
Die vollständige Adresse der Immobilie erhalten Sie vom Anbieter.
Auf Karte anzeigen
Die vollständige Adresse der Immobilie erhalten Sie vom Anbieter.

Finanzierungszertifikat
In nur zwei Minuten zu Ihrem persönlichen Finanzierungszertifkat.
Infos
Haustyp | Einfamilienhaus |
---|---|
Wohnfläche ca. | 106 m2 |
Nutzfläche | 100 m2 |
Grundstücksfläche | 573 m2 |
Zimmer | 5 |
Badezimmer | 2 |
Kosten
Kaufpreis |
177.000 € |
---|---|
Provision |
3.57 % inkl. gesetzl. MwSt. |
Finanzierungsrechner:
Kaufpreis:
600.000 €
Eigenkapital:
600.000 €
Monatliche Rate
0 €
Effektiver Jahreszins
0 %
Sollzinsbindung
10 Jahre
Bausubstanz & Energieausweis
Baujahr | 1858 |
---|---|
Letzte Sanierung | 1997 |
Objektzustand | Gepflegt |
Heizungsart | Zentralheizung |
Wesentliche Energieträger | Öl |
Energieausweis | liegt vor |
Energieausweistyp | Bedarfsausweis |
Energieverbrauchskennwert | 422,8 kWh/(m²*a) |
Energieeffizienzklasse | H |
422,8
kWh/(m²*a)
Energieeffizienzklasse H
- A+
- A
- B
- C
- D
- E
- F
- G
- H
- 0
- 25
- 50
- 75
- 100
- 125
- 150
- 175
- 200
- 225
- >250
Beschreibung des Objekts
Ausstattung
unverbaut Wasserblick Teppich Parkett Fliesen
Lage
Niederheimbach liegt eingebettet zwischen Rhein und Weinbergen im UNESCO-Welterbe Oberes Mittelrheintal. Das Haus befindet sich in direkter Rheinlage, mit kurzen Wegen zu Natur, Schifffahrt und Ausflugszielen in der Region. Die Anbindung an Bahn, Fähre und Bundesstraße ermöglicht eine gute Erreichbarkeit der umliegenden Städte wie Bingen, Bacharach und Mainz.
Sonstige Angaben
Der Makler-Vertrag mit uns und/oder unserem Beauftragten kommt durch die Bestätigung der Inanspruchnahme unserer Maklertätigkeit in Textform zustande, wie z.B. insbesondere die Unterschrift des Suchkundenvertrages und/oder des Objekt-Exposés. Die Höhe der Courtage richtet sich nach den ab dem 23.12.2020 in Kraft getretenen gesetzlichen Regelungen zur Teilung der Maklercourtage. Die Courtage beträgt für beide Parteien (Eigentümer und Käufer) regelmäßig jeweils 3% des Kaufpreises zuzüglich gesetzlicher Umsatzsteuer und ist bei notariellem Vertragsabschluss verdient und fällig. Die Höhe der Bruttocourtage unterliegt einer Anpassung bei Steuersatzänderung. Ab dem 01.01.2021 gilt die Umsatzsteuer in Höhe von 19% und somit beträgt die Courtage für jede Partei 3,57% einschließlich gesetzlicher Umsatzsteuer. Grunderwerbssteuer, Notar- und Gerichtskosten trägt der Käufer.
Grundriss
EG
>

OG
>

Adresse
55413 Oberdiebach
Interessante Orte
Preis- und Lageinformationen
Preistrend für Bestandsimmobilien in Oberdiebach