Zum Verkauf steht ein außergewöhnliches Wohnensemble, bestehend aus zwei miteinander verbundenen Häusern, die eine einzigartige Kombination aus Geschichte und zeitgemäßem Wohnen bieten. Das vordere historische Fachwerkhaus, erbaut im Jahr 1668, verströmt mit seinen verwinkelten und verschachtelten Grundrissen seinen ganz eigenen, unverwechselbaren Charme. Direkt dahinter schließt sich das jüngere Haus aus dem Jahr 1994 an, das das vordere Haus wunderbar ergänzt.
Die vielseitige Raumgestaltung mit mehreren Ebenen und Zwischenebenen, die jedem Raum eine besondere Atmosphäre verleihen, sowie mehrere Bäder und Küchen, ermöglichen zum Beispiel ein Mehrgenerationenwohnen, Privatsphären für die große Familie, eine Wohngemeinschaft oder auch das Vereinen von Arbeit und Wohnen unter einem Dach. So kann man sich ein kleines Gewerbe, eine Agentur, eine Goldschmiede oder auch eine Straußwirtschaft, getreu dem Motto „Wo’s Sträuß`che hängt, werd ausgeschänkt.“ (hier ist keine Konzession/Gaststättenerlaubnis nötig), in dieser Immobilie lebhaft vorstellen. Ebenso wäre eine Ferienhaus- oder Ferienzimmervermietung an Rheinsteig-Wanderer und Besucher des schönen Mittelrheintals eine lukrative Einnahmequelle.
Das Haus steht unter Denkmalschutz und bietet somit ein wertvolles Stück Geschichte. Außerdem sind Förderungen und Unterstützung durch die Denkmalschutzbehörde und den Kreis in Form des Dorferneuerungsprograms möglich.
Es wurde schon einiges in beiden Häusern saniert und modernisiert. So wurde 2021 eine effiziente Infrarot-Flächenheizung in den Räumen angebracht, die für ein angenehmes Wohnklima sorgt. Diese könnte auch durch Solarthermie versorgt werden. Die Fläche auf dem Dach des hinteren Hauses bietet sich dafür optimal an. Sanitärinstallation und ein Großteil der Bäder sowie die Elektrik wurden ebenfalls in diesem Jahr erneuert. Viele der Fenster und Türen sind aus den Jahren 1994, 2019 und 2021. Die Versorgung von Wasser und Strom ist bereits getrennt bzw. vorgerüstet. Die Häuser können also getrennt oder wie aktuell miteinander verbunden genutzt werden
Diese bezaubernde Doppelhaus-Immobilie ist ein Ort für Liebhaber eines besonderen Wohnstils. Die verwinkelte und abwechslungsreiche Raumaufteilung sowie die Verbindung von Alt und Neu schaffen ein außergewöhnliches und inspirierendes Zuhause. Ideal für Menschen, die das Außergewöhnliche suchen und schätzen, die Vorstellungskraft und Motivation besitzen, ein ausgefallenes Projekt zu starten.
Two in one – originelle Doppelhausimmobilie im Maisonettestil, für Kreative mit Herz
Bachstraße 7,
56346 Sankt Goarshausen
Auf Karte anzeigen
Finanzierungszertifikat
In nur zwei Minuten zu Ihrem persönlichen Finanzierungszertifkat.
Infos
| Etagenzahl | 3 |
|---|---|
| Wohnfläche ca. | 335 m2 |
| Grundstücksfläche | 326 m2 |
| Bezugsfrei ab | sofort |
| Zimmer | 9 |
| Badezimmer | 4 |
| Garage/Stellplatz | Garage |
| Anzahl Garage/Stellplatz | 2 |
Kosten
| Kaufpreis |
249.000 € |
|---|---|
| Provision | Nein |
Finanzierungsrechner:
Kaufpreis:
600.000 €
Eigenkapital:
600.000 €
Monatliche Rate
0 €
Effektiver Jahreszins
0 %
Sollzinsbindung
10 Jahre
Bausubstanz & Energieausweis
| Baujahr | 1668 |
|---|---|
| Letzte Sanierung | 2021 |
| Bauphase | Haus fertig gestellt |
| Denkmalschutzobjekt | Ja |
Beschreibung des Objekts
Ausstattung
Fakten und Daten im Überblick:
Objektart:2 Häuser, Einfamilienhaus + Ferienhaus oder Zweifamilienhaus aktuell miteinander verbunden, trennbar
Baujahr: 1668 / 1994
Kulturdenkmal: Vorderhaus über hohem Kellersockel, Zierfachwerk, bez. 1668, Hinterhaus, Fachwerk 17. Jh., Anbauten um 1800 bzw. 19. Jh.
Bauweise: Fachwerk, Lehmmauerwerk, teilweise massiv,
Grundstück: 223 m² +103 m² = 326 m²
Flur/Flurstück: Flur 7 Flurstücke 124 + 125 Baulasten: laut Auskunft vom 22.07.2025 liegt eine Vereinigungsbaulast vor, die Grundstücke werden somit als Einheit betrachtet
Garagen: 1 Garage, öffentliche Stellplätze vor dem Haus und in der Straße
Wohnfläche: ca. 335 m²
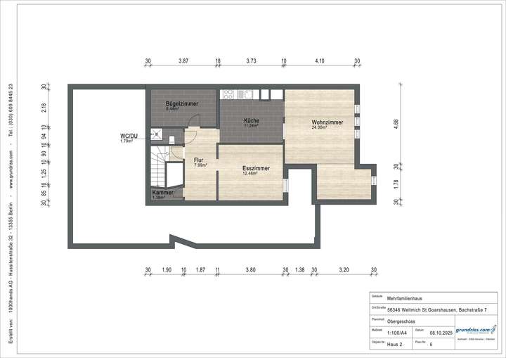
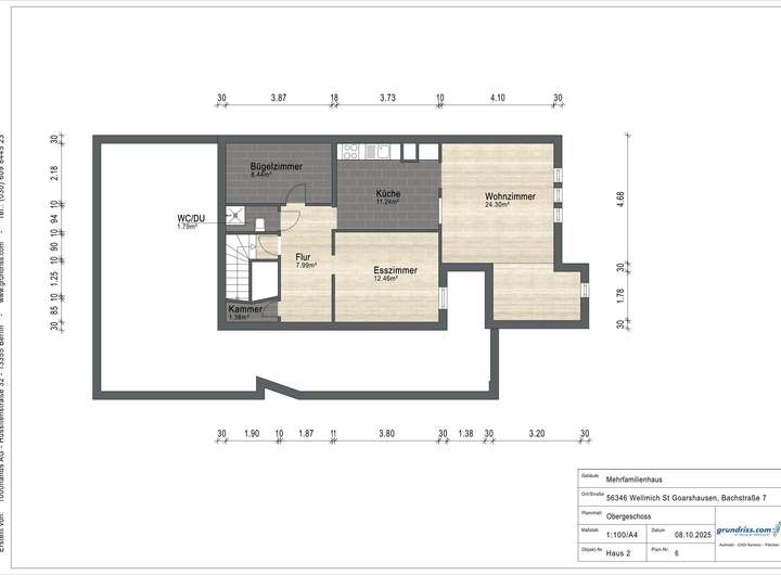
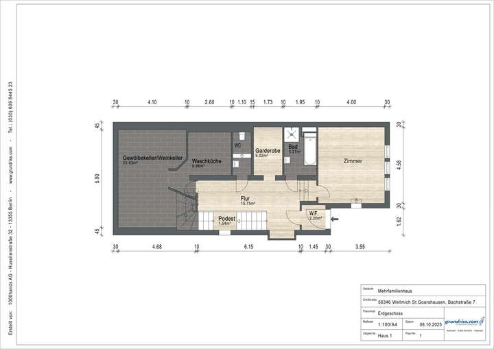
Aufteilungsdetails: EG: 1 Zimmer mit anhängendem Raum (Zwischenebene)
Bad, WC, Waschküche, Garderobe, Diele,
Treppenhaus, Weinkeller Haus 1
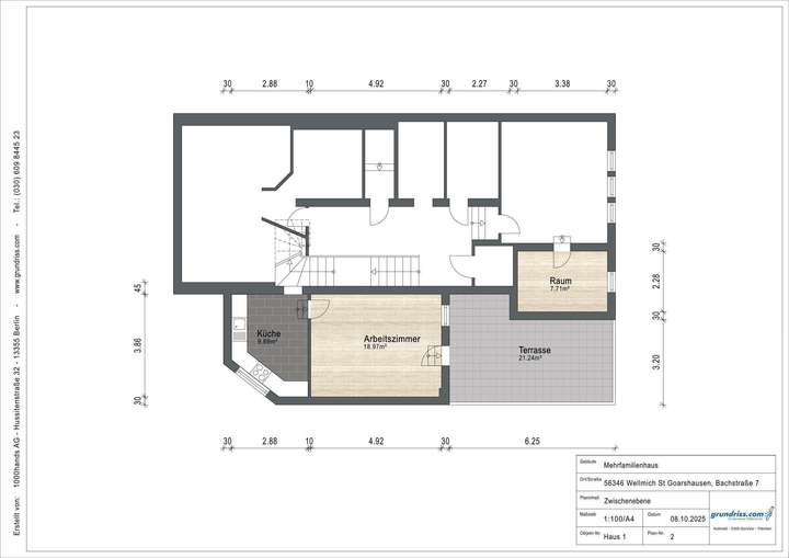
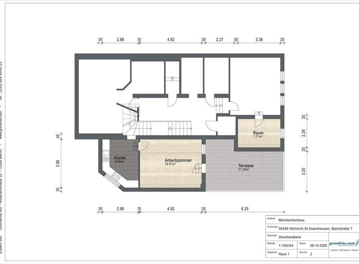
ZE:Zwischenebene mit 1 Zimmer, Küche, Terrasse, Haus 1
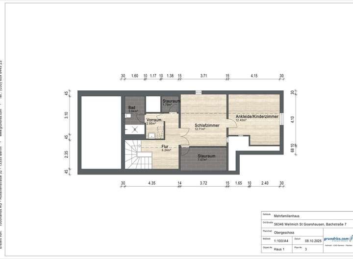
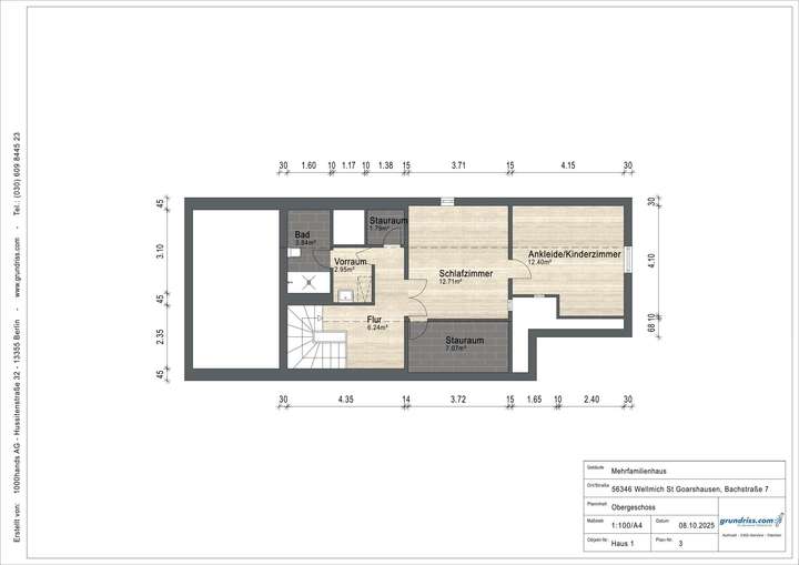
OG: 2 Zimmer, Küche, Bad/WC (in Planung, Anschlüsse vorhanden), Abstellraum, Kammer, Flur, Haus 1
DG: ausgebaute Mansarde, 2 Zimmer, Bad mit Dusche und WC, Flur, Stauraum im Spitzboden, Haus 1
Keller: Bruchstein, Gewölbe, Garage, Lagerraum, Haus 1
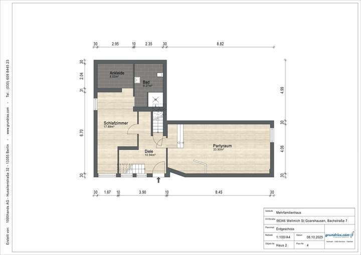
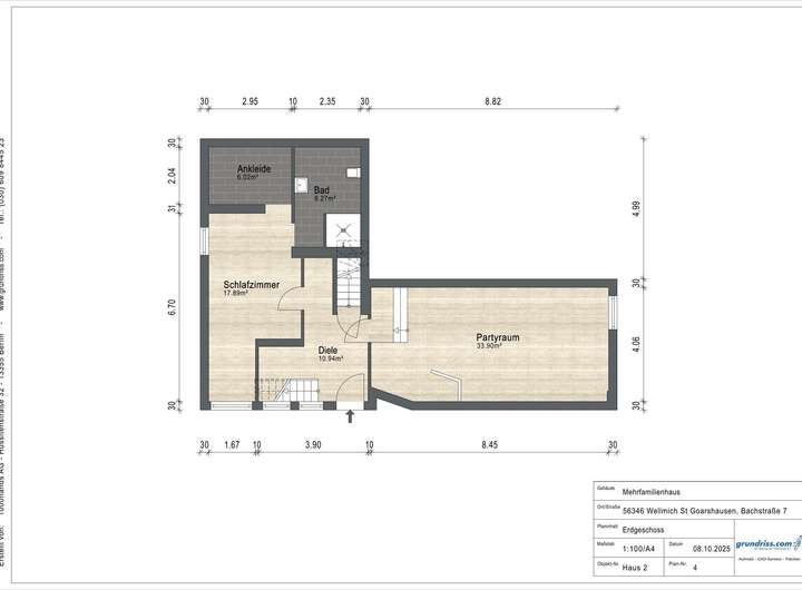
EG: 2 Zimmer, Bad mit Dusche und WC, Ankleide, Diele, Treppenhaus, Haus 2
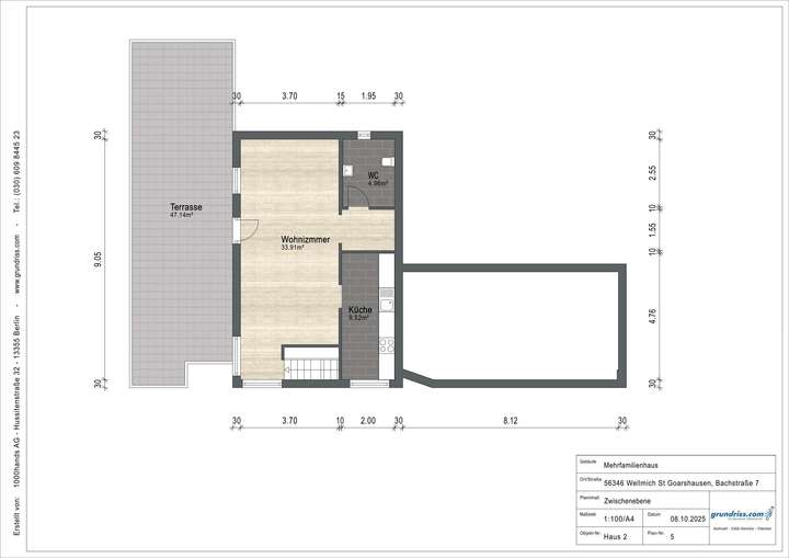
DG: 1 Zimmer, Küche, Gäste-WC, Vorraum, Terrasse, Haus 2
Heizung: Infrarot-Flächenheizung, Klimaanlage mit Heizung im Hinterhaus
Optimale Voraussetzung für Solarthermie
Energieausweis: nicht benötigt, da Denkmalschutz
Modernisierungen: Fenster: 1994/2019/2021
Heizung, Sanitärinstallationen, Abwasser, Bad, Gäste-WC, Elektro: 2019/2021
Fassade: fortlaufend
Internet: DSL
Lage
Die Stadt Sankt Goarshausen, seit dem Jahr 1324 mit Stadtrechten versehen, liegt unmittelbar an dem weltberühmten Loreleyfelsen mitten im „Welterbe Oberes Mittelrheintal“. Als Anlaufpunkt für Touristen aus aller Welt befindet sich auf der Loreley das Loreley-Besucherzentrum. Gleich nebenan liegt die Loreley-Freilichtbühne, wo regelmäßig vielfältige kulturelle Veranstaltungen stattfinden. Die weltbekannte Loreley-Statue der schwedischen Künstlerin russischer Abstammung mit dem Namen Natascha Alexandrowna Gräfin Jusopow befindet sich auf der Spitze der Hafenmole und wurde am 06. August 1983 an die Stadt übergeben. Hoch über der Altstadt thront die Burg Katz, die zusammen mit den beiden mittelalterlichen Stadttürmen der Altstadt eine einzigartige malerische Stadtansicht bildet. In der Altstadt befindet sich das historische Rathaus aus dem Jahre 1532, das ganzjährig Raum für Ausstellungen verschiedenster Art bietet und auch ein Trauzimmer beherbergt. Vor dem alten Rathaus befindet sich die Bronzeplastik des Salmfischers Ernst Greiff der 1938 letztmalig Salme vor St.Goarshausen fing. Fünf Häuser weiter in Richtung des viereckigen Stadtturms erinnert die bronzene Ziege (Gäs‘) an die Zeiten, als die Gäs‘ noch die Kuh der kleinen Leute war. Am Ende der Altstadt steht am Rhein der historische Portalkran von 1917.Zu St. Goarshausen gehören die Stadtteile Ehrenthal, Wellmich und Heide. Über den Stadtteil Wellmich, der bis 1972 eine eigenständige Gemeinde war, wacht die Burg Maus, auch Thurnberg oder Deurenburg genannt. Es besteht eine wichtige Fährverbindung zur gegenüberliegenden Schwesterstadt St. Goar. Mit ihr werden gemeinsame Veranstaltungen durchgeführt wie etwa das Groß-Feuerwerk „Rhein in Flammen“, welches immer am dritten Wochenende im September stattfindet. Die Stadt Sankt Goarshausen ist Verwaltungssitz der Verbandsgemeinde Loreley. (Quelle:vg-loreley.de)
Wellmich ist ein schöner und beschaulicher Stadtteil der Loreleystadt St. Goarshausen, umgeben von Natur und Weinbergen. Der Ort ist besonders bei Wanderern und Weinliebhabern beliebt, da die Region ausgezeichnete Möglichkeiten für Wanderungen, Weinproben und Besichtigungen der zahlreichen Burgen und Ruinen bietet. Von hier erreicht man in wenigen Minuten die in St. Goarshausen gelegenen Einkaufsmöglichkeiten, Kindergärten, Grundschule, Realschule plus und das Gymnasium. Ärzte und Zahnärzte sowie eine Apotheke sind ebenfalls vor Ort, so wie ein Friseur. Für die gemütlichen Stunden am Abend findet man in St. Goarshausen einige nette Restaurants und Weinstuben zur Einkehr.
Die Fahrzeit mit dem Auto nach Koblenz, der nächsten großen Stadt in der Umgebung, beträgt ca. 30-40 Minuten.
Sonstige Angaben
Die Angaben basieren auf den Aussagen des Verkäufers bzw. aus diversen Unterlagen.
Der Makler übernimmt für dessen Richtigkeit keine Gewähr!!
Bei Fragen oder zur Vereinbarung eines Besichtigungstermins kontaktieren Sie mich gerne unter:
Lebensräume Immobilien und HomeStaging
Tamara Schultz
Braubacher Weg 3
56132 Becheln
Email: info@tamaraschultz.de
Nutzen Sie bitte das Kontaktformular unter Angabe Ihrer kompletten Anschrift, Telefonnummer und Email Adresse
Weitere Dokumente
Burg MausGrundriss
Innen_Haus 2_EG_Ankleide zum E
>
>
Innen_Haus 2_EG_Schlafzimmer
>
>
Innen_Haus 2_Küche OG
>
>
Innen_Haus 2_OG_Wohnzimmer
>
>
Innen_Haus 2_Treppe zum OG
>
>
Innen_Partyraum_EG_Haus 2_ande
>
>
Innen_Partyraum_EG_Haus 2
>
>
Grundriss Erdgeschoss 1
>
>
Grundriss 2
>
>
Grundriss 3
>
>
Grundriss 4
>
>
Grundriss 5
>
>
Grundriss 6
>
>
Adresse
Bachstraße 7, 56346 Sankt Goarshausen
Interessante Orte
Preis- und Lageinformationen
Preistrend für Bestandsimmobilien in Sankt Goarshausen