Objektnr: 1066456 Ein Zuhause mit vielen Möglichkeiten Dieses Haus bietet vielseitige Nutzungsmöglichkeiten und eignet sich für Familien wie auch Kapitalanleger. - Charmantes Zweifamilienhaus in Maintal-Bischofsheim, ideal für Familien oder Kapitalanleger. - Ruhige Lage, gleichzeitig kurze Wege nach Frankfurt – perfekt für Pendler. - Vielseitige Nutzung möglich: Mehrgenerationenwohnen, Kapitalanlage oder Kombination aus Wohnen und Arbeiten. Gebäude & Wohnfläche Das Gebäude besticht durch seine gepflegte Substanz, moderne Ausstattung und flexible Raumaufteilung. - Baujahr 1928, kontinuierlich modernisiert und erweitert, sehr gepflegter Zustand. - Wohnfläche: 147,98 m², verteilt auf 7 helle und flexibel nutzbare Zimmer. - Aufteilung als Zweifamilienhaus mit Privatsphäre auf jeder Etage. - Ausgebautes Dachgeschoss bietet zusätzlichen Raum, z. B. für Home-Office, Atelier oder Teenagerbereich. - Zwei moderne Badezimmer (eins komplett saniert) und zwei Gäste-WCs. - Vorhandenes Mobiliar kann auf Wunsch übernommen werden – ein schneller, unkomplizierter Einzug ist möglich. Nutzung & Parkmöglichkeiten Das Haus bietet großzügige Parkmöglichkeiten und interessante Optionen für Gewerbe oder Nebeneinnahmen. - Großzügige Einfahrt mit elektrischem Hoftor, Carport und Doppelgarage für mehrere Fahrzeuge. - Doppelgarage mit genehmigter Umnutzung als Ladenlokal – ideal für gewerbliche Nutzung oder zusätzliche Einnahmen. - Balkonkraftwerk installiert, Strom kann direkt genutzt werden – Kostenersparnis inklusive. Grundstück & Außenbereich Der Außenbereich ist liebevoll gestaltet und bietet sowohl Erholung als auch Platz für Aktivitäten und Kreatives. - Grundstücksgröße: 637 m², liebevoll und pflegeleicht gestaltet. - Steingarten mit exotischen Pflanzen schafft ruhige Wohlfühloase. - Zentrale Terrasse mit herrlichem Gartenblick; Grillecke und Outdoor-Küche für gesellige Stunden im Freien. - Großzügige Werkstatt für Heimwerker oder kreative Projekte, ausgestattet mit nützlichen Utensilien. Keller & Gesamteindruck Auch im Kellerbereich überzeugt das Haus durch Modernität, Funktionalität und gepflegten Zustand. - Vollunterkellert, modernisiert, trocken und gepflegt. - Helle, funktionale Nutzfläche dank isolierverglaster Kunststofffenster. - Hochwertige Materialien, durchdachte Raumaufteilung, sofort bezugsfertig. - Perfekte Kombination aus Komfort, Funktionalität und ansprechender Gestaltung. Fazit Dieses Haus ist eine seltene Gelegenheit, die Wohnkomfort, Lage und Nutzungsmöglichkeiten optimal verbindet. - Flexible Nutzung: Mehrgenerationenhaus, Kapitalanlage oder Kombination mit Gewerbe. - Großes Grundstück mit vielen Extras wie Terrasse, Outdoor-Küche, Werkstatt und Steingarten. - Ruhige Lage, gute Anbindung nach Frankfurt, Möbel auf Wunsch direkt übernehmbar.
Gepflegtes ZFH mit Potenzial: Kapitalanlage, Mehrgenerationenwohnen und Gewerbeoption in Maintal
63477 Maintal
Die vollständige Adresse der Immobilie erhalten Sie vom Anbieter.
Auf Karte anzeigen
Die vollständige Adresse der Immobilie erhalten Sie vom Anbieter.

Finanzierungszertifikat
In nur zwei Minuten zu Ihrem persönlichen Finanzierungszertifkat.
Infos
Haustyp | Mehrfamilienhaus |
---|---|
Etagenzahl | 2 |
Wohnfläche ca. | 148 m2 |
Grundstücksfläche | 637,14 m2 |
Bezugsfrei ab | nach Absprache |
Zimmer | 7 |
Schlafzimmer | 3 |
Badezimmer | 2 |
Garage/Stellplatz | Carport |
Anzahl Garage/Stellplatz | 1 |
Kosten
Kaufpreis |
679.000 € |
---|---|
Provision |
5,95 % Käufer-Provision: 5,95 % inkl. MwSt., sofern der Verkaufspreis über 83.000,00 € liegt. Die Provision ist mit Beurkundung des Kaufvertrages fällig. Liegt der Verkaufspreis dagegen bei/unter 83.000,00 €, ist die fest vereinbarte Mindestprovision i.H.v. mind. 5.950,00 € inkl. MwSt. mit Kaufvertragsbeurkundung fällig. |
Finanzierungsrechner:
Kaufpreis:
600.000 €
Eigenkapital:
600.000 €
Monatliche Rate
0 €
Effektiver Jahreszins
0 %
Sollzinsbindung
10 Jahre
Bausubstanz & Energieausweis
Baujahr | 1928 |
---|---|
Letzte Sanierung | 2019 |
Bauphase | Haus fertig gestellt |
Objektzustand | Gepflegt |
Qualität der Austattung | Gehoben |
Heizungsart | Zentralheizung |
Wesentliche Energieträger | Solarheizung, Gas |
Energieausweis | liegt vor |
Energieausweistyp | Bedarfsausweis |
Energieverbrauchskennwert | 193,7 kWh/(m²*a) |
Energieeffizienzklasse | F |
193,7
kWh/(m²*a)
Energieeffizienzklasse F
- A+
- A
- B
- C
- D
- E
- F
- G
- H
- 0
- 25
- 50
- 75
- 100
- 125
- 150
- 175
- 200
- 225
- >250
Beschreibung des Objekts
Ausstattung
+ Vielseitig nutzbar: Zweifamilienhaus mit klarer Aufteilung – ideal für Mehrgenerationen, Kapitalanlage oder Wohnen & Arbeiten unter einem Dach. + Sofort einziehen: Modernisiert, gepflegt und auf Wunsch komplett möbliert – kein Renovierungsbedarf. + Attraktives Grundstück: 637 m² Gartenidylle mit Terrasse, Outdoor-Küche, Grillecke und exotischem Steingarten. + Extra Platz & Möglichkeiten: Großzügige Werkstatt für Kreative und genehmigte Umnutzung der Doppelgarage als Ladenlokal. + Perfekte Lage: Ruhig wohnen und in nur ca. 15 Minuten in Frankfurt – ideal für Pendler und Familien.
Lage
- Perfekte Anbindung nach Frankfurt: Nur ca. 15 Minuten Fahrzeit – ideal für Pendler, die stadtnah und dennoch ruhig wohnen möchten. - Familienfreundliche Umgebung: Kindergarten, Schule und Spielplätze in fußläufiger Nähe für kurze Wege im Alltag. - Alles für den täglichen Bedarf: Supermarkt, Apotheke, Bank und Ärzte bequem erreichbar – alles nah beisammen. - ÖPNV & Autobahnanschluss: Bus- und Bahnstationen sowie die nächste Autobahnauffahrt liegen in unmittelbarer Nähe. - Ruhige Wohnlage mit gewachsener Nachbarschaft: Harmonisches Umfeld mit viel Grün und hoher Wohnqualität.
Sonstige Angaben
Vereinbaren Sie noch heute einen Besichtigungstermin! _____________________________________________________ Alle Angaben sind ohne Gewähr und basieren ausschließlich auf Informationen, die uns von unserem Auftraggeber zur Verfügung gestellt wurden. Wir übernehmen keine Gewähr für die Vollständigkeit, Richtigkeit und Aktualität der Angaben.
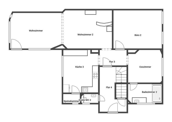
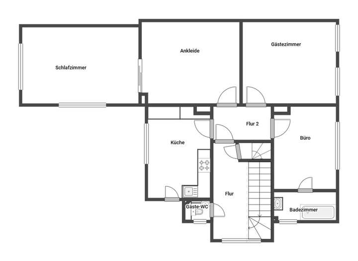
Grundriss
Grundriss Skizze EG
>

Grundriss Skizze 1.OG
>

Grundriss Skizze 2.OG
>

Grundriss Skizze UG
>

Adresse
63477 Maintal
Interessante Orte
Preis- und Lageinformationen
Preistrend für Bestandsimmobilien in Maintal