Diese charmante Altbau-Villa wurde im Jahr 1910 auf ca. 1.147 m² Grundstück erbaut und bietet drei Wohnungen, auf einer Gesamtwohnfläche von ca. 248 m² Platz. Außerdem ist das Gebäude voll unterkellert und verfügt über eine Einzelgarage. Die Fenster im Keller sowie das Garagentor sind 2022 erneuert worden. Beheizt wird das Gebäude über eine Gasheizung aus 2007. Weitere Stellplätze befinden sich auf dem Grundstück.
Mit ihren drei separaten und gut geschnittenen Wohnungen bietet die Villa langfristig, ausreichend Platz für individuelle Wohnkonzepte oder fungiert als eine attraktive Mieteinnahmequelle für Kapitalanleger.
Das Dach ist 2004 neu eingedeckt worden und verfügt über Kunststoff-Veluxfenster. Das Erdgeschoss und Obergeschoss verfügen über Holzfenster mit teilweiser Doppelverglasung und Schallschutz aus 1997. Der Wintergarten im Erdgeschoss wurde 1998 mit Baugenehmigung errichtet. Das Treppenhaus ist in einem gepflegten Zustand.
Die 4-Zimmer-Wohnung im Erdgeschoss war seit 01.03.2013 vermietet. Sie wird jedoch frei werden in diesem Jahr.
Die 4-Zimmer-Wohnung im ersten Obergeschoss steht direkt frei zur Verfügung. Nach einer Renovierung ist ein Einzug oder eine Vermietung möglich. Die Wohnküche, das zeitlos gestaltete Vollbad und der großzügige Balkon, der durch seine südliche Ausrichtung viel Sonne garantiert, tragen zur hohen Wohnqualität bei.
Das Dachgeschoss verfügt über 2-Zimmer zuzüglich. Spitzboden und ist seit 01.08.2011 vermietet.
+ 3 WE (2 frei + 1 verm.) mit Potential in Jugendstilhaus
22143 Hamburg
Die vollständige Adresse der Immobilie erhalten Sie vom Anbieter.
Auf Karte anzeigen
Die vollständige Adresse der Immobilie erhalten Sie vom Anbieter.
Finanzierungszertifikat
In nur zwei Minuten zu Ihrem persönlichen Finanzierungszertifkat.
Infos
| Haustyp | Sonstige |
|---|---|
| Wohnfläche ca. | 248 m2 |
| Grundstücksfläche | 1.147 m2 |
| Bezugsfrei ab | nach Vereinbarung |
| Zimmer | 10 |
| Anzahl Garage/Stellplatz | 3 |
Kosten
| Kaufpreis |
899.000 € |
|---|---|
| Provision |
3,57 % (inkl. gesetzlicher MwSt.) Die vom Käufer zu entrichtende Provision beträgt 3,57 % (inkl. gesetzlicher MwSt) vom beurkundeten Kaufpreis. Peters+Peters erhält vom Verkäufer eine Provision in gleichlautender Höhe. |
Finanzierungsrechner:
Kaufpreis:
600.000 €
Eigenkapital:
600.000 €
Monatliche Rate
0 €
Effektiver Jahreszins
0 %
Sollzinsbindung
10 Jahre
Bausubstanz & Energieausweis
| Baujahr | 1910 |
|---|---|
| Letzte Sanierung | 1995 |
| Objektzustand | Gepflegt |
| Qualität der Austattung | Einfach |
| Heizungsart | Gas-Heizung |
| Wesentliche Energieträger | Erdgas leicht |
| Energieausweis | liegt vor |
| Energieausweistyp | Bedarfsausweis |
| Energieverbrauchskennwert | 199,0 kWh/(m²*a) |
| Energieeffizienzklasse | F |
199,0
kWh/(m²*a)
Energieeffizienzklasse F
- A+
- A
- B
- C
- D
- E
- F
- G
- H
- 0
- 25
- 50
- 75
- 100
- 125
- 150
- 175
- 200
- 225
- >250
Beschreibung des Objekts
Ausstattung
+ Voll unterkellert mit vielseitig nutzbaren Räumen
+ Historisches Gebäude aus dem Jahr 1910
+ Schickes Treppenhaus
+ Mindestens zwei Außenstellplätze sowie ein Garagenplatz
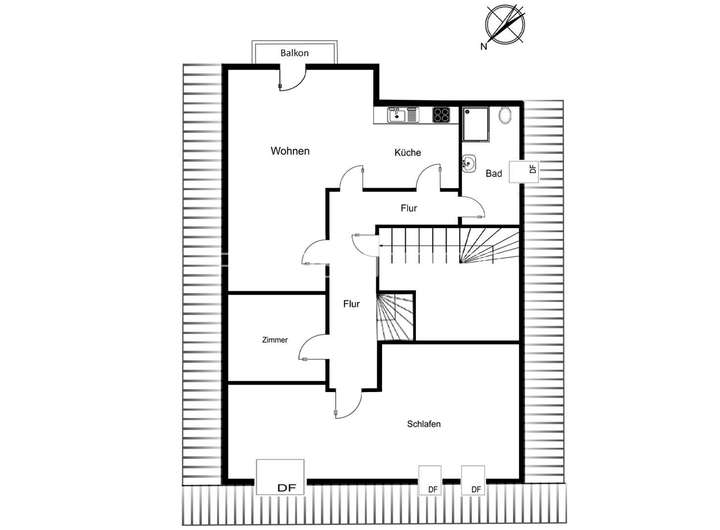
+ Drei separate Wohnungen:
DG (ca. 71,3 m²) vermietet
EG (ca. 94,2 m²) frei
OG (ca. 83,1 m²) frei
Die Immobilie stellt eine hervorragende Möglichkeit für Kapitalanleger dar, die von der beliebten Lage und stabilen Mieteinnahmen profitieren möchten. Für private Käufer bietet das Objekt zudem die Möglichkeit, eine der Wohnungen selbst zu bewohnen oder langfristig das gesamte Haus als als Mehrgenerationenhaus zu nutzen.
Energieausweisdaten: Bedarfsausweis vom 20.03.2025, 199,0 kWh/(m²*a), F, Erdgas E, Bj. 1910, Bj. Wärmeerzeuger 2007
Lage
Die Lage ist optimal für alle, die eine perfekte Anbindung an den öffentlichen Nahverkehr suchen, aber gleichzeitig die Vorzüge eines ruhigeren Wohnumfeldes genießen möchten. Einkaufsmöglichkeiten, Schulen und Kindergärten befinden sich ebenfalls in unmittelbarer Nähe, was die Lage besonders für Familien und Pendler interessant macht.
Die Villa besticht durch ihre erstklassige Lage im Herzen von Rahlstedt, direkt neben dem beliebten Liliencronpark. Dieser Park ist ein wahres Naturidyll und bietet mit der Wandse und dem Liliencronteich eine malerische Kulisse für erholsame Spaziergänge. Der Stadtteil selbst glänzt mit einer hohen Lebensqualität und einer hervorragenden Anbindung an das Hamburger Stadtzentrum.
Rahlstedt ist bekannt für seine vielfältigen Einkaufsmöglichkeiten, eine gute Auswahl an Dienstleistungsangeboten und ein aktives kulturelles Leben, was den Stadtteil besonders attraktiv macht. Das Umfeld ist geprägt von eleganten Jugendstilvillen, die das besondere Ambiente des Viertels widerspiegeln.
Die Verkehrsanbindung könnte nicht besser sein: Der Rahlstedter Bahnhof ist in nur vier Minuten zu Fuß erreichbar und bietet eine direkte Verbindung zum Hamburger Hauptbahnhof. Die Hamburger Innenstadt ist somit in nur rund 20 Minuten erreicht. Zusätzlich befindet sich eine Bushaltestelle in unmittelbarer Nähe, die eine gute Anbindung an das öffentliche Verkehrsnetz bietet, einschließlich zahlreicher Buslinien, die Rahlstedt mit den angrenzenden Stadtteilen und dem Flughafen verbinden.
Sonstige Angaben
+++ Bei PETERS+PETERS gibt es nur Einzelbesichtigungstermine, versprochen! +++
PETERS+PETERS ist Ihr starker Immobilienpartner - sowohl beim Kauf und Verkauf von Wohn- und Anlageimmobilien als auch bei der Wohnraumvermietung.
"Wir halten Wort" ist bei uns keine Floskel, sondern Unternehmensmaxime.
Mit unserer Schwesterfirma PETERS+BURKHARDT Grundstücksverwaltung GmbH bieten wir auch professionellen Hausverwaltungsservice, mehr unter www.pbimmo.de.
Peters+Peters Wohn- und Anlageimmobilien GmbH, IVD Mitgliedsunternehmen
Immobilienverband Deutschland,
Mittelweg 22
20148 Hamburg-Rotherbaum
Rufen Sie uns an Tel. 040 / 44 40 01
www.ppimmo.de
Adresse
22143 Hamburg
Interessante Orte
Preis- und Lageinformationen
Preistrend für Bestandsimmobilien in Rahlstedt