In ruhiger Wohnlage präsentiert sich dieses großzügige Einfamilienhaus als wahres Raumwunder mit besonderem Wohnambiente. Über drei Etagen hinweg bietet es Platz für die ganze Familie – zum Leben, Entspannen und Ankommen.
Die Kombination aus klarer Architektur, wertiger Ausstattung und liebevoll gestalteten Außenbereich schafft ein stimmiges Gesamtbild mit hohem Wohnwert.
Das Erdgeschoss überzeugt mit einem offenen Wohn- und Essbereich, der durch seine Helligkeit und Großzügigkeit besticht. Die angrenzende Küche fügt sich harmonisch in das Gesamtbild ein und schafft den perfekten Rahmen für gemeinsames Kochen und Genießen. Das Elternschlafzimmer mit angeschlossenem Badezimmer macht diese Ebene auch für barrierearmes Wohnen besonders attraktiv. Ergänzt wird diese Etage durch ein Gäste-WC.
Ein Ort der Ruhe und Rückzugsmöglichkeiten bietet das Dachgeschoss. Vier gemütliche Zimmer bieten individuelle Gestaltungsmöglichkeiten – ob als Kinderzimmer, Homeoffice oder Gästequartier. Das große Badezimmer sowie zwei Balkone unterstreichen den hochwertigen Charakter dieser Etage.
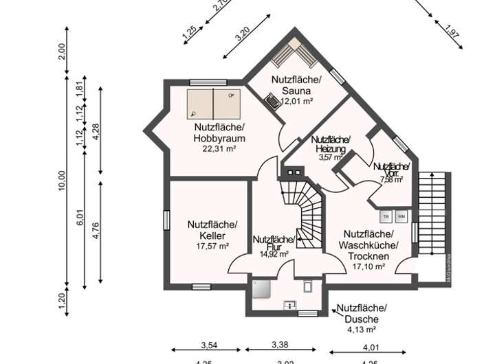
Auch das Kellergeschoss weiß zu begeistern: Neben den klassischen Keller- und Hauswirtschaftsräumen befindet sich hier ein Hobbyraum, ein Gästezimmer sowie eine Sauna und ein Duschbad – perfekt für entspannte Stunden zuhause. Die flexible Nutzung dieser Etage eröffnet zahlreiche Möglichkeiten für Familie, Arbeit und Freizeit.
Der Außenbereich rundet das Gesamtbild ideal ab: Eine liebevoll angelegte Terrasse mit Sichtschutz schafft eine grüne Oase der Ruhe, während das eingewachsene Grundstück Privatsphäre und Naturerlebnis in Einklang bringt. Eine geräumige Garage sorgt zusätzlich für Komfort und sicheren Stellplatz.
Die Photovoltaikanlage auf dem Dach sorgt für eine rentable Einspeisevergütung.
***Raumvielfalt und Gartenidylle***
56348 Weisel
Die vollständige Adresse der Immobilie erhalten Sie vom Anbieter.
Auf Karte anzeigen
Die vollständige Adresse der Immobilie erhalten Sie vom Anbieter.
Finanzierungszertifikat
In nur zwei Minuten zu Ihrem persönlichen Finanzierungszertifkat.
Infos
| Haustyp | Einfamilienhaus |
|---|---|
| Wohnfläche ca. | 176 m2 |
| Grundstücksfläche | 588 m2 |
| Zimmer | 6 |
| Badezimmer | 2 |
Kosten
| Kaufpreis |
425.000 € |
|---|---|
| Provision |
3,57% inkl. MwSt.
Käuferprovision |
Finanzierungsrechner:
Kaufpreis:
600.000 €
Eigenkapital:
600.000 €
Monatliche Rate
0 €
Effektiver Jahreszins
0 %
Sollzinsbindung
10 Jahre
Bausubstanz & Energieausweis
| Baujahr | 1996 |
|---|---|
| Heizungsart | Zentralheizung |
| Wesentliche Energieträger | Gas |
| Energieausweis | liegt vor |
| Energieausweistyp | Verbrauchsausweis |
| Energieverbrauchskennwert | 73,1 kWh/(m²*a) |
| Energieeffizienzklasse | B |
73,1
kWh/(m²*a)
Energieeffizienzklasse B
- A+
- A
- B
- C
- D
- E
- F
- G
- H
- 0
- 25
- 50
- 75
- 100
- 125
- 150
- 175
- 200
- 225
- >250
Beschreibung des Objekts
Ausstattung
-Kunststofffenster 2-fach verglast
-Gasheizung aus 1996, Firma Viessmann
- Photovoltaikanlage Bj. 2010, ca. 11 kwP, mit rentabler Einspeisevergütung
-Solar auf Garagendach
- Sauna und Duschbad im Untergeschoss
-Doppelgarage
Lage
Das Wohnhaus befindet sich in ruhiger Ortslage von Weisel.
Weisel, mit rund 1.000 Einwohnern, liegt in ca. 400 m Höhe auf der Rheinhöhe, in unmittelbarer Nähe des weltberühmten Loreleyfelsens und des Rheinsteigs. Die Gemeinde ist somit der optimale Startpunkt für eine Wanderung durch die Weinberge des Mittelrheintals oder eine Schifffahrt auf dem Rhein.
Gastronomie, Arzt, Tierarzt und eine Bankfiliale sind angesiedelt.
Mehrere Handwerksbetriebe haben ihren Sitz in Weisel.
Der Kindergarten ist direkt vor Ort, die Grundschule, Realschule und ein Gymnasium sind in St.Goarshausen bzw. im Ortsteil St. Goarshausen-Heide sowie in Nastätten zu finden.
Vielfältige Einkaufsmöglichkeiten, Ärzte und Krankenhaus bietet in ca. 12 km Entfernung das Mittelzentrum Stadt Nastätten.
Sonstige Angaben
Gefällt Ihnen unser Angebot? Dann zögern Sie nicht und melden sich bei uns.
Wir zeigen Ihnen das Anwesen in einem gemeinsamen Termin vor Ort und begleiten Sie bei den folgenden Schritten zum Kauf Ihres eigenen Zuhauses.
Sie haben Fragen zur Finanzierung oder suchen einen Finanzierungspartner? Auch hier stehen wir Ihnen gerne zur Seite.
Oder haben Sie gleichzeitig eine Immobilie zum Verkauf? Wir kümmern uns darum!
Wir haben dieses Exposé mit Sorgfalt und nach bestem Wissen erstellt. Das Angebot erfolgt freibleibend, alle Angaben beruhen auf uns erteilten Informationen von Dritten.
Zwischenverkauf und Irrtum bleiben vorbehalten.
Wir weisen darauf hin, dass vorhandene Grundrisse nicht maßstabsgetreu sind, Maße, Angaben und Details abweichen können. Für die Richtigkeit, Vollständigkeit und Aktualität der Angaben können wir keine Gewähr übernehmen, auch nicht für mögliche Folgenutzungen der Immobilie.
Die Funktionsfähigkeit der technischen Anlagen haben wir bestmöglich erfragt, können jedoch im Einzelfall hierfür keine Gewähr übernehmen.
Selbstverständlich erhalten Sie bei näherem Interesse die Möglichkeit, das Haus durch Experten Ihrer Wahl ausführlich prüfen und begutachten zu lassen. Für die Klärung Ihrer offenen Fragen stehen wir Ihnen gerne zur Verfügung.
Doch nicht die richtige Immobilie? Dann schauen Sie sich unser weiteres Angebot an: www.zimmermann-immobilien.eu
Grundriss
45105_744983_1966207_132-1158_
>
>
45105_744983_1966208_132-1158_
>
>
Adresse
56348 Weisel
Interessante Orte
Preis- und Lageinformationen
Preistrend für Bestandsimmobilien in Weisel