Atelierhäuser in Frankfurt-Praunheim: Auf einem der attraktivsten Grundstücke in Frankfurt-Praunheim entstanden in den Jahren 2007/2008 insgesamt 11 moderne Atelierhäuser. Das ca. 2.871 m² große Areal befindet sich auf einem Erbpachtgrundstück des Evangelischen Regionalverbandes und liegt nur wenige Meter vom weitläufigen Niddapark entfernt. Die Lage vereint naturnahes Wohnen mit urbaner Lebensqualität in unmittelbarer Nähe zur Frankfurter Innenstadt. Weiße, kubisch gestaltete Baukörper mit großzügigen, hoch umrahmten Dachterrassen, weite Ausblicke durch breite Panoramafenster, kompakte, quadratische Balkone und schwarze, horizontal verlaufende Brüstungen – all dies sind prägnante Merkmale der klassischen Moderne. An dieser Architektursprache orientieren sich die Architekten Astrid Berndt und Heinz Lorz in ihren Entwürfen für moderne Einfamilienhäuser. Das Atelierhaus in Praunheim direkt am Niddapark: Jede Häuserzeile setzt sich aus vier bzw. drei Häusern zusammen. Das Atelierhaus 8 ist als Endhaus konzipiert und verfügt über einen Garten in L-Form. Die Grundrisse dieses außergewöhnlichen Hauses sind in Split-Level-Bauweise angelegt. Halbgeschossig versetzte Ebenen gruppieren sich um einen zentralen Lichtschacht. Diese besondere Anordnung schafft spannende Blickbeziehungen zwischen den Ebenen, lässt die Räume auf elegante Weise vertikal ineinander übergehen und sorgt für zusätzliches Tageslicht, was dem Haus eine offene und großzügige Atmosphäre verleiht. Im Erdgeschoss befindet sich der großzügig gestaltete Wohn- und Essbereich mit offener Küche. Bodentiefe Fenster im Wohnbereich sorgen für eine helle und freundliche Atmosphäre und schaffen einen fließenden Übergang zur angrenzenden Terrasse sowie dem liebevoll gestalteten Garten. Die Terrasse lädt zum Verweilen ein und bietet einen direkten Zugang zum Außenbereich. Ein idealer Ort für entspannte Stunden im Freien und gesellige Momente im Grünen. Die hochwertige Ausstattung unterstreicht den gehobenen Wohnkomfort: Eine luxuriöse Marken-Einbauküche, ein Kaminofenanschluss sowie eine elegant integrierte Garderobe aus hochwertigen Materialien sorgen für ein erstklassiges Wohnambiente. In den ersten Obergeschossen befinden sich zwei Schlafzimmer sowie ein gut geschnittenes Badezimmer mit Wanne und Dusche. Eine Ebene darüber befindet sich eine weitläufige, absolut private und uneinsehbare Dachterrasse mit großem Panoramafenster. Im darüberliegenden Geschoss stehen ein weiteres Schlafzimmer und ein zusätzliches Badezimmer zur Verfügung. Insgesamt umfasst das Haus fünf Zimmer, drei Bäder sowie einen geräumigen Keller mit viel Stauraum. Für zusätzlichen Komfort im Alltag sorgen zwei PKW-Außenstellplätze, einer davon mit E-Ladestation und ein überdachter Abstellplatz für Fahrräder.
Moderne Transparenz – Hochwertiges Atelierhaus direkt am Niddapark
60488 Frankfurt am Main
Die vollständige Adresse der Immobilie erhalten Sie vom Anbieter.
Auf Karte anzeigen
Die vollständige Adresse der Immobilie erhalten Sie vom Anbieter.

Finanzierungszertifikat
In nur zwei Minuten zu Ihrem persönlichen Finanzierungszertifkat.
Infos
Haustyp | Reiheneckhaus |
---|---|
Wohnfläche ca. | 180 m2 |
Nutzfläche | 32,61 m2 |
Grundstücksfläche | 300 m2 |
Bezugsfrei ab | nach Vereinbarung |
Zimmer | 5 |
Schlafzimmer | 4 |
Badezimmer | 3 |
Garage/Stellplatz | Außenstellplatz |
Anzahl Garage/Stellplatz | 2 |
Kosten
Kaufpreis |
980.000 € |
---|---|
Provision |
3,57 % inkl. gesetzlicher MwSt. von aktuell 19 % bezogen auf den Kaufpreis |
Finanzierungsrechner:
Kaufpreis:
600.000 €
Eigenkapital:
600.000 €
Monatliche Rate
0 €
Effektiver Jahreszins
0 %
Sollzinsbindung
10 Jahre
Bausubstanz & Energieausweis
Baujahr | 2008 |
---|---|
Objektzustand | Neuwertig |
Qualität der Austattung | Gehoben |
Heizungsart | Zentralheizung |
Wesentliche Energieträger | Gas |
Energieausweis | liegt vor |
Energieausweistyp | Verbrauchsausweis |
Energieverbrauchskennwert | 71,4 kWh/(m²*a) |
Energieeffizienzklasse | B |
71,4
kWh/(m²*a)
Energieeffizienzklasse B
- A+
- A
- B
- C
- D
- E
- F
- G
- H
- 0
- 25
- 50
- 75
- 100
- 125
- 150
- 175
- 200
- 225
- >250
Beschreibung des Objekts
Ausstattung
_ Atelierhaus mit L-förmigen Garten _ die Grundrisse sind in offener Split-Level-Anordnung angeordnet _ der zentrale Lichtschacht sorgt für außergewöhnliche Helligkeit im gesamten Haus _ fünf Zimmer (sechs Zimmer möglich) _ drei bis vier Schlafzimmer _ drei Badezimmer (ein Wannen-/Duschbad, zwei Duschbäder) _ hochwertige Einbauküche der Marke Alno _ Hauswirtschaftsraum _ Parkett und Natursteinböden _ Fußbodenheizung _ gespachtelte Wände _ Kaminanschluß vorhanden _ Holzfenster mit Isolierverglasung _ zwei Terrassen (eine mit Süd- und eine mit Nord- Ausrichtung) _ Terrasse im Garten (Südlage) bezitzt eine großzügige ausziehbare Markise _ Gegensprechanlage _ Gasheizung und Solarthermische Anlage _ Keller _ zwei PKW-Stellplätze _ elektrische Ladestation mit Wallbox Anschluss _ überdachter Fahrradunterstand _ Glasfaseranbindung wird zeitnah erfolgen
Lage
_ Praunheim liegt im Nordwesten Frankfurts und kombiniert urbanes Leben mit einer entspannten, familienfreundlichen Umgebung _ viele Spielplätze, Kindergärten und Schulen in unmittelbarer Nähe _ Nähe zum Niddapark, einer der größten Grünanlagen Frankfurts _ vielfältige Einkaufsmöglichkeiten, Restaurants und Einrichtungen des täglichen Bedarfs sind schnell erreichbar _ die große Auswahl an Kindergärten, Grundschulen und hervorragenden weiterführenden Schulen, zu denen beispielsweise die Liebigschule, die Ziehenschule, die Europäische Schule, die Französische Schule und die Japanische Schule gehören, ist wohl einmalig _ ÖPNV in unmittelbarer Nähe, U-Bahn-Linie U7 Haltestelle Heerstraße (Busanbindung Linie 60) sowie U-Bahn-Linie U 6 Haltestelle Hausen (Busanbindungen Linien M72 und M73). In der Nacht fährt Linie N2 durch Praunheim _ schnelle Erreichbarkeit der Autobahnen (A66 und A5) _ gute medizinische Versorgung (Nordwest-Krankenhaus) _ den Flughafen erreicht man nach ca. 15 Fahrminuten
Sonstige Angaben
Das Grundstück wird im Rahmen eines Erbbaurechts genutzt, mit einer Gesamtlaufzeit von 75 Jahren. Die Erbbauzins pro Monat beträgt ca. € 739,-.
Grundriss
Grundriss Ebene -2 u. -1
>

Grundriss Ebene 0 u. 1
>

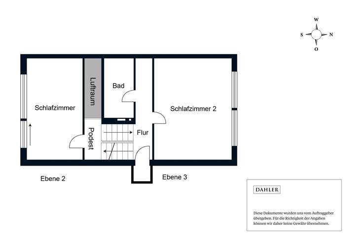
Grundriss Ebene 2 u. 3
>

Grundriss Ebene 4 u. 5
>

Adresse
60488 Frankfurt am Main
Interessante Orte
Preis- und Lageinformationen
Preistrend für Bestandsimmobilien in Praunheim