Dieser charmante Resthof vereint historischen Charakter mit großzügigem Wohnkomfort und weitläufigem Grundstück – ideal für Naturliebhaber, Familien oder Pferdehalter. Das ursprünglich um 1930 erbaute Anwesen wurde in den 1970/90er Jahren umfassend saniert und bietet heute rund 250 m² Wohnfläche sowie weitere ca. 250 m² Nutzfläche.
Die Raumaufteilung überzeugt durch ihre Flexibilität: Insgesamt 10 Zimmer und 3 Bäder verteilen sich auf eine große Hauptwohnung sowie eine separate Einliegerwohnung, die sich ideal für Gäste, Familienangehörige oder eine Vermietung eignet. Alternativ lässt sich die gesamte Wohnfläche auch problemlos als ein gemeinsames Wohnkonzept nutzen – der durchdachte Grundriss lässt hier alle Möglichkeiten offen.
Herzstück des Hauses ist der großzügige, offene Wohn- und Essbereich mit Kamin und sichtbarem Ständerwerk, der für ein besonders behagliches und zugleich repräsentatives Ambiente sorgt.
Das Hausgrundstück umfasst rund 10.150 m², hinzu kommen ca. 65.546 m² Ackerland in unmittelbarer Nähe – eine hervorragende Grundlage für Pferde- oder Tierhaltung. Im ehemaligen Stall- und Werkstattbereich sind noch drei Pferdeboxen aus früherer Nutzung vorhanden.
Ergänzend bieten ein geräumiger Bodenraum sowie ein separates Nebengebäude mit zwei Garagen und Holzlager reichlich Platz für Fahrzeuge, Geräte und Lagerbedarf.
Ein Anwesen mit Geschichte, Charakter und außergewöhnlichem Platzangebot – perfekt für alle, die großzügiges Wohnen mit naturnahem Lebensstil verbinden möchten.
Teilreetgedeckter Resthof mit 7,5 h Ländereien– ideal für Pferdehaltung und naturverbundenes Wohnen!
26607 Aurich
Die vollständige Adresse der Immobilie erhalten Sie vom Anbieter.
Auf Karte anzeigen
Die vollständige Adresse der Immobilie erhalten Sie vom Anbieter.
Finanzierungszertifikat
In nur zwei Minuten zu Ihrem persönlichen Finanzierungszertifkat.
Infos
| Wohnfläche ca. | 250 m2 |
|---|---|
| Nutzfläche | 250 m2 |
| Grundstücksfläche | 75.871 m2 |
| Bezugsfrei ab | nach Absprache |
| Zimmer | 10 |
| Schlafzimmer | 8 |
| Badezimmer | 3 |
| Garage/Stellplatz | Garage |
| Anzahl Garage/Stellplatz | 3 |
Kosten
| Kaufpreis |
649.000 € |
|---|---|
| Provision |
3,57 % |
Finanzierungsrechner:
Kaufpreis:
600.000 €
Eigenkapital:
600.000 €
Monatliche Rate
0 €
Effektiver Jahreszins
0 %
Sollzinsbindung
10 Jahre
Bausubstanz & Energieausweis
| Baujahr | 1930 |
|---|---|
| Objektzustand | Renovierungsbedürftig |
| Qualität der Austattung | Normal |
| Heizungsart | Gas-Heizung |
| Wesentliche Energieträger | Gas |
| Energieausweis | liegt vor |
| Energieausweistyp | Bedarfsausweis |
| Energieverbrauchskennwert | 200,2 kWh/(m²*a) |
| Energieeffizienzklasse | G |
200,2
kWh/(m²*a)
Energieeffizienzklasse G
- A+
- A
- B
- C
- D
- E
- F
- G
- H
- 0
- 25
- 50
- 75
- 100
- 125
- 150
- 175
- 200
- 225
- >250
Beschreibung des Objekts
Ausstattung
- Einliegerwohnung
- Kamin
- 3 Pferdeboxen
- 3 Garagen
Lage
Das Anwesen befindet sich in Aurich-Georgsfeld, einem beliebten Ortsteil der Kreisstadt Aurich im Herzen Ostfrieslands. Die Lage verbindet auf ideale Weise ländliche Ruhe mit der Nähe zur Stadt und bietet damit eine ausgezeichnete Lebensqualität für Familien, Naturliebhaber und Tierhalter.
Aurich gilt als das wirtschaftliche und geografische Zentrum Ostfrieslands. Die charmante Kreisstadt überzeugt durch ihre gute Infrastruktur, zahlreiche Einkaufsmöglichkeiten, Ärzte, Schulen, Kindergärten und ein vielfältiges Freizeit- und Kulturangebot. Auch die historische Innenstadt mit ihren Cafés, Boutiquen und dem Marktplatz ist nur wenige Autominuten entfernt.
Die umgebende Landschaft ist geprägt von weiten Feldern, Wiesen und kleinen Gehöften – typisch für die ostfriesische Region. Gleichzeitig sind die Nordseeküste und beliebte Küstenorte wie Norddeich, Neßmersiel oder Dornumersiel in weniger als 30 Minuten erreichbar, was die Lage auch für Natur- und Küstenfreunde besonders attraktiv macht.
Dank der guten Verkehrsanbindung über die B72 und B210 sind auch die Städte Emden, Leer und Wilhelmshaven schnell zu erreichen. So bietet die Lage in Aurich-Georgsfeld den perfekten Kompromiss zwischen idyllischem Landleben und städtischer Erreichbarkeit.
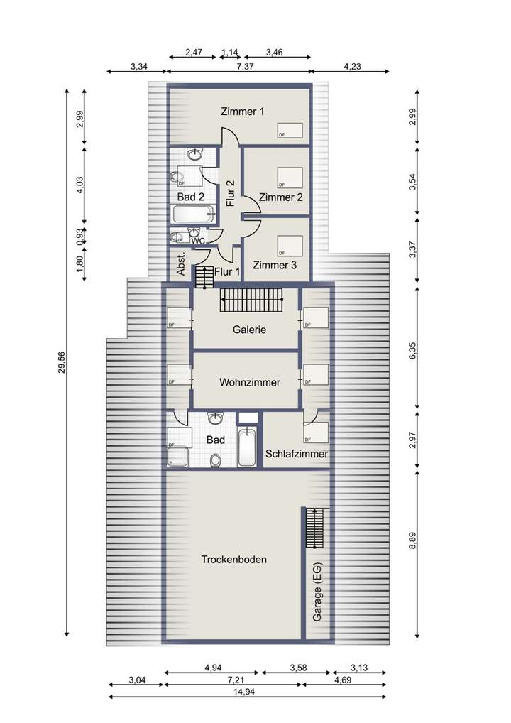
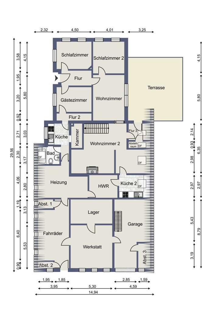
Grundriss
Erdgeschoss
>
>
Obergeschoss
>
>
Nebengebäude
>
>
Adresse
26607 Aurich
Interessante Orte
Preis- und Lageinformationen
Preistrend für Bestandsimmobilien in Aurich