Wir freuen uns, Ihnen diese beiden in der Fertigstellung befindlichen Neubauten in Ehra präsentieren zu dürfen! Um Ihnen einen ersten Eindruck zu vermitteln, haben wir folgende Medien für Sie vorbereitet:
• Detailliertes Exposé: Fordern Sie die vollständige Objektbeschreibung mit allen relevanten Informationen an.
• 360°-Rundgang: Erkunden Sie die Immobilie bequem von Zuhause aus und erhalten Sie einen Raum-für-Raum-Eindruck.
• Objektunterlagen: Auf Anfrage stellen wir Ihnen alle bankrelevanten Dokumente wie Baubeschreibung, Grundrisse, Ansichten, Energieausweis und mehr zur Verfügung.
In Ehra-Lessien stehen diese beiden nahezu fertiggestellten Neubauten auf einem gemeinsamen Grundstück, das bereits nach WEG geteilt ist. Damit bieten sie ideale Voraussetzungen für befreundete Paare, Familiengenerationen oder Käufergemeinschaften, die gemeinsam in Eigentum investieren möchten.
Beide Häuser verfügen über eine identische Wohnfläche von 171 Quadratmetern. Die Grundrisse sind dabei gespiegelt. Der Feinschliff - seien es die Bodenbeläge, die Badausstattung oder die Türen - wird noch ohne Aufpreis von der Baufirma fertiggestellt. Sie als Käufer treffen dabei die Entscheidung, für welche Materialen Sie sich entscheiden! Beide Häuser verfügen dank der Wärmepumpe, modernster Dämmtechnik und dreifach verglasten Fenstern über Energieeffizienzklasse A und senken Ihre Heizkosten damit dauerhaft.
Die beiden Häuser stehen auf einem 1.095 Quadratmeter großen Grundstück, dass mit jeweils einem Garten, einer Terrasse, einem Carport und einem Schuppen über zahlreiche Annehmlichkeiten verfügt. Auch das Grundstück wird selbstverständlich gepflegt übergeben. Momentan ist dafür Rollrasen vorgesehen, aber auch hier haben Sie die Möglichkeit der Absprache mit den Bauherren.
Die Innenbilder sind dem linken Haus entnommen. Schauen Sie sich aber gerne unseren 360°-Rundgang an, um einen genauen Überblick über das Grundstück und Einblick in beide Immobilien zu gewinnen!
Nach Ihrer schriftlichen Kontaktanfrage erhalten Sie von uns eine automatische Rückmeldung mit dem ausführlichen Exposé, dem Link zum 360°-Rundgang und der genauen Adresse der Immobilie.
Wir sind in den nächsten Tagen regelmäßig vor Ort und laden Sie herzlich ein, sich bei einer Besichtigung ein eigenes Bild zu machen.
Um Ihnen die Realisierung Ihres Traumheims zu erleichtern, vermitteln wir Ihnen gerne den Kontakt zu unserem Finanzierungspartner, damit Sie dieses attraktive Angebot zu besten Konditionen sichern können.
Zwei (fast) fertige Neubauten in Ehra! Ideal für größere Familien, Freunde, Käufergemeinschaften
Wittinger Straße 22,
38468 Ehra-Lessien
Auf Karte anzeigen
Finanzierungszertifikat
In nur zwei Minuten zu Ihrem persönlichen Finanzierungszertifkat.
Infos
| Haustyp | Sonstige |
|---|---|
| Etagenzahl | 2 |
| Wohnfläche ca. | 342 m2 |
| Grundstücksfläche | 1.095 m2 |
| Bezugsfrei ab | sofort |
| Zimmer | 10 |
| Schlafzimmer | 8 |
| Badezimmer | 4 |
| Garage/Stellplatz | Carport |
| Anzahl Garage/Stellplatz | 3 |
Kosten
| Kaufpreis |
900.000 € |
|---|---|
| Provision |
3,57 % Verkäufer-Provision inkl. MwSt. 3,57% Käuferprovision inkl. MwSt., verdient und fällig mit Beurkundung des notariellen Kaufvertrages. Der Immobilienmakler hat einen provisionspflichtigen Maklervertrag mit dem Verkäufer in gleicher Höhe abgeschlossen. |
Finanzierungsrechner:
Kaufpreis:
600.000 €
Eigenkapital:
600.000 €
Monatliche Rate
0 €
Effektiver Jahreszins
0 %
Sollzinsbindung
10 Jahre
Bausubstanz & Energieausweis
| Baujahr | 2025 |
|---|---|
| Letzte Sanierung | 2025 |
| Bauphase | Haus fertig gestellt |
| Objektzustand | Erstbezug |
| Qualität der Austattung | Gehoben |
| Heizungsart | Fußbodenheizung |
| Wesentliche Energieträger | Umweltwärme |
| Energieausweis | liegt vor |
| Energieausweistyp | Bedarfsausweis |
| Energieverbrauchskennwert | 44,3 kWh/(m²*a) |
| Energieeffizienzklasse | A |
44,3
kWh/(m²*a)
Energieeffizienzklasse A
- A+
- A
- B
- C
- D
- E
- F
- G
- H
- 0
- 25
- 50
- 75
- 100
- 125
- 150
- 175
- 200
- 225
- >250
Beschreibung des Objekts
Ausstattung
- Wärmepumpe
- Fußbodenheizung
- dreifach verglaste Fenster
- sichtgeschützte Terrasse
- offener Wohn-/ und Essbereich
- Bodenbeläge, Bäder und Türen nach Wunsch
- Gäste-WC
- hohe Türen (2,11 m)
- Garten
- Carport mit Abstellraum
Lage
20 Minuten von Wolfsburg und dem VW-Werk entfernt und doch idyllisch auf dem Land - das ist in Ehra-Lessien möglich! Trotz der dörflichen Lage verfügt die Gemeinde im Landkreis Gifhorn über eine gute Infrastruktur. Eine Grundschule, ein Sportverein sowie ein dauerhaft geöffneter Tante-Emma-Laden befinden sich in Ehra. Für die Zukunft ist der Ausbau der A39 von Wolfsburg nach Lüneburg geplant, was der Region eine zusätzliche Aufwertung verleihen und die Immobilienpreise in der Region sicher weit nach oben schießen lassen würde. Zudem lädt die naturnahe Umgebung zu Spaziergängen und Ausflügen an, das Waldgebiet Malloh, der nahegelegene Bernsteinsee oder der Naturpark Drömling sind nur einige von vielen Optionen. Außerdem bietet Wolfsburg neben städtischer Infrastruktur natürlich auch unzählige Freizeitmöglichkeiten wie die Autostadt und den Allerpark.
Sonstige Angaben
Auch Sie möchten eine Immobilie verkaufen? Wir bieten unseren Kunden folgende Wege zur Vermarktung an:
Szenario 1: Wir besichtigen zusammen Ihre Immobilie um eine individuelle Strategie für den Vertrieb und den realisierbaren Preis zu besprechen. Dabei nehmen wir Ihnen für gewöhnlich alle anfallenden Arbeiten aus der Hand und organisieren alle objektbezogenen Dokumente inkl. Behördengänge selbst. Während wir Ihre Immobilie anschließend zielorientiert, zum bestmöglichen Preis vermarkten, können Sie sich entspannt zurücklegen und sich auf die Zeit nach dem erfolgreichen Verkauf Ihrer Immobilie vorbereiten.
Szenario 2: Sie haben bereits versucht Ihre Immobilie zu verkaufen oder möchten nicht warten bzw. die Immobilie sofort und wie sie ist verkaufen. In diesem Fall treten wir als Käufer auf und vereinbaren innerhalb 3 Tagen einen Notartermin. Das Objekt wird ggf. möbliert, mit Schäden, lückenhaften Dokumenten, diskret und ohne Umwege angekauft. Sie erhalten dabei umgehend Ihr Geld.
Besichtigungen führen wir täglich durch. Zögern Sie also nicht, mit uns in Kontakt zu treten und uns Ihren Wunschtermin per E-Mail unter Angabe Ihrer Rufnummer mitzuteilen.
Das Kleingedruckte: Wir weisen freundlich darauf hin, dass die von uns genannten Informationen und Angaben zum Objekt ausdrücklich unverbindlich und nur zur Vorabinformation bestimmt sind. Für die in unserem Exposé genannten Objekt-Angaben/Informationen ist Firma Kittelmann und Fischer Immobilien auf die Auskünfte von Verkäufern, Vermietern, Verpächtern, Bauherren, Bauträgern, Behörden, Institutionen, Unternehmen, etc. angewiesen. Diese mündlich oder schriftlich an Firma Kittelmann & Fischer Immobilien übermittelten Objektangaben/Informationen sind nicht zwangsläufig durch uns auf ihre Richtigkeit hin überprüft worden. Eine Haftung für die Richtigkeit oder Vollständigkeit dieser Objektangaben/Informationen übernehmen wir nicht. Es obliegt daher unseren Kunden, vor Kauf, die Objektangaben/Informationen auf ihre Richtigkeit hin zu überprüfen.
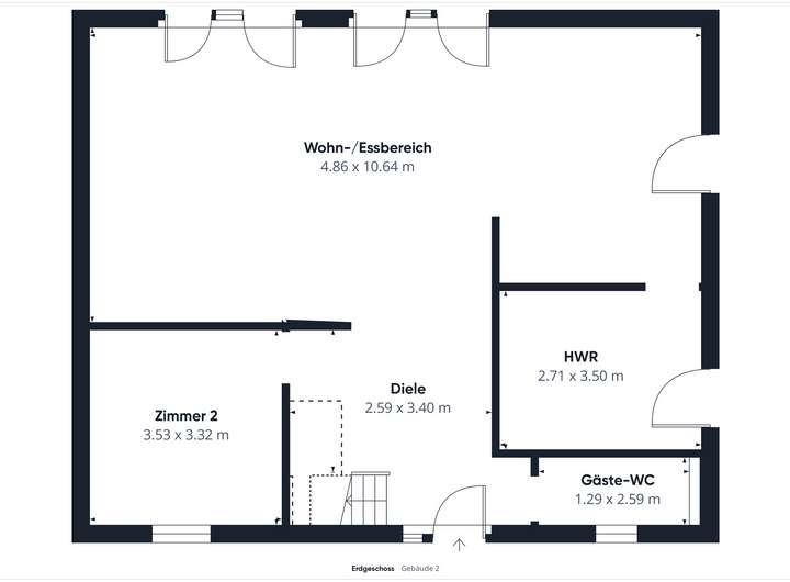
Grundriss
Grundriss EG links
>
>
Grundriss OG inks
>
>
Grundriss EG rechts
>
>
Grundriss OG rechts
>
>
Adresse
Wittinger Straße 22, 38468 Ehra-Lessien
Interessante Orte
Preis- und Lageinformationen
Preistrend für Bestandsimmobilien in Ehra-Lessien