In einer ruhigen Wohnstraße von Hamburg-Niendorf erwartet Sie diese repräsentative Stadtvilla – ein Zuhause, das modernes Wohnen, hohen Komfort und naturnahe Lebensqualität miteinander verbindet. Das im Jahr 2022 errichtete KfW-Effizienzhaus 55 besticht durch massive Bauweise, zeitgemäße Technik und ein durchdachtes Raumkonzept.
Die rund 165 m² Wohnfläche zuzüglich ca. 40 m² Nutzfläche verteilen sich auf zwei Ebenen mit lichtdurchfluteten Räumen und großzügigen Grundrissen. Bodentiefe Fenster und ein harmonisches Lichtkonzept sorgen für Transparenz und Helligkeit in allen Bereichen.
Im Erdgeschoss eröffnet sich ein ca. 54 m² großer Wohn- und Essbereich mit hochwertiger Einbauküche und Marken-Elektrogeräten. Eine versenkbare Dunstabzugshaube, elektrische Jalousien sowie die durchgehende Fußbodenheizung unterstreichen den hohen Wohnstandard. Ergänzt wird das Erdgeschoss durch ein modernes Duschbad, einen funktionalen Hauswirtschaftsraum mit Außenzugang sowie eine einladende Diele.
Das Obergeschoss bietet ein eindrucksvolles, ca. 40 m² großes Schlafzimmer mit Gartenblick und ein stilvolles Vollbad mit Walk-In Dusche. Einheitliche Laminatböden verleihen den Räumen ein ruhiges, warmes Ambiente.
Für eine effiziente Energieversorgung sorgen eine Gaszentralheizung, eine Lüftungsanlage mit Wärmerückgewinnung sowie Solarthermie.
„Stadtvilla in Hamburg-Niendorf – Modernes Wohnen mit Gartenidylle“
22453 Hamburg
Die vollständige Adresse der Immobilie erhalten Sie vom Anbieter.
Auf Karte anzeigen
Die vollständige Adresse der Immobilie erhalten Sie vom Anbieter.
Finanzierungszertifikat
In nur zwei Minuten zu Ihrem persönlichen Finanzierungszertifkat.
Infos
| Haustyp | Einfamilienhaus |
|---|---|
| Wohnfläche ca. | 165 m2 |
| Nutzfläche | 40 m2 |
| Grundstücksfläche | 850 m2 |
| Bezugsfrei ab | Nach Vereinbarung |
| Zimmer | 3 |
| Badezimmer | 2 |
| Anzahl Garage/Stellplatz | 2 |
Kosten
| Kaufpreis |
999.000 € |
|---|---|
| Provision | Nein |
Finanzierungsrechner:
Kaufpreis:
600.000 €
Eigenkapital:
600.000 €
Monatliche Rate
0 €
Effektiver Jahreszins
0 %
Sollzinsbindung
10 Jahre
Bausubstanz & Energieausweis
| Baujahr | 2022 |
|---|---|
| Objektzustand | Neuwertig |
| Qualität der Austattung | Gehoben |
| Heizungsart | Fußbodenheizung |
| Wesentliche Energieträger | Gas |
| Energieausweis | liegt vor |
| Energieausweistyp | Bedarfsausweis |
| Energieverbrauchskennwert | 32,2 kWh/(m²*a) |
| Energieeffizienzklasse | A |
32,2
kWh/(m²*a)
Energieeffizienzklasse A
- A+
- A
- B
- C
- D
- E
- F
- G
- H
- 0
- 25
- 50
- 75
- 100
- 125
- 150
- 175
- 200
- 225
- >250
Beschreibung des Objekts
Ausstattung
KfW-Effizienzhaus 55
Fußbodenheizung auf allen Ebenen
Hochwertige Fliesen im Erdgeschoss, Laminat im Obergeschoss
Dreifach verglaste Kunststofffenster (teilweise bodentief) mit Schallschutz zum Flughafen
Modern ausgestattete Bäder mit bodengleichen Walk-In Duschen (EG und OG)
Unterputzarmaturen
Hauswirtschaftsraum mit Außenzugang
Doppelgarage und PKW-Stellplätze
Gepflasterte Zuwegungen
Großzügige WPC-Terrasse mit Südost-Ausrichtung
Lage
Niendorf zählt zu den beliebtesten Stadtteilen Hamburgs – eine grüne Wohnlage mit urbanem Komfort. Der Stadtteil ist geprägt von Einfamilienhäusern, Doppelhäusern und Reihenhausstrukturen, was ein familienfreundliches Umfeld schafft.
Das nahegelegene Tibarg-Center bietet vielfältige Einkaufsmöglichkeiten, Gastronomie und Dienstleistungen. Direkt angrenzend lockt das Niendorfer Gehege als großes Naherholungsgebiet.
Die Anbindung ist hervorragend:
U-Bahn-Station Niendorf Markt (U2) und Busbahnhof am Tibarg
Innenstadt in ca. 16 Minuten erreichbar
Sehr gute Autobahnanbindung
Schulen und Kindergärten in unmittelbarer Nähe
Nur wenige Minuten von der Immobilie entfernt laden ein idyllischer Wanderweg und der Burgundersee zu Spaziergängen, Naturerlebnissen und Freizeitaktivitäten ein.
Infrastruktur im Umkreis von 5 km:
Apotheke, Lebensmittelmärkte, Ärzte, Kindergärten, sämtliche Schulformen sowie öffentliche Verkehrsmittel.
Sonstige Angaben
Besonderheiten
Das Obergeschoss ist bereits für die Einrichtung einer Einliegerwohnung vorbereitet – Wasseranschlüsse sind vorhanden und ermöglichen flexible Nutzungsmöglichkeiten.
Der Garten ist ein echtes Highlight: liebevoll angelegt, üppig bepflanzt und perfekt gepflegt. Ein eigener Brunnen sorgt für die Bewässerung und macht die Gartenpflege auch in den Sommermonaten unkompliziert. Hier entsteht ein Rückzugsort, der Erholung und Entspannung bietet – sei es beim Spielen der Kinder, beim Gärtnern oder auf der großen Sonnenterrasse.
Ein Glasfaseranschluss garantiert stabiles, schnelles Internet – optimal für Homeoffice und digitale Anwendungen. Die Doppelgarage bietet zudem Spielraum für alternative Nutzungen, ob als Hobbyraum, Fitnessbereich oder Werkstatt.
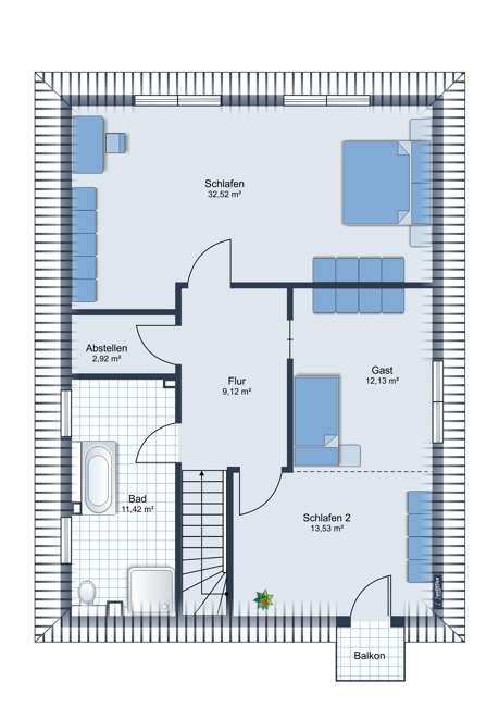
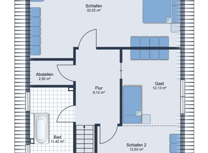
Grundriss
Grundriss EG
>
>
Grundriss DG
>
>
Adresse
22453 Hamburg
Interessante Orte
Preis- und Lageinformationen
Preistrend für Bestandsimmobilien in Niendorf