Exklusive Stadtvilla in einer Verblendsteinavriante (verklinkert) als freistehendes Einfamilienhaus in gehobener Ausstattung als KfW-Effizienzhaus 40 (FÖRDERFÄHIG).
Perfekt für Ihre Familie. Gebaut in norddeutscher Art und Tradition....Massiv Stein auf Stein.
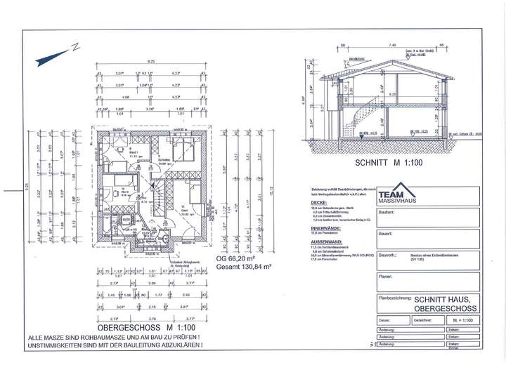
Hier erwarten Sie ca. 130,84m² Wohnfläche auf 2 Etagen mit folgender Aufteilung
im EG:
-- WOHNEN/ESSEN --
-- KÜCHE --
-- HWR/TECHNIKRAUM --
-- GÄSTE-WC --
-- FLUR/DIELE --
im OG:
-- KIND 1 --
-- KIND 2 --
-- SCHLAFEN --
-- GAST/ARBEITEN --
-- VOLLBAD --
-- FLUR --
Wohntraum du kannst loslegen und Sie sind dabei.
Selbstverständlich haben Sie bei uns eine kostenlose und freie Grundrisswahl. Denn diese Neubauofferte stellt lediglich einen Bebauungsvorschlag dar.
Exklusive Stadtvilla als geplanter Neubau im schönen Wellingsbüttel mit TEAM-Massivhaus
22391 Hamburg
Die vollständige Adresse der Immobilie erhalten Sie vom Anbieter.
Auf Karte anzeigen
Die vollständige Adresse der Immobilie erhalten Sie vom Anbieter.
Finanzierungszertifikat
In nur zwei Minuten zu Ihrem persönlichen Finanzierungszertifkat.
Infos
| Haustyp | Einfamilienhaus |
|---|---|
| Etagenzahl | 2 |
| Wohnfläche ca. | 130 m2 |
| Nutzfläche | 136,1 m2 |
| Grundstücksfläche | 642 m2 |
| Zimmer | 5 |
| Schlafzimmer | 4 |
| Badezimmer | 1 |
Kosten
| Kaufpreis |
986.000 € |
|---|---|
| Provision |
23.693,-€ 3,57% Maklercourtage allein auf den Kaufpreis Baugrundstück (649.000,-€). Nicht auf den geplanten Neubau! |
Finanzierungsrechner:
Kaufpreis:
600.000 €
Eigenkapital:
600.000 €
Monatliche Rate
0 €
Effektiver Jahreszins
0 %
Sollzinsbindung
10 Jahre
Bausubstanz & Energieausweis
| Baujahr | 2026 |
|---|---|
| Bauphase | Haus in Planung (projektiert) |
| Objektzustand | Nach Vereinbarung |
| Qualität der Austattung | Gehoben |
| Heizungsart | Wärmepumpe |
| Wesentliche Energieträger | expose.parameter.energySourcesEnev2014.HEAT_SUPPLY |
Beschreibung des Objekts
Ausstattung
Bei TEAM-Massivhaus sind wir in den malerischen Landschaften Schleswig-Holsteins sowie im urbanen Raum Hamburgs aktiv, um individuelle Wohnträume zu erfüllen.
Diese beiden Regionen bieten eine einzigartige Mischung aus natürlicher Schönheit und städtischem Leben, was sie zu idealen Standorten für Ihr zukünftiges Zuhause macht.
TEAM-Massivhaus steht bereit Ihr persönliches und individuelles Bauvorhaben mit höchster Qualität und persönlicher BEratung zu realisieren.
Eine sehr schicke, individuelle Stadtvilla in gehobener Ausstattung.
Nachfolgend finden Sie ein paar Ausstattungsdetails welche in diesem Angebot bereits INKLUSIERT sind:
1. Erhöhte Dämmung unter der
Fundamentsohle, in der Außenwand
sowie in der Sparrenlage zwischen
OG und Spitzboden.
2. Luft-Wasserwärmepumpe Marke Bosch
für die Beheizung und die Brauch-
wassererwärmung in Ihrem neuen Haus.
3. Fußbodenheizung im gesamten Haus
mit Einzelraumsteuerung
4. Eine zentrale Wohnraumbelüftungs-
anlage mit kontrollierter Wärmerück-
gewinnung.
5. Elektrisch bedienbaren Rollläden im
gesamten Erdgeschoss
6. Individuelle Fensterausstattung mit
viel Belichtung im gesamten Haus.
7. Einem vorgezogenen Erker im OG,
ca. 3,60m Breite x 1,00m Vorsprungstiefe
sowie ein pberdachter Eingangsbereich
im EG auf verzinkten Rundstahlstützen
8. Eingemauerte Giebelzierbänder zur
Individualisierung Ihres Eigenheimes
9. Eingeflieste Dusche mit Edelstahlrinne
und Echtglas Pendeltür im BAD/OG
10. Eine 1/2-gewendelte Betontreppe vom
EG in das OG sowie ein sich darunter
befindlicher und geschlossener
zusätzlicher Abstellraum.
Lage
TOP-Baugrundstück in begehrter Lage von Wellingsbüttel!!
Das Grundstück liegt in einer der beliebtesten und ruhigsten Wohnstraßen
des Stadtteils Wellingsbüttel.
Die Umgebung ist geprägt von gepflegten
Einfamilienhäusern, alten Baumbeständen
und einem harmonischen, durchgrünten
Erscheinungsbild.
Sonstige Angaben
Überzeugende Vorteile für ein TEAM-Massivhaus:
1. Individuelle und Top-Beratung durch
Ihren persönlichen Ansprechpartner.
2. Ständige Erreichbarkeit für all Ihre
Fragen und Wünsche.
3. Jedes Bauvorhaben beginnt mit Vision.
Unsere Experten setzen sich mit Ihnen
zusammen, um Ihre Träume und
Wünsche in mapgeschneiderte
Baupläne zu übersetzen.
4. Massivbauweise STEIN auf STEIN
Wir bauen Langlebigkeit und Qualität.
Unsere Massivbauweise garantiert
Stabilität, hervorragende Dämmwerte
und eine nachhaltige Bauweise die Ihr
Zuhause für die Zukunft rüstet.
5. Schlüsselfertige Häuser
Von der ersten Skizze bis zum Einzug
kümmern wir uns darum. Unsere
schlüsselfertigen Lösungen bieten
Ihnen ein sorgenfreies Bauvorhaben,
bei dem Sie entspannt dem Tag der
Schlüsselübergabe entgegensehen
können.
6. Alles aus einer Hand
Vergesse nSie die Koordination
zahlreicher Dienstleister. Bei unserhalten
Sie alle Leistungen aus einer Hand, was
den Bauprozess nicht nur effizienter,
sondern auch transparenter macht.
7. FESTPREISGARANTIE
Überraschungen bei den Kosten????
Nicht mit uns!!!!
Unsere Festpreisgarantie gibt Ihnen
die finanzielle Sicherheit und Planbarkeit
von Beginn an.
Weitere Dokumente
Hausbaukatalog TEAM-MassivhausAllgemeine Baubeschreibung_TEA
STANDARD-Haustürenkatalog_TEAM
Visitenkarte Stefan Martensen
Grundriss
Grundrissplanung EG
>
>
Grundrissplanung OG
>
>
Grundrissbeispiel EG_Katalogab
>
>
Grundrissbeispiel OG_Katalogab
>
>
Adresse
22391 Hamburg
Interessante Orte
Preis- und Lageinformationen
Preistrend für Bestandsimmobilien in Wellingsbüttel