Überzeugendes Raumangebot und helles Wohlfühlwohnen
"Die Grundrisse können problemlos verändert werden."
Bodentiefe Verglasungen lassen viel Licht in das Einfamilienhaus LifeStyle 18.07 S und machen das selbstbestimmte Wohnen auf den großflächigen Wohnebenen noch schöner. Weitere Schmuckstücke des Hauses sind der offene, über Eck angelegte Wohn-, Ess- und Küchenbereich oder der gerade Treppenaufgang, der raumsparend zu den großzügigen Zimmern im Dachgeschoss hinaufführt. Die schlichte und dennoch ausdrucksstarke Außenansicht sowie ein klassisches Satteldach prägen den wesentlichen Stil des Hauses.
Ich freue mich auf Ihren Anruf 01752368205! Ihr Traumhaus wartet!
63329 Egelsbach
Die vollständige Adresse der Immobilie erhalten Sie vom Anbieter.
Auf Karte anzeigen
Die vollständige Adresse der Immobilie erhalten Sie vom Anbieter.
Finanzierungszertifikat
In nur zwei Minuten zu Ihrem persönlichen Finanzierungszertifkat.
Infos
| Haustyp | Einfamilienhaus |
|---|---|
| Etagenzahl | 2 |
| Wohnfläche ca. | 172 m2 |
| Nutzfläche | 14 m2 |
| Grundstücksfläche | 500 m2 |
| Zimmer | 8 |
| Schlafzimmer | 4 |
| Badezimmer | 2 |
Kosten
| Kaufpreis |
1.132.952 € |
|---|---|
| Provision | Nein |
Finanzierungsrechner:
Kaufpreis:
600.000 €
Eigenkapital:
600.000 €
Monatliche Rate
0 €
Effektiver Jahreszins
0 %
Sollzinsbindung
10 Jahre
Bausubstanz & Energieausweis
| Baujahr | 2025 |
|---|---|
| Bauphase | Haus in Planung (projektiert) |
| Objektzustand | Erstbezug |
| Qualität der Austattung | Gehoben |
Beschreibung des Objekts
Ausstattung
Dieses Haus ist Bezugsfertig/Schlüsselfertig kalkuliert.
* Es fehlt nur noch Ihre gewünschte Außenanlage *
Wir sind bei der Planung äußerst flexibel und unterscheiden uns dadurch stark von unseren Mitbewerbern am Markt.
Unsere Inklusivleistungen:
- Grundstückskosten
- Baunebenkosten (kalkulatorischer Wert)
- inkl. ARCHITEKTENLEISTUNGEN (Genehmigungsplanung und Bauantrag)
- inkl. BODENPLATTE (Keller optional gegen Mehrpreis erhältlich)
- inkl. BAUGRUNDUNTERSUCHUNG/Bodengutachten
- inkl. Pfettendach (verschiedene Dachformen möglich)
- inkl. Dacheindeckung mit selbstreinigende Dachziegel (Nelskamp)
- inkl. Dachrinnen und Fallrohre aus Titan-Zink
- inkl. mineralischer Außenputz (weiß)
- inkl. 3-fach verglaste WÄRMESCHUTZFENSTER (weiß)
- inkl. Aluminium Außenfensterbänke
- inkl. elektrischen Aluminium Rollläden
- inkl. Wohnraumhöhe von 2,75 m serienmäßig
- inkl. EH55-Standard A+ (KFW 40 /40+möglich)
- inkl. zeitgemäßer Luft-Wasser-Wärmepumpe (verschiedene Ausführungen möglich)
- inkl. Elektro-Paket inkl. Installation (deutsche Markenhersteller)
- inkl. kontrollierter Be- und Entlüftungsanlage für gesundes und angenehmes Wohnklima mit 90% Wärmerückgewinnung, inkl. Installation
- inkl. Rohinstallation Sanitär für alle Bäder und für die Küche
- inkl. Blower-Door-Test
- inkl. moderne Vollholztreppe in verschiedenen Farben und Ausführungen möglich
- inkl. 5-fach Versicherungsschutz während der Bauphase
- inkl. Materiallieferung Dämmung und Beplankung sowie Innenausstattung wie z. B. Bodenbeläge, Fliesen, Laminat, Vinyl, Innentüren, Sanitärobjekte, wie Dusche, Waschbecken, Badewanne, Armaturen uvm.
Ich nehme mir Zeit für Sie.
Gemeinsam besprechen wir Ihre Wünsche und Anforderungen. Daraus erstellen ich Ihnen ein detailliertes und individuelles Angebot.
Ich freue mich auf Ihren Anruf...
Lage
Ich bin Ihr Ansprechpartner in der Region.
Wenn Sie mit mir und massa haus bauen möchten, unterstütze ich Sie gerne effektiv und zielführend bei der Suche nach einem passenden Bauplatz.
Dabei berücksichtige ich natürlich die von Ihnen gewünschte Region und Lage.
________________________________________________________________________
Wenn Sie bereits ein Grundstück besitzen, plane ich selbstverständlich auch gerne darauf Ihr passendes Traumhaus.
In einem persönlichem Beratungsgespräch kann ich ihnen ein maßgeschneidertes Angebot erstellen, das genau, Ihren Wünschen und Bedürfnissen entspricht.
Bitte haben Sie Verständnis dafür, dass ich aufgrund der aktuell angespannten Situation am Grundstücksmarkt, vorab keine Adressen von Bauplätzen kommuniziere.
Dieser Service und unser Grundstücksservice erfolgt ausschließlich für meine Kunden.
Anfragen zu Grundstücken werden nicht beantwortet
Egelsbach liegt sehr verkehrsgünstig und verfügt über einen direkten Autobahnanschluss zur A 661. Im nahe gelegenen Gewerbegebiet oder im Ortskern von Egelsbach gibt es Einkaufsmöglichkeiten für den täglichen Bedarf, Restaurants und Cafés. Kindergärten, eine Grundschule und diverse Freizeitmöglichkeiten befinden sich ebenfalls in der Gemeinde.
Von der zentralen Lage im Rhein-Main-Gebiet und der guten Verkehrsanbindung profitiert die Gemeinde. Der S-Bahn Anschluss bietet eine gute Anbindung an Frankfurt und Darmstadt. Der Flughafen Frankfurt ist über die Bundesautobahnen A661 oder A5 mit dem Frankfurter Kreuz in kurzer Zeit zu erreichen.
Sonstige Angaben
massahaus als Partner
Ihre Vorteile!
Fertighaus-Erfahrung seit über 45 Jahren
Individuelle Planung & Beratung durch unsere Hausbauexperten
Energieeffiziente & nachhaltige Bauweise
Nachhaltige Qualität zu einem
Top-Preis-Leistungs-Verhältnis
Zuverlässige Begleitung von der Grundstückssuche bis zum Einzug
Weitere Vorteile:
- über 45 Jahre Bauerfahrung
- 15 Monate Festpreisgarantie
- Bezahlung des Hauses nach Montage / Abnahme
- keine Vorauszahlung
- Montage innerhalb von 2-4 Tagen
- professionelle Ausbauberatung vor Ort
- persönliche Baubetreuung
- 33 Jahre Gewährleistung auf Grundkonstruktion
- Nachweislich gesundes Bauen: TÜV
Siegel "Toxproof"
- Sicherheit von einem deutschen Großunternehmen
- über 40.000 gebaute Häuser "Made in Germany"
Vereinbaren Sie noch heute einen kostenlosen und unverbindlichen Beratungstermin.
Ich freue mich auf Ihren Anruf!
Ihre Verkaufsberaterin
Gabriele Meierhöfer
Mobil: 0175 23 68 205
email: gabriele.meierhoefer@massa-haus.de
* Die hier gezeigten Fotos sind originale Aufnahmen und dienen als Beispiel. Sie stammen aus bereits gebauten massa haus - Musterhäusern. Die Hausansichten sind teilweise mit Sonderausstattungen, die nicht zum Angebot gehören aber gerne geplant werden können.
Wichtiger Hinweis: Die Objektangaben wurden nach bestem Wissen und Gewissen erstellt. Grundlage der vorstehenden Angaben sind Informationen, welche uns seitens Dritter zur Verfügung gestellt worden. Eine Gewähr für die Richtigkeit der Angaben kann daher nicht übernommen werden. Irrtum und Zwischenverkauf vorbehalten.
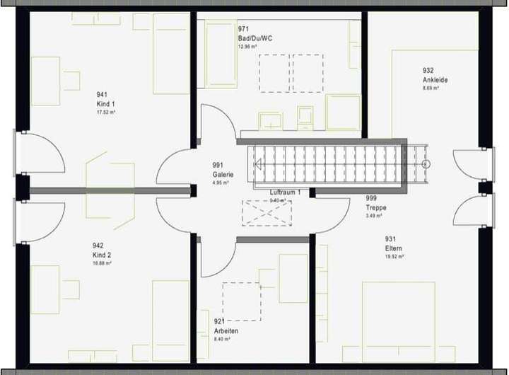
Grundriss
LifeS_18_07_S_EG_01_01
>
>
LifeS_18_07_S_DG_01_01
>
>
Adresse
63329 Egelsbach
Interessante Orte
Preis- und Lageinformationen
Preistrend für Bestandsimmobilien in Egelsbach