Zum Verkauf steht ein attraktives Baugrundstück im ruhigen Ortsteil Wipshausen. Das Grundstück hat eine Größe von ca. 960 m² (ca. 25 x 38,5 Meter) und bietet optimale Voraussetzungen für die Bebauung mit einem Bungalow. Preisbeispiel: Bungalow Schwerin mit Grundstück Das Grundstück muss noch vermessen und geteilt werden. Es ist voll erschlossen, ideal geschnitten und liegt absolut ruhiger Lage.
Attraktiver Bungalow auf großartigem Grundstück
31234 Edemissen
Die vollständige Adresse der Immobilie erhalten Sie vom Anbieter.
Auf Karte anzeigen
Die vollständige Adresse der Immobilie erhalten Sie vom Anbieter.

Finanzierungszertifikat
In nur zwei Minuten zu Ihrem persönlichen Finanzierungszertifkat.
Infos
Haustyp | Einfamilienhaus |
---|---|
Etagenzahl | 1 |
Wohnfläche ca. | 149 m2 |
Grundstücksfläche | 960 m2 |
Bezugsfrei ab | nach fertigstellung |
Zimmer | 4 |
Schlafzimmer | 3 |
Badezimmer | 1 |
Kosten
Kaufpreis |
441.000 € |
---|---|
Provision | Nein |
Finanzierungsrechner:
Kaufpreis:
600.000 €
Eigenkapital:
600.000 €
Monatliche Rate
0 €
Effektiver Jahreszins
0 %
Sollzinsbindung
10 Jahre
Bausubstanz & Energieausweis
Baujahr | 2025 |
---|---|
Bauphase | Haus in Planung (projektiert) |
Objektzustand | Erstbezug |
Qualität der Austattung | Gehoben |
Heizungsart | Wärmepumpe |
Wesentliche Energieträger | Umweltwärme |
Energieausweis | liegt zur Besichtigung vor |
Beschreibung des Objekts
Ausstattung
• Haus inkl. zertifizierte Bodenplatte • Frostschürze und komplette Erdarbeiten • massive Aussenwände • Walmdach, Dachneigung 25° • überdachte Terrasse ca. 9m² • hochisolierende Porotonsteine von Wienerberger • Wärmedämmfassade in 2-farbiger Edelputzausführung • Manufakta Haustür mit Sicherheits- verriegelung u. Edelstahltürgriff • hochwertige, farbige 5 Sterne Brömse- Fenster • elektrische Rollläden • Luft-Wasser-Wärmepumpe • Fußbodenheizung im gesamten EG • hochwertige Marken-Sanitärartikel der Vigour Designserie z. B. spülrandlose WC´s, bodengleiche Dusche, Badewanne • Fliesen im Wert von 55,- EUR • Bodenfliesen im Bad, WC und Diele • CPL-beschichtete 2,11m Innentüren • reichhaltige Elektroausstattung • Vorbereitung für E-Mobilität • Vorbereitung Photovoltaik etc. Schlüsselfertige Herstellung ohne Maler- und Teppicharbeiten gem. Baubeschreibung
Lage
Wipshausen ist ein idyllischer Ortsteil der Gemeinde Edemissen im Landkreis Peine. Die ruhige Wohnlage überzeugt durch ihre familienfreundliche Umgebung und eine gute Anbindung an die Städte Peine, Braunschweig und Hannover. Einkaufsmöglichkeiten, Kindergarten und Grundschule sind in wenigen Minuten erreichbar.
Sonstige Angaben
Die Preise verstehen zzgl. Erwerbsnebenkosten (Notar/ Grunderwerbssteuer). Kosten für eine eventl. auf dem jeweiligen Grundstück notwendige Geländemodellierung. Auch eine Individualisierung Ihres Hauses ist möglich. Ein individuelles Angebot nach Ihren Wünschen erstellt Ihnen: Ihr FIBAV Team Braunschweig Petra Füger & Gerd Feddersen Immobilienverkäufer Kontaktdaten: E-Mail: team_braunschweig@gs.fibav.de Petra Füger 0176 / 728 742 55 Gerd Feddersen 0177 / 373 72 32 FIBAV Immobilien GmbH Baumschulenweg 2a 38104 Braunschweig Hinweise Die im Exposé enthaltenen Angaben beruhen auf Informationen des Eigentümers. Für die Richtigkeit und Vollständigkeit übernehmen wir keine Gewähr. Zwischenverkauf und Irrtümer bleiben vorbehalten. Haben Sie eine Immobilie zu verkaufen? Wir haben die Käufer dafür.
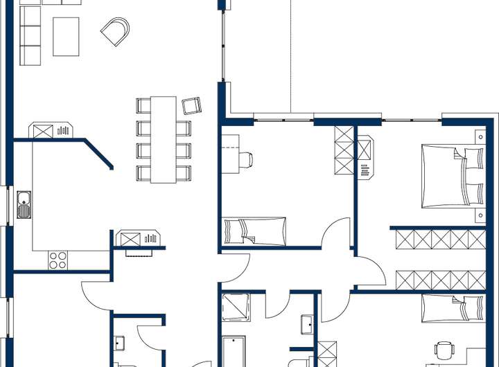
Grundriss
Schwerin
>

Bernburg
>

Grundriss Ahlum
>

Grundriss-Warberg
>

Adresse
31234 Edemissen
Interessante Orte
Preis- und Lageinformationen
Preistrend für Bestandsimmobilien in Edemissen