Dieses außergewöhnlich gepflegte Einfamilienhaus aus dem Jahr 1936 verbindet stilvolle Altbauarchitektur mit großzügigem Wohnkomfort und liegt in begehrter und ruhiger Lage von Groß Flottbek. Auf einem ca. 510 m² großen Grundstück bietet das Haus eine Wohnfläche von rund 197 m². Es wurde im Zuge einer umfassenden Sanierung zwischen 1985 und 1988 in seiner Grundsubstanz modernisiert sowie um einen geschmackvollen Erweiterungsbau ergänzt.
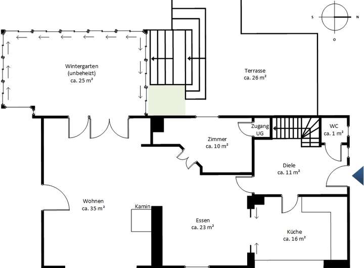
Besonders eindrucksvoll ist der zur Westseite ausgerichtete Wintergarten (Glaspavillon) mit vollständig verschiebbaren Glaswänden, einer integrierten Unterglasmarkise und direktem Zugang zur großzügigen Sonnenterrasse – ein fließender Übergang zwischen Innen- und Außenraum, ideal für entspannte Nachmittage und Abende.
Das Haus wurde laufend in Stand gehalten und befindet sich in einem sehr gepflegten Zustand. Die Küche präsentiert sich sehr gepflegt im Landhausstil mit optimaler Aufteilung. Erwähnenswert sind die erhöhte Arbeitsfläche, die hochwertigen Miele- sowie Liebherr-Geräte und die großzügige Induktions-Herdplatte. Die Bäder sind funktional, bieten jedoch Potenzial für individuelle Modernisierungen, um dem Haus eine noch persönlichere Note zu verleihen. Diese eindrucksvolle Immobile ist vollunterkellert und bietet Ihnen im Obergeschoss drei geräumige Schlafzimmer.
Diese Immobilie überzeugt durch eine durchdachte und großzügige Raumaufteilung auf zwei Wohnebenen sowie durch ein vollunterkellertes Geschoss, das zusätzlichen Raum und vielfältigen Nutzwert bietet.
Im Erdgeschoss empfängt Sie eine helle, einladende Diele, die genügend Platz für eine Garderobe bietet und den ersten Eindruck von Großzügigkeit vermittelt. Hier befindet sich auch ein modernes Gäste-WC. Von dort gelangt man entweder in die Küche oder direkt in den offenen Ess- und Wohnbereich. Die großzügige Küche im eleganten Landhausstil lässt sich bei Bedarf durch eine Schiebetür vom Essbereich trennen und überzeugt durch eine optimale Aufteilung, eine erhöhte Arbeitsfläche, hochwertige Miele- und Liebherr-Geräte sowie durch eine großzügige Induktions-Herdplatte. Das gesamte Erdgeschoss profitiert von einer Deckenhöhe von 2,65 m (im abgehängten Zustand), die den Räumen eine besondere Weite verleiht. Im Wohnbereich sorgt ein Kamin für wohlige Wärme und eine behagliche Atmosphäre. Ergänzt wird das Erdgeschoss durch einen ruhig gelegenen Arbeitsbereich, der sich hervorragend als Homeoffice oder als Gästezimmer eignet.
Im Obergeschoss erwartet Sie das eindrucksvolle Hauptschlafzimmer mit ca. 28 m² Fläche. Eine Klimaanlage bietet zusätzlichen Komfort. Zwei weitere Zimmer mit ca. 18 m² und ca. 10 m² eröffnen vielseitige Nutzungsmöglichkeiten – ob als Kinder-, Gäste- oder Ankleidezimmer. Ein helles Vollbad mit Badewanne und separater Dusche rundet diese Etage harmonisch ab.
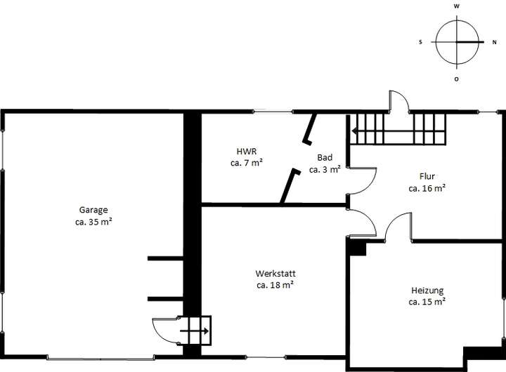
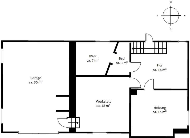
Das Haus ist vollständig unterkellert und bietet neben reichlich Abstellfläche eine praktische Waschküche sowie weitere Räume, die sich ideal als Hobbykeller, Werkstatt oder Lagerfläche nutzen lassen. Zudem besteht hier die Möglichkeit, einen stilvollen Weinkeller einzurichten. Ergänzt wird das Untergeschoss durch ein zusätzliches Duschbad, das den Nutzwert des Hauses noch einmal deutlich erweitert.
Die Außenanlage wurde von einem Garten- und Landschaftsbauer mit viel Liebe zum Detail entworfen und hochwertig angelegt. Der repräsentative Vorgarten zur Straßenseite verstärkt den gepflegten Gesamteindruck, während die nach Westen ausgerichtete Sonnenterrasse viel Raum für erholsame Stunden und geselliges Beisammensein bietet.
Die Immobilie liegt im Gebiet der städtebaulichen Erhaltungsverordnung. Eine Dichtheitsprüfung der Abwasserleitungen wurde bereits durchgeführt.
Stilvoll wohnen in Groß Flottbek - Ihr neues Zuhause mit Klasse
22607 Hamburg
Die vollständige Adresse der Immobilie erhalten Sie vom Anbieter.
Auf Karte anzeigen
Die vollständige Adresse der Immobilie erhalten Sie vom Anbieter.
Finanzierungszertifikat
In nur zwei Minuten zu Ihrem persönlichen Finanzierungszertifkat.
Infos
| Haustyp | Einfamilienhaus |
|---|---|
| Wohnfläche ca. | 197 m2 |
| Nutzfläche | 184 m2 |
| Grundstücksfläche | 510 m2 |
| Zimmer | 5,5 |
| Schlafzimmer | 4 |
| Badezimmer | 2 |
| Anzahl Garage/Stellplatz | 1 |
Kosten
| Kaufpreis |
1.890.000 € |
|---|---|
| Provision |
3,57 % inkl. 19 % MwSt. Der Vertrieb dieser Immobilie erfolgt in Zusammenarbeit mit der Firma Wullkopf & Eckelmann Immobilien GmbH & Co. KG im Rahmen eines Gemeinschaftsgeschäfts. Bei wirksamem Abschluss eines notariellen Kaufvertrages ist eine Maklercourtage in Höhe von 3,57 % inkl. 19 % ges. MwSt., bezogen auf den vereinbarten Kaufpreis, verdient und fällig und vom Käufer an die Firma MEISSLER & CO zu zahlen, die hierdurch einen unmittelbaren Zahlungsanspruch gegenüber dem Käufer erhält. Die Grunderwerbsteuer sowie die Notar- und Gerichtskosten sind vom Käufer zu tragen. Alle Angaben über diese Immobilie beruhen auf Informationen, die uns der Auftraggeber zur Verfügung gestellt hat. Für die Richtigkeit, Aktualität und Vollständigkeit dieser Angaben übernehmen wir keine Gewähr. Irrtum und Zwischenverkauf vorbehalten. |
Finanzierungsrechner:
Kaufpreis:
600.000 €
Eigenkapital:
600.000 €
Monatliche Rate
0 €
Effektiver Jahreszins
0 %
Sollzinsbindung
10 Jahre
Bausubstanz & Energieausweis
| Baujahr | 1936 |
|---|---|
| Objektzustand | Gepflegt |
| Wesentliche Energieträger | Erdgas schwer |
| Energieausweis | liegt vor |
| Energieausweistyp | Verbrauchsausweis |
| Energieverbrauchskennwert | 126,1 kWh/(m²*a) |
| Energieeffizienzklasse | D |
126,1
kWh/(m²*a)
Energieeffizienzklasse D
- A+
- A
- B
- C
- D
- E
- F
- G
- H
- 0
- 25
- 50
- 75
- 100
- 125
- 150
- 175
- 200
- 225
- >250
Beschreibung des Objekts
Lage
Diese besondere Immobilie liegt in einer der begehrtesten Adressen Hamburgs, im charmanten Stadtteil Groß Flottbek. Das Viertel ist geprägt von seiner historisch gewachsenen Villenbebauung, grünen Straßen und von der unmittelbaren Nähe zur Elbe. Hier verbindet sich ein gehobenes repräsentatives Wohnumfeld mit einer hohen Lebensqualität für Familien.
Der beliebte Flottbeker Markt, exklusive Boutiquen sowie vielfältige Einkaufsmöglichkeiten, Arztpraxen und Banken sind in der renommierten Waitzstraße oder im nahegelegenen Elbe-Einkaufszentrum schnell erreichbar. Kindergärten, Grund- und weiterführende Schulen sowie die Internationale Schule befinden sich in unmittelbarer Umgebung und unterstreichen die Familienfreundlichkeit dieser Lage.
Die Anbindung ist ideal: Die S-Bahn-Station Othmarschen sowie mehrere Buslinien sind in wenigen Gehminuten erreichbar und ermöglichen eine schnelle Verbindung in die Hamburger Innenstadt. Über die nahe gelegene A7 gelangen Sie in nur ca. 25 Minuten zum Hamburger Flughafen.
Insgesamt biete diese Lage ein sehr ausgewogenes Verhältnis zwischen Ruhe, Wohnkomfort und städtische Nähe. Perfekt für Menschen, die einen stilvollen Rückzugsort mit bester Anbindung und hoher Lebensqualität suchen.
Sonstige Angaben
MEISSLER & CO gehört zu den größten, inhabergeführten Immobilienunternehmen Hamburgs für die Vermittlung hochwertiger Wohnimmobilien in den Elbvororten, an der Alster sowie in der HafenCity.
In den vier Hamburger Standorten:
Büro Blankenese | Blankeneser Bahnhofstr. 8 | 22587 Hamburg
Büro Nienstedten | Nienstedtener Markplatz 29 | 22609 Hamburg
Büro Othmarschen | Waitzstr. 5 | 22607 Hamburg
Büro Ottensen – Alster| Klopstockstr. 31 | 22765 Hamburg
bietet MEISSLER & CO hohe Kompetenz in der Bewertung und der Vermarktung erstklassiger Wohnimmobilien.
Wir freuen uns auf Ihre Kontaktaufnahme für die Abstimmung eines Beratungstermins:
Tel.: 040 86 44 44 | E-Mail: info@meissler-co.de
Adresse
22607 Hamburg
Interessante Orte
Preis- und Lageinformationen
Preistrend für Bestandsimmobilien in Groß Flottbek