Bei dem dreistöckigen Reihenhaus handelt es sich um einen Erstbezug in eine ansprechende Immobilie, die durch eine gehobene Innenausstattung besticht und ab sofort zum Verkauf steht. Zu der Immobilie zählt neben fünf einladenden Zimmern auch ein separates Gäste-WC. Das Haus wurde 2026 erbaut und wird per Wärmepumpe beheizt. Durch den Auto-Stellplatz, der sich direkt am Haus befindet, können Sie Ihre Wocheneinkäufe entspannt nach Hause tragen. Ebenfalls komfortabel ist der Kellerraum, der Stauraum für Ihr Hab und Gut bietet. Besonders toll ist die großzügige Grundstücksgröße von 212 Quadratmetern, die Ihnen im Sommer zu einem regelrechten Outdoor-Zimmer werden kann. Das gesamte Grundstück inklusive Haus mit geschätzten Innenausbaukosten und Erdaushub wird zu einem Preis von ca. 978.000 Euro geschätzt.
Domizil an der Leuchte
60388 Frankfurt am Main
Die vollständige Adresse der Immobilie erhalten Sie vom Anbieter.
Auf Karte anzeigen
Die vollständige Adresse der Immobilie erhalten Sie vom Anbieter.
Finanzierungszertifikat
In nur zwei Minuten zu Ihrem persönlichen Finanzierungszertifkat.
Infos
| Haustyp | Reihenmittelhaus |
|---|---|
| Etagenzahl | 3 |
| Wohnfläche ca. | 165 m2 |
| Nutzfläche | 55 m2 |
| Grundstücksfläche | 212 m2 |
| Bezugsfrei ab | sofort |
| Zimmer | 5 |
| Schlafzimmer | 2 |
| Badezimmer | 1 |
| Garage/Stellplatz | Außenstellplatz |
| Anzahl Garage/Stellplatz | 1 |
Kosten
| Kaufpreis |
720.000 € |
|---|---|
| Provision |
5,95% incl. MWSt. Provision nur auf Grundstück fällig. |
Finanzierungsrechner:
Kaufpreis:
600.000 €
Eigenkapital:
600.000 €
Monatliche Rate
0 €
Effektiver Jahreszins
0 %
Sollzinsbindung
10 Jahre
Bausubstanz & Energieausweis
| Baujahr | 2026 |
|---|---|
| Bauphase | Haus in Planung (projektiert) |
| Objektzustand | Erstbezug |
| Qualität der Austattung | Gehoben |
| Heizungsart | Wärmepumpe |
| Wesentliche Energieträger | Solarheizung |
| Energieausweis | liegt zur Besichtigung vor |
Beschreibung des Objekts
Ausstattung
Bei dem angebotenen Haus handelt es sich um ein Ausbauhaus der Fa. Ideal Heimbau GmbH, welches in Fertigbauweise mit Blähbeton hergestellt und geliefert wird. Das Angebot beinhaltet die Kosten für 2 Vollgeschosse + ein Staffelgeschoß und ein Kellergeschoß mit den geschätzten Innenausbaukosten + Photovoltaikanlage und Luftwasserwärmepumpe, sowie dem Grundstück. Die Gewerke Elektro, Heizungsbau und Trockenbau, sowie Erdaushub für Keller sind mit eingerechnet., jedoch nicht mit im Lieferumfang enthalten. Die Hauskosten lt. Lieferumfang belaufen sich auf ca. 378.000,- Euro incl. Keller.
Lage
Das projektierte Reihenmittelhaus wird errichtet auf einem excellent geschnittenen Baugrundstück mit Südausrichtung und
liegt im Frankfurter Stadtteil Bergen- Enkheim. Ruhig gelegen im
Grünen vor dem Taunus unterhalb von Bad-Vilbel und Bad
Homburg, zugehörig zur
Rhein-Main Metropole Frankfurt.
Park und Schwimmbad (Freibad und Hallenbad) befinden sich in
nächster Umgebung. Schule, Kindergarten,
Einkaufsmöglichkeiten in unmittelbarer Nachbarschaft, sowie
Hessencenter, S-Bahn, U-Bahn Anschluss in der Nähe.
Sonstige Angaben
Der Grundstückspreis beträgt 338.000,- Euro.
Grundriss
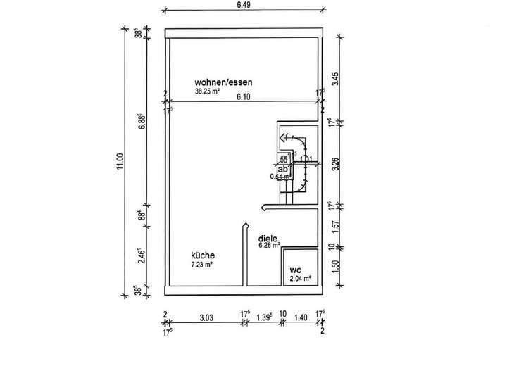
Grundriss Erdgeschoss
>
>
Grundriss Obergeschoss
>
>
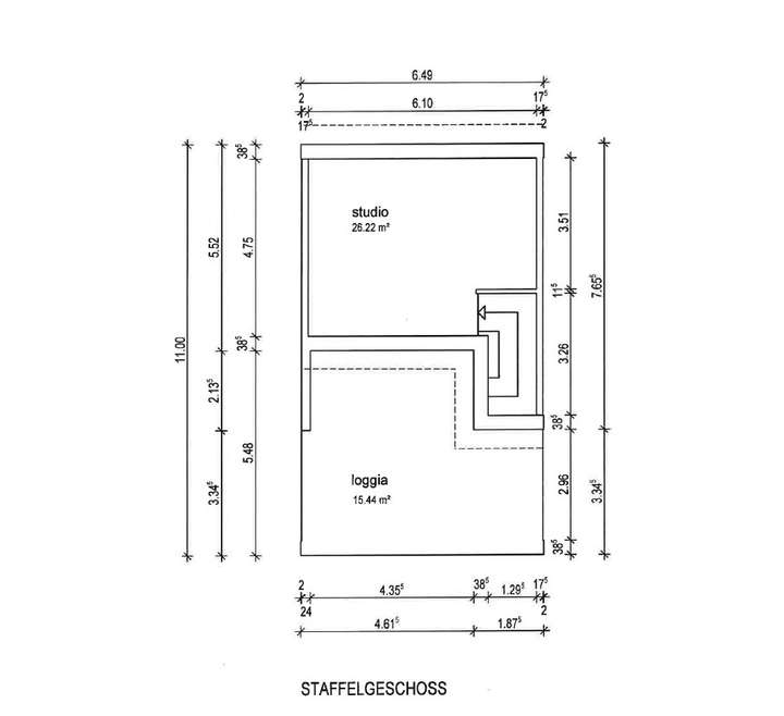
Grundriss Staffelgeschoss
>
>
Grundriss Kellergeschoss
>
>
Adresse
60388 Frankfurt am Main
Interessante Orte
Preis- und Lageinformationen
Preistrend für Bestandsimmobilien in Bergen-Enkheim