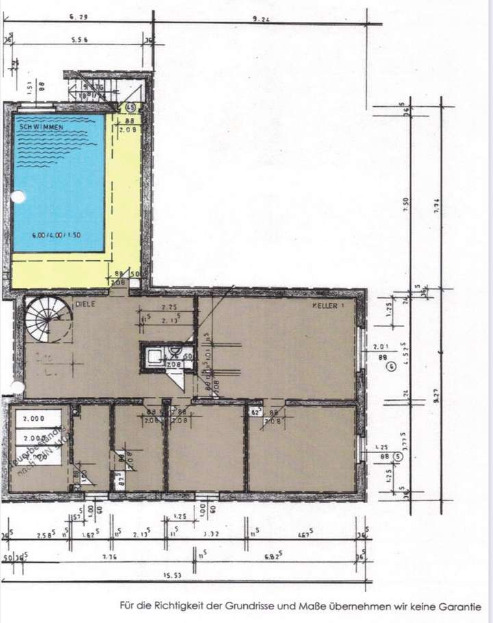
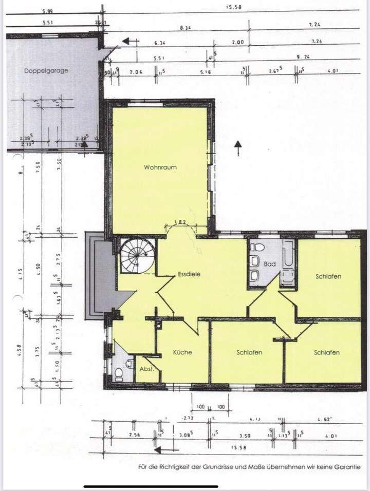
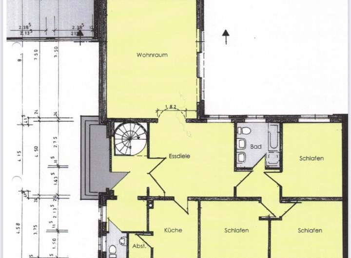
Exklusiver Bungalow mit Whirlpool, Kamin und großzügiger Tropenholz-Terrasse – Wohnen auf einer Ebene mit Stil! Willkommen in Ihrem neuen Zuhause! Dieser moderne und hochwertig ausgestattete Bungalow überzeugt durch eine gelungene Kombination aus Komfort, Design und Wohnqualität. Auf einer Wohnfläche von ca. 150 m² und einem Grundstück von 774 m² erwartet Sie ein echtes Wohlfühlambiente – ideal für alle, die das Leben auf einer Ebene mit Echtholz Parkett genießen möchten. Highlights der Immobilie: Großzügige Wohnfläche (ca. 150 m²) mit durchdachter Raumaufteilung Weitläufiger, lichtdurchfluteter Wohn- und Essbereich mit zwei direkten Zugängen zur Terrasse Moderner Kamin im Wohnzimmer – sorgt für wohlige Wärme und eine behagliche Atmosphäre in der kalten Jahreszeit Luxuriöser Whirlpool (Jacuzzi) – perfekt zum Entspannen und Abschalten Exklusive 90 m² große Terrasse aus hochwertigem Tropenholz – ideal für gesellige Abende und sonnige Stunden im Freien Pflegeleicht angelegter Garten mit viel Grün und Privatsphäre Moderne echtholz Einbauküche mit hochwertigen Geräten Große Fensterfronten sorgen für helle, freundliche Räume und einen schönen Ausblick auf Terrasse und Garten Der großzügige Keller bietet dank einer Deckenhöhe von ca. 2,30 m ein hervorragendes Raumgefühl und vielfältige Nutzungsmöglichkeiten. Er ist nicht nur funktional, sondern auch wohnlich gestaltet und umfasst: Gäste-WC sowie Hochwertige Materialien und Ausstattung in allen Bereichen Grundstück & Außenbereich: Das 774 m² große Grundstück bietet Ihnen ausreichend Platz zum Entspannen, Gärtnern oder Feiern mit Familie und Freunden. Der liebevoll gepflegte Garten fügt sich harmonisch in die Umgebung ein und rundet das Gesamtbild dieses außergewöhnlichen Bungalows ab. Fazit: Dieser Bungalow ist ein wahres Schmuckstück für alle, die modernen Wohnkomfort, stilvolles Design und eine ruhige Lage zu schätzen wissen. Einziehen, wohlfühlen und genießen – hier wird jeder Tag zum kleinen Urlaub!
Stilvoller Bungalow mit hochwertiger Ausstattung
38179 Schwülper
Die vollständige Adresse der Immobilie erhalten Sie vom Anbieter.
Auf Karte anzeigen
Die vollständige Adresse der Immobilie erhalten Sie vom Anbieter.

Finanzierungszertifikat
In nur zwei Minuten zu Ihrem persönlichen Finanzierungszertifkat.
Infos
Haustyp | Einfamilienhaus |
---|---|
Etagenzahl | 1 |
Wohnfläche ca. | 150 m2 |
Nutzfläche | 150 m2 |
Grundstücksfläche | 774 m2 |
Bezugsfrei ab | 1.12.2025 |
Zimmer | 4 |
Schlafzimmer | 3 |
Badezimmer | 2 |
Garage/Stellplatz | Garage |
Anzahl Garage/Stellplatz | 1 |
Kosten
Kaufpreis |
410.000 € |
---|---|
Provision |
3 % Der Käufer verpflichtet sich, an den Makler eine Provision in Höhe von 3 % des Kaufpreises zu zahlen. Gemäß § 19 UStG wird aufgrund der Kleinunternehmerregelung keine Umsatzsteuer erhoben. |
Finanzierungsrechner:
Kaufpreis:
600.000 €
Eigenkapital:
600.000 €
Monatliche Rate
0 €
Effektiver Jahreszins
0 %
Sollzinsbindung
10 Jahre
Bausubstanz & Energieausweis
Baujahr | 1979 |
---|---|
Letzte Sanierung | 2014 |
Objektzustand | Gepflegt |
Qualität der Austattung | Gehoben |
Heizungsart | Gas-Heizung |
Wesentliche Energieträger | Gas |
Energieausweis | liegt vor |
Beschreibung des Objekts
Lage
Lagebeschreibung – Lagesbüttel Die angebotene Immobilie befindet sich im Ortsteil Lagesbüttel, der zur Gemeinde Schwülper gehört (Landkreis Gifhorn, Niedersachsen). Allgemeines Umfeld Lagesbüttel zählt etwa 1.300 Einwohner und bietet damit eine sehr angenehme, überschaubare Dorfgemeinschaft mit viel Ruhe und Wohnqualität. Das Dorf liegt etwa 1 km östlich von Groß Schwülper und grenzt nördlich an den Ortsteil Harxbüttel, der zur Stadt Braunschweig gehört. Infrastruktur & Versorgung Schulen, Kindergarten bzw. Krippe sind im Ort vorhanden bzw. in Svhwülper erreichbar. Sport- und Freizeitangebote: Es gibt eine Sportgemeinschaft mit verschiedenen Sparten, einen Sportplatz und eine Sporthalle. Für den Alltag: Einkaufsmöglichkeiten und Dienstleistungen finden sich in Groß Schwülper sowie in den umliegenden Stadtgebieten. Braunschweig ist in relativer Nähe. Verkehr & Anbindung Öffentlicher Nahverkehr: Es bestehen Busverbindungen nach Braunschweig sowie in die Nachbarorte – z. B. mit der Linie 434.
Sonstige Angaben
Sanierung 2014 • 2 Fach verglaste ALU Fenster • Terrasse aus Tropenholz • Fußboden besteht aus Französischem Echtholzparkett • Echtholz Küche von 2020 • Kamin • Whirlpool • Gas-Zentralheizung Dezember 2023 • Entkalkungsanlage • Neuanlage des Gartens geschah im Jahr 2018
Weitere Dokumente
2025_10_07_EnergieausweisGrundriss
IMG_0380
>

IMG_0381
>

Adresse
38179 Schwülper
Interessante Orte
Preis- und Lageinformationen
Preistrend für Bestandsimmobilien in Schwülper