Dieses gepflegte Zweifamilienhaus überzeugt durch seine vielseitige Nutzungsmöglichkeit, zeitloser Ausstattung und eine ruhige Wohnlage. Mit ca. 211 m² Wohnfläche auf einem 824 m² großen Grundstück bietet es sowohl großen Familien als auch Raumliebhabern ein komfortables Zuhause oder die ideale Kombination aus Eigennutzung und Vermietung.
Das Erdgeschoss des Hauses wurde in den vergangenen Jahren kontinuierlich modernisiert und präsentiert sich in einem zeitgemäßen, sehr gepflegten Zustand. Bereits 2008 wurde die Küche erneuert. Im Jahr 2016 folgte die umfassende Badsanierung. Zwischen 2018 und 2019 wurden alle Fenster im Erdgeschoss ausgetauscht.
2021 wurden weitere bedeutende Maßnahmen umgesetzt: die Haustür sowie sämtliche Innentüren wurden erneuert, ebenso die Dachrinnen und Dachüberstände. Zeitgleich wurden Maler- und Bodenarbeiten durchgeführt und zuletzt 2024 das Garagentor ersetzt.
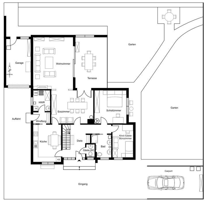
Der liebevoll angelegte Garten mit Süd-Ost-Ausrichtung mit mehreren Sitzgelegenheiten und einer einladenden Terrasse lädt zum Entspannen und Verweilen ein. Eine Garage sowie ein frei stehender Carport bieten komfortable Parkmöglichkeiten.
Die Immobilie teilt sich wie folgt auf:
Erdgeschoss:
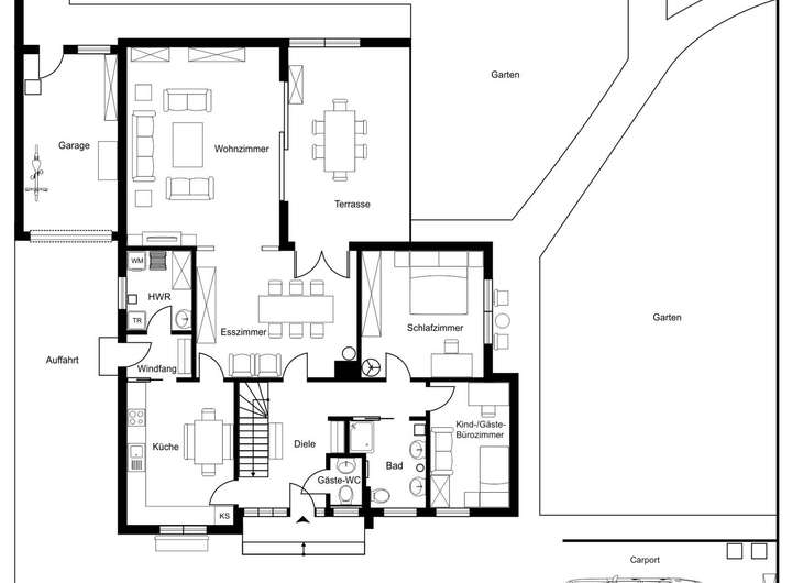
– großzügiges Wohn- und Esszimmer mit Holzkamin und Zugang zur Terrasse
– separate Wohnküche inkl. Einbauküche
– (Eltern-)Schlafzimmer
– Kind-/ Gäste-/ Bürozimmer
– Tageslichtbad mit ebenerdiger Dusche
– Gäste-WC
– Hauswirtschaftsraum
– Diele
Dachgeschoss:
- zwei Zimmer (Wohn- /Esszimmer und separates Schlafzimmer) mit Zugang auf die Loggia
- separate Küche inkl. Einbauküche
- Tageslichtbad (Waschmaschinenanschluss vorhanden)
- Abstellraum
- kleine Arbeitsecke
- großzügiger Bodenraum (Ausbaureserve oder Stauraum)
Kellergeschoss (Vollkeller):
- bis zu fünf Vorrats- oder Lagerräume
- Heizungsraum
- Öltankraum
- Flurbereiche
Dank umfangreicher Modernisierungsmaßnahmen befindet sich die Immobilie in einem gepflegten Zustand und kann ohne weiteren Aufwand sofort genutzt werden – sowohl für Eigennutzer als auch für Kapitalanleger eine praktische und solide Option.
Wohnkomfort auf zwei Ebenen: Modernisiertes Zweifamilienhaus mit liebevoll gestaltetem Garten
49779 Niederlangen
Die vollständige Adresse der Immobilie erhalten Sie vom Anbieter.
Auf Karte anzeigen
Die vollständige Adresse der Immobilie erhalten Sie vom Anbieter.
Finanzierungszertifikat
In nur zwei Minuten zu Ihrem persönlichen Finanzierungszertifkat.
Infos
| Haustyp | Einfamilienhaus |
|---|---|
| Wohnfläche ca. | 211 m2 |
| Nutzfläche | 58,65 m2 |
| Grundstücksfläche | 824 m2 |
| Bezugsfrei ab | Frühling 2026 |
| Zimmer | 6 |
| Schlafzimmer | 4 |
| Badezimmer | 2 |
| Garage/Stellplatz | Carport |
| Anzahl Garage/Stellplatz | 1 |
Kosten
| Kaufpreis |
375.000 € |
|---|---|
| Provision |
2,975 % inkl. MwSt. |
Finanzierungsrechner:
Kaufpreis:
600.000 €
Eigenkapital:
600.000 €
Monatliche Rate
0 €
Effektiver Jahreszins
0 %
Sollzinsbindung
10 Jahre
Bausubstanz & Energieausweis
| Baujahr | 1979 |
|---|---|
| Heizungsart | Öl-Heizung |
| Wesentliche Energieträger | Öl |
| Energieausweis | liegt vor |
| Energieausweistyp | Bedarfsausweis |
| Energieverbrauchskennwert | 235,9 kWh/(m²*a) |
| Energieeffizienzklasse | G |
235,9
kWh/(m²*a)
Energieeffizienzklasse G
- A+
- A
- B
- C
- D
- E
- F
- G
- H
- 0
- 25
- 50
- 75
- 100
- 125
- 150
- 175
- 200
- 225
- >250
Beschreibung des Objekts
Ausstattung
Außenanlagen:
- Wasseranschluss für die Bewässerung der Außenanlagen vorhanden
- Der liebevoll angelegte Garten ist mit Hecken und Zäunen eingefriedet
- Garage mit elektrischem Sektionaltor
- Carport vorhanden
Fenster / Türen:
- Kunststoffrahmenfenster teilweise mit Zwei- und Dreifachverglasung
- Hauseingangstür mit Dreifachverglasung
- Rollläden vorhanden, teilweise elektrisch steuerbar
Erneuerbare Energien:
- Zwei Photovoltaikplatten (Balkonkraftwerk)
Heizung / Warmwasser:
- Buderus Öl-Heiz-Kessel, G 115 BE aus 2002
- Buderus Öl-Brenner, BE 1.1-28, aus 2002
- Holz-Kaminofen der Marke Hark aus 2010
TV / Internet:
- TV: SAT
- Internet: DSL-Anschluss (bis zu 100MBit/s max. Download, 40 MBit/s max. Upload)
Lage
Die Gemeinde Niederlangen gehört zur Samtgemeinde Lathen und zählt etwa 1.400 Einwohner. Vor Ort gibt es unter anderem eine Bäckerei, einen Lebensmittelmarkt, eine Tennisanlage, eine Physiopraxis, ein Gasthaus, eine Tankstelle, ein Bürgerhaus, einen Geldautomaten, eine Kindertagesstätte, eine Grundschule sowie einen Sportverein.
Die 3 km entfernte Samtgemeinde Lathen bietet eine Vielzahl an Einrichtungen für den täglichen Bedarf, darunter Banken, ärztliche Versorgung, Supermärkte, Apotheken, Schulen, Kindergärten sowie gute Anbindung an Bus und Bahn.
Grundriss
EG
>
>
DG
>
>
KG
>
>
Adresse
49779 Niederlangen
Interessante Orte
Preis- und Lageinformationen
Preistrend für Bestandsimmobilien in Niederlangen