Willkommen in Ihrem neuen Zuhause in Hamburg-Langenhorn! Diese charmante Doppelhaushälfte aus dem Jahr 1977 bietet Ihnen auf ca. 123 m² Wohnfläche und ca. 85 m² Nutzfläche den idealen Raum zum Wohlfühlen und Entspannen. Das Haus steht auf einem gepflegten, ideell geteilten Grundstück von ca. 265 m² und punktet mit durchdachtem Raumangebot.
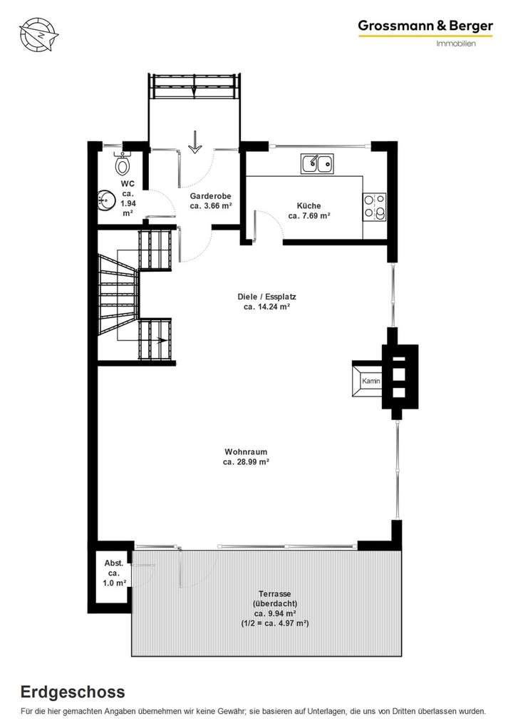
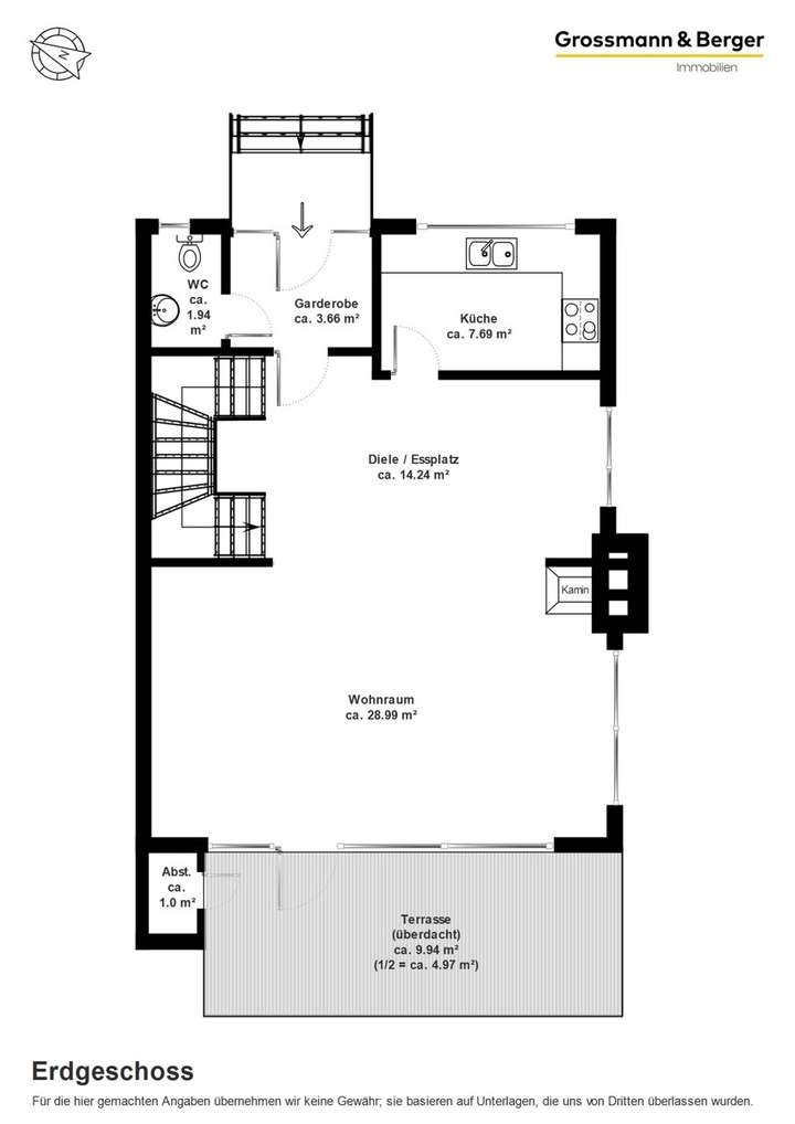
Das Herzstück des Hauses ist das helle Wohnzimmer mit Kamin, das zu gemütlichen Abenden einlädt. Ferner stehen im Erdgeschoss der Eingangsbereich mit Garderobe, der in den großzügigen Wohnbereich führt sowie die praktische Einbauküche und das Gäste WC zur Verfügung.
Im Obergeschoss finden Sie drei Schlafzimmer, die genügend Platz für die ganze Familie bieten sowie das Hauptbadezimmer mit Badewanne. Über eine feste Treppe erreichen Sie das voll ausgebaute Dachgeschoss, das eine vielfältige Nutzung bietet.
Die Ausstattung der Räume ist insgesamt etwas in die Jahre gekommen, Sie haben deshalb die Möglichkeit, das Haus ganz nach Ihrem Geschmack zu gestalten. Dieses charmante Haus steht ab sofort zum Kauf bereit und wartet darauf, von Ihnen entdeckt zu werden.
Familientraum in Langenhorn
22415 Hamburg
Die vollständige Adresse der Immobilie erhalten Sie vom Anbieter.
Auf Karte anzeigen
Die vollständige Adresse der Immobilie erhalten Sie vom Anbieter.
Finanzierungszertifikat
In nur zwei Minuten zu Ihrem persönlichen Finanzierungszertifkat.
Infos
| Haustyp | Doppelhaushaelfte |
|---|---|
| Wohnfläche ca. | 123 m2 |
| Nutzfläche | 85 m2 |
| Grundstücksfläche | 265 m2 |
| Bezugsfrei ab | sofort |
| Zimmer | 5 |
| Schlafzimmer | 3 |
| Badezimmer | 1 |
| Garage/Stellplatz | Außenstellplatz |
| Anzahl Garage/Stellplatz | 1 |
Kosten
| Kaufpreis |
549.000 € |
|---|---|
| Provision |
3,57 % inkl. MwSt. |
Finanzierungsrechner:
Kaufpreis:
600.000 €
Eigenkapital:
600.000 €
Monatliche Rate
0 €
Effektiver Jahreszins
0 %
Sollzinsbindung
10 Jahre
Bausubstanz & Energieausweis
| Baujahr | 1977 |
|---|---|
| Objektzustand | Renovierungsbedürftig |
| Heizungsart | Zentralheizung |
| Wesentliche Energieträger | Erdgas leicht |
| Energieausweis | liegt vor |
| Energieausweistyp | Bedarfsausweis |
| Energieverbrauchskennwert | 201,7 kWh/(m²*a) |
| Energieeffizienzklasse | G |
201,7
kWh/(m²*a)
Energieeffizienzklasse G
- A+
- A
- B
- C
- D
- E
- F
- G
- H
- 0
- 25
- 50
- 75
- 100
- 125
- 150
- 175
- 200
- 225
- >250
Beschreibung des Objekts
Ausstattung
Diese ansprechende Immobilie bietet eine Vielzahl an Ausstattungsmerkmalen, die den Wohnkomfort steigern. Das Hauptbad ist mit einer Wanne ausgestattet, zusätzlich gibt es ein separates Gäste-WC, das den Komfort für Bewohner und Besucher erhöht. Die Einbauküche lässt das Herz jedes Hobbykochs höherschlagen und bietet genügend Platz für kulinarische Kreationen.
Der Fußbodenbelag aus einer Kombination von Fliesen und gemütlichem Teppichboden trägt zu einer angenehmen Wohnatmosphäre bei. An kühleren Tagen sorgt der Kamin für wohlige Wärme und ein behagliches Ambiente.
Die großzügige Terrasse sowie der Balkon laden zum Entspannen ein und erweitern den Wohnbereich nach außen. Das Haus ist zudem vollständig unterkellert, was zusätzlichen Stauraum bietet oder als Hobbyraum genutzt werden kann. Ein eigener PKW-Stellplatz steht ebenfalls zur Verfügung.
Das Heizsystem setzt auf eine Gas-Zentralheizung, unterstützt durch den charmanten Kamin im Wohnbereich. So wird ein behagliches Wohnklima bei gleichzeitig sparsamer Energienutzung gewährleistet. Diese Kombination aus Komfort und Funktionalität macht die Immobilie zu einem Zuhause zum Wohlfühlen.
Lage
Die angebotene Doppelhaushälfte befindet sich in einem attraktiven Stadtteil im Norden von Hamburg. Diese familienfreundliche Lage ist besonders für Familien und Berufspendler ideal, da sie eine ausgewogene Mischung aus ruhigem Wohnen und hervorragender Anbindung an die Infrastruktur des Stadtteils bietet. Die Umgebung ist geprägt von gepflegten Einfamilienhäusern und viel Grün, was zu einem entspannten und naturnahen Wohngefühl beiträgt.
In der näheren Umgebung finden Sie alle notwendigen Einrichtungen des täglichen Bedarfs. Zahlreiche Einkaufsmöglichkeiten, Kindergärten und Schulen machen den Alltag besonders komfortabel. Auch Ärzte und Apotheken sind in kurzer Zeit erreichbar. Für eine abwechslungsreiche Freizeitgestaltung stehen Ihnen diverse Sport- und Erholungsangebote sowie Parks zur Verfügung.
Die Anbindung an den öffentlichen Nahverkehr ist optimal, sodass Sie schnell und bequem in das Stadtzentrum und andere Stadtteile Hamburgs gelangen können. Außerdem bietet die Nähe zu wichtigen Verkehrsachsen eine schnelle Erreichbarkeit der umliegenden Regionen.
Grundriss
Erdgeschoss
>
>
Obergeschoss
>
>
Dachgeschoss
>
>
Kellergeschoss
>
>
Adresse
22415 Hamburg
Interessante Orte
Preis- und Lageinformationen
Preistrend für Bestandsimmobilien in Langenhorn