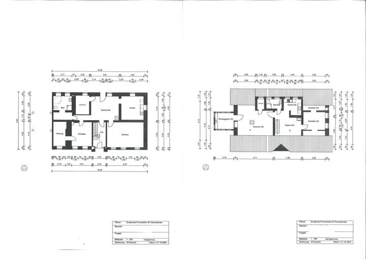
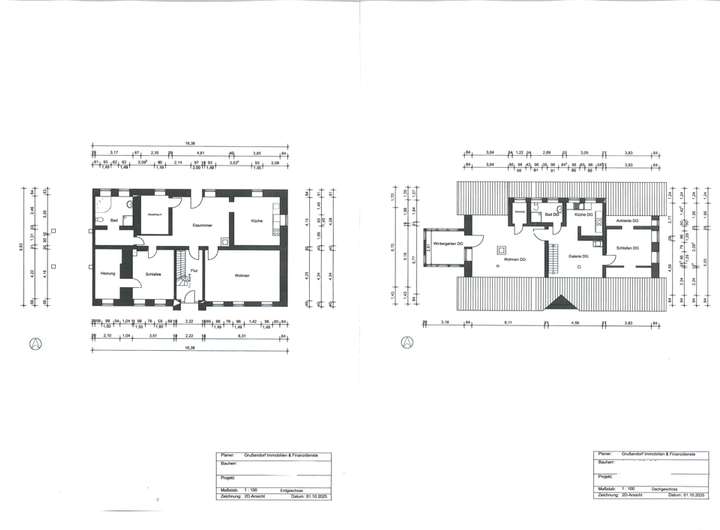
Dieses charmante Einfamilienhaus im Fachwerkstil, erbaut um 1900, bietet eine einzigartige Kombination aus historischem Charme und modernem Wohnkomfort. Mit einer Wohnfläche von ca. 174 m² und einem großzügigen Grundstück von 1228 m² ist dieses Haus ideal für Familien, die viel Platz und eine idyllische Umgebung suchen. Die Wohnfläche von ca. 174 m² verteilt sich auf mehrere Zimmer, die flexibel genutzt werden können. Der Innenbereich ist geprägt von charmanten Fachwerkelementen, die dem Haus eine besondere Atmosphäre verleihen. Die großzügigen Wohn- und Schlafräume bieten viel Platz für individuelle Gestaltungsmöglichkeiten und sorgen für ein gemütliches Wohnambiente. Das Haus bietet aufgrund der Bauweise die Möglichkeit, das Obergeschoss als Einliegerwohnung zu nutzen und kann mit geringem Aufwand umgebaut werden. Somit sind hier ideale Bedingungen für die Vermietung oder ein Mehrgenerationenwohnen gegeben. Im Erdgeschoss befinden sich die Küche mit Essbereich und einem Zugang zum Garten, ein großes Wohnzimmer, ein Schlafzimmer, ein Badezimmer und der Heizungsraum. Auch das Obergeschoss verfügt über eine Küche, ein Wohnzimmer mit kleinem Wintergarten, ein Schlafraum mit Ankleidezimmer und ein Badezimmer.
Im rückliegenden Bereich des Hauses erstreckt sich das weitläufige und geschützte Grundstück von 1228 m². Dieses bietet viel Platz für Freizeitaktivitäten und Gartenliebhaber. Das Grundstück verfügt über eine teilweise überdachte Nordterrasse, einen Außenpool sowie weitere Außensitzgelegenheiten. Diese bieten ideale Möglichkeiten zur Erholung und Freizeitgestaltung.
Die vorhandenen Nebengebäude bieten auf einer Nutzfläche von ca. 540 m² Platz für Hobby- und Freizeitaktivitäten sowie Unterstellmöglichkeiten für Wohnwagen, Wohnmobil oder größere Fahrzeuge. Zusätzlich ist eine Freifläche für KFZ-Außenstellplätze vorhanden. Die Trecker-Scheune bietet KFZ-Stellplätze und eine Werkstatt. Vom Unterstand gibt es eine Durchfahrt zur Straße.
Keine Käuferprovision! Historischer Charme & moderner Wohnkomfort & viel Platz f. Familie & Freizeit
38465 Brome
Die vollständige Adresse der Immobilie erhalten Sie vom Anbieter.
Auf Karte anzeigen
Die vollständige Adresse der Immobilie erhalten Sie vom Anbieter.
Finanzierungszertifikat
In nur zwei Minuten zu Ihrem persönlichen Finanzierungszertifkat.
Infos
| Haustyp | Einfamilienhaus |
|---|---|
| Wohnfläche ca. | 205 m2 |
| Nutzfläche | 300 m2 |
| Grundstücksfläche | 1.228 m2 |
| Bezugsfrei ab | nach Vereinbarung |
| Zimmer | 6 |
| Schlafzimmer | 5 |
| Badezimmer | 2 |
| Garage/Stellplatz | Garage |
| Anzahl Garage/Stellplatz | 10 |
Kosten
| Kaufpreis |
199.000 € |
|---|---|
| Provision |
Keine Käuferprovision! Für den Käufer fällt keine Provision an, diese wird vom Verkäufer getragen. |
Finanzierungsrechner:
Kaufpreis:
600.000 €
Eigenkapital:
600.000 €
Monatliche Rate
0 €
Effektiver Jahreszins
0 %
Sollzinsbindung
10 Jahre
Bausubstanz & Energieausweis
| Baujahr | 1900 |
|---|---|
| Letzte Sanierung | 2024 |
| Objektzustand | Saniert |
| Qualität der Austattung | Normal |
| Heizungsart | Zentralheizung |
| Wesentliche Energieträger | Gas |
| Energieausweis | liegt vor |
| Energieausweistyp | Bedarfsausweis |
| Energieverbrauchskennwert | 197,0 kWh/(m²*a) |
| Energieeffizienzklasse | F |
197,0
kWh/(m²*a)
Energieeffizienzklasse F
- A+
- A
- B
- C
- D
- E
- F
- G
- H
- 0
- 25
- 50
- 75
- 100
- 125
- 150
- 175
- 200
- 225
- >250
Beschreibung des Objekts
Ausstattung
Mauerwerk: außen massiv, innen Fachwerk
Keller: nein
Außenwände: Putz
Dämmung: Außenwände 20 cm, Innenwände 10 cm, 2016
Dach: Betonziegel
Elektrische Anlage: 2016 neu
Verrohrung Frisch- u. Abwasser: 2016 neu
Heizung: Gas-Zentralheizung, 2016 neu
Fenster: Kunststofffenster 2-fach und 3-fach Verglasung 2016 neu
Rollläden: elektrisch
Bodenbeläge: Fliesen und Laminat
Bad im EG: Badewanne, Dusche, Fenster, 2016 neu
Bad im OG: Dusche, Fenster 2016 neu
Raumaufteilung: gute Raumaufteilung, 6 Wohnräume
Terrasse: Nord, überdacht
Pool: 6x2 Meter und 1x4 Meter, L Form, 1,4 Meter tief, mit Sandfilteranlage und Solarheizung
Garage/Stellplätze: Trecker Scheune mit KFZ-Stellplätzen, Nebengebäude für Werkstatt und weitere
KFZ-Außenstellplätze
Lage
Das EFH befindet sich in Brome- Zicherie, im Osten des Landkreises Gifhorn an der Landesgrenze zu Sachsen-Anhalt. Brome-Zicherie liegt ca. 20 PKW-Fahrminuten in nördlicher Richtung von Wolfsburg entfernt und verfügt über eine gute Infrastruktur. Eine Grundschule, eine Kita, eine Krippe, Einkaufsmöglichkeiten für den täglichen Bedarf, Ärzte, ein Freibad, eine Tankstelle und eine Apotheke sind in Brome vorhanden und innerhalb weniger Minuten mit dem PKW, oder gut mit dem Rad (Radweg) erreichbar. Die Anbindung in nahe Ortschaften, nach Wolfsburg oder Gifhorn, wird durch öffentliche Verkehrsmittel, sowie den VW-eigenen Werksverkehr sichergestellt.
Sonstige Angaben
Das Betreten des Grundstücks ist ohne vorherige Terminabsprache mit unserem Maklerbüro nicht gestattet!
Die Objektdaten wurden mit großer Sorgfalt zusammengestellt und basieren auf den Angaben der Verkäufer!
Für die Richtigkeit der im Exposé enthaltenen Angaben übernehmen wir keine Gewähr!
Von Grussendorf Immobilien & Finanzdienste werden keinerlei Zusicherungen über den baulichen Zustand einer Immobilie gemacht!
Besuchen Sie unsere Homepage unter: www.grussendorfimmobilien.de
Adresse
38465 Brome
Interessante Orte
Preis- und Lageinformationen
Preistrend für Bestandsimmobilien in Brome
>