Das Haus wurde 1900 ursprünglich als Fachwerkhaus errichtet und in späteren Jahren / 1984 durch einen Anbau mit Klinker erweitert. In 2003 wurde das Dach in Zinkausführung erneuert und sämtliche Schornsteinköpfe mit Schiefer verkleidet. Die Fassade vom Haupthaus erhielt 1987 ebenfalls einen Klinker mit 6 cm Wärmedämmung und in 2003 ein neues Ziegeldach in glasierter Ausführung in anthrazit. Fenster und Haustüren sind überwiegend in Holz. In 2018 erfolgte der Einbau einer neuen Heizungsanlage von Viessmann VITOCROSSAL 300 und in 2013 ein neuer WW-Speicher. Die Elektrik ist teilweise erneuert. Der Wohnungsanbau 2 und das Haupthaus mit ELW verfügen über separate Zähler. Zurzeit werden die NK-Jahresabrechnungen von einem Dienstleister durchgeführt.
Großes Einfamilienhaus mit ELW und Wohnungsanbau für Handwerker
38533 Vordorf
Die vollständige Adresse der Immobilie erhalten Sie vom Anbieter.
Auf Karte anzeigen
Die vollständige Adresse der Immobilie erhalten Sie vom Anbieter.

Finanzierungszertifikat
In nur zwei Minuten zu Ihrem persönlichen Finanzierungszertifkat.
Infos
Haustyp | Mehrfamilienhaus |
---|---|
Etagenzahl | 2 |
Wohnfläche ca. | 506 m2 |
Nutzfläche | 64,7 m2 |
Grundstücksfläche | 1.390 m2 |
Bezugsfrei ab | Nach Absprache |
Zimmer | 15 |
Schlafzimmer | 6 |
Badezimmer | 2 |
Garage/Stellplatz | Garage |
Anzahl Garage/Stellplatz | 3 |
Kosten
Kaufpreis |
345.000 € |
---|---|
Provision |
3,57 % incl. 19% MwSt. |
Finanzierungsrechner:
Kaufpreis:
600.000 €
Eigenkapital:
600.000 €
Monatliche Rate
0 €
Effektiver Jahreszins
0 %
Sollzinsbindung
10 Jahre
Bausubstanz & Energieausweis
Baujahr | 1900 |
---|---|
Objektzustand | Renovierungsbedürftig |
Heizungsart | Zentralheizung |
Wesentliche Energieträger | Gas |
Energieausweis | liegt vor |
Energieausweistyp | Bedarfsausweis |
Energieverbrauchskennwert | 245,4 kWh/(m²*a) |
Energieeffizienzklasse | G |
245,4
kWh/(m²*a)
Energieeffizienzklasse G
- A+
- A
- B
- C
- D
- E
- F
- G
- H
- 0
- 25
- 50
- 75
- 100
- 125
- 150
- 175
- 200
- 225
- >250
Beschreibung des Objekts
Ausstattung
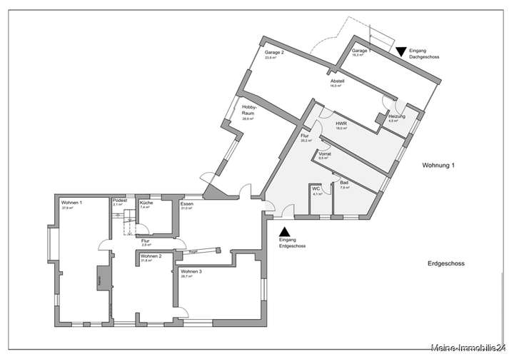
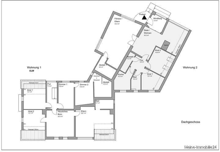
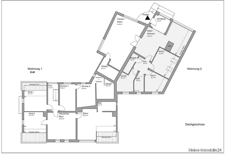
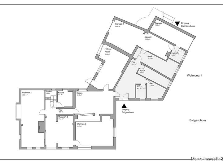
Haupthaus 1 EG: 229,4 qm - 1 Kaminofen - 2 Kamine - Fußböden: teilweise Fliesen und Teppich - Wände: teilweise Sichtmauerwerk in Kalksandstein, teilweise Tapete - Decken: Holzvertäfelung, teilweise tapeziert und weiss gestrichen - Bad mit Badewanne, WB und WC - Gäste-WC - Einbauküche in weiss mit elektrischen Geräten verbleibt im Haus Haupthaus 1 DG: 132,2 ELW - Fussböden: teilweise Holzdielen und Fliesen oder Teppich - Wände: Tapete und Holzvertäfelung - das WW wird über Durchlauferhitzer entnommen Anbau Wohnung 2 DG: 144,4 ( vermietet ) - Kamin - Wände: Tapete gestrichen - Fussböden: Fliesen, Laminat - Decken: Sichtbalkendecken mit Vertäfelung - Badezimmer: mit Dusche, WB und WC, Wände und Fussboden weisse Fliesen, Decke in weiss vertäfelt - Kaltmiete € 500,00 - aus privaten Gründen sind hier keine Fotos von dieser Wohnung eingestellt Außenbereich: - Stahltreppe zur Wohnung 2 im Anbau - Podest mit Vordach - Garage im Nebengebäude - Carport am Nebengebäude ( vermietet ) - SAT-Schüssel - angelegter Garten mit Rasenflächen - Grundstück ist eingefriedet - keine Eintragungen im Baulastenverzeichnis Ein Haus mit viel Platz und vielen Ideen ! Der Energieausweis nach Bedarf 245,4 kWh (qm*a ) liegt vor und ist bis zum 09.10.2035 gültig. Für Fragen und einen Besichtigungstermin stehe ich Ihnen gern zur Verfügung.
Lage
Das Einfamilienhaus mit Einliegerwohnung nebst Wohnungsanbau liegt an einer Durchfahrtsstraße in Vordorf bei Meine. Vordorf gehört zur Samtgemeinde Papenteich im LK Gifhorn und liegt 10 km nördlich von Braunschweig. Nach Braunschweig sind es ca. 10 Minuten mit dem PKW, nach Gifhorn oder Wolfsburg benötigen Sie ca. 20 Minuten. Die Anbindung zur A2 erreichen Sie ebenfalls in ca.10 Minuten. Im Ort gibt es ein Restaurant mit Biergarten, umfangreiche Vereine sowie Gewerbetreibende im ausgewiesenen Gewerbegebiet. Den Kindergarten und die Grundschule besuchen die Kinder im Ort. Weiterführende Schulen und sämtliche Einkaufsmöglichkeiten, Apotheken, Ärzte, Fachgeschäfte, Banken, Cafés, Restaurants finden Sie im 2 km entfernten Meine. Mehr unter: www.papenteich.de
Sonstige Angaben
Sie möchten eine ähnliche Immobilie verkaufen oder vermieten ? Wir erledigen sehr gern auch Ihre *Hausaufgaben* Rufen Sie uns an. Mobil: 0171 4419895 Die 100% -ige Bewertung unserer Kunden bei Immobilien Scout 24 spricht für uns.. Auch für 2024/25 sind wir für unsere langjährige Erfahrung, für unser besonderes Engagement und für überdurchschnittliche Kundenbewertungen von Immobilien Scout 24 ausgezeichnet worden.
Grundriss
Grundriss Erdgeschoss
>

Grundriss Dachgeschoss ELW + W
>

Adresse
38533 Vordorf
Interessante Orte
Preis- und Lageinformationen
Preistrend für Bestandsimmobilien in Vordorf